「ザ・パークハウス新宿タワーはどんなマンション?」「賃料相場や審査基準はどんな感じ?」など、ザ・パークハウス新宿タワーの賃貸を検討していませんか?
私たちはこれまで数多くの賃貸物件をご紹介してきましたが、パークハウス新宿タワーは、特に以下のようなお客様に自信を持っておすすめできる物件です。
- 人気の高級ブランドマンションに住みたい
- 立地や利便性を重視している
- 地震に強いマンションに住みたい
- ペットとの暮らしを大切にしたい
このページでは、この結論に至った背景や、知っておいていただきたい注意点を以下の流れで解説していきます。
この記事を読めば、パークハウス新宿タワーがどのような物件で、他の賃貸マンションと何が違うのかを深く理解できます。その結果、検討している物件があなたにとって最適な住まいなのか、自信を持って判断できるようになるでしょう。
まずはじめに、ザ・パークハウス新宿タワーで募集されていた部屋は以下のとおりです。新しい順に並んでいますが、詳しい募集時期は「物件登録日」をご覧ください。
弊社の仲介手数料は【無料】または【半額+tax】です。お客様の費用負担を少しでも軽くできるよう、全力でお部屋探しをお手伝いします。
物件アーカイブ 過去に募集された部屋一覧
| 参考賃料 | 30.0万円 〜 31.8万円 |
|---|---|
| ㎡数 | 57.47㎡ |
| 間取り | 1LDK |
| 所在階 | 16階 |
| 物件登録日 | 2026/05/11 |
| 参考賃料 | 34.0万円 〜 35.0万円 |
|---|---|
| ㎡数 | 61.02㎡ |
| 間取り | 2LDK |
| 所在階 | 12階 |
| 物件登録日 | 2026/04/28 |
| 参考賃料 | 33.0万円 〜 34.0万円 |
|---|---|
| ㎡数 | 59.95㎡ |
| 間取り | 2LDK |
| 所在階 | 16階 |
| 物件登録日 | 2026/04/07 |
| 参考賃料 | 35.0万円 〜 36.0万円 |
|---|---|
| ㎡数 | 60.27㎡ |
| 間取り | 2LDK |
| 所在階 | 14階 |
| 物件登録日 | 2026/03/11 |
| 参考賃料 | 24.5万円 〜 26.0万円 |
|---|---|
| ㎡数 | 48.70㎡ |
| 間取り | 1LDK |
| 所在階 | 9階 |
| 物件登録日 | 2026/02/09 |
| 参考賃料 | 34.0万円 〜 35.0万円 |
|---|---|
| ㎡数 | 67.34㎡ |
| 間取り | 2LDK |
| 所在階 | 3階 |
| 物件登録日 | 2026/01/17 |
| 参考賃料 | 35.0万円 〜 36.0万円 |
|---|---|
| ㎡数 | 72.12㎡ |
| 間取り | 2LDK |
| 所在階 | 11階 |
| 物件登録日 | 2025/12/25 |
| 参考賃料 | 35.0万円 〜 36.0万円 |
|---|---|
| ㎡数 | 60.27㎡ |
| 間取り | 2LDK |
| 所在階 | 14階 |
| 物件登録日 | 2025/12/16 |
| 参考賃料 | 26.0万円 〜 28.0万円 |
|---|---|
| ㎡数 | 59.29㎡ |
| 間取り | 2LDK |
| 所在階 | 2階 |
| 物件登録日 | 2025/12/15 |
| 参考賃料 | 39.0万円 〜 40.0万円 |
|---|---|
| ㎡数 | 72.12㎡ |
| 間取り | 3LDK |
| 所在階 | 12階 |
| 物件登録日 | 2025/11/25 |
| 参考賃料 | 34.0万円 〜 35.5万円 |
|---|---|
| ㎡数 | 73.23㎡ |
| 間取り | 3LDK |
| 所在階 | 16階 |
| 物件登録日 | 2025/10/21 |
| 参考賃料 | 32.0万円 〜 33.0万円 |
|---|---|
| ㎡数 | 64.18㎡ |
| 間取り | 2LDK |
| 所在階 | 10階 |
| 物件登録日 | 2025/08/06 |
| 参考賃料 | 24.2万円 〜 25.2万円 |
|---|---|
| ㎡数 | 48.07㎡ |
| 間取り | 1LDK |
| 所在階 | 2階 |
| 物件登録日 | 2025/07/23 |
| 参考賃料 | 23.0万円 〜 24.0万円 |
|---|---|
| ㎡数 | 48.07㎡ |
| 間取り | 1LDK |
| 所在階 | 11階 |
| 物件登録日 | 2025/07/22 |
| 参考賃料 | 35.0万円 〜 36.0万円 |
|---|---|
| ㎡数 | 76.94㎡ |
| 間取り | 3LDK |
| 所在階 | 16階 |
| 物件登録日 | 2025/07/08 |
| 参考賃料 | 30.5万円 〜 31.5万円 |
|---|---|
| ㎡数 | 64.18㎡ |
| 間取り | 2LDK |
| 所在階 | 11階 |
| 物件登録日 | 2025/04/18 |
| 参考賃料 | 24.0万円 〜 25.0万円 |
|---|---|
| ㎡数 | 48.07㎡ |
| 間取り | 1LDK |
| 所在階 | 8階 |
| 物件登録日 | 2025/04/05 |
| 参考賃料 | 29.0万円 〜 30.0万円 |
|---|---|
| ㎡数 | 59.29㎡ |
| 間取り | 2LDK |
| 所在階 | 5階 |
| 物件登録日 | 2025/04/05 |
| 参考賃料 | 28.0万円 〜 29.0万円 |
|---|---|
| ㎡数 | 57.47㎡ |
| 間取り | 2LDK |
| 所在階 | 18階 |
| 物件登録日 | 2025/03/12 |
| 参考賃料 | 33.0万円 〜 35.0万円 |
|---|---|
| ㎡数 | 59.29㎡ |
| 間取り | 2LDK |
| 所在階 | 15階 |
| 物件登録日 | 2025/01/25 |
| 参考賃料 | 21.0万円 〜 22.7万円 |
|---|---|
| ㎡数 | 50.3㎡ |
| 間取り | 1LDK |
| 所在階 | 16階 |
| 物件登録日 | 2025/01/25 |
| 参考賃料 | 29.8万円 〜 31.8万円 |
|---|---|
| ㎡数 | 59.29㎡ |
| 間取り | 2LDK |
| 所在階 | 3階 |
| 物件登録日 | 2024/09/10 |
| 参考賃料 | 27.0万円 〜 28.0万円 |
|---|---|
| ㎡数 | 50.48㎡ |
| 間取り | 2LDK |
| 所在階 | 17階 |
| 物件登録日 | 2024/09/04 |
| 参考賃料 | 24.8万円 〜 25.8万円 |
|---|---|
| ㎡数 | 57.85㎡ |
| 間取り | 1LDK |
| 所在階 | 18階 |
| 物件登録日 | 2024/09/04 |
| 参考賃料 | 22.6万円 〜 23.6万円 |
|---|---|
| ㎡数 | 48.07㎡ |
| 間取り | 1LDK |
| 所在階 | 11階 |
| 物件登録日 | 2024/09/04 |
| 参考賃料 | 27.8万円 〜 28.8万円 |
|---|---|
| ㎡数 | 59.29㎡ |
| 間取り | 2LDK |
| 所在階 | 11階 |
| 物件登録日 | 2024/08/15 |
| 参考賃料 | 25.0万円 〜 27.0万円 |
|---|---|
| ㎡数 | 59.29㎡ |
| 間取り | 2LDK |
| 所在階 | 15階 |
| 物件登録日 | 2024/06/11 |
| 参考賃料 | 31.0万円 〜 32.0万円 |
|---|---|
| ㎡数 | 64.18㎡ |
| 間取り | 2LDK |
| 所在階 | 10階 |
| 物件登録日 | 2024/03/30 |
| 参考賃料 | 35.0万円 〜 36.5万円 |
|---|---|
| ㎡数 | 72.51㎡ |
| 間取り | 3LDK |
| 所在階 | 15階 |
| 物件登録日 | 2024/02/27 |
| 参考賃料 | 25.0万円 〜 26.0万円 |
|---|---|
| ㎡数 | 59.29㎡ |
| 間取り | 2LDK |
| 所在階 | 2階 |
| 物件登録日 | 2024/01/31 |
| 参考賃料 | 21.0万円 〜 22.0万円 |
|---|---|
| ㎡数 | 48.07㎡ |
| 間取り | 1LDK |
| 所在階 | 3階 |
| 物件登録日 | 2024/01/10 |
| 参考賃料 | 24.0万円 〜 25.0万円 |
|---|---|
| ㎡数 | 48.07㎡ |
| 間取り | 1LDK |
| 所在階 | 10階 |
| 物件登録日 | 2023/12/05 |
| 参考賃料 | 36.0万円 〜 38.0万円 |
|---|---|
| ㎡数 | 75.73㎡ |
| 間取り | 3LDK |
| 所在階 | 9階 |
| 物件登録日 | 2023/10/19 |
| 参考賃料 | 25.0万円 〜 26.0万円 |
|---|---|
| ㎡数 | 50.48㎡ |
| 間取り | 2LDK |
| 所在階 | 18階 |
| 物件登録日 | 2023/06/08 |
| 参考賃料 | 22.5万円 〜 23.5万円 |
|---|---|
| ㎡数 | 57.85㎡ |
| 間取り | 1LDK |
| 所在階 | 18階 |
| 物件登録日 | 2023/01/31 |
| 参考賃料 | 23.0万円 〜 24.0万円 |
|---|---|
| ㎡数 | 48.07㎡ |
| 間取り | 1LDK |
| 所在階 | 5階 |
| 物件登録日 | 2023/01/12 |
| 参考賃料 | 28.0万円 〜 29.0万円 |
|---|---|
| ㎡数 | 67.34㎡ |
| 間取り | 2LDK |
| 所在階 | 3階 |
| 物件登録日 | 2022/10/19 |
| 参考賃料 | 29.0万円 〜 30.0万円 |
|---|---|
| ㎡数 | 57.28㎡ |
| 間取り | 2LDK |
| 所在階 | 10階 |
| 物件登録日 | 2022/09/14 |
トップ画像引用元:三菱地所
1. ザ・パークハウス新宿タワーの4つの特徴
パークハウス新宿タワーには、以下の特徴があります。
その分、賃料は高めですが、これらに魅力を感じる方はぜひ前向きにご検討ください。
1-1. 高級マンションブランド「The Parkhouse」シリーズの1つ
ザ・パークハウス新宿タワーは、都内でも屈指の高級ブランドマンションとして有名な「The Parkhouse」シリーズの1つです。
中でも、都心にある「ザ・パークハウス・・・タワー」シリーズは、1部屋の価格が1億円以上で取引されるほど、高いグレードを誇ります。
また、タワーシリーズは外観のデザイン性も高く、その街を代表するシンボルタワーとなっている物件が多いです。
以下の写真は、都心にあるザ・パークハウスのタワーマンションです。
| ザ・パークハウス 三田ガーデン レジデンス&タワー. |
![]() |
| ザ・パークハウス 高輪タワー. |
![]() |
| ザ・パークハウス 晴海タワーズ |
![]() |
| 画像引用元:三菱地所 |
分譲賃貸として貸し出される
パークハウス新宿タワーは、オーナー様が購入されたお部屋を賃貸として貸し出す、いわゆる分譲賃貸マンションです。
そのため、数億円もするようなハイクラスなお部屋を賃貸で借りられるのが大きな魅力です。人気の部屋は時期を問わずすぐに埋まってしまうため、まさに早い者勝ちとなります。
ちなみに、過去に募集されたお部屋の賃料を間取りごとにまとめると、以下のようになります。
| 1LDK | 18~25万円 |
| 2LDK | 27~36万円 |
| 3LDK | 29~35万円 |
1-2. 4駅13路線を利用できる便利な立地
パークハウス新宿タワーの周辺にある4つの駅からは、下記の13路線を利用することができます。
| 駅名 | 分数 | 路線 |
| 西新宿駅 | 5分 |
|
| 都庁前駅 | 8分 |
|
| 中野坂上駅 | 8分 |
|
| 新宿駅 | 15分 |
|
上記の駅と路線を利用できるので、都心内の移動で困ることはないと言えるでしょう。
また、少し遠回りになりますが、都庁前駅を経由すれば地下通路を通って新宿駅まで行くこともできます。
首都高の出入口も近い
パークハウス新宿タワーの近くには、首都高の「新宿IC」と「中野長者橋IC」があるので、車移動が多い方にも便利な立地です。
マンションの駐車場からわずか2~3分で高速に乗れるため、下道の渋滞で時間を無駄にする心配もありません。
空港へのリムジンバスも便利
羽田空港と成田空港へのアクセスも非常に便利です。
というのも、歩いて7分の「ヒルトン東京」からリムジンバスが発着しているので、電車に乗ることなく空港にアクセスできます。
そのため、出張や旅行で飛行機をよく使う人にとっても便利な立地と言えるでしょう。
1-3. 地震に強い「免震構造」で建てられている
パークハウス新宿タワーは、国内大手5社の1つである「鹿島建設」が施工した、地震に強い「免震構造」のタワーマンションです。
免震構造は、「積層ゴム」や「オイルダンパー」などの免震装置によって地盤と建物を切り離し、地震の揺れが建物に直接伝わらないようにする構造です。
また、タワーマンションの地震に強い構造としては主に以下の3つがあり、わかりやすくランク分けすると免震構造が一番優れていると言えます。
| 免震構造 | 制震構造 | 耐震構造 | |
| 総合ランク | S | A | B |
| 地震の揺れ | ほぼ感じない | 軽減 | 揺れやすい |
| 建物の被害 | 大幅に軽減 | 軽減 | 受けやすい |
| 家具の被害 | 大幅に軽減 | 軽減 | 受けやすい |
| 強風による揺れ | ゆっくりと長く揺れる | ほぼ感じない | ほぼ感じない |
上記のことから、「タワーマンションに住みたいけど地震が心配」という人にも、積極的に検討していただきたいです。
1-4. 大切なペットと快適に暮らせる
パークハウス新宿タワーでオーナー様がペット飼育を許可しているお部屋では、以下のペットとのご入居が可能です。
- 小型犬
- 猫
- 小動物
なお、マンション内にシャンプーやトリミングができる「ペットケアルーム」が用意されています。
ペットの大きさや種類によっては、オーナー様や管理組合の承諾が必要となります。そのため、必ず事前に不動産会社にご相談ください。
なお、ペットを飼育する際は、敷金が1ヶ月分積み増しになるケースもありますので、こちらも併せてご確認ください。
動物病院やペットホテルも利用しやすい
マンションから5分圏内に「Mogu動物病院」と「トッキー動物病院」がありますので、ペットの体調が優れないときでも安心です。
また、歩いて8分の場所に、ホテルやトリミングのサービスを提供している「DOG’s」というお店があるので、旅行や出張のとき便利に利用できます。
2. ザ・パークハウス新宿タワーのエントランスや室内イメージ
パークハウス新宿タワーの魅力をより具体的にイメージしていただけるよう、室内の様子と共用スペースを以下の4つのカテゴリに分けて写真でご紹介します。
2-1. エントランス
パークハウス新宿タワーには、以下2つのエントランスがあるので、それぞれご紹介します。
- 南側エントランス
- 北側エントランス
南側エントランスは、以下の写真のように重厚感のある佇まいとなっています。

北側エントランスは、以下の写真のように車止めが用意されています。
![]() |
![]() |
写真でもわかる通り、乗降スペースまで雨避けが伸びているので、雨に濡れることなく外出できるでしょう。
エントランス内部は、以下の写真のようにオートロックが導入されているので防犯面でも安心してお過ごしいただけます。

オートロックを奥に進むと、洗練された雰囲気のエントランスホールが出迎えます。

エントランス内には、以下のようにコンシェルジュが駐在しているフロントデスクも用意されています。

エントランスを奥に進むと落ち着いた雰囲気のエレベーターホールが用意されています。

共用廊下も上品な仕上がり
エレベーターホールから玄関ドアまでは、ホテルライクな内廊下の仕様となっています。
画像引用元:三菱地所
2-2. 共用部
パークハウス新宿タワーの共用部は、高級タワーマンションならではの共用設備が用意されています。
- プライベートパーク
- カフェラウンジ
- ゲストスイート
- パーティーサロン
- ペットケアルーム
プライベートパーク
マンションの1階には、四季の植物が揃ったプライベートパークが用意されています。
![]() |
![]() |
カフェラウンジ
マンションの1階には、プライベートパークを眺めながらくつろげるカフェラウンジが用意されています。
![]() |
![]() |
|
・利用料金 |
|
ゲストスイート
遠方からゲストがいらっしゃる場合も、マンション内に以下のようなゲストルームがあるので、時間を気にせずに過ごすことができるでしょう。

|
・利用時間 |
|
|
・利用料金 |
|
|
・その他 |
|
|
・予約方法の詳細 |
|
パーティーサロン
マンション内には、大きなダイニングテーブルなどが用意されたパーティールームがございます。

|
・利用時間 |
|
|
・利用料金 |
|
|
・その他 |
|
| 画像引用元:三菱地所 | |
ペットケアルーム
マンション内にはペットケアルームがあるので、定期的なシャンプーなどのケアにご利用いただけます。
|
・利用料金 |
|
2-3. 室内イメージ
モデルルームは以下のイメージです。(モデルルームなので、実際の内容とは異なる可能性があります。)
![]() |
![]() |
![]() |
![]() |
![]() |
![]() |
| 画像引用元:HOME’S | |
家具のない室内は以下のイメージです。(過去に募集されていた部屋なので、実際の内容とは異なる可能性があります。)
| リビング・ダイニング | |
![]() |
![]() |
| 寝室 | |
![]() |
![]() |
| キッチン | 洗面台 |
![]() |
![]() |
| 洗面台 | トイレ |
![]() |
![]() |
| 画像引用元:三菱地所 | |
室内の素材や雰囲気は、お部屋によって異なります。必ず内見でご確認ください。
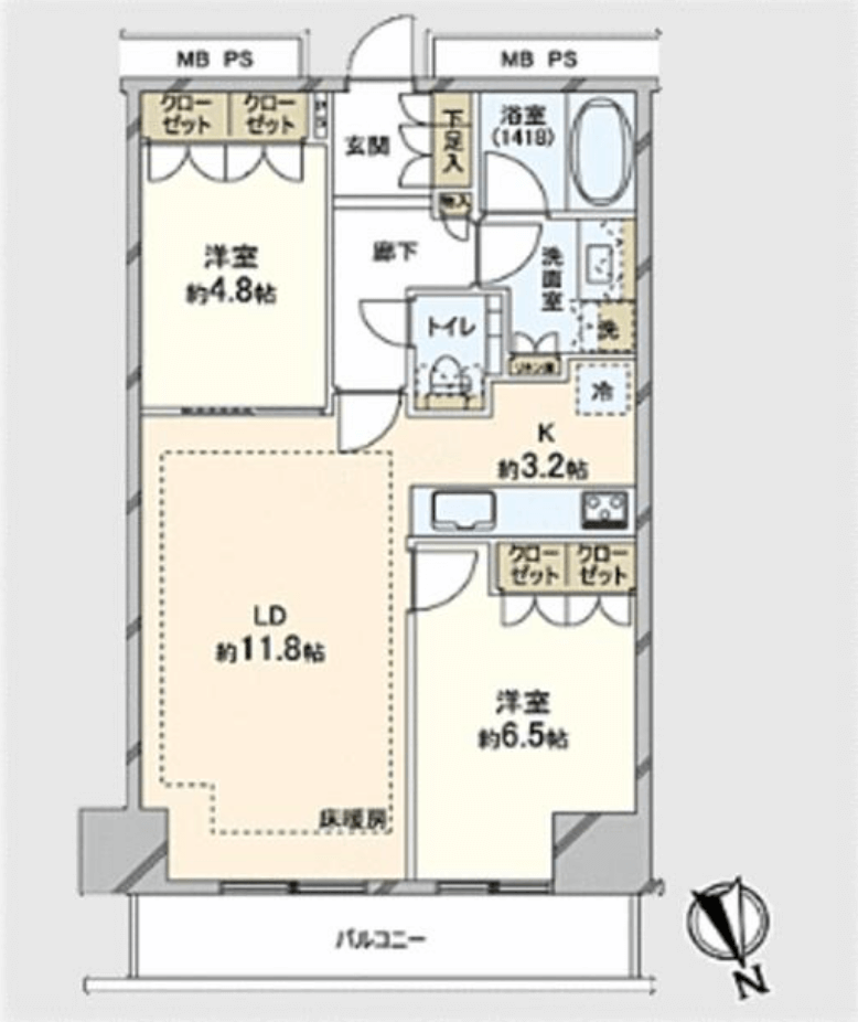
2-4. 間取り
現在募集中の部屋がない場合もございますが、パークハウス新宿タワーの代表的な部屋の間取りをご紹介します。
1LDK
![]() |
|
| 48.07㎡(14.54坪) |
2LDK
![]() |
![]() |
| 59.29㎡(17.94坪) | 59.29㎡(17.94坪) |
![]() |
![]() |
| 67.34㎡(20.37坪) | 75.46㎡(22.83坪) |
90㎡超の2LDK
![]() |
|
| 98.29㎡(29.73坪) |
3LDK
![]() |
![]() |
| 72.51㎡(21.93坪) | 76.94㎡(23.27坪) |
100㎡超の3LDK
![]() |
|
| 106.31㎡(32.16坪) | |
| 間取り図引用元:HOME’S |
3. ザ・パークハウス新宿タワーの交通情報・周辺環境
パークハウス新宿タワーの周辺施設(駅やコンビニなど)をマップにまとめましたので、以下をご覧ください。
引用:Google Map
マンション周辺にはコンビニやスーパーが充実しているため、日々の買い物にとても便利です。
3-1. 交通アクセスについて
繰り返しになりますが、パークハウス新宿タワーは主に以下4つの駅が利用できます。
| 駅名 | 分数 | 路線 |
| 西新宿駅 | 5分 |
|
| 都庁前駅 | 8分 |
|
| 中野坂上駅 | 8分 |
|
| 新宿駅 | 15分 |
|
合計13路線を使えるので、都心内の移動で不便に感じることはないでしょう。
タクシー移動にも便利な立地
新宿駅に近い立地なので、タクシーを使うときも便利です。
都心の主要エリアからマンションまで、タクシーをご利用いただいた場合の目安時間と料金は以下の通りです。
| エリア | 通常料金(深夜料金) | 時間 |
| 新宿駅 | 580円(740円) | 約10分 |
| 渋谷駅 | 2,100円(2,500円) | 約20分 |
| 池袋駅 | 2,340円(2,740円) | 約20分 |
| 六本木駅 | 2,660円(3,220円) | 約20~30分 |
| 銀座駅 | 3,140円(3,780円) | 約30分 |
| 大手町駅 | 3,300円(3,940円) | 約30分 |
| 東京駅 | 3,460円(4,180円) | 約30分 |
| 品川駅 | 4,340円(5,220円) | 約30~40分 |
3-2. 周辺のコンビニやスーパー・薬局について
マンション周辺にはコンビニやスーパーが揃っているので、日用品の買い物が便利です。
まず、コンビニは隣のビルに「ナチュラルローソン」があり、その他にも徒歩5分圏内に以下のようなコンビニが揃っています。
- セブンイレブン
- ファミリーマート
- ローソン
- リーベンハウス
スーパーはマンション隣のビルに22時まで営業している「もとまちユニオン」があるので、日用品の買い出しで困ることはないでしょう。
薬局・ドラッグストアも近い
以下のように、徒歩2分圏内に調剤薬局とドラッグストアも揃っているので、薬の買出しも便利です。
- ウエルシア(約110m、徒歩2分)
- アガペ新宿薬局(約120m、徒歩2分)
3-3. 飲食店について
周辺は活気あるビジネス街なので、ランチから仕事終わりのディナーまで楽しめる、以下のジャンルの飲食店が豊富に揃っています。
- カフェ
- イタリアンレストラン
- 和食料理店
- 海鮮料理店
- 居酒屋
- 焼き鳥屋
- 焼肉・鉄板料理店
- 寿司屋
- 天ぷら屋
- ファミレス
- ファストフード
また、新宿駅周辺には高層ビルのスカイバーから路地裏の名店まで、無数の飲食店が揃ってますので、その日の気分でお店選びに困ることはありません。
周辺にあるその他のグルメ情報
その他、パークハウス新宿タワー周辺には、以下のようにチェーンの飲食店もあります。
|
・ファミレス |
|
|
・牛丼・定食など |
|
|
・カフェ |
|
3-4. 学区域や保育園について
パークハウス新宿タワーの学区域は以下の通りです。(※学区域は変更になる場合があります。最新の情報は、各区教育委員会のウェブサイト等でご確認ください。)
| 小学校 | 中学校 |
| 柏木小学校 | 西新宿中学校 |
| 徒歩6分 | 徒歩8分 |
保育園は歩いて4分ほどの距離に「あい保育園」があるので、入園できれば共働きで忙しいご家庭の負担も減るでしょう。
この他にも周辺には複数の保育園があるため、お子さまの預け先を比較的検討しやすいエリアと言えるでしょう。
引用:Google Map
3-5. 周辺の治安について
マンション周辺の治安は良くないです。
以下のマップは、2022年の1年間を通して、犯罪(自転車盗難なども含む)が合計で何件発生したのかを示したものです。
引用:警視庁犯罪情報マップ
ご覧の通りパークハウス新宿タワーの建つ地域は、犯罪が多めのオレンジ色に分類されているので、23区内でも治安が良いエリアとは言えません。
また、新宿駅に近づくと居酒屋や夜のお店も多いので、女性や小さな子供のいる家族は慎重に検討しましょう。
ただ、マンションの周辺には複数の交番や警察署があるので、いざという時には心強く、安心感を与えてくれます。
パークハウス新宿タワーの入り口付近
マンションは大通りの「青梅街道」と「東京所沢線」に面していますが、以下の写真のように歩道が整備されているので、小さなお子さま連れの方でも安心して歩けるでしょう。
引用:Google map
3-6. 洪水などによる浸水リスクについて
ハザードマップ上、最大規模の氾濫時でも浸水リスクはないとされており、安心してお住まいいただけます。(※ハザードマップは変更されるケースがあります。最新の情報は、各自治体のウェブサイト等でご確認ください。)
ただし、最大規模の氾濫が起きた場合、マンション近くを流れる神田川から、マンション前の淀橋交差点にかけては「0.5m~3.0m未満」の浸水が予測されています。
ですので、浸水リスクも含めて検討するようにしましょう。
4. その他の特徴や注意点(審査難易度・事故情報など)
その他に、ここまでに挙げきれなかった、以下8個のパークハウス新宿タワーの特徴や注意点を紹介します。
- 駐車場が使える
- 楽器の演奏ができる
- 各階で24時間ゴミ出しができる
- 24時間有人管理の厳重なセキュリティ
- 審査難易度は部屋次第
- 礼金を2ヶ月分求められる部屋もある
- 定期借家契約について
- 事故物件情報は1件あり
4-1. 駐車場が使える
パークハウス新宿タワーには、駐車場が用意されています。
空き状況にもよりますが、平置きと機械式パーキングが利用可能で、大きさに合わせて「月36,000~40,000円」が賃料の目安です。
駐車場のサイズは以下の通りです。お借りになる際は、車検証でサイズを必ずご確認ください。
- 全長:5,000~5,300mm
- 全幅:1,550~1,900mm
- 全高:1,550~2,050mm
- 重量:1,900~2,500kg
以下は駐車場内の写真ですが、とても広いスペースなので、運転が苦手な人も駐車しやすいです。
画像引用元:三菱地所
4-2. 楽器の演奏ができる
パークハウス新宿タワーでは、オーナー様が楽器演奏を許可しているお部屋に限り、楽器演奏が可能です。
ただし、楽器の種類や演奏時間には制限があります。問題なく演奏できるか、事前に不動産会社にご確認ください。
4-3. 各階で24時間ゴミ出しができる
パークハウス新宿タワーでは、各階にゴミ捨て場が設置されており、24時間365日いつでもゴミを捨てることができます。
粗大ゴミは所定の場所へ持ち出す必要がありますが、日々のゴミ捨てでエレベーターを使わずに済むのは魅力的です。
また、ディスポーザーが付いている部屋であれば、生ゴミの処理も非常に楽です。
4-4. 24時間有人管理の厳重なセキュリティ
パークハウス新宿タワーでは、24時間有人管理体制が整っており、安心してお過ごしいただけます。
日中はコンシェルジュが常駐し、来訪者の受付やきめ細やかなサービスを提供しています。
そして、夜間から早朝にかけては警備員が常駐して管理しているので、いつでも安心して暮らせます。
4-5. 審査難易度は部屋次第
結論、パークハウス新宿タワーは分譲マンションのため、オーナー様によって審査の難易度が異なります。
したがって、特定の部屋の審査に落ちた場合でも、別の部屋であれば審査に通る可能性は十分にあります。
もし他にも気になるお部屋がある場合は、改めて申し込みが可能かどうか、不動産会社にご確認ください。
4-6. 礼金を2ヶ月分求められる部屋もある
パークハウス新宿タワーの部屋を借りる際、礼金を2ヶ月分求められるケースもあります。
例えば賃料が30万円の場合、礼金だけで60万円もの出費となり、無駄な費用が増えてしまいます。
稀に交渉によって礼金が安くなるケースもありますが、交渉を一切受け付けないオーナー様も多いのが実情です。そのため、類似物件と比較した上で慎重にご検討ください。
以下は、礼金0で募集されることが多い、周辺の類似物件です。
| セントラルパークタワー・ラ・トゥール新宿 | ラ・トゥール新宿ガーデン |
![]() |
![]() |
| ラ・トゥール新宿グランド | ラ・トゥール新宿アネックス. |
![]() |
![]() |
| 画像引用元:住友不動産 | |
4-7. 定期借家契約について
パークハウス新宿タワーは、期間限定の契約となる、「定期借家契約」を結ぶ部屋が多いです。
定期借家契約は期間限定の契約ですが、基本的には一般的な賃貸契約の更新と同様に再契約を結ぶことで、引き続き住み続けられるケースがほとんどです。
ただし、オーナー様が一時的に留守にする期間だけ貸し出しているお部屋など、再契約ができない場合もありますのでご注意ください。
また、再契約時には、近隣相場に合わせて賃料が変更になる可能性もあります。
4-8. 事故物件情報は1件あり
事故情報(過去の事件や事故)を「事故物件検索サイト(https://www.oshimaland.co.jp/)」やTwitterなどのSNS、Google検索で調べました。
その結果、事故物件検索サイト(https: //www.oshimaland.co.jp/)に下記の情報がありました。
| 事故内容 | 時期 | 部屋 |
| 自殺 | 平成31年 | 1013号室 |
他にも、不動産業者から提示される資料に「告知事項あり」と表記されている場合は、事故やその他トラブルの原因となる事柄がある可能性が高いので、内容を必ず聞くようにしましょう。
5. まとめ
ここまでをまとめると、ザ・パークハウス新宿タワーは、「賃料は高いが、それに見合った高いスペックのマンション」です。
これらの特徴を踏まえると、以下に当てはまる方には特におすすめしたい物件です。
- 人気の高級ブランドマンションに住みたい
- 立地や利便性を重視している
- 地震に強いマンションに住みたい
- ペットとの暮らしを大切にしたい
改めて、これまでに募集されたお部屋の情報は以下の通りです。 気になるお部屋がありましたら、どうぞお気軽にご連絡ください。お待ちしております。
物件アーカイブ 過去に募集された部屋一覧
| 参考賃料 | 30.0万円 〜 31.8万円 |
|---|---|
| ㎡数 | 57.47㎡ |
| 間取り | 1LDK |
| 所在階 | 16階 |
| 物件登録日 | 2026/05/11 |
| 参考賃料 | 34.0万円 〜 35.0万円 |
|---|---|
| ㎡数 | 61.02㎡ |
| 間取り | 2LDK |
| 所在階 | 12階 |
| 物件登録日 | 2026/04/28 |
| 参考賃料 | 33.0万円 〜 34.0万円 |
|---|---|
| ㎡数 | 59.95㎡ |
| 間取り | 2LDK |
| 所在階 | 16階 |
| 物件登録日 | 2026/04/07 |
| 参考賃料 | 35.0万円 〜 36.0万円 |
|---|---|
| ㎡数 | 60.27㎡ |
| 間取り | 2LDK |
| 所在階 | 14階 |
| 物件登録日 | 2026/03/11 |
| 参考賃料 | 24.5万円 〜 26.0万円 |
|---|---|
| ㎡数 | 48.70㎡ |
| 間取り | 1LDK |
| 所在階 | 9階 |
| 物件登録日 | 2026/02/09 |
| 参考賃料 | 34.0万円 〜 35.0万円 |
|---|---|
| ㎡数 | 67.34㎡ |
| 間取り | 2LDK |
| 所在階 | 3階 |
| 物件登録日 | 2026/01/17 |
| 参考賃料 | 35.0万円 〜 36.0万円 |
|---|---|
| ㎡数 | 72.12㎡ |
| 間取り | 2LDK |
| 所在階 | 11階 |
| 物件登録日 | 2025/12/25 |
| 参考賃料 | 35.0万円 〜 36.0万円 |
|---|---|
| ㎡数 | 60.27㎡ |
| 間取り | 2LDK |
| 所在階 | 14階 |
| 物件登録日 | 2025/12/16 |
| 参考賃料 | 26.0万円 〜 28.0万円 |
|---|---|
| ㎡数 | 59.29㎡ |
| 間取り | 2LDK |
| 所在階 | 2階 |
| 物件登録日 | 2025/12/15 |
| 参考賃料 | 39.0万円 〜 40.0万円 |
|---|---|
| ㎡数 | 72.12㎡ |
| 間取り | 3LDK |
| 所在階 | 12階 |
| 物件登録日 | 2025/11/25 |
| 参考賃料 | 34.0万円 〜 35.5万円 |
|---|---|
| ㎡数 | 73.23㎡ |
| 間取り | 3LDK |
| 所在階 | 16階 |
| 物件登録日 | 2025/10/21 |
| 参考賃料 | 32.0万円 〜 33.0万円 |
|---|---|
| ㎡数 | 64.18㎡ |
| 間取り | 2LDK |
| 所在階 | 10階 |
| 物件登録日 | 2025/08/06 |
| 参考賃料 | 24.2万円 〜 25.2万円 |
|---|---|
| ㎡数 | 48.07㎡ |
| 間取り | 1LDK |
| 所在階 | 2階 |
| 物件登録日 | 2025/07/23 |
| 参考賃料 | 23.0万円 〜 24.0万円 |
|---|---|
| ㎡数 | 48.07㎡ |
| 間取り | 1LDK |
| 所在階 | 11階 |
| 物件登録日 | 2025/07/22 |
| 参考賃料 | 35.0万円 〜 36.0万円 |
|---|---|
| ㎡数 | 76.94㎡ |
| 間取り | 3LDK |
| 所在階 | 16階 |
| 物件登録日 | 2025/07/08 |
| 参考賃料 | 30.5万円 〜 31.5万円 |
|---|---|
| ㎡数 | 64.18㎡ |
| 間取り | 2LDK |
| 所在階 | 11階 |
| 物件登録日 | 2025/04/18 |
| 参考賃料 | 24.0万円 〜 25.0万円 |
|---|---|
| ㎡数 | 48.07㎡ |
| 間取り | 1LDK |
| 所在階 | 8階 |
| 物件登録日 | 2025/04/05 |
| 参考賃料 | 29.0万円 〜 30.0万円 |
|---|---|
| ㎡数 | 59.29㎡ |
| 間取り | 2LDK |
| 所在階 | 5階 |
| 物件登録日 | 2025/04/05 |
| 参考賃料 | 28.0万円 〜 29.0万円 |
|---|---|
| ㎡数 | 57.47㎡ |
| 間取り | 2LDK |
| 所在階 | 18階 |
| 物件登録日 | 2025/03/12 |
| 参考賃料 | 33.0万円 〜 35.0万円 |
|---|---|
| ㎡数 | 59.29㎡ |
| 間取り | 2LDK |
| 所在階 | 15階 |
| 物件登録日 | 2025/01/25 |
| 参考賃料 | 21.0万円 〜 22.7万円 |
|---|---|
| ㎡数 | 50.3㎡ |
| 間取り | 1LDK |
| 所在階 | 16階 |
| 物件登録日 | 2025/01/25 |
| 参考賃料 | 29.8万円 〜 31.8万円 |
|---|---|
| ㎡数 | 59.29㎡ |
| 間取り | 2LDK |
| 所在階 | 3階 |
| 物件登録日 | 2024/09/10 |
| 参考賃料 | 27.0万円 〜 28.0万円 |
|---|---|
| ㎡数 | 50.48㎡ |
| 間取り | 2LDK |
| 所在階 | 17階 |
| 物件登録日 | 2024/09/04 |
| 参考賃料 | 24.8万円 〜 25.8万円 |
|---|---|
| ㎡数 | 57.85㎡ |
| 間取り | 1LDK |
| 所在階 | 18階 |
| 物件登録日 | 2024/09/04 |
| 参考賃料 | 22.6万円 〜 23.6万円 |
|---|---|
| ㎡数 | 48.07㎡ |
| 間取り | 1LDK |
| 所在階 | 11階 |
| 物件登録日 | 2024/09/04 |
| 参考賃料 | 27.8万円 〜 28.8万円 |
|---|---|
| ㎡数 | 59.29㎡ |
| 間取り | 2LDK |
| 所在階 | 11階 |
| 物件登録日 | 2024/08/15 |
| 参考賃料 | 25.0万円 〜 27.0万円 |
|---|---|
| ㎡数 | 59.29㎡ |
| 間取り | 2LDK |
| 所在階 | 15階 |
| 物件登録日 | 2024/06/11 |
| 参考賃料 | 31.0万円 〜 32.0万円 |
|---|---|
| ㎡数 | 64.18㎡ |
| 間取り | 2LDK |
| 所在階 | 10階 |
| 物件登録日 | 2024/03/30 |
| 参考賃料 | 35.0万円 〜 36.5万円 |
|---|---|
| ㎡数 | 72.51㎡ |
| 間取り | 3LDK |
| 所在階 | 15階 |
| 物件登録日 | 2024/02/27 |
| 参考賃料 | 25.0万円 〜 26.0万円 |
|---|---|
| ㎡数 | 59.29㎡ |
| 間取り | 2LDK |
| 所在階 | 2階 |
| 物件登録日 | 2024/01/31 |
| 参考賃料 | 21.0万円 〜 22.0万円 |
|---|---|
| ㎡数 | 48.07㎡ |
| 間取り | 1LDK |
| 所在階 | 3階 |
| 物件登録日 | 2024/01/10 |
| 参考賃料 | 24.0万円 〜 25.0万円 |
|---|---|
| ㎡数 | 48.07㎡ |
| 間取り | 1LDK |
| 所在階 | 10階 |
| 物件登録日 | 2023/12/05 |
| 参考賃料 | 36.0万円 〜 38.0万円 |
|---|---|
| ㎡数 | 75.73㎡ |
| 間取り | 3LDK |
| 所在階 | 9階 |
| 物件登録日 | 2023/10/19 |
| 参考賃料 | 25.0万円 〜 26.0万円 |
|---|---|
| ㎡数 | 50.48㎡ |
| 間取り | 2LDK |
| 所在階 | 18階 |
| 物件登録日 | 2023/06/08 |
| 参考賃料 | 22.5万円 〜 23.5万円 |
|---|---|
| ㎡数 | 57.85㎡ |
| 間取り | 1LDK |
| 所在階 | 18階 |
| 物件登録日 | 2023/01/31 |
| 参考賃料 | 23.0万円 〜 24.0万円 |
|---|---|
| ㎡数 | 48.07㎡ |
| 間取り | 1LDK |
| 所在階 | 5階 |
| 物件登録日 | 2023/01/12 |
| 参考賃料 | 28.0万円 〜 29.0万円 |
|---|---|
| ㎡数 | 67.34㎡ |
| 間取り | 2LDK |
| 所在階 | 3階 |
| 物件登録日 | 2022/10/19 |
| 参考賃料 | 29.0万円 〜 30.0万円 |
|---|---|
| ㎡数 | 57.28㎡ |
| 間取り | 2LDK |
| 所在階 | 10階 |
| 物件登録日 | 2022/09/14 |
物件概要
| 物件名 | ザ・パークハウス新宿タワー | ||
|---|---|---|---|
| 住所 | 東京都新宿区北新宿2丁目 | ||
| 最寄駅 | 東京メトロ丸ノ内線 西新宿駅 徒歩6分 東京メトロ丸ノ内線 中野坂上駅 徒歩7分 |
||
| 賃料 | 210,000 ~ 360,000 円/月 |
築年月 | 2012/01(築15年) |
| 間取り | 1LDK-2LDK | 専有面積 | 48.70-61.02㎡ |
| 物件特徴 | 構造 | RC(鉄筋コンクリート) | |
| 総階数 | 地上20階 | 総戸数 | 298戸 |
| 物件種別 | マンション | 登録日 更新日 |
2023/07/07 2023/07/08 |
| 設備 |
|
||
記事ランキング
厳選した高級物件をあなたに
高級賃貸東京は、一般的な不動産屋さんのように、「店舗で一緒に物件を探す」ことを基本的には行いません。
なぜかと言うと、店舗での物件探しでは対面になる分、お客様がご自身で検討できる時間が限られてしまうからです。
弊社では、メールなどで希望に沿った物件情報を複数お送りいたしますので、お客様のペースでじっくり比較・検討いただいた上で内覧・お申し込みをしていただくことができます。
このスタイルで営業しているため、店舗での物件紹介は原則しておりません。
高級賃貸東京が選ばれる理由取引先企業様
Copyright © 高級賃貸東京. All Rights Reserved.






































