勝どき ザ・タワーについて下記8つの方法で事故物件(飛び降り、転落、自殺、火災、孤独死、不審死、事件)を徹底的にリサーチしたところ、事故の情報が1件ありました。
- 事故物件検索サイト(https://www.oshimaland.co.jp/)
- Youtube
- Google検索
- マンション掲示板(https://www.e-mansion.co.jp)
- 5ちゃんねる(https://5ch.net)
- その他データベース
事故の詳細は以下の通りとなっています。
| 事故内容 | 時期 | 部屋 |
| 飛び降り自殺 | 令和7年 | 不明 |
| 孤独死 | 令和7年 | 不明 |
部屋の号数は不明ですが、直近の事故に関しては入居者に伝える義務がありますから、気になる方は不動産会社の担当者に確認しましょう。
なお、過去に事故などがあったお部屋について、不動産会社や大家さんには次の入居者様へお伝えする義務(告知義務)があります。しかし、その後に一人でも入居者がいた場合は、告知義務の対象外となる点には注意が必要です。
お部屋のことで気になる点があれば、ご遠慮なくご質問ください。お客様が安心して選べるよう、私たちが責任を持ってお調べします。
また、勝どき ザ・タワーで募集されていた部屋は以下のとおりです。新しい順に並んでいますが、詳しい募集時期は「物件登録日」をご覧ください。
物件アーカイブ 過去に募集された部屋一覧
| 参考賃料 | 42.0万円 〜 43.0万円 |
|---|---|
| ㎡数 | 79.84㎡ |
| 間取り | 2LDK |
| 所在階 | 27階 |
| 物件登録日 | 2026/02/10 |
| 参考賃料 | 25.0万円 〜 30.0万円 |
|---|---|
| ㎡数 | 58.25㎡ |
| 間取り | 1LDK |
| 所在階 | 3階 |
| 物件登録日 | 2026/02/08 |
| 参考賃料 | 24.0万円 〜 26.0万円 |
|---|---|
| ㎡数 | 47.79㎡ |
| 間取り | 1LDK |
| 所在階 | 17階 |
| 物件登録日 | 2026/01/31 |
| 参考賃料 | 80.0万円 〜 88.0万円 |
|---|---|
| ㎡数 | 88.16㎡ |
| 間取り | 2LDK |
| 所在階 | 51階 |
| 物件登録日 | 2026/01/25 |
| 参考賃料 | 23.0万円 〜 25.0万円 |
|---|---|
| ㎡数 | 48.23㎡ |
| 間取り | 1LDK |
| 所在階 | 4階 |
| 物件登録日 | 2026/01/19 |
| 参考賃料 | 37.0万円 〜 38.0万円 |
|---|---|
| ㎡数 | 72.38㎡ |
| 間取り | 3LDK |
| 所在階 | 31階 |
| 物件登録日 | 2026/01/19 |
| 参考賃料 | 23.0万円 〜 25.0万円 |
|---|---|
| ㎡数 | 48.23㎡ |
| 間取り | 1LDK |
| 所在階 | 4階 |
| 物件登録日 | 2026/01/17 |
| 参考賃料 | 25.0万円 〜 26.0万円 |
|---|---|
| ㎡数 | 42.04㎡ |
| 間取り | 1LDK |
| 所在階 | 16階 |
| 物件登録日 | 2026/01/15 |
| 参考賃料 | 34.0万円 〜 36.0万円 |
|---|---|
| ㎡数 | 66.70㎡ |
| 間取り | 2LDK |
| 所在階 | 20階 |
| 物件登録日 | 2026/01/15 |
| 参考賃料 | 36.0万円 〜 37.0万円 |
|---|---|
| ㎡数 | 73.32㎡ |
| 間取り | 2LDK |
| 所在階 | 44階 |
| 物件登録日 | 2026/01/13 |
| 参考賃料 | 37.0万円 〜 38.0万円 |
|---|---|
| ㎡数 | 69.58㎡ |
| 間取り | 2LDK |
| 所在階 | 41階 |
| 物件登録日 | 2025/12/20 |
| 参考賃料 | 34.9万円 〜 37.4万円 |
|---|---|
| ㎡数 | 71.18㎡ |
| 間取り | 3LDK |
| 所在階 | 40階 |
| 物件登録日 | 2025/12/15 |
| 参考賃料 | 35.0万円 〜 35.5万円 |
|---|---|
| ㎡数 | 67.86㎡ |
| 間取り | 2LDK |
| 所在階 | 37階 |
| 物件登録日 | 2025/12/10 |
| 参考賃料 | 130.0万円 〜 131.0万円 |
|---|---|
| ㎡数 | 102.02㎡ |
| 間取り | 1SLDK |
| 所在階 | 53階 |
| 物件登録日 | 2025/12/09 |
| 参考賃料 | 36.0万円 〜 37.0万円 |
|---|---|
| ㎡数 | 73.32㎡ |
| 間取り | 2LDK |
| 所在階 | 44階 |
| 物件登録日 | 2025/11/25 |
| 参考賃料 | 30.0万円 〜 31.0万円 |
|---|---|
| ㎡数 | 58.25㎡ |
| 間取り | 1LDK |
| 所在階 | 30階 |
| 物件登録日 | 2025/11/18 |
| 参考賃料 | 47.5万円 〜 50.0万円 |
|---|---|
| ㎡数 | 79.84㎡ |
| 間取り | 2LDK |
| 所在階 | 50階 |
| 物件登録日 | 2025/11/18 |
| 参考賃料 | 36.5万円 〜 39.0万円 |
|---|---|
| ㎡数 | 71.18㎡ |
| 間取り | 3LDK |
| 所在階 | 40階 |
| 物件登録日 | 2025/11/18 |
| 参考賃料 | 40.0万円 〜 42.0万円 |
|---|---|
| ㎡数 | 67.86㎡ |
| 間取り | 2LDK |
| 所在階 | 22階 |
| 物件登録日 | 2025/11/04 |
| 参考賃料 | 43.0万円 〜 45.0万円 |
|---|---|
| ㎡数 | 79.84㎡ |
| 間取り | 3LDK |
| 所在階 | 21階 |
| 物件登録日 | 2025/11/04 |
| 参考賃料 | 37.0万円 〜 39.0万円 |
|---|---|
| ㎡数 | 76.14㎡ |
| 間取り | 3LDK |
| 所在階 | 38階 |
| 物件登録日 | 2025/10/27 |
| 参考賃料 | 43.0万円 〜 45.0万円 |
|---|---|
| ㎡数 | 79.84㎡ |
| 間取り | 3LDK |
| 所在階 | 21階 |
| 物件登録日 | 2025/10/27 |
| 参考賃料 | 29.0万円 〜 31.0万円 |
|---|---|
| ㎡数 | 59.92㎡ |
| 間取り | 1LDK |
| 所在階 | 38階 |
| 物件登録日 | 2025/10/22 |
| 参考賃料 | 23.0万円 〜 24.5万円 |
|---|---|
| ㎡数 | 43.24㎡ |
| 間取り | 1LDK |
| 所在階 | 24階 |
| 物件登録日 | 2025/10/22 |
| 参考賃料 | 39.0万円 〜 41.0万円 |
|---|---|
| ㎡数 | 76.14㎡ |
| 間取り | 3LDK |
| 所在階 | 38階 |
| 物件登録日 | 2025/10/21 |
| 参考賃料 | 43.0万円 〜 45.0万円 |
|---|---|
| ㎡数 | 79.84㎡ |
| 間取り | 3LDK |
| 所在階 | 21階 |
| 物件登録日 | 2025/10/07 |
| 参考賃料 | 57.0万円 〜 60.0万円 |
|---|---|
| ㎡数 | 79.84㎡ |
| 間取り | 2LDK |
| 所在階 | 48階 |
| 物件登録日 | 2025/10/02 |
| 参考賃料 | 43.0万円 〜 44.0万円 |
|---|---|
| ㎡数 | 70.01㎡ |
| 間取り | 2LDK |
| 所在階 | 34階 |
| 物件登録日 | 2025/09/29 |
| 参考賃料 | 23.0万円 〜 24.0万円 |
|---|---|
| ㎡数 | 47.79㎡ |
| 間取り | 1LDK |
| 所在階 | 24階 |
| 物件登録日 | 2025/09/22 |
| 参考賃料 | 23.0万円 〜 24.0万円 |
|---|---|
| ㎡数 | 47.79㎡ |
| 間取り | 1LDK |
| 所在階 | 24階 |
| 物件登録日 | 2025/09/17 |
| 参考賃料 | 29.0万円 〜 31.0万円 |
|---|---|
| ㎡数 | 59.92㎡ |
| 間取り | 1LDK |
| 所在階 | 38階 |
| 物件登録日 | 2025/09/10 |
| 参考賃料 | 130.0万円 〜 131.0万円 |
|---|---|
| ㎡数 | 102.02㎡ |
| 間取り | 1SLDK |
| 所在階 | 53階 |
| 物件登録日 | 2025/09/09 |
| 参考賃料 | 29.0万円 〜 31.0万円 |
|---|---|
| ㎡数 | 59.92㎡ |
| 間取り | 1LDK |
| 所在階 | 38階 |
| 物件登録日 | 2025/08/18 |
| 参考賃料 | 30.0万円 〜 32.0万円 |
|---|---|
| ㎡数 | 58.25㎡ |
| 間取り | 1SLDK |
| 所在階 | 47階 |
| 物件登録日 | 2025/06/23 |
| 参考賃料 | 35.0万円 〜 36.0万円 |
|---|---|
| ㎡数 | 73.32㎡ |
| 間取り | 3LDK |
| 所在階 | 12階 |
| 物件登録日 | 2025/06/03 |
| 参考賃料 | 19.5万円 〜 21.0万円 |
|---|---|
| ㎡数 | 42.04㎡ |
| 間取り | 1LDK |
| 所在階 | 4階 |
| 物件登録日 | 2025/05/08 |
| 参考賃料 | 36.0万円 〜 38.0万円 |
|---|---|
| ㎡数 | 72.38㎡ |
| 間取り | 2LDK |
| 所在階 | 37階 |
| 物件登録日 | 2025/05/08 |
| 参考賃料 | 32.0万円 〜 34.0万円 |
|---|---|
| ㎡数 | 69.58㎡ |
| 間取り | 2LDK |
| 所在階 | 9階 |
| 物件登録日 | 2025/05/08 |
| 参考賃料 | 23.0万円 〜 24.0万円 |
|---|---|
| ㎡数 | 48.23㎡ |
| 間取り | 1LDK |
| 所在階 | 22階 |
| 物件登録日 | 2025/02/24 |
| 参考賃料 | 24.5万円 〜 27.0万円 |
|---|---|
| ㎡数 | 58.98㎡ |
| 間取り | 1LDK |
| 所在階 | 6階 |
| 物件登録日 | 2025/02/14 |
| 参考賃料 | 33.0万円 〜 35.0万円 |
|---|---|
| ㎡数 | 67.86㎡ |
| 間取り | 2LDK |
| 所在階 | 18階 |
| 物件登録日 | 2025/02/10 |
| 参考賃料 | 54.0万円 〜 56.0万円 |
|---|---|
| ㎡数 | 95.36㎡ |
| 間取り | 2LDK |
| 所在階 | 52階 |
| 物件登録日 | 2025/02/10 |
| 参考賃料 | 25.0万円 〜 28.0万円 |
|---|---|
| ㎡数 | 58.98㎡ |
| 間取り | 1LDK |
| 所在階 | 6階 |
| 物件登録日 | 2025/01/27 |
| 参考賃料 | 33.0万円 〜 35.0万円 |
|---|---|
| ㎡数 | 67.86㎡ |
| 間取り | 2LDK |
| 所在階 | 18階 |
| 物件登録日 | 2025/01/23 |
| 参考賃料 | 25.0万円 〜 28.0万円 |
|---|---|
| ㎡数 | 58.98㎡ |
| 間取り | 1LDK |
| 所在階 | 6階 |
| 物件登録日 | 2025/01/06 |
| 参考賃料 | 34.0万円 〜 36.0万円 |
|---|---|
| ㎡数 | 72.38㎡ |
| 間取り | 2LDK |
| 所在階 | 36階 |
| 物件登録日 | 2024/12/19 |
| 参考賃料 | 29.0万円 〜 30.0万円 |
|---|---|
| ㎡数 | 57.39㎡ |
| 間取り | 2LDK |
| 所在階 | 8階 |
| 物件登録日 | 2024/12/10 |
| 参考賃料 | 25.0万円 〜 27.5万円 |
|---|---|
| ㎡数 | 58.25㎡ |
| 間取り | 1LDK |
| 所在階 | 44階 |
| 物件登録日 | 2024/11/15 |
| 参考賃料 | 25.0万円 〜 27.5万円 |
|---|---|
| ㎡数 | 58.25㎡ |
| 間取り | 1LDK |
| 所在階 | 44階 |
| 物件登録日 | 2024/11/01 |
弊社の仲介手数料は【無料】または【半額+tax】です。お客様の費用負担を少しでも軽くできるよう、全力でお部屋探しをお手伝いします。
また、事故情報以外に「勝どき ザ・タワー」についてよくあるご質問をまとめました。
勝どき ザ・タワーについて、事故物件以外でよくある質問と回答
勝どき ザ・タワーについて、よくあるご質問をまとめました。
マンションの設備について
- Q1. 駐車場は用意されていますか?
- Q2. 楽器の演奏はできますか?
- Q3. ペットを飼育することはできますか?
- Q4. セキュリティ面はどうですか?
- Q5. コンシェルジュはいますか?何をしてくれますか?
周辺の環境に関して
- Q6. 周辺の治安は良いですか?
- Q7. 電車などの交通アクセスはどのようなものがありますか?
- Q8. 周辺にコンビニやスーパーはありますか?
- Q9. 周辺にどんな飲食店がありますか?
- Q10. 学区域の小・中学校はどちらですか?
- Q11. 周辺に保育園はありますか?
災害リスクについて
契約について
Q1. 駐車場は用意されていますか?
はい、勝どき ザ・タワーには駐車場が用意されています。
空き状況にもよりますが、平置きと機械式パーキングが利用可能で、大きさに合わせて「29,700~55,000円(税込)/月」が賃料の目安です。
駐車場のサイズは以下の通りです。お借りになる際は、車検証でサイズを必ずご確認ください。
- 全長:5,015~6,000mm
- 全幅:1,840~2,350mm
- 全高:1,550~2,800mm
- 重量:1,900~2,500kg
以下は駐車場内の写真です。
画像引用元:HOME’S
駐輪場とバイク置き場について
勝どき ザ・タワーには駐輪場とバイク置き場があり、賃料の目安は下記の通りです。
- 駐輪場:100~300円円/月
- バイク置き場:2,000~3,000円/月
Q2. 楽器の演奏はできますか?
はい、勝どき ザ・タワーは、オーナー様が楽器演奏を許可しているお部屋に限り、楽器演奏が可能です。
ただし、楽器の種類や演奏時間には規定がございます。後のトラブルを避けるためにも、ご希望の条件での演奏が可能か、ご契約前に必ず確認しましょう。
Q3. ペットを飼育することはできますか?
はい、勝どき ザ・タワーでオーナー様がペット飼育を許可しているお部屋では、以下のペットとのご入居が可能です。
- 小型犬
- 猫
また、マンションの設備としてペット用の足洗い場が用意されているので、散歩帰りなど便利に利用できます。
さらに、無料で利用できるドッグランも完備されているので、ワンちゃんを飼うには最適なマンションと言えます。
なお、ペットを飼育するときは敷金が1ヶ月分積み増しになるケースが多いので、事前に不動産会社の担当者に確認しましょう。
動物病院やペットサロンも充実
マンションから2分ほど歩いた先に「クロス動物医療センター」があるので、ペットの体調が優れないときでも安心です。
また、ペットホテルのサービスを提供している「ブルーム」というお店も併設しているので、旅行や出張のとき便利に利用できます。
その他にも下記のお店が周辺にあるので、利用するお店の比較や検討がしやすいです。
| サロン | トリミング | ホテル |
| ブルーム | ○ | ○ |
| salon de Ladney | ○ | |
| WANLABO | ○ | |
| HIPSTER DOG | ○ | ○ |
Q4. セキュリティ面はどうですか?
はい、勝どき ザ・タワーには、管理員が24時間常駐し、住まう方々の日々を見守ります。『いざという時』の迅速な対応はもちろん、防犯面でも頼れる存在がいる暮らしは、何物にも代えがたい安心感につながります。
また、エントランスに加え、エレベーターホールにもオートロックを完備。不審者の侵入を二重でブロックするため、女性の一人暮らしや小さなお子様がいるご家庭でも、安心して毎日をお過ごしいただけます。
さらに、エレベーターはお部屋の鍵がないと呼び出せない仕組みです。居住者以外はフロアに上がれないため、セキュリティ面でも安心感が違います。
Q5. コンシェルジュはいますか?何をしてくれますか?
はい、勝どき ザ・タワーには専用のコンシェルジュがいます。
また、日中であれば来訪者の受付や宅急便の発送代行をはじめとした、下記のコンシェルジュサービスを提供しています。
- インフォメーションサービス
- ゲスト対応
- 宅配便発送サービス
- クリーニングの受付
- 共用施設の利用受付
- 粗大ゴミの収集手続き
- タクシー・ハイヤーの配車手配
- メッセージお預かり
- 各種レンタル品の貸し出し
Q6. 周辺の治安は良いですか?
はい、マンション周辺の治安は良いです。
以下のマップは、2025年の1年間を通して、犯罪(自転車盗難なども含む)が合計で何件発生したのかを示したものです。

引用:警視庁犯罪情報マップ
ご覧の通りマンション周辺は薄いオレンジ色に分類されていることから、23区内でも治安が良いエリアとなります。
Q7. 電車などの交通アクセスはどのようなものがありますか?
勝どき ザ・タワー周辺の主要な交通アクセスを以下の移動手段に分けて紹介します。
1.電車
勝どき ザ・タワーの周辺にある2つの駅からは、下記の2路線を利用することができます。
| 駅名 | 分数 | 路線 |
| 勝どき駅 | 6分 |
|
| 月島駅 | 15分 |
|
最寄りの「勝どき駅」から利用できる「大江戸線」は、「六本木」や「新宿」方面にアクセスしやすい路線です。
一方、月島駅から利用できる「有楽町線」は、「銀座」や「永田町」方面にアクセスしやすいです。
2.バス
バスで「新橋」や「虎ノ門」に行ける「東京BRT」の「勝どきBRTターミナル」が物件の目の前にあります。
2020年に運行を開始した「東京BRT」は、新橋まで約8分、虎ノ門ヒルズまで約20分で到着するので、電車を利用するより早くて便利です。
3.タクシー・車
勝どき駅に近い立地なので、タクシーを使うときも便利です。
都心の主要エリアからマンションまで、タクシーをご利用いただいた場合の目安時間と料金は以下の通りです。
| エリア | 通常料金(深夜料金) | 時間 |
| 新橋駅 | 900円(1,140円) | 約10分 |
| 銀座駅 | 1,060円(1,220円) | 約10分 |
| 東京駅 | 1,620円(1,940円) | 約20分 |
| 大手町駅 | 1,780円(2,100円) | 約20分 |
| 六本木駅 | 1,940円(2,340円) | 約20分 |
| 品川駅 | 2,660円(3,220円) | 約20~30分 |
| 渋谷駅 | 3,300円(4,020円) | 約30分 |
| 新宿駅 | 3,940円(4,740円) | 約30~40分 |
また、近くに首都高の「晴海IC」があるので、車移動が多い方にも便利な立地です。
マンションの駐車場からわずか5~6分で首都高速道路に乗れるため、下道の渋滞に巻き込まれる心配もありません。
Q8. 周辺にコンビニやスーパーはありますか?
はい、徒歩圏内にコンビニやスーパーが充実しており、日々の買い物が大変便利な立地です。(詳細は下図参照)
引用:Google Map
まず、コンビニはマンション内に「セブンイレブン」がある他にも、隣の建物に「ファミリーマート」がございます。
そして、向かいのマンションの1階には、24時間営業のスーパー「マルエツ」があるので、生鮮食品の買い物が便利です。
薬局・ドラッグストアも近い
マンションから徒歩7分圏内(約560m)には、5つの薬局・ドラッグストアが揃っています。
- のぞみ薬局(マンション内)
- どらっぐぱぱす(約100m、徒歩1分)
- さくら薬局(約250m、徒歩3分)
- 日本調剤(約500m、徒歩6分)
- パンダ薬局(約500m、徒歩7分)
Q9. 周辺にどんな飲食店がありますか?
マンション周辺に飲食店は少ないです。
ただし、「勝どき駅」や歩いて15分ほどの距離にある「晴海トリトン」の中には以下のような飲食店があります。
- カフェ
- ラーメン店
- 蕎麦・うどん屋
- 牛カツ専門店
- とんかつ屋
- 回転寿司屋
- 中華料理店
- タイ料理店
- インド料理店
- 台湾料理店
- ステーキ店
- 焼肉店
- イタリアンレストラン
- 居酒屋
- ベーカリー
- ファストフード店
- フードコート
これだけ多くのお店を利用できるので、勝どき駅や晴海トリトンまで行けば外食で困ることはないと言えるでしょう。
また、近隣には高級飲食店が集う「銀座」があるため、グルメな方でも満足いただけるでしょう。
勝どき ザ・タワー周辺のその他のグルメ情報
その他、以下のようにチェーンの飲食店も周辺にあります。
|
・ファミレス |
|
|
・牛丼 |
|
|
・カフェ |
|
Q10. 学区域の小・中学校はどちらですか?
勝どき ザ・タワーの学区域は以下の通りです。(※学区域は変更になる場合があります。最新の情報は、各区教育委員会のウェブサイト等でご確認ください。)
| 小学校 | 中学校 |
| 豊海小学校 | 晴海中学校 |
| 徒歩5分 | 徒歩19分 |
上記の通り、学区域の小学校は近いですが、中学校まで遠いので、お子さまの通学面では不便な立地条件となります。
そのため、お子さまがいらっしゃるご家庭は、通学面も考慮に入れてご検討ください。
ただし、晴海中学校までの通学路は以下の通り、歩道が整備されている場所が多く安心です。

| 中学校までの通学路1 | 中学校までの通学路2 |
![]() |
![]() |
| 中学校までの通学路3 | 中学校までの通学路4 |
![]() |
![]() |
Q11. 周辺に保育園はありますか?
はい、保育園に関しても、マンションの目の前に「ほっぺるランド」があるので、入園できれば共働きで忙しいご家庭の負担も減るでしょう。
その他にも、マンション周辺には保育園が複数あるので、選択肢は多いです。
引用:Google Map
Q12. マンションは地震に強い構造ですか?
勝どき ザ・タワーは、国内大手5社の1つである「鹿島建設」が施工した、地震に強い「制振構造」のタワーマンションです。
制震構造は、建物に組み込まれた「制震装置」が地震のエネルギーを吸収することで、大きな揺れが来た際にも建物の被害を軽減できる仕組みです。
また、タワーマンションに採用される耐震構造は主に3つありますが、中でも制震構造は非常にバランスの取れた構造と言えます。
| 免震構造 | 制震構造 | 耐震構造 | |
| 地震の揺れ | ほぼ感じない | 軽減 | 揺れやすい |
| 建物の被害 | 大幅に軽減 | 軽減 | 受けやすい |
| 家具に被害 | 大幅に軽減 | 軽減 | 受けやすい |
| 強風による揺れ | ゆっくりと長く揺れる | ほぼ感じない | ほぼ感じない |
高層建築物でも広く採用されている
制震構造はタワーマンションだけでなく、高層建築物にも広く採用されている信頼度の高い構造です。
以下は、制震構造を採用している有名な高層建築物です。
| 東京都庁 |
![]() |
| 東京スカイツリー |
![]() |
これらの理由から、「タワーマンションに住みたいけれど、地震が心配」という方にも、積極的にご検討いただきたい物件です。
Q13. 洪水などによる浸水のリスクはありますか?
はい、浸水リスクを調べたところ、最大規模の氾濫が起きた場合、マンションが建つエリアは「0.5m未満」の浸水が予測されています。
万が一、マンション周辺で氾濫が起こった場合は、最大で建物1階部分まで浸水する可能性がありますので、浸水リスクも含めて検討するようにしましょう。
Q14. 液状化のリスクはありますか?
はい、勝どきエリアは埋立地なので、液状化のリスクがあります。
中でも勝どき ザ・タワーがある土地は、「液状化のリスクが大きい」とハザードマップ上に明記されています。
そのため、絶対に液状化で悩みたくない人は、勝どきを含む埋立地のマンションは避けたほうがいいでしょう。
Q15. 保証会社の利用は必須ですか?
はい、勝どき ザ・タワーの多くの部屋が保証会社の利用を必須としています。
契約する保証会社は部屋によって異なるため、明確な費用は算出できませんが、初回保証料として総賃料の40~50%が相場となります。
借りる方にとっては追加費用が発生するものの、連帯保証人を用意する手間が省けるというメリットがあります。
Q16. 審査難易度はどのようになっていますか?
結論、勝どき ザ・タワーは分譲マンションのため、オーナー様によって審査の難易度が異なります。
したがって、特定の部屋の審査に落ちた場合でも、別の部屋であれば審査に通る可能性は十分にあります。
もし他にも気になるお部屋がある場合は、改めて申し込みが可能かどうか、不動産会社にご確認ください。
よくある質問とその回答は以上です。
ここから、マンションをよりイメージした上で契約したい方のために、画像でマンション内の内装や設備を紹介します。
豊富な画像でわかる!勝どき ザ・タワーのエントランス・室内イメージ
勝どき ザ・タワーの室内や共用スペースはどうなっているのか、契約前により具体的にイメージいただくために、以下の3つに分けて画像で紹介します。
①. エントランス
勝どき ザ・タワーのエントランス周辺は、湾岸エリアらしく非常に開放的な雰囲気です。

夜になると、高級感ある雰囲気に様変わりします。
画像引用元:公式パンフレット
エントランス内部には、オートロックが設置されているので防犯面でも安心してお過ごしいただけます。
画像引用元:SUUMO
1つ目のオートロックを通過すると、コンシェルジュが駐在しているフロントデスクが用意されています。
画像引用元:公式パンフレット
フロントデスクを奥に進むと、二層吹き抜けの豪華なグランドラウンジが出迎えます。
以下の写真のように、ソファーが揃っているので待ち合わせ場所などにご活用いただけます。
画像引用元:公式パンフレット
エントランスホールとエレベーターホールの間には、2つ目のオートロックが設置されています。
画像引用元:SUUMO
2つ目のオートロックを通過すると、吹き抜けから太陽光が差し込む「ホワイエ」と呼ばれるスペースがあります。
画像引用元:公式パンフレット
ホワイエを通過すると、13人乗りのエレベーターが12基用意された、エレベーターホールにたどり着きます。

画像引用元:東芝エレベータ
ちなみに、タワーマンションのエレベーターは「50戸に対して1基」が理想とされています。
勝どき ザ・タワーの常用エレベーターは「1,420戸に対して12基」ということから、時間帯によっては多少お待ちいただくことがあるでしょう。
ただし、以下のようにお住まいの階層によって利用するエレベーターが違うので、満員で乗れないということはないでしょう。
| 居住階 | 19階以下 | 20~30階 | 31~41階 | 42~52階 |
| 停止階(固有) | ~19階 | 20~30階 | 31~41階 | 42~52階 |
| 停止階(共通) | 地下1階・1階・2階 | |||
| エレベーター数 | 各3基 | |||
共用廊下も上品な空間
エレベーターを降りた先から玄関までは、ホテルライクな内廊下の仕様となっています。
画像引用元:公式パンフレット
②. 共用部
勝どき ザ・タワーの共用部は、高級タワーマンションならではの施設が揃っています。
この章では、下記の代表的な施設の概要を詳しくご紹介します。
| 1階 | 2階 |
| 27階 | 40階 |
ドッグラン
マンションの1階には、ドッグランがございます。
| ・利用時間 |
|
| ・利用料金 |
|
フィットネススタジオ
マンションの2階には、有酸素マシンなどが揃ったフィットネススタジオがございます。

| ・利用時間 |
|
| ・利用料金 |
|
| 画像引用元:HOME’S | |
キッズルーム
マンション内には、雨の日でもお子さまと遊ぶことのできるキッズルームがございます。
床にはコルクタイルを採用するなど、安全性に配慮されてます。

以下のようにキッズルーム専用のテラス席もあります。

| ・利用時間 |
|
| ・利用料金 |
|
| 画像引用元:HOME’S | |
ゴルフシミュレーションスタジオ
マンション2階には、ゴルフシミュレーションスタジオがあるので、気分転換や自主練習などにご活用いただけます。

| ・利用時間 |
|
| ・利用料金 |
|
| 画像引用元:HOME’S | |
ミュージックスタジオ1・2
マンションの2階には、防音設備が揃ったミュージックスタジオがございます。
| ・利用時間 |
|
| ・利用料金 |
|
フォレストカフェ
マンションの2階には、緑に囲まれたフォレストカフェがございます。
カフェサービスもあるので、コーヒーを飲みながら談笑を楽しむことができます。


| ・利用時間 |
|
| ・利用料金 |
|
| 画像引用元:HOME’S|公式パンフレット | |
ライブラリーラウンジ
マンションの2階には、読書にご活用いただけるライブラリーラウンジが用意されています。



| ・利用時間 |
|
| ・利用料金 |
|
| 画像引用元:HOME’S | |
集会室
マンションの2階には、最大30名までご利用いただける集会室がございます。
| ・利用時間 |
|
| ・利用料金 |
|
| ・その他 |
|
ゲストルーム(27階)
マンションの27階には、以下2室のゲストルームがございます。
- 華(はなやぎ)
- 樹(いつき)
以下の写真のように、一流ホテルのような豪華な内装となっているので、ご友人やご両親を招待すると喜ばれるでしょう。
| 華(はなやぎ) |
![]() |
| 樹(いつき) |
|
|
| ・利用時間 |
|
| ・利用料金 |
|
ゲストルーム(40階)
マンションの40階には豪華なゲストルームが、全4室ございます。
- 趣(おもむき)
- 湧(わき)
- 愉(たのしみ)
- 粋(いき)
| 趣(おもむき) |
![]() |
![]() |
| ・利用時間 |
|
| ・利用料金 |
|
パーティールーム
マンションの40階には、ソファーやダイニングテーブルが揃ったパーティールームが用意されています。

| ・利用時間 |
|
| ・利用料金 |
|
スタディルーム
マンションの40階には、間仕切りで区切られたスタディールームがあるため、勉強や作業などに没頭できるでしょう。

| ・利用時間 |
|
| ・利用料金 |
|
スカイビューラウンジ
マンションの40階には、湾岸エリアの景色を一望できるスカイビューラウンジが用意されています。


| ・利用時間 |
|
| ・利用料金 |
|
| ・その他 |
|
| 画像引用元:HOME’S|公式パンフレット | |
③. 室内イメージ
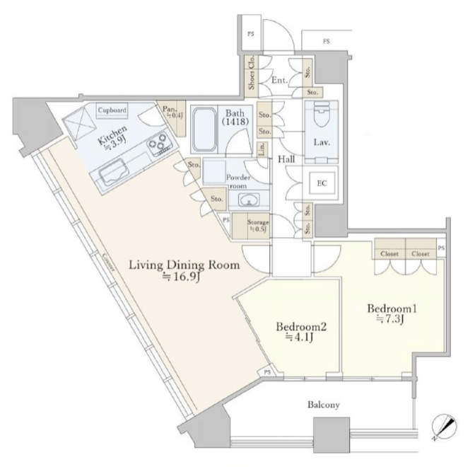
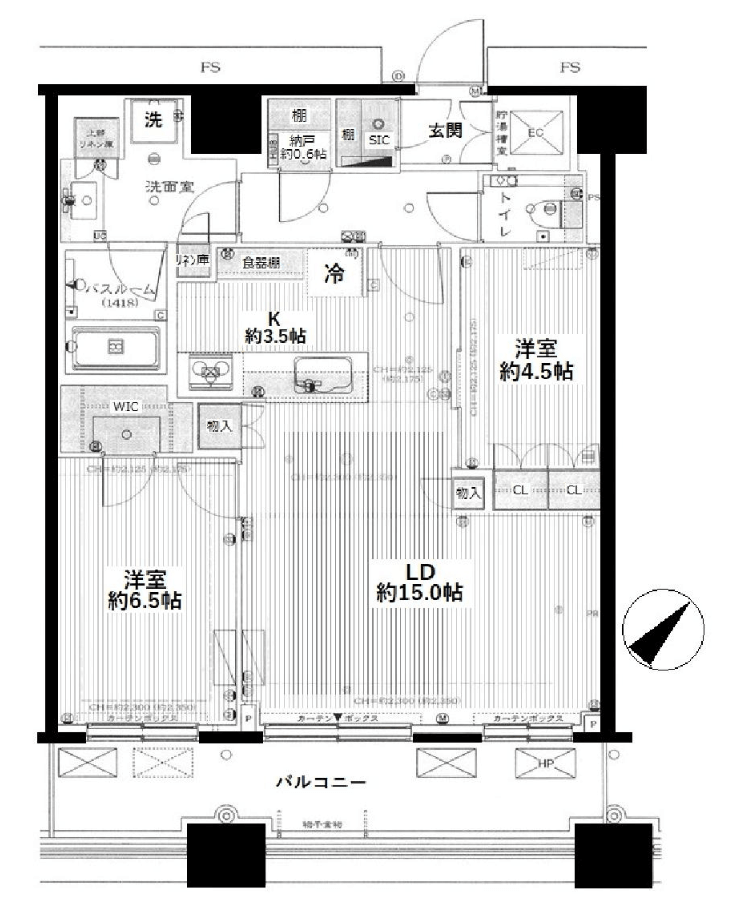
リビングなどの室内の様子は以下の写真をご参照ください。(※これらの写真は過去に募集されていたお部屋のものですので、実際の内容とは異なる可能性があります。ご了承ください。)
![]() |
![]() |
![]() |
![]() |
![]() |
![]() |
![]() |
![]() |
![]() |
![]() |
![]() |
![]() |
![]() |
![]() |
![]() |
![]() |
![]() |
![]() |
![]() |
![]() |
![]() |
![]() |
![]() |
![]() |
水回りの雰囲気は以下のようになっており、どれも洗練された作りです。
| キッチン | |
![]() |
![]() |
| 洗面台 | |
![]() |
![]() |
| 浴室 | |
![]() |
![]() |
| トイレ | |
![]() |
![]() |
| 画像引用元:HOME’S | |
室内の素材や雰囲気は、お部屋によって異なります。必ず内見でご確認ください。
まとめ
勝どき ザ・タワーについて、事故物件を徹底的にリサーチした結果、事故の情報が1件ありました。
| 事故内容 | 時期 | 部屋 |
| 飛び降り自殺 | 令和7年 | 不明 |
| 孤独死 | 令和7年 | 不明 |
弊社は、お客様がご心配であれば、過去の事故の有無や詳細について、契約前に貸主に確認させていただきますので、お気軽にお申し付けください。
改めて、現在募集されている部屋、過去に募集された部屋は以下の通りです。気になる部屋があれば、ご連絡をお待ちしています。
物件アーカイブ 過去に募集された部屋一覧
| 参考賃料 | 42.0万円 〜 43.0万円 |
|---|---|
| ㎡数 | 79.84㎡ |
| 間取り | 2LDK |
| 所在階 | 27階 |
| 物件登録日 | 2026/02/10 |
| 参考賃料 | 25.0万円 〜 30.0万円 |
|---|---|
| ㎡数 | 58.25㎡ |
| 間取り | 1LDK |
| 所在階 | 3階 |
| 物件登録日 | 2026/02/08 |
| 参考賃料 | 24.0万円 〜 26.0万円 |
|---|---|
| ㎡数 | 47.79㎡ |
| 間取り | 1LDK |
| 所在階 | 17階 |
| 物件登録日 | 2026/01/31 |
| 参考賃料 | 80.0万円 〜 88.0万円 |
|---|---|
| ㎡数 | 88.16㎡ |
| 間取り | 2LDK |
| 所在階 | 51階 |
| 物件登録日 | 2026/01/25 |
| 参考賃料 | 23.0万円 〜 25.0万円 |
|---|---|
| ㎡数 | 48.23㎡ |
| 間取り | 1LDK |
| 所在階 | 4階 |
| 物件登録日 | 2026/01/19 |
| 参考賃料 | 37.0万円 〜 38.0万円 |
|---|---|
| ㎡数 | 72.38㎡ |
| 間取り | 3LDK |
| 所在階 | 31階 |
| 物件登録日 | 2026/01/19 |
| 参考賃料 | 23.0万円 〜 25.0万円 |
|---|---|
| ㎡数 | 48.23㎡ |
| 間取り | 1LDK |
| 所在階 | 4階 |
| 物件登録日 | 2026/01/17 |
| 参考賃料 | 25.0万円 〜 26.0万円 |
|---|---|
| ㎡数 | 42.04㎡ |
| 間取り | 1LDK |
| 所在階 | 16階 |
| 物件登録日 | 2026/01/15 |
| 参考賃料 | 34.0万円 〜 36.0万円 |
|---|---|
| ㎡数 | 66.70㎡ |
| 間取り | 2LDK |
| 所在階 | 20階 |
| 物件登録日 | 2026/01/15 |
| 参考賃料 | 36.0万円 〜 37.0万円 |
|---|---|
| ㎡数 | 73.32㎡ |
| 間取り | 2LDK |
| 所在階 | 44階 |
| 物件登録日 | 2026/01/13 |
| 参考賃料 | 37.0万円 〜 38.0万円 |
|---|---|
| ㎡数 | 69.58㎡ |
| 間取り | 2LDK |
| 所在階 | 41階 |
| 物件登録日 | 2025/12/20 |
| 参考賃料 | 34.9万円 〜 37.4万円 |
|---|---|
| ㎡数 | 71.18㎡ |
| 間取り | 3LDK |
| 所在階 | 40階 |
| 物件登録日 | 2025/12/15 |
| 参考賃料 | 35.0万円 〜 35.5万円 |
|---|---|
| ㎡数 | 67.86㎡ |
| 間取り | 2LDK |
| 所在階 | 37階 |
| 物件登録日 | 2025/12/10 |
| 参考賃料 | 130.0万円 〜 131.0万円 |
|---|---|
| ㎡数 | 102.02㎡ |
| 間取り | 1SLDK |
| 所在階 | 53階 |
| 物件登録日 | 2025/12/09 |
| 参考賃料 | 36.0万円 〜 37.0万円 |
|---|---|
| ㎡数 | 73.32㎡ |
| 間取り | 2LDK |
| 所在階 | 44階 |
| 物件登録日 | 2025/11/25 |
| 参考賃料 | 30.0万円 〜 31.0万円 |
|---|---|
| ㎡数 | 58.25㎡ |
| 間取り | 1LDK |
| 所在階 | 30階 |
| 物件登録日 | 2025/11/18 |
| 参考賃料 | 47.5万円 〜 50.0万円 |
|---|---|
| ㎡数 | 79.84㎡ |
| 間取り | 2LDK |
| 所在階 | 50階 |
| 物件登録日 | 2025/11/18 |
| 参考賃料 | 36.5万円 〜 39.0万円 |
|---|---|
| ㎡数 | 71.18㎡ |
| 間取り | 3LDK |
| 所在階 | 40階 |
| 物件登録日 | 2025/11/18 |
| 参考賃料 | 40.0万円 〜 42.0万円 |
|---|---|
| ㎡数 | 67.86㎡ |
| 間取り | 2LDK |
| 所在階 | 22階 |
| 物件登録日 | 2025/11/04 |
| 参考賃料 | 43.0万円 〜 45.0万円 |
|---|---|
| ㎡数 | 79.84㎡ |
| 間取り | 3LDK |
| 所在階 | 21階 |
| 物件登録日 | 2025/11/04 |
| 参考賃料 | 37.0万円 〜 39.0万円 |
|---|---|
| ㎡数 | 76.14㎡ |
| 間取り | 3LDK |
| 所在階 | 38階 |
| 物件登録日 | 2025/10/27 |
| 参考賃料 | 43.0万円 〜 45.0万円 |
|---|---|
| ㎡数 | 79.84㎡ |
| 間取り | 3LDK |
| 所在階 | 21階 |
| 物件登録日 | 2025/10/27 |
| 参考賃料 | 29.0万円 〜 31.0万円 |
|---|---|
| ㎡数 | 59.92㎡ |
| 間取り | 1LDK |
| 所在階 | 38階 |
| 物件登録日 | 2025/10/22 |
| 参考賃料 | 23.0万円 〜 24.5万円 |
|---|---|
| ㎡数 | 43.24㎡ |
| 間取り | 1LDK |
| 所在階 | 24階 |
| 物件登録日 | 2025/10/22 |
| 参考賃料 | 39.0万円 〜 41.0万円 |
|---|---|
| ㎡数 | 76.14㎡ |
| 間取り | 3LDK |
| 所在階 | 38階 |
| 物件登録日 | 2025/10/21 |
| 参考賃料 | 43.0万円 〜 45.0万円 |
|---|---|
| ㎡数 | 79.84㎡ |
| 間取り | 3LDK |
| 所在階 | 21階 |
| 物件登録日 | 2025/10/07 |
| 参考賃料 | 57.0万円 〜 60.0万円 |
|---|---|
| ㎡数 | 79.84㎡ |
| 間取り | 2LDK |
| 所在階 | 48階 |
| 物件登録日 | 2025/10/02 |
| 参考賃料 | 43.0万円 〜 44.0万円 |
|---|---|
| ㎡数 | 70.01㎡ |
| 間取り | 2LDK |
| 所在階 | 34階 |
| 物件登録日 | 2025/09/29 |
| 参考賃料 | 23.0万円 〜 24.0万円 |
|---|---|
| ㎡数 | 47.79㎡ |
| 間取り | 1LDK |
| 所在階 | 24階 |
| 物件登録日 | 2025/09/22 |






引用:


































