「コンフォリア新宿イーストサイドタワーはどんなマンション?」「選ぶべき賃貸物件?」など、コンフォリア新宿イーストサイドタワー(以下、コンフォリア新宿タワー)の賃貸を検討していませんか?
私たちはこれまで数多くの賃貸物件をご紹介してきましたが、コンフォリア新宿タワーは、特に以下のようなお客様に自信を持っておすすめできる物件です。
- 人気の高級ブランドマンションに住みたい
- タワーマンションならではの豪華な施設を堪能したい
- 駅からの近さも重視している
- セキュリティ面も重視したい
- ペットとの暮らしを大切にしたい
- ホテルのように暮らせる家を探している
このページでは、この結論に至った背景や、知っておいていただきたい注意点を以下の流れで解説していきます。
- コンフォリア新宿イーストサイドタワーの6つの特徴
- コンフォリア新宿イーストサイドタワーのエントランスや室内イメージ
- コンフォリア新宿イーストサイドタワーの交通情報・周辺環境
- その他の特徴や注意点(審査難易度・事故情報など)
この記事を読めば、コンフォリア新宿タワーがどのような物件で、他の賃貸マンションと何が違うのかを深く理解できます。その結果、検討している物件があなたにとって最適な住まいなのか、自信を持って判断できるようになるでしょう。
まずはじめに、コンフォリア新宿イーストサイドタワーで募集されていた部屋は以下のとおりです。新しい順に並んでいますが、詳しい募集時期は「物件登録日」をご覧ください。
弊社の仲介手数料は【無料】または【半額+tax】です。お客様の費用負担を少しでも軽くできるよう、全力でお部屋探しをお手伝いします。
上段:タワー棟|下段:アネックス棟(SOHO区画)
物件アーカイブ 過去に募集された部屋一覧
| 参考賃料 | 27.7万円 〜 28.7万円 |
|---|---|
| ㎡数 | 42.51㎡ |
| 間取り | 1R |
| 所在階 | 11階 |
| 物件登録日 | 2026/02/09 |
| 参考賃料 | 27.4万円 〜 28.4万円 |
|---|---|
| ㎡数 | 41.99㎡ |
| 間取り | 1LDK |
| 所在階 | 5階 |
| 物件登録日 | 2026/02/09 |
| 参考賃料 | 27.5万円 〜 28.5万円 |
|---|---|
| ㎡数 | 41.23㎡ |
| 間取り | 1R |
| 所在階 | 14階 |
| 物件登録日 | 2026/02/09 |
| 参考賃料 | 27.9万円 〜 28.9万円 |
|---|---|
| ㎡数 | 42.84㎡ |
| 間取り | 1LDK |
| 所在階 | 3階 |
| 物件登録日 | 2026/02/09 |
| 参考賃料 | 26.4万円 〜 27.4万円 |
|---|---|
| ㎡数 | 41.23㎡ |
| 間取り | 1R |
| 所在階 | 14階 |
| 物件登録日 | 2026/02/09 |
| 参考賃料 | 38.2万円 〜 39.2万円 |
|---|---|
| ㎡数 | 62.86㎡ |
| 間取り | 1LDK |
| 所在階 | 2階 |
| 物件登録日 | 2026/02/09 |
| 参考賃料 | 53.1万円 〜 54.1万円 |
|---|---|
| ㎡数 | 85.64㎡ |
| 間取り | 2LDK |
| 所在階 | 16階 |
| 物件登録日 | 2026/02/09 |
| 参考賃料 | 52.7万円 〜 53.7万円 |
|---|---|
| ㎡数 | 85.64㎡ |
| 間取り | 2LDK |
| 所在階 | 8階 |
| 物件登録日 | 2026/02/09 |
| 参考賃料 | 65.8万円 〜 66.8万円 |
|---|---|
| ㎡数 | 100.35㎡ |
| 間取り | 2LDK |
| 所在階 | 20階 |
| 物件登録日 | 2026/02/09 |
| 参考賃料 | 48.0万円 〜 49.0万円 |
|---|---|
| ㎡数 | 73.72㎡ |
| 間取り | 2LDK |
| 所在階 | 6階 |
| 物件登録日 | 2026/02/07 |
| 参考賃料 | 39.4万円 〜 40.4万円 |
|---|---|
| ㎡数 | 62.86㎡ |
| 間取り | 1LDK |
| 所在階 | 3階 |
| 物件登録日 | 2026/02/06 |
| 参考賃料 | 48.1万円 〜 49.1万円 |
|---|---|
| ㎡数 | 73.72㎡ |
| 間取り | 1LDK |
| 所在階 | 21階 |
| 物件登録日 | 2026/01/28 |
| 参考賃料 | 27.1万円 〜 28.1万円 |
|---|---|
| ㎡数 | 41.23㎡ |
| 間取り | 1R |
| 所在階 | 13階 |
| 物件登録日 | 2026/01/28 |
| 参考賃料 | 56.0万円 〜 57.0万円 |
|---|---|
| ㎡数 | 86.03㎡ |
| 間取り | 1LDK |
| 所在階 | 28階 |
| 物件登録日 | 2026/01/28 |
| 参考賃料 | 39.8万円 〜 40.8万円 |
|---|---|
| ㎡数 | 62.86㎡ |
| 間取り | 1LDK |
| 所在階 | 14階 |
| 物件登録日 | 2026/01/28 |
| 参考賃料 | 48.8万円 〜 49.8万円 |
|---|---|
| ㎡数 | 74.54㎡ |
| 間取り | 1LDK |
| 所在階 | 25階 |
| 物件登録日 | 2026/01/28 |
| 参考賃料 | 27.9万円 〜 28.9万円 |
|---|---|
| ㎡数 | 42.84㎡ |
| 間取り | 1LDK |
| 所在階 | 6階 |
| 物件登録日 | 2026/01/28 |
| 参考賃料 | 27.7万円 〜 28.7万円 |
|---|---|
| ㎡数 | 42.51㎡ |
| 間取り | 1LDK |
| 所在階 | 3階 |
| 物件登録日 | 2026/01/21 |
| 参考賃料 | 28.2万円 〜 29.2万円 |
|---|---|
| ㎡数 | 44.8㎡ |
| 間取り | 1R |
| 所在階 | 4階 |
| 物件登録日 | 2026/01/20 |
| 参考賃料 | 68.0万円 〜 69.0万円 |
|---|---|
| ㎡数 | 103.33㎡ |
| 間取り | 2LDK |
| 所在階 | 26階 |
| 物件登録日 | 2026/01/15 |
| 参考賃料 | 48.5万円 〜 49.5万円 |
|---|---|
| ㎡数 | 74.54㎡ |
| 間取り | 2LDK |
| 所在階 | 11階 |
| 物件登録日 | 2026/01/05 |
| 参考賃料 | 36.3万円 〜 37.3万円 |
|---|---|
| ㎡数 | 55.47㎡ |
| 間取り | 1SLDK |
| 所在階 | 10階 |
| 物件登録日 | 2026/01/05 |
| 参考賃料 | 59.8万円 〜 60.8万円 |
|---|---|
| ㎡数 | 98.48㎡ |
| 間取り | 2LDK |
| 所在階 | 7階 |
| 物件登録日 | 2026/01/05 |
| 参考賃料 | 59.8万円 〜 60.8万円 |
|---|---|
| ㎡数 | 98.48㎡ |
| 間取り | 2LDK |
| 所在階 | 5階 |
| 物件登録日 | 2026/01/05 |
| 参考賃料 | 27.9万円 〜 28.9万円 |
|---|---|
| ㎡数 | 42.84㎡ |
| 間取り | 1LDK |
| 所在階 | 4階 |
| 物件登録日 | 2026/01/05 |
| 参考賃料 | 25.5万円 〜 26.5万円 |
|---|---|
| ㎡数 | 41.23㎡ |
| 間取り | 1R |
| 所在階 | 14階 |
| 物件登録日 | 2026/01/05 |
| 参考賃料 | 29.2万円 〜 30.2万円 |
|---|---|
| ㎡数 | 44.8㎡ |
| 間取り | 1R |
| 所在階 | 16階 |
| 物件登録日 | 2026/01/05 |
| 参考賃料 | 28.0万円 〜 29.0万円 |
|---|---|
| ㎡数 | 42.53㎡ |
| 間取り | 1K |
| 所在階 | 16階 |
| 物件登録日 | 2026/01/05 |
| 参考賃料 | 24.5万円 〜 25.5万円 |
|---|---|
| ㎡数 | 42.53㎡ |
| 間取り | 1K |
| 所在階 | 5階 |
| 物件登録日 | 2026/01/05 |
| 参考賃料 | 28.2万円 〜 29.2万円 |
|---|---|
| ㎡数 | 43.07㎡ |
| 間取り | 1R |
| 所在階 | 14階 |
| 物件登録日 | 2026/01/05 |
| 参考賃料 | 36.4万円 〜 37.4万円 |
|---|---|
| ㎡数 | 55.47㎡ |
| 間取り | 1SLDK |
| 所在階 | 16階 |
| 物件登録日 | 2026/01/05 |
| 参考賃料 | 48.1万円 〜 49.1万円 |
|---|---|
| ㎡数 | 73.72㎡ |
| 間取り | 1LDK |
| 所在階 | 21階 |
| 物件登録日 | 2026/01/05 |
| 参考賃料 | 53.1万円 〜 54.1万円 |
|---|---|
| ㎡数 | 85.64㎡ |
| 間取り | 2LDK |
| 所在階 | 16階 |
| 物件登録日 | 2025/12/23 |
| 参考賃料 | 30.6万円 〜 31.6万円 |
|---|---|
| ㎡数 | 47.06㎡ |
| 間取り | 1LDK |
| 所在階 | 15階 |
| 物件登録日 | 2025/12/16 |
| 参考賃料 | 27.3万円 〜 28.3万円 |
|---|---|
| ㎡数 | 41.23㎡ |
| 間取り | 1R |
| 所在階 | 14階 |
| 物件登録日 | 2025/12/16 |
| 参考賃料 | 40.5万円 〜 41.5万円 |
|---|---|
| ㎡数 | 62.86㎡ |
| 間取り | 1LDK |
| 所在階 | 12階 |
| 物件登録日 | 2025/12/16 |
| 参考賃料 | 25.4万円 〜 26.4万円 |
|---|---|
| ㎡数 | 41.23㎡ |
| 間取り | 1R |
| 所在階 | 3階 |
| 物件登録日 | 2025/12/16 |
| 参考賃料 | 28.6万円 〜 29.6万円 |
|---|---|
| ㎡数 | 45.25㎡ |
| 間取り | 1LDK |
| 所在階 | 19階 |
| 物件登録日 | 2025/12/16 |
| 参考賃料 | 27.6万円 〜 28.6万円 |
|---|---|
| ㎡数 | 42.53㎡ |
| 間取り | 1K |
| 所在階 | 17階 |
| 物件登録日 | 2025/12/16 |
| 参考賃料 | 35.3万円 〜 36.3万円 |
|---|---|
| ㎡数 | 55.53㎡ |
| 間取り | 1LDK |
| 所在階 | 15階 |
| 物件登録日 | 2025/12/15 |
| 参考賃料 | 39.4万円 〜 40.4万円 |
|---|---|
| ㎡数 | 62.86㎡ |
| 間取り | 1LDK |
| 所在階 | 2階 |
| 物件登録日 | 2025/12/09 |
| 参考賃料 | 37.5万円 〜 38.5万円 |
|---|---|
| ㎡数 | 62.86㎡ |
| 間取り | 1LDK |
| 所在階 | 5階 |
| 物件登録日 | 2025/12/09 |
| 参考賃料 | 55.7万円 〜 56.7万円 |
|---|---|
| ㎡数 | 85.64㎡ |
| 間取り | 2LDK |
| 所在階 | 8階 |
| 物件登録日 | 2025/12/07 |
| 参考賃料 | 36.3万円 〜 37.3万円 |
|---|---|
| ㎡数 | 55.47㎡ |
| 間取り | 1LDK |
| 所在階 | 10階 |
| 物件登録日 | 2025/12/04 |
| 参考賃料 | 27.7万円 〜 28.7万円 |
|---|---|
| ㎡数 | 42.51㎡ |
| 間取り | 1SK |
| 所在階 | 11階 |
| 物件登録日 | 2025/12/03 |
| 参考賃料 | 64.6万円 〜 65.6万円 |
|---|---|
| ㎡数 | 98.48㎡ |
| 間取り | 2LDK |
| 所在階 | 7階 |
| 物件登録日 | 2025/12/03 |
| 参考賃料 | 26.9万円 〜 27.9万円 |
|---|---|
| ㎡数 | 41.23㎡ |
| 間取り | 1LDK |
| 所在階 | 4階 |
| 物件登録日 | 2025/10/27 |
| 参考賃料 | 55.6万円 〜 56.6万円 |
|---|---|
| ㎡数 | 85.04㎡ |
| 間取り | 2LDK |
| 所在階 | 25階 |
| 物件登録日 | 2025/10/27 |
| 参考賃料 | 28.0万円 〜 29.0万円 |
|---|---|
| ㎡数 | 42.84㎡ |
| 間取り | 1LDK |
| 所在階 | 14階 |
| 物件登録日 | 2025/10/23 |
物件アーカイブ 過去に募集された部屋一覧
| 参考賃料 | 35.8万円 〜 36.8万円 |
|---|---|
| ㎡数 | 59.79㎡ |
| 間取り | 1LDK |
| 所在階 | 3階 |
| 物件登録日 | 2026/01/28 |
| 参考賃料 | 37.6万円 〜 38.6万円 |
|---|---|
| ㎡数 | 59.79㎡ |
| 間取り | 1LDK |
| 所在階 | 3階 |
| 物件登録日 | 2025/12/16 |
| 参考賃料 | 39.3万円 〜 40.3万円 |
|---|---|
| ㎡数 | 59.79㎡ |
| 間取り | 1LDK |
| 所在階 | 4階 |
| 物件登録日 | 2025/11/10 |
| 参考賃料 | 24.2万円 〜 25.2万円 |
|---|---|
| ㎡数 | 37.04㎡ |
| 間取り | 1R |
| 所在階 | 3階 |
| 物件登録日 | 2025/09/28 |
| 参考賃料 | 39.0万円 〜 40.0万円 |
|---|---|
| ㎡数 | 59.79㎡ |
| 間取り | 1LDK |
| 所在階 | 2階 |
| 物件登録日 | 2025/06/21 |
| 参考賃料 | 36.8万円 〜 37.8万円 |
|---|---|
| ㎡数 | 56.39㎡ |
| 間取り | 1LDK |
| 所在階 | 2階 |
| 物件登録日 | 2025/05/26 |
| 参考賃料 | 23.8万円 〜 24.8万円 |
|---|---|
| ㎡数 | 37.04㎡ |
| 間取り | 1R |
| 所在階 | 4階 |
| 物件登録日 | 2024/08/30 |
| 参考賃料 | 37.0万円 〜 38.0万円 |
|---|---|
| ㎡数 | 56.39㎡ |
| 間取り | 1LDK |
| 所在階 | 4階 |
| 物件登録日 | 2024/01/22 |
| 参考賃料 | 34.2万円 〜 35.2万円 |
|---|---|
| ㎡数 | 59.90㎡ |
| 間取り | 1LDK |
| 所在階 | 3階 |
| 物件登録日 | 2023/05/01 |
1. コンフォリア新宿イーストサイドタワーの6つの特徴
コンフォリア新宿タワーには以下の特徴があります。
- 高級マンションブランド「COMFORIA」シリーズの1つ
- 新宿区で共用施設が最も充実しているタワーマンションの1つ
- 最寄り駅から徒歩3分の便利な立地
- 24時間有人管理の安心セキュリティ
- 大切なペットと快適に暮らせる
- ホテルライクなサービスや施設が充実
その分、賃料は高めですが、これらに魅力を感じるなら、ぜひ前向きにご検討ください。
1-1. 高級マンションブランド「COMFORIA」シリーズの1つ
コンフォリア新宿タワーは、高級賃貸ブランドとして人気がある「COMFORIA」シリーズの1つです。
その中でもコンフォリア新宿タワーは、高級分譲マンションに匹敵する施設や設備が揃っているため、2012年の新築当時から常に人気の物件です。
ちなみに、過去に募集されたお部屋の賃料を間取りごとにまとめると、以下のようになります。
| 1R・1K | 1LDK | 2LDK |
| 20~25万円 | 24~46万円 | 35~88万円 |
1-2. 新宿区で共用施設が最も充実しているタワーマンションの1つ
コンフォリア新宿タワーの1番の魅力とも言えるのが、以下の豪華な共用施設の数々です。
| フォレストラウンジ | クラブラウンジ |
![]() |
![]() |
| フィットネスジム | プール |
![]() |
![]() |
| 画像引用元:東急 | |
新宿エリアにはタワーマンションが多くありますが、コンフォリア新宿タワーの共用施設の数はトップクラスです。
下記は、コンフォリア新宿タワーにある、共用施設の一覧です。
- フォレストラウンジ(カフェレストラン)
- クラブラウンジ(バーラウンジ)
- フォレストギャラリー
- ボードルームA/B(会議室)
- コーチラウンジ
- ゲストルーム
- プール
- フィットネスジム
- スパ(大浴場)
- ドライ&ミストサウナ
- ゴルフレンジ
- シミュレーションゴルフ
- カラオケ
- 屋上テラス
- 屋上デッキ
- シガーバー
- ランドリールーム
- バレーパーキング
- 洗車サービス
- ペット用足洗い場
数が多いだけでなく、高級ホテルのような豪華な施設なので、何度内見に行っても驚かされます。
新宿エリアにある他のタワーマンションとの比較
| マンション名 | 共用施設の数 |
| 富久クロスコンフォートタワー | 27 |
| コンフォリア新宿イーストサイドタワー | 20 |
| セントラルパークタワー・ラ・トゥール新宿 | 11 |
| コンシェリア西新宿タワーズウエスト | 9 |
1-3. 最寄り駅から徒歩3分の便利な立地
コンフォリア新宿タワーは、最寄り駅の「東新宿駅」A3出口から徒歩3分と、便利な立地にあるマンションです。
東新宿駅には、大江戸線と副都心線が通っていますので、都心だけでなく、埼玉や神奈川方面への移動も便利です。
その他にも、「新宿三丁目駅」E1出口から徒歩5分、「新宿駅」A8出口から徒歩11分と、複数の駅や路線を利用することもできます。
引用:Google Map
使う路線によっては駅中を歩くことになる
最寄り駅の「東新宿駅」から副都心線を使うときは、A3出口からホームまで「2~3分」駅中を歩くことになります。
以下のように、副都心線のホームまでは距離があることに加え、地下6Fまで降りることになるので注意しましょう。
画像引用元:東京都交通局
タクシー移動にも便利な立地
マンションは新宿エリアということもあり、タクシーを使うときも便利です。
都心の主要エリアからマンションまで、タクシーをご利用いただいた場合の目安時間と料金は以下の通りです。
| エリア | 通常料金(深夜料金) | 時間 |
| 池袋駅 | 1,620円(1,940円) | 約20分 |
| 渋谷駅 | 1,940円(2,340円) | 約20分 |
| 六本木駅 | 2,260円(2,740円) | 約20分 |
| 東京駅 | 2,900円(3,460円) | 約20~30分 |
| 銀座駅 | 3,380円(4,020円) | 約30分 |
| 品川駅 | 4,020円(4,740円) | 約30~40分 |
1-4. 24時間有人管理の安心セキュリティ
コンフォリア新宿タワーには、管理員が24時間常駐し、住まう方々の日々を見守ります。『いざという時』の迅速な対応はもちろん、防犯面でも頼れる存在がいる暮らしは、何物にも代えがたい安心感につながります。
また、エントランスとエレベーターホールの2箇所にオートロックが設置されているので、部外者に侵入されるリスクが限りなく低いです。
さらに、建物1階には交番がありますので、緊急時もすぐに警察官が駆けつけることができます。
1-5. 大切なペットと快適に暮らせる
コンフォリア新宿タワーは、敷金を1ヶ月分多く預けることで、下記のペットを2匹まで飼うことができます。
- 小型犬
- 猫
なお、マンションの設備としてペット用の足洗い場が用意されているので、散歩帰りなど便利に利用できます。
画像引用元:東急
動物病院やペットサロンも充実
マンションから歩いて6分の場所に「新宿動物病院」がありますので、ペットの体調が優れないときでも安心です。
また、歩いて10分の場所にホテルやトリミングのサービスを提供している「LOVE WOOF」というお店があるので、旅行や出張のとき便利に利用できます。
1-6. ホテルライクなサービスや施設が充実
コンフォリア新宿タワーでは、ホテルに宿泊してるような下記のサービスを受けることができます。
- フロントコンシェルジュサービス(7:00~23:00)
- バレーパーキングサービス(24時間)
- Wi-Fiネットワーク(共用施設内)
- サービス洗車(月1回まで無料)
- 朝食ビュッフェ(500円〜)
- レストランダイニング
- ルームサービス
- カフェ・バー
上記のバレーパーキングは、係の人が車の入出庫を代行してくれる便利なサービスです。
都心でもバレーパーキングを導入しているマンションはごく僅かなので、高級マンションに相応しいサービスと言えます。
外出先から帰宅したときも、コーチエントランスで係の人に車を任せて部屋に戻れるので、駐車の手間が一切かかりません。
家具家電付きの部屋もある
コンフォリア新宿タワーは、以下のような家具家電付きの部屋も用意されています。
画像引用元:東急
このように、身ひとつですぐに生活をスタートできるため、転勤などで都心のマンションを探している方や、外国籍の方にもピッタリです。
2. コンフォリア新宿イーストサイドタワーのエントランスや室内イメージ
コンフォリア新宿タワーの魅力をより具体的にイメージしていただけるよう、室内の様子と共用スペースを以下の4つのカテゴリに分けて写真でご紹介します。
2-1. エントランス
コンフォリア新宿タワーの1階には、広々とした高級感あるエントランスがあります。


また、地下1階にはバレーパーキングサービスで車を入出庫できる、コーチエントランスが用意されています。

2-2. 共用部
コンフォリア新宿タワーの共用部は高級感ある造りで、何度内見に行っても驚かされます。
以下の1階にあるフォレストラウンジは、カフェスペースとして気軽に利用することができます。
画像引用元:東急
なお、朝食ビュッフェが500円から用意されている点も人気があります。
そして、以下のフロントデスクにはコンシェルジュもおりますので、何かあれば対応してもらえます。

以下はエレベーターホールに続く共用廊下ですが、ラウンジとしても使えるおしゃれな造りの空間が広がります。



エントランスホールの奥には、2つ目のオートロックが設置されています。

2つ目のオートロックの奥には、エレベーターホールが用意されています。


ちなみに、マンションのエレベーターは「50戸に対して1基」が理想とされています。
コンフォリア新宿タワーの居住階へ停まるエレベーターは「761戸に対して6基」ということから、時間帯によっては混雑する場合があるでしょう。
ちなみに、共用施設が揃った32階へ直通のエレベーターも用意されています。
共用廊下も上品な仕上がり
エレベーターホールから玄関までは、ホテルライクな内廊下仕様となっています。


クラブイーストサイド
32階の「クラブイーストサイド」には、プールやバーラウンジなどの豪華な施設が揃っていて、有料で利用することができます。
以下は、クラブイーストサイドサイドに用意されている各種施設です。
| クラブラウンジ | プール |
![]() |
![]() |
| フィットネスジム | スパ&リラクゼーション |
![]() |
![]() |
| ゴルフレンジ | シミュレーションゴルフ&カラオケ |
![]() |
![]() |
| テラス | デッキ |
![]() |
![]() |
| 画像引用元:東急 | |
これだけの施設をマンション内で気軽に利用できるので、わざわざ外部の施設を利用する必要もありません。
また、クラブイーストサイドは未成年の利用が不可ですので、大人だけの優雅で快適な時間を過ごすことができます。
2-3. 室内イメージ
モデルルームは以下のイメージです。(モデルルームですので、実際の内容とは異なる可能性があります。)
![]() |
![]() |
![]() |
![]() |
![]() |
![]() |
![]() |
![]() |
| 画像引用元:東急 | |
キッチンや浴室などの水回り設備も、以下のような洗練された造りです。
| キッチン | 浴室 |
![]() |
![]() |
| 洗面所 | トイレ |
![]() |
![]() |
| 画像引用元:HOME’S | |
室内の素材や雰囲気は、お部屋によって異なります。必ず内見でご確認ください。
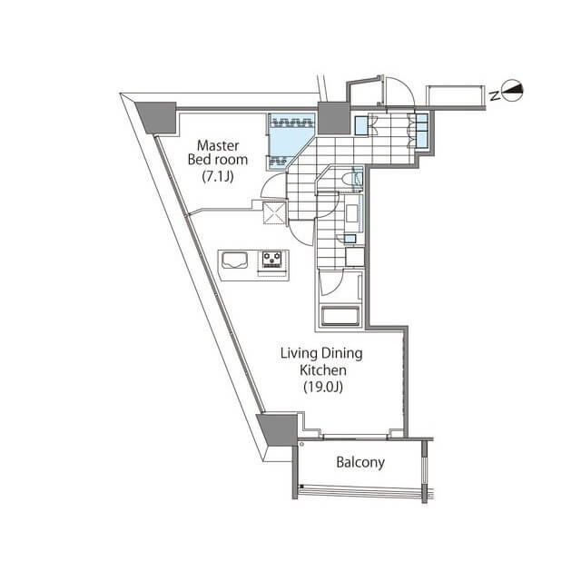
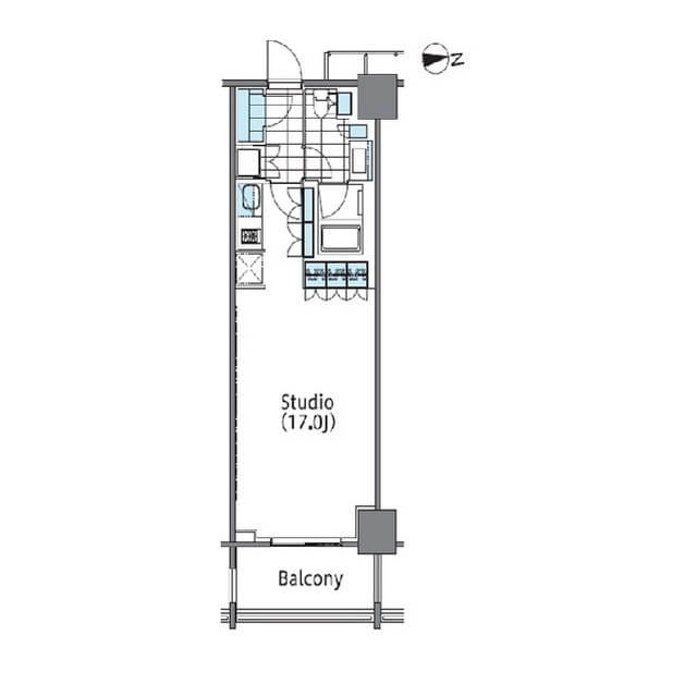
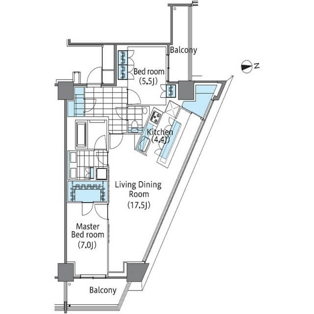
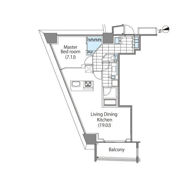
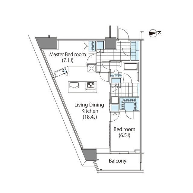
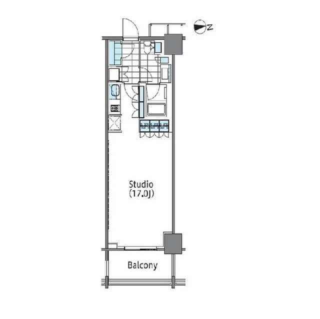
2-4. 間取り
現在募集中の部屋がない場合もございますが、コンフォリア新宿タワーの代表的な部屋の間取りをご紹介します。
1R/1K
![]() |
![]() |
| 42.84㎡(1R) | 42.51㎡(1K) |
1LDK/1SLDK
![]() |
![]() |
| 40.27㎡ | 61.22㎡ |
2LDK
![]() |
![]() |
| 71.99㎡ | 103.33㎡ |
プレミアム住戸
![]() |
![]() |
| 124.08㎡ (ジャグジー付) | 124.08㎡ (プライベートガーデン付住戸) |
| 間取り図の引用元:東急 | |
3. コンフォリア新宿イーストサイドタワーの交通情報・周辺環境
コンフォリア新宿タワーの周辺の駅やコンビニなどをマップにまとめると以下の通りになります。
引用:Google Map
徒歩圏内に新宿エリアが広がっているので、日常的によく使うお店などがとても充実しています。
3-1. 交通アクセスについて
コンフォリア新宿タワーの周辺にある5つの駅からは、下記の15路線を利用することができます。
| 駅名 | 分数 | 路線 |
| 東新宿駅 | 3分 |
|
| 新宿三丁目駅 | 5分 |
|
| 新宿駅 | 11分 |
|
| 西武新宿駅 | 11分 |
|
| 若松河田駅 | 13分 |
|
どれも都心の中心地を走る路線なので、都心内の移動で不便に感じることが少ない立地と言えるでしょう。
路線バスも便利
電車以外にも、建物横の「明治通り」には路線バスが数多く通っています。
以下のように、一番近い①のバス停はマンションから徒歩1分なので、行き先によっては電車より便利に使えることもあるでしょう。

下記は、マンション周辺に4つあるバス停からの行き先を示したものです。
| ① | ② | ③ | ④ |
|
|
|
|
3-2. 周辺のコンビニやスーパー・薬局について
コンフォリア新宿タワー周辺にはコンビニなどが充実していて、日々の生活も便利です。
まず、コンフォリア新宿タワーの1階には、24時間営業のスーパー「マルエツ」があります。
画像引用元:東急
また、建物横の「新宿イーストサイドスクエア」というビルの中には、ドラッグストアの「ぱぱす」が入っています。
そして、400m(徒歩5分目安)以内には、以下のように複数のスーパーやコンビニが近くにあります。
|
・コンビニ |
|
|
・スーパー |
|
|
・ドラッグストア |
|
3-3. 飲食店について
コンフォリア新宿タワー周辺は、飲食店も充実しています。
まず、コンフォリア新宿タワー内には、以下のような飲食店があり、建物の外に出なくても食事などを済ませられます。
- カフェ
- レストラン
- ダイニングバー
また、隣にある「新宿イーストサイドスクエア」にも、下記のような飲食店が豊富に揃っています。
- 天丼屋
- 定食屋
- 寿司屋
- カフェ
- イタリアン
- 中華料理
こちらには一人でも気軽に立ち寄れるお店が多く、日常利用もしやすいので、私も近くに行った際はよく利用しています。
マンション周辺のその他のグルメ情報
その他、以下のようにチェーンの飲食店も周辺にあります。
|
・ファミレス |
|
|
・軽飲食 |
|
|
・カフェ |
|
3-4. 学区域や保育園について
コンフォリア新宿タワーの学区域は以下の通りです。(※学区域は変更になる場合があります。最新の情報は、各区教育委員会のウェブサイト等でご確認ください。)
| 小学校 | 中学校 |
| 大久保小学校 | 新宿中学校 |
| 徒歩8分 | 徒歩4分 |
保育園について
マンションから歩いて3分の場所に「フロンティキッズ新宿」があるので、入園できれば共働きで忙しいご家庭の負担も減るでしょう。
この他にも周辺には複数の保育園があるため、お子さまの預け先を比較的検討しやすいエリアと言えるでしょう。
引用:Google Map
3-5. 周辺の治安について
新宿の歌舞伎町などに近いエリアなので、治安には要注意です。
以下のマップは、2022年の1年間を通して、犯罪(自転車盗難なども含む)が合計で何件発生したのかを示したものです。
引用:警視庁犯罪情報マップ
コンフォリア新宿タワーの周辺は犯罪が多い赤色で色分けされていて、23区内の中でも治安が悪いエリアと言えます。
周辺は栄えていて便利ではあるものの、治安の面は避けて通れないので、きちんと検討して決めるようにしましょう。
ただ、マンションの周辺には複数の交番や警察署があるので、いざという時には心強く、安心感を与えてくれます。
コンフォリア新宿タワーの入り口付近
以下の写真の通り、マンション前には歩道も整備されているので、お子さま連れでも安心です。

3-6. 洪水などによる浸水リスクについて
ハザードマップ上、最大規模の氾濫時でも浸水リスクはないとされており、安心してお住まいいただけます。(※ハザードマップは変更されるケースがあります。最新の情報は、各自治体のウェブサイト等でご確認ください。)
4. その他の特徴や注意点(審査難易度・事故情報など)
その他に、ここまでに挙げきれなかった、以下11個のコンフォリア新宿タワーの特徴や注意点を紹介します。
- アネックス棟はビジネス向き
- 駐車場が使える
- 各階で24時間ゴミ出しができる
- 楽器の演奏ができる
- 審査難易度は厳しい
- 保証会社利用が必須
- 定期借家契約について
- 事故物件情報は1件あり
- 契約時の諸費用について
- 申し込むときは内見が必須
- 短期解約のペナルティあり
4-1. アネックス棟はビジネス向き
コンフォリア新宿タワーの横にある「アネックス棟」は、ビジネス向きのSOHOマンションです。
SOHOは「住居兼事務所」のことを指し、個人または少人数で事務所として利用する人たちが使用しています。
ですので、マンション名が「コンフォリア新宿イーストサイドタワーアネックス」となっていたら、タワー棟ではないので注意しましょう。
4-2. 駐車場が使える
コンフォリア新宿タワーには駐車場が用意されています。
空き状況にもよりますが、機械式パーキングが利用可能で「47,300~55,000円(税込)/月」が賃料の目安です。
駐車場のサイズは以下の通りです。お借りになる際は、車検証でサイズを必ずご確認ください。
- 全長:5,000~5,300mm
- 全幅:1,850~1,910mm
- 全高:1,550~2,050mm
- 重量:2,300~2,500kg
- 最低地上高:110mm
駐輪場とバイク置き場について
コンフォリア新宿タワーには駐輪場とバイク置き場があり、賃料の目安は下記の通りです。
- 駐輪場:220~440円(税込)/月
- バイク置き場:5,500円(税込)/月
4-3. 各階で24時間ゴミ出しができる
各階にゴミ捨て場がありますので、24時間365日ゴミを捨てることができます。
粗大ゴミは所定の場所まで運ぶ必要がありますが、コンシェルジュデスクで粗大ゴミシールを購入できるので便利です。
また、ディスポーザーが付いている部屋であれば、生ゴミの処理も非常に楽です。
4-4. 楽器の演奏ができる
コンフォリア新宿タワーは、オーナー様が楽器演奏を許可しているお部屋に限り、楽器演奏が可能です。
ただし、楽器の種類や演奏時間には規定がございます。後のトラブルを避けるためにも、ご希望の条件での演奏が可能か、ご契約前に必ず確認しましょう。
4-5. 審査難易度は厳しい
結論、コンフォリア新宿タワーの審査は厳しいです。
エリア柄、水商売の人や内容が不透明なお仕事の方からの申し込みも多いため、審査の精度を高めて基準を厳しくしています。
また、アリバイ会社などを使った嘘の申請では通らないので、そのような会社を使う人は別の物件を検討しましょう。
4-6. 保証会社の利用が必須
コンフォリア新宿タワーに入居するには、連帯保証人の有無に関係なく、保証会社の利用が必須です。(大手法人契約を除く)
料金は、契約時に総賃料の40%を支払い、2年目以降は1年毎に12,000円の更新料を支払う必要があります。
また、利用する会社は「SBIギャランティ」という審査に厳しい保証会社です。
4-7. 定期借家契約について
コンフォリア新宿タワーは、期間限定の契約となる、「定期借家契約」を結びます。
期間限定と言っても、基本的には一般的な更新のように、再契約を結ぶことで、2年後も継続して住み続けることができます。
ただ、契約期間中に家賃を滞納したりすると、再契約できず退去を求められる可能性もあるので注意しましょう。
また、再契約時には、近隣相場に合わせて賃料が変更になる可能性もあります。
4-8. 事故物件情報は1件あり
事故情報(過去の事件や事故)を「事故物件検索サイト(https://www.oshimaland.co.jp/)」やTwitterなどのSNS、Google検索で調べました。
その結果、事故物件検索サイト(https: //www.oshimaland.co.jp/)に下記の情報がありました。
| 事故内容 | 時期 | 部屋 |
| 転落死 | 2015年 | 不明 |
部屋が不明ですが、直近の事故に関しては入居者に伝える義務がありますから、気になる方は契約時などに確認すれば教えてもらえます。
4-9. 契約時の諸費用について
契約する部屋によって金額は異なりますが、契約時には下記の費用がかかるケースが多いです。
| 火災保険料 | 鍵交換費用 |
| 8,200円※ | 22,000円(税込) |
| ※1. 入居人数や補償対象とする家財の金額によりプラン料金の変動があります。 | |
4-10. 申し込むときは内見が必須
コンフォリア新宿タワーに申し込むときは、必ず内見しなければいけません。
現地に駐在しているスタッフに室内や共用施設を案内してもらい、申込書をもらった段階で、はじめて申し込むことができます。
また、共用施設を内見するときは1時間近くお時間かかるので、休日など、時間に余裕がある日に内見することをおすすめします。
4-11. 短期解約のペナルティあり
コンフォリア新宿タワーの部屋を契約してから1年未満で解約すると、賃料1ヶ月分の違約金を支払うペナルティがあります。
ですので、短期間の入居を希望する場合は注意しましょう。
なお、1年以上契約していれば、いつ解約してもペナルティはありません。
5. まとめ
ここまでをまとめると、コンフォリア新宿イーストサイドタワーは、「賃料は高いが、それに見合った高いスペックのマンション」です。
これらの特徴を踏まえると、以下に当てはまる方には特におすすめしたい物件です。
- 人気の高級ブランドマンションに住みたい
- タワーマンションならではの豪華な施設を堪能したい
- 駅からの近さも重視している
- セキュリティ面も重視したい
- ペットとの暮らしを大切にしたい
- ホテルのように暮らせる家を探している
改めて、これまでに募集されたお部屋の情報は以下の通りです。 気になるお部屋がありましたら、どうぞお気軽にご連絡ください。お待ちしております。
上段:タワー棟|下段:アネックス棟(SOHO区画)
物件アーカイブ 過去に募集された部屋一覧
| 参考賃料 | 27.7万円 〜 28.7万円 |
|---|---|
| ㎡数 | 42.51㎡ |
| 間取り | 1R |
| 所在階 | 11階 |
| 物件登録日 | 2026/02/09 |
| 参考賃料 | 27.4万円 〜 28.4万円 |
|---|---|
| ㎡数 | 41.99㎡ |
| 間取り | 1LDK |
| 所在階 | 5階 |
| 物件登録日 | 2026/02/09 |
| 参考賃料 | 27.5万円 〜 28.5万円 |
|---|---|
| ㎡数 | 41.23㎡ |
| 間取り | 1R |
| 所在階 | 14階 |
| 物件登録日 | 2026/02/09 |
| 参考賃料 | 27.9万円 〜 28.9万円 |
|---|---|
| ㎡数 | 42.84㎡ |
| 間取り | 1LDK |
| 所在階 | 3階 |
| 物件登録日 | 2026/02/09 |
| 参考賃料 | 26.4万円 〜 27.4万円 |
|---|---|
| ㎡数 | 41.23㎡ |
| 間取り | 1R |
| 所在階 | 14階 |
| 物件登録日 | 2026/02/09 |
| 参考賃料 | 38.2万円 〜 39.2万円 |
|---|---|
| ㎡数 | 62.86㎡ |
| 間取り | 1LDK |
| 所在階 | 2階 |
| 物件登録日 | 2026/02/09 |
| 参考賃料 | 53.1万円 〜 54.1万円 |
|---|---|
| ㎡数 | 85.64㎡ |
| 間取り | 2LDK |
| 所在階 | 16階 |
| 物件登録日 | 2026/02/09 |
| 参考賃料 | 52.7万円 〜 53.7万円 |
|---|---|
| ㎡数 | 85.64㎡ |
| 間取り | 2LDK |
| 所在階 | 8階 |
| 物件登録日 | 2026/02/09 |
| 参考賃料 | 65.8万円 〜 66.8万円 |
|---|---|
| ㎡数 | 100.35㎡ |
| 間取り | 2LDK |
| 所在階 | 20階 |
| 物件登録日 | 2026/02/09 |
| 参考賃料 | 48.0万円 〜 49.0万円 |
|---|---|
| ㎡数 | 73.72㎡ |
| 間取り | 2LDK |
| 所在階 | 6階 |
| 物件登録日 | 2026/02/07 |
| 参考賃料 | 39.4万円 〜 40.4万円 |
|---|---|
| ㎡数 | 62.86㎡ |
| 間取り | 1LDK |
| 所在階 | 3階 |
| 物件登録日 | 2026/02/06 |
| 参考賃料 | 48.1万円 〜 49.1万円 |
|---|---|
| ㎡数 | 73.72㎡ |
| 間取り | 1LDK |
| 所在階 | 21階 |
| 物件登録日 | 2026/01/28 |
| 参考賃料 | 27.1万円 〜 28.1万円 |
|---|---|
| ㎡数 | 41.23㎡ |
| 間取り | 1R |
| 所在階 | 13階 |
| 物件登録日 | 2026/01/28 |
| 参考賃料 | 56.0万円 〜 57.0万円 |
|---|---|
| ㎡数 | 86.03㎡ |
| 間取り | 1LDK |
| 所在階 | 28階 |
| 物件登録日 | 2026/01/28 |
| 参考賃料 | 39.8万円 〜 40.8万円 |
|---|---|
| ㎡数 | 62.86㎡ |
| 間取り | 1LDK |
| 所在階 | 14階 |
| 物件登録日 | 2026/01/28 |
| 参考賃料 | 48.8万円 〜 49.8万円 |
|---|---|
| ㎡数 | 74.54㎡ |
| 間取り | 1LDK |
| 所在階 | 25階 |
| 物件登録日 | 2026/01/28 |
| 参考賃料 | 27.9万円 〜 28.9万円 |
|---|---|
| ㎡数 | 42.84㎡ |
| 間取り | 1LDK |
| 所在階 | 6階 |
| 物件登録日 | 2026/01/28 |
| 参考賃料 | 27.7万円 〜 28.7万円 |
|---|---|
| ㎡数 | 42.51㎡ |
| 間取り | 1LDK |
| 所在階 | 3階 |
| 物件登録日 | 2026/01/21 |
| 参考賃料 | 28.2万円 〜 29.2万円 |
|---|---|
| ㎡数 | 44.8㎡ |
| 間取り | 1R |
| 所在階 | 4階 |
| 物件登録日 | 2026/01/20 |

































