コンシェリア西新宿タワーズウエスト(以下、コンシェリア西新宿タワー)について、下記8つの方法で事故物件(飛び降り、転落、自殺、火災、孤独死、不審死、事件)かどうかを徹底的にリサーチしたところ、事故の情報が1件ありました。
- 事故物件検索サイト(https://www.oshimaland.co.jp/)
- Youtube
- Google検索
- マンション掲示板(https://www.e-mansion.co.jp)
- 5ちゃんねる(https://5ch.net)
- その他データベース
事故の詳細は以下の通りとなっています。
| 事故内容 | 時期 | 部屋 |
| 傷害致死 | 平成24年 | 2010号室 |
直近の事故に関しては入居者に伝える義務がありますから、気になる方は不動産会社の担当者に確認しましょう。
なお、過去に事故などがあったお部屋について、不動産会社や大家さんには次の入居者様へお伝えする義務(告知義務)があります。しかし、その後に一人でも入居者がいた場合は、告知義務の対象外となる点には注意が必要です。
お部屋のことで気になる点があれば、ご遠慮なくご質問ください。お客様が安心して選べるよう、私たちが責任を持ってお調べします。
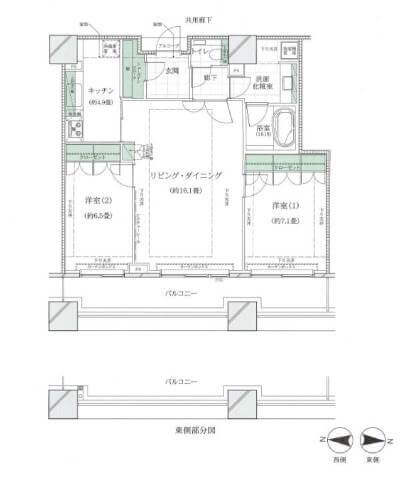
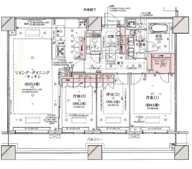
また、コンシェリア西新宿タワーで募集されていた部屋は以下のとおりです。新しい順に並んでいますが、詳しい募集時期は「物件登録日」をご覧ください。
物件アーカイブ 過去に募集された部屋一覧
| 参考賃料 | 16.8万円 〜 18.0万円 |
|---|---|
| ㎡数 | 37.45㎡ |
| 間取り | 1K |
| 所在階 | 11階 |
| 物件登録日 | 2026/05/20 |
| 参考賃料 | 30.2万円 〜 32.0万円 |
|---|---|
| ㎡数 | 55.11㎡ |
| 間取り | 1LDK |
| 所在階 | 19階 |
| 物件登録日 | 2026/05/11 |
| 参考賃料 | 27.2万円 〜 29.0万円 |
|---|---|
| ㎡数 | 55.16㎡ |
| 間取り | 1LDK |
| 所在階 | 8階 |
| 物件登録日 | 2026/05/11 |
| 参考賃料 | 26.7万円 〜 28.5万円 |
|---|---|
| ㎡数 | 55.11㎡ |
| 間取り | 1LDK |
| 所在階 | 8階 |
| 物件登録日 | 2026/05/11 |
| 参考賃料 | 29.7万円 〜 31.5万円 |
|---|---|
| ㎡数 | 55.16㎡ |
| 間取り | 1LDK |
| 所在階 | 24階 |
| 物件登録日 | 2026/02/10 |
| 参考賃料 | 17.8万円 〜 18.8万円 |
|---|---|
| ㎡数 | 37.45㎡ |
| 間取り | 1K |
| 所在階 | 20階 |
| 物件登録日 | 2026/01/31 |
| 参考賃料 | 25.8万円 〜 26.8万円 |
|---|---|
| ㎡数 | 55.11㎡ |
| 間取り | 1LDK |
| 所在階 | 20階 |
| 物件登録日 | 2026/01/31 |
| 参考賃料 | 27.7万円 〜 29.5万円 |
|---|---|
| ㎡数 | 55.16㎡ |
| 間取り | 1LDK |
| 所在階 | 23階 |
| 物件登録日 | 2026/01/20 |
| 参考賃料 | 26.7万円 〜 28.5万円 |
|---|---|
| ㎡数 | 55.11㎡ |
| 間取り | 1LDK |
| 所在階 | 7階 |
| 物件登録日 | 2026/01/09 |
| 参考賃料 | 17.2万円 〜 18.2万円 |
|---|---|
| ㎡数 | 37.02㎡ |
| 間取り | 1K |
| 所在階 | 20階 |
| 物件登録日 | 2026/01/05 |
| 参考賃料 | 60.0万円 〜 61.0万円 |
|---|---|
| ㎡数 | 106.96㎡ |
| 間取り | 3LDK |
| 所在階 | 44階 |
| 物件登録日 | 2025/11/21 |
| 参考賃料 | 14.9万円 〜 16.5万円 |
|---|---|
| ㎡数 | 37.45㎡ |
| 間取り | 1K |
| 所在階 | 16階 |
| 物件登録日 | 2025/11/20 |
| 参考賃料 | 39.0万円 〜 41.0万円 |
|---|---|
| ㎡数 | 77.51㎡ |
| 間取り | 2LDK |
| 所在階 | 34階 |
| 物件登録日 | 2025/10/07 |
| 参考賃料 | 35.0万円 〜 36.8万円 |
|---|---|
| ㎡数 | 59.93㎡ |
| 間取り | 2LDK |
| 所在階 | 33階 |
| 物件登録日 | 2025/09/22 |
| 参考賃料 | 33.0万円 〜 34.8万円 |
|---|---|
| ㎡数 | 55.11㎡ |
| 間取り | 1LDK |
| 所在階 | 18階 |
| 物件登録日 | 2025/09/22 |
| 参考賃料 | 30.2万円 〜 32.0万円 |
|---|---|
| ㎡数 | 55.16㎡ |
| 間取り | 1LDK |
| 所在階 | 13階 |
| 物件登録日 | 2025/09/02 |
| 参考賃料 | 33.0万円 〜 35.0万円 |
|---|---|
| ㎡数 | 59.93㎡ |
| 間取り | 1LDK |
| 所在階 | 34階 |
| 物件登録日 | 2025/08/01 |
| 参考賃料 | 27.2万円 〜 29.0万円 |
|---|---|
| ㎡数 | 55.16㎡ |
| 間取り | 1LDK |
| 所在階 | 19階 |
| 物件登録日 | 2025/07/28 |
| 参考賃料 | 29.2万円 〜 31.0万円 |
|---|---|
| ㎡数 | 55.01㎡ |
| 間取り | 1LDK |
| 所在階 | 26階 |
| 物件登録日 | 2025/07/27 |
| 参考賃料 | 16.8万円 〜 18.0万円 |
|---|---|
| ㎡数 | 37.45㎡ |
| 間取り | 1K |
| 所在階 | 11階 |
| 物件登録日 | 2025/07/22 |
| 参考賃料 | 16.8万円 〜 18.3万円 |
|---|---|
| ㎡数 | 34㎡ |
| 間取り | 1K |
| 所在階 | 12階 |
| 物件登録日 | 2025/07/03 |
| 参考賃料 | 21.0万円 〜 22.6万円 |
|---|---|
| ㎡数 | 37.45㎡ |
| 間取り | 1K |
| 所在階 | 17階 |
| 物件登録日 | 2025/06/27 |
| 参考賃料 | 16.8万円 〜 17.8万円 |
|---|---|
| ㎡数 | 37.02㎡ |
| 間取り | 1K |
| 所在階 | 5階 |
| 物件登録日 | 2025/06/05 |
| 参考賃料 | 35.0万円 〜 36.0万円 |
|---|---|
| ㎡数 | 77.51㎡ |
| 間取り | 2LDK |
| 所在階 | 33階 |
| 物件登録日 | 2025/05/30 |
| 参考賃料 | 26.2万円 〜 28.0万円 |
|---|---|
| ㎡数 | 55.16㎡ |
| 間取り | 1LDK |
| 所在階 | 21階 |
| 物件登録日 | 2025/04/19 |
| 参考賃料 | 35.0万円 〜 36.0万円 |
|---|---|
| ㎡数 | 77.5㎡ |
| 間取り | 2LDK |
| 所在階 | 37階 |
| 物件登録日 | 2025/03/27 |
| 参考賃料 | 17.0万円 〜 18.2万円 |
|---|---|
| ㎡数 | 37.45㎡ |
| 間取り | 1K |
| 所在階 | 12階 |
| 物件登録日 | 2025/03/25 |
| 参考賃料 | 29.1万円 〜 30.9万円 |
|---|---|
| ㎡数 | 55.16㎡ |
| 間取り | 1LDK |
| 所在階 | 18階 |
| 物件登録日 | 2025/03/25 |
| 参考賃料 | 27.2万円 〜 29.0万円 |
|---|---|
| ㎡数 | 55.16㎡ |
| 間取り | 1LDK |
| 所在階 | 16階 |
| 物件登録日 | 2025/03/03 |
| 参考賃料 | 17.6万円 〜 18.8万円 |
|---|---|
| ㎡数 | 37.45㎡ |
| 間取り | 1K |
| 所在階 | 15階 |
| 物件登録日 | 2025/02/25 |
| 参考賃料 | 27.0万円 〜 29.0万円 |
|---|---|
| ㎡数 | 55.01㎡ |
| 間取り | 1LDK |
| 所在階 | 25階 |
| 物件登録日 | 2025/01/08 |
| 参考賃料 | 37.0万円 〜 38.0万円 |
|---|---|
| ㎡数 | 82.22㎡ |
| 間取り | 2LDK |
| 所在階 | 28階 |
| 物件登録日 | 2025/01/06 |
| 参考賃料 | 24.0万円 〜 26.0万円 |
|---|---|
| ㎡数 | 55.01㎡ |
| 間取り | 1LDK |
| 所在階 | 21階 |
| 物件登録日 | 2024/12/10 |
| 参考賃料 | 26.2万円 〜 28.0万円 |
|---|---|
| ㎡数 | 55.16㎡ |
| 間取り | 1LDK |
| 所在階 | 24階 |
| 物件登録日 | 2024/11/28 |
| 参考賃料 | 26.7万円 〜 28.5万円 |
|---|---|
| ㎡数 | 55.01㎡ |
| 間取り | 1LDK |
| 所在階 | 26階 |
| 物件登録日 | 2024/11/26 |
| 参考賃料 | 15.2万円 〜 17.2万円 |
|---|---|
| ㎡数 | 37.45㎡ |
| 間取り | 1K |
| 所在階 | 7階 |
| 物件登録日 | 2024/10/31 |
| 参考賃料 | 15.0万円 〜 16.8万円 |
|---|---|
| ㎡数 | 37.45㎡ |
| 間取り | 1K |
| 所在階 | 5階 |
| 物件登録日 | 2024/10/15 |
| 参考賃料 | 30.0万円 〜 33.0万円 |
|---|---|
| ㎡数 | 77.51㎡ |
| 間取り | 2LDK |
| 所在階 | 29階 |
| 物件登録日 | 2024/09/30 |
| 参考賃料 | 26.2万円 〜 28.0万円 |
|---|---|
| ㎡数 | 55.11㎡ |
| 間取り | 1LDK |
| 所在階 | 24階 |
| 物件登録日 | 2024/09/26 |
| 参考賃料 | 24.6万円 〜 26.4万円 |
|---|---|
| ㎡数 | 55.16㎡ |
| 間取り | 1LDK |
| 所在階 | 7階 |
| 物件登録日 | 2024/09/26 |
| 参考賃料 | 26.4万円 〜 28.2万円 |
|---|---|
| ㎡数 | 55.01㎡ |
| 間取り | 1LDK |
| 所在階 | 25階 |
| 物件登録日 | 2024/09/11 |
| 参考賃料 | 25.9万円 〜 26.9万円 |
|---|---|
| ㎡数 | 55.11㎡ |
| 間取り | 1LDK |
| 所在階 | 6階 |
| 物件登録日 | 2024/08/30 |
| 参考賃料 | 34.5万円 〜 35.5万円 |
|---|---|
| ㎡数 | 59.93㎡ |
| 間取り | 1LDK |
| 所在階 | 35階 |
| 物件登録日 | 2024/08/27 |
| 参考賃料 | 39.0万円 〜 42.0万円 |
|---|---|
| ㎡数 | 82.22㎡ |
| 間取り | 2LDK |
| 所在階 | 37階 |
| 物件登録日 | 2024/08/02 |
| 参考賃料 | 26.8万円 〜 28.6万円 |
|---|---|
| ㎡数 | 55.11㎡ |
| 間取り | 1LDK |
| 所在階 | 22階 |
| 物件登録日 | 2024/07/09 |
| 参考賃料 | 27.2万円 〜 29.0万円 |
|---|---|
| ㎡数 | 55.01㎡ |
| 間取り | 1LDK |
| 所在階 | 23階 |
| 物件登録日 | 2024/07/09 |
| 参考賃料 | 26.7万円 〜 28.5万円 |
|---|---|
| ㎡数 | 55.11㎡ |
| 間取り | 1LDK |
| 所在階 | 19階 |
| 物件登録日 | 2024/07/09 |
| 参考賃料 | 27.0万円 〜 28.8万円 |
|---|---|
| ㎡数 | 55.16㎡ |
| 間取り | 1LDK |
| 所在階 | 25階 |
| 物件登録日 | 2024/07/08 |
| 参考賃料 | 17.6万円 〜 18.6万円 |
|---|---|
| ㎡数 | 37.02㎡ |
| 間取り | 1K |
| 所在階 | 8階 |
| 物件登録日 | 2024/07/04 |
弊社の仲介手数料は【無料】または【半額+tax】です。お客様の費用負担を少しでも軽くできるよう、全力でお部屋探しをお手伝いします。
また、事故情報以外に「コンシェリア西新宿タワー」についてよくあるご質問をまとめました。
トップ画像引用元:Google Map
コンシェリア西新宿タワーについて、事故物件以外でよくある質問と回答
コンシェリア西新宿タワーについて、よくあるご質問をまとめました。
マンションの設備について
- Q1. 駐車場は用意されていますか?
- Q2. 楽器の演奏はできますか?
- Q3. ペットを飼育することはできますか?
- Q4. セキュリティ面はどうですか?
- Q5. コンシェルジュはいますか?何をしてくれますか?
周辺の環境に関して
- Q6. 周辺の治安は良いですか?
- Q7. 電車などの交通アクセスはどのようなものがありますか?
- Q8. 周辺にコンビニやスーパーはありますか?
- Q9. 周辺にどんな飲食店がありますか?
- Q10. 学区域の小・中学校はどちらですか?
- Q11. 周辺に保育園はありますか?
災害リスクについて
契約について
Q1. 駐車場は用意されていますか?
はい、コンシェリア西新宿タワーには、駐車場が用意されています。
空き状況にもよりますが、平置きと機械式パーキングが利用可能で、大きさに合わせて「月47,300~55,000円(税込)」が賃料の目安です。
駐車場のサイズは以下の通りです。お借りになる際は、車検証でサイズを必ずご確認ください。
- 全長:5,050mm
- 全幅:1,950mm
- 全高:2,100mm
- 重量:2,200kg
Q2. 楽器の演奏はできますか?
はい、コンシェリア西新宿タワーには、有料の楽器演奏室が全4室用意されています。
- ピアノ部屋
- アンプ部屋
- ドラム部屋
- その他の楽器向けの部屋
| ピアノ部屋 | ドラム部屋 |
![]() |
![]() |
| ・利用時間 |
|
| ・利用料金 |
|
| 画像引用元:HOME’S | |
Q3. ペットを飼育することはできますか?
はい、コンシェリア西新宿タワーの部屋によっては、下記の大きさを超えない「犬と猫」を飼うことができます。
- 体長:70cm
- 体重:10kg
ペットの種類に関しては、貸主や管理組合から承諾をもらう必要がありますので、事前に不動産会社に相談してください。
また、ペットを飼うときは敷金が1ヶ月分積み増しとなりますので、初期費用が高くなる点に注意しましょう。
動物病院やペットサロンも充実
マンションから歩いて10分圏内に下記の動物病院がありますので、ペットの体調が優れないときでも安心です。
- Mogu動物病院
- 動物病院コンサルタント
- ジュアペットクリニック
また、歩いて3分の場所に、ホテルやトリミングのサービスを提供している「トータルペットケアスペース Dogs」というお店があるので、旅行や出張のとき便利に利用できます。
その他にも、下記のお店が周辺にあるので、利用するお店の比較や検討がしやすいです。
| ショップ | トリミング | ホテル | トレーニング |
| Dogs | ○ | ○ | ○ |
| AndPaw | ○ | ||
| Oakmont | ○ | ○ | |
| nunoclub | ○ | ○ |
Q4. セキュリティ面はどうですか?
コンシェリア西新宿タワーには、管理員が24時間常駐し、住まう方々の日々を見守ります。『いざという時』の迅速な対応はもちろん、防犯面でも頼れる存在がいる暮らしは、何物にも代えがたい安心感につながります。
また、敷地内の各所に設置された防犯カメラ映像を管理室で監視しているので、部外者に侵入されるリスクが限りなく低いです。
さらに、下記の4箇所にセキュリティシステムが導入されているので、一般的なタワーマンションより厳重な体制が整っています。
- エントランス(オートロック)
- エントランスホール(オートロック)
- 共用廊下(オートロック)
- エレベーター内(目的階のみ停止機能付き)
Q5. コンシェルジュはいますか?何をしてくれますか?
はい、コンシェリア西新宿タワーのフロントデスクには専用のコンシェルジュがいます。
また、日中であれば、来訪者の受付や宅急便の発送代行をはじめとした、下記のコンシェルジュサービスを提供しています。
- クリーニングの受付
- 共用施設の利用受付
- タクシー・ハイヤーの配車手配
- 各種インフォメーション
- メッセージお預かり
- 各種レンタル品の貸し出し
- クロークサービス
Q6. 周辺の治安は良いですか?
いいえ、マンション周辺の治安は悪いです。
以下のマップは、2022年の1年間を通して、犯罪(自転車盗難なども含む)が合計で何件発生したのかを示したものです。
引用:警視庁犯罪情報マップ
ご覧の通りコンシェリア西新宿タワーの建つ地域は、犯罪が多い濃いオレンジ色に分類されているので、治安が悪いと言えます。
また、新宿駅に近づく居酒屋や夜のお店も多いので、女性や小さな子供のいるファミリー層は慎重に検討しましょう。
ただ、マンションの周辺には複数の交番や警察署があるので、いざという時には心強く、安心感を与えてくれます。
Q7. 電車などの交通アクセスはどのようなものがありますか?
周辺の主要な交通アクセスを以下の移動手段に分けて紹介します。
1.電車
コンシェリア西新宿タワーの周辺にある5つの駅からは、下記の13路線を利用することができます。
| 駅名 | 分数 | 路線 |
| 西新宿五丁目駅 | 5分 |
|
| 都庁前駅 | 7分 |
|
| 西新宿駅 | 9分 |
|
| 新宿西口駅 | 13分 |
|
| 新宿駅 | 15分 |
|
上記の通り、都心の中心地を走る路線を利用できるので、都心内の移動で困ることは少ない立地と言えるでしょう。
また、「都庁前駅」から地下通路を通って「新宿駅」まで行くこともできるので、雨の日も便利です。
2.バス
羽田空港と成田空港発着のリムジンバスの利用がしやすいです。
というのも、歩いて5分の「ヒルトン東京」からリムジンバスが発着しているので、電車に乗ることなく空港にアクセスできます。
そのため、出張や旅行で飛行機をよく使う人にとっても便利な立地と言えるでしょう。
3.タクシー
新宿駅に近い立地なので、タクシーを使うときも便利です。
都心の主要エリアからマンションまで、タクシーをご利用いただいた場合の目安時間と料金は以下の通りです。
| エリア | 通常料金(深夜料金) | 時間 |
| 新宿駅 | 660円(820円) | 約5~10分 |
| 渋谷駅 | 1,940円(2,340円) | 約20分 |
| 六本木駅 | 2,660円(3,220円) | 約20~30分 |
| 銀座駅 | 3,300円(3,940円) | 約30分 |
| 東京駅 | 3,620円(4,340円) | 約30~40分 |
| 品川駅 | 4,420円(5,220円) | 約30〜40分 |
また、近くに首都高の「新宿IC」と「中野長者橋IC」があるので、車移動が多い方にも便利な立地です。
マンションの駐車場からわずか2~3分で首都高速道路に乗れるため、下道の渋滞に巻き込まれる心配もありません。
Q8. 周辺にコンビニやスーパーはありますか?
はい、徒歩圏内にコンビニやスーパーが充実しており、日々の買い物が大変便利な立地です。(詳細は下図参照)
引用:Google Map
まず、コンビニは徒歩2分圏内(約160m)に「セブンイレブン」と「ファミリーマート」があります。
スーパーは歩いて4分の場所に24時間営業の「マルエツプチ」があるので、夜間の買い出しでも困ることはないでしょう。
薬局・ドラッグストアが近くて便利
徒歩5分圏内(約400m)には以下のように薬局・スーパーがあるので薬の買い物も便利です。
- 伊賀薬局(約150m、徒歩2分)
- 西新宿5丁目薬局(約180m、徒歩2分)
- ドラッグセイムス(約200m、徒歩2分)
- どらっぐぱぱす(約200m、徒歩3分)
- ハラダ薬局(約240m、徒歩3分)
- ウエルシア(約400m、徒歩5分)
Q9. 周辺にどんな飲食店がありますか?
マンション周辺に飲食店は少ないですが、徒歩10分程の場所にある「西新宿駅」周辺には、以下のような飲食店が揃っています。
- カフェ
- イタリアンレストラン
- 和食料理店
- 海鮮料理店
- 居酒屋
- 焼き鳥屋
- 焼肉・鉄板料理店
- 寿司屋
- 天ぷら屋
- ファミレス
- ファストフード
また、都内最大級のターミナル駅である「新宿駅」周辺にはたくさんの飲食店が揃っているので、週末の外食なども困ることはないでしょう。
マンション周辺のその他のグルメ情報
その他、マンションから歩いて10分ほどの距離には、以下のようにチェーンの飲食店も揃っています。
|
・ファミレス |
|
|
・牛丼・カレーなど |
|
|
・カフェ |
|
Q10. 学区域の小・中学校はどちらですか?
コンシェリア西新宿タワーの学区域は以下の通りです。(※学区域は変更になる場合があります。最新の情報は、各区教育委員会のウェブサイト等でご確認ください。)
| 小学校 | 中学校 |
| 西新宿小学校 | 西新宿中学校 |
| 徒歩9分 | 徒歩13分 |
上記の通り、学区域の中学校は歩いて10分以上かかるため、お子さまの通学面では不便な立地条件となります。
ですので、お子さまがいる家庭は通学面も踏まえて検討するようにしましょう。
Q11. 周辺に保育園はありますか?
はい、マンションから歩いて2分の場所に「グローバルキッズ西新宿園」があるので、入園できれば共働きで忙しいご家庭の負担も減るでしょう。
この他にも周辺には複数の保育園があるため、お子さまの預け先を比較的検討しやすいエリアと言えるでしょう。
引用:Google Map
Q12. マンションは地震に強い構造ですか?
はい、コンシェリア西新宿タワーは、国内大手5社の1つである「大林組」が施工した、地震に強い「制震構造」のタワーマンションです。
制震構造は、建物に組み込まれた「制震装置」が地震のエネルギーを吸収することで、大きな揺れが来た際にも建物の被害を軽減できる仕組みです。
また、タワーマンションに採用される耐震構造は主に3つありますが、中でも制震構造は非常にバランスの取れた構造と言えます。
| 免震構造 | 制震構造 | 耐震構造 | |
| 地震の揺れ | ほぼ感じない | 軽減 | 揺れやすい |
| 建物の被害 | 大幅に軽減 | 軽減 | 受けやすい |
| 家具に被害 | 大幅に軽減 | 軽減 | 転倒や移動 |
| 強風による揺れ | ゆっくりと長く揺れる | ほぼ感じない | ほぼ感じない |
高層建築物でも広く採用されている
制震構造はタワーマンションだけでなく、高層建築物にも広く採用されている信頼度の高い構造です。
以下は、制震構造を採用している有名な高層建築物です。
| 東京都庁 |
![]() |
| 東京スカイツリー |
![]() |
これらの理由から、「タワーマンションに住みたいけれど、地震が心配」という方にも、積極的にご検討いただきたい物件です。
Q13. 洪水などによる浸水のリスクはありますか?
はい、浸水リスクを調べたところ、最大規模の氾濫が起きた場合、マンションが建つエリアは「0.5m~3.0m未満」の浸水が予測されています。
万が一、近隣の神田川などが氾濫した場合は、最大で建物2階部分まで浸水する可能性がありますので、浸水リスクも含めて検討するようにしましょう。
Q14. 保証会社の利用は必須ですか?
はい、コンシェリア西新宿タワーの多くの部屋が、保証会社の利用を必須としています。
契約する保証会社は部屋によって異なるため、明確な費用は算出できませんが、初回保証料として総賃料の40~50%が相場となります。
借りる方にとっては追加費用が発生するものの、連帯保証人を用意する手間が省けるというメリットがあります。
Q15. 審査難易度はどのようになっていますか?
結論、コンシェリア西新宿タワーは分譲マンションのため、オーナー様によって審査の難易度が異なります。
したがって、特定の部屋の審査に落ちた場合でも、別の部屋であれば審査に通る可能性は十分にあります。
もし他にも気になるお部屋がある場合は、改めて申し込みが可能かどうか、不動産会社にご確認ください。
よくある質問とその回答は以上です。
ここから、マンションをよりイメージした上で契約したい方のために、画像でマンション内の内装や設備を紹介します。
豊富な画像でわかる!コンシェリア西新宿タワーのエントランス・室内イメージ
コンシェリア西新宿タワーの室内や共用スペースはどうなっているのか、契約前により具体的にイメージいただくために、以下の3つに分けて画像で紹介します。
① エントランス
エントランスの外観は重厚な佇まいです。

画像引用元:HOME’S
エントランスにはオートロックが設置されているので、防犯面でも安心して暮らすことができます。
画像引用元:SUUMO
オートロックを通過すると、ホテルライクなエントランスロビーとなります。
なお、エントランスロビーにはコンシェルジュの駐在しているフロントデスクが用意されています。
画像引用元:HOME’S
また、以下のようにソファーも用意されているので、待ち合わせなどにもご活用いただけます。

フロントデスクの隣には、エレベーターホールへと続く扉がありますが、こちらもオートロックが設置されています。
画像引用元:SUUMO
また、更に奥へ進んだ先にあるエレベーターホールの手前には3つ目のオートロックがあり、万全のセキュリティ体制となっています。

エレベーターホールには、4基のエレベーターが用意されています。

ちなみに、タワーマンションのエレベーターは「50戸に対して1基」が理想とされています。
コンシェリア西新宿タワーは「612戸に対して4基」ということから、時間帯によっては待つこともあるでしょう。
ただし、階層毎に利用するエレベーターが異なるので、満員で乗れないということは少ないでしょう。
プライバシーを考慮した内廊下仕様
エレベーターホールから玄関までは、プライバシーに考慮された内廊下仕様となっています。
画像引用元:HOME’S
②. 共用部
コンシェリア西新宿タワーは、共用部が充実しているため、タワーマンションならではの生活を求める方には理想の物件と言えます。
この章では、下記の共用施設の概要や利用料金などを詳しく解説していきます。
- フィットネスジム
- プール
- サウナ付き大浴場
- 和室
- ゲストルーム
- 楽器演奏室|4室
フィットネスジム
マンション内には有酸素マシンが豊富に揃ったフィットネスジムが用意されています。

| ・利用時間 |
|
| ・利用料金 |
|
| ・その他 |
|
プール
マンション内には、広々としたプールが用意されています。

| ・利用時間 |
|
| ・利用料金 |
|
| ・その他 |
|
サウナ付き大浴場
マンション内には以下のような、大浴場が用意されているのでゆっくりと足を伸ばしてリラックスすることができます。
また、サウナも付いているので、気軽に汗をかいてリフレッシュすることもできます。

| ・利用時間 |
|
| ・利用料金 |
|
和室
マンション内には以下のような和室が用意されているので、ご友人を招いてのお茶会などにご活用いただけます。

| ・利用時間 |
|
| ・利用料金 |
|
ゲストルーム
ジャグジー付きの豪華なゲストルームがマンション内にあるので、遠方からの来客があっても時間を気にせず過ごすことができます。

| ・利用時間 |
|
| ・利用料金 |
|
| 画像引用元:SUUMO | |
楽器演奏室|4室
マンション内には、さまざまな楽器の演奏ができる楽器演奏室が揃っています。
- ピアノ部屋
- アンプ部屋
- ドラム部屋
- その他の楽器向けの部屋
| ピアノ部屋 | ドラム部屋 |
![]() |
![]() |
| ・利用時間 |
|
| ・利用料金 |
|
| 画像引用元:HOME’S | |
③. 室内イメージ
リビングなどの室内の様子は以下の写真をご参照ください。(※これらの写真は過去に募集されていたお部屋のものですので、実際の内容とは異なる可能性があります。ご了承ください。)
![]() |
![]() |
![]() |
![]() |
![]() |
![]() |
水回りの雰囲気は下記のようになっており、どれも洗練された造りです。
| キッチン | 浴室 |
![]() |
![]() |
| 洗面台 | トイレ |
![]() |
![]() |
| 画像引用元:SUUMO | |
室内の素材や雰囲気は、お部屋によって異なります。必ず内見でご確認ください。
まとめ
コンシェリア西新宿タワーについて、事故物件を徹底的にリサーチした結果、事故の情報が1件ありました。
| 事故内容 | 時期 | 部屋 |
| 傷害致死 | 平成24年 | 2010号室 |
弊社は、お客様がご心配であれば、過去の事故の有無や詳細について、契約前に貸主に確認させていただきますので、お気軽にお申し付けください。
改めて、これまでに募集された部屋は以下の通りです。気になる部屋があれば、ご連絡をお待ちしています。
物件アーカイブ 過去に募集された部屋一覧
| 参考賃料 | 16.8万円 〜 18.0万円 |
|---|---|
| ㎡数 | 37.45㎡ |
| 間取り | 1K |
| 所在階 | 11階 |
| 物件登録日 | 2026/05/20 |
| 参考賃料 | 30.2万円 〜 32.0万円 |
|---|---|
| ㎡数 | 55.11㎡ |
| 間取り | 1LDK |
| 所在階 | 19階 |
| 物件登録日 | 2026/05/11 |
| 参考賃料 | 27.2万円 〜 29.0万円 |
|---|---|
| ㎡数 | 55.16㎡ |
| 間取り | 1LDK |
| 所在階 | 8階 |
| 物件登録日 | 2026/05/11 |
| 参考賃料 | 26.7万円 〜 28.5万円 |
|---|---|
| ㎡数 | 55.11㎡ |
| 間取り | 1LDK |
| 所在階 | 8階 |
| 物件登録日 | 2026/05/11 |
| 参考賃料 | 29.7万円 〜 31.5万円 |
|---|---|
| ㎡数 | 55.16㎡ |
| 間取り | 1LDK |
| 所在階 | 24階 |
| 物件登録日 | 2026/02/10 |
| 参考賃料 | 17.8万円 〜 18.8万円 |
|---|---|
| ㎡数 | 37.45㎡ |
| 間取り | 1K |
| 所在階 | 20階 |
| 物件登録日 | 2026/01/31 |
| 参考賃料 | 25.8万円 〜 26.8万円 |
|---|---|
| ㎡数 | 55.11㎡ |
| 間取り | 1LDK |
| 所在階 | 20階 |
| 物件登録日 | 2026/01/31 |
| 参考賃料 | 27.7万円 〜 29.5万円 |
|---|---|
| ㎡数 | 55.16㎡ |
| 間取り | 1LDK |
| 所在階 | 23階 |
| 物件登録日 | 2026/01/20 |
| 参考賃料 | 26.7万円 〜 28.5万円 |
|---|---|
| ㎡数 | 55.11㎡ |
| 間取り | 1LDK |
| 所在階 | 7階 |
| 物件登録日 | 2026/01/09 |
| 参考賃料 | 17.2万円 〜 18.2万円 |
|---|---|
| ㎡数 | 37.02㎡ |
| 間取り | 1K |
| 所在階 | 20階 |
| 物件登録日 | 2026/01/05 |
| 参考賃料 | 60.0万円 〜 61.0万円 |
|---|---|
| ㎡数 | 106.96㎡ |
| 間取り | 3LDK |
| 所在階 | 44階 |
| 物件登録日 | 2025/11/21 |
| 参考賃料 | 14.9万円 〜 16.5万円 |
|---|---|
| ㎡数 | 37.45㎡ |
| 間取り | 1K |
| 所在階 | 16階 |
| 物件登録日 | 2025/11/20 |
| 参考賃料 | 39.0万円 〜 41.0万円 |
|---|---|
| ㎡数 | 77.51㎡ |
| 間取り | 2LDK |
| 所在階 | 34階 |
| 物件登録日 | 2025/10/07 |
| 参考賃料 | 35.0万円 〜 36.8万円 |
|---|---|
| ㎡数 | 59.93㎡ |
| 間取り | 2LDK |
| 所在階 | 33階 |
| 物件登録日 | 2025/09/22 |
| 参考賃料 | 33.0万円 〜 34.8万円 |
|---|---|
| ㎡数 | 55.11㎡ |
| 間取り | 1LDK |
| 所在階 | 18階 |
| 物件登録日 | 2025/09/22 |
| 参考賃料 | 30.2万円 〜 32.0万円 |
|---|---|
| ㎡数 | 55.16㎡ |
| 間取り | 1LDK |
| 所在階 | 13階 |
| 物件登録日 | 2025/09/02 |
| 参考賃料 | 33.0万円 〜 35.0万円 |
|---|---|
| ㎡数 | 59.93㎡ |
| 間取り | 1LDK |
| 所在階 | 34階 |
| 物件登録日 | 2025/08/01 |
| 参考賃料 | 27.2万円 〜 29.0万円 |
|---|---|
| ㎡数 | 55.16㎡ |
| 間取り | 1LDK |
| 所在階 | 19階 |
| 物件登録日 | 2025/07/28 |
| 参考賃料 | 29.2万円 〜 31.0万円 |
|---|---|
| ㎡数 | 55.01㎡ |
| 間取り | 1LDK |
| 所在階 | 26階 |
| 物件登録日 | 2025/07/27 |
| 参考賃料 | 16.8万円 〜 18.0万円 |
|---|---|
| ㎡数 | 37.45㎡ |
| 間取り | 1K |
| 所在階 | 11階 |
| 物件登録日 | 2025/07/22 |
| 参考賃料 | 16.8万円 〜 18.3万円 |
|---|---|
| ㎡数 | 34㎡ |
| 間取り | 1K |
| 所在階 | 12階 |
| 物件登録日 | 2025/07/03 |
| 参考賃料 | 21.0万円 〜 22.6万円 |
|---|---|
| ㎡数 | 37.45㎡ |
| 間取り | 1K |
| 所在階 | 17階 |
| 物件登録日 | 2025/06/27 |
| 参考賃料 | 16.8万円 〜 17.8万円 |
|---|---|
| ㎡数 | 37.02㎡ |
| 間取り | 1K |
| 所在階 | 5階 |
| 物件登録日 | 2025/06/05 |
| 参考賃料 | 35.0万円 〜 36.0万円 |
|---|---|
| ㎡数 | 77.51㎡ |
| 間取り | 2LDK |
| 所在階 | 33階 |
| 物件登録日 | 2025/05/30 |
| 参考賃料 | 26.2万円 〜 28.0万円 |
|---|---|
| ㎡数 | 55.16㎡ |
| 間取り | 1LDK |
| 所在階 | 21階 |
| 物件登録日 | 2025/04/19 |
| 参考賃料 | 35.0万円 〜 36.0万円 |
|---|---|
| ㎡数 | 77.5㎡ |
| 間取り | 2LDK |
| 所在階 | 37階 |
| 物件登録日 | 2025/03/27 |
| 参考賃料 | 17.0万円 〜 18.2万円 |
|---|---|
| ㎡数 | 37.45㎡ |
| 間取り | 1K |
| 所在階 | 12階 |
| 物件登録日 | 2025/03/25 |
| 参考賃料 | 29.1万円 〜 30.9万円 |
|---|---|
| ㎡数 | 55.16㎡ |
| 間取り | 1LDK |
| 所在階 | 18階 |
| 物件登録日 | 2025/03/25 |
| 参考賃料 | 27.2万円 〜 29.0万円 |
|---|---|
| ㎡数 | 55.16㎡ |
| 間取り | 1LDK |
| 所在階 | 16階 |
| 物件登録日 | 2025/03/03 |














