徹底調査!ライズシティ池袋エアライズタワーの事故物件情報一覧

ライズシティ池袋エアライズタワー(以下、エアライズタワー)について、下記8つの方法で事故物件(飛び降り、転落、自殺、火災、孤独死、不審死、事件)かどうかを徹底的にリサーチしたところ、事故の情報が1件ありました。

  • 事故物件検索サイトhttps://www.oshimaland.co.jp/
  • Twitter
  • Instagram
  • Youtube
  • Google検索
  • マンション掲示板(https://www.e-mansion.co.jp)
  • 5ちゃんねる(https://5ch.net)
  • その他データベース

事故の詳細は以下の通りとなっています。

事故内容 時期 部屋
転落死 令和3年 26階

部屋の号数は不明ですが、直近の事故に関しては入居者に伝える義務がありますから、気になる方は不動産会社の担当者に確認しましょう。

なお、過去に事故などがあったお部屋について、不動産会社や大家さんには次の入居者様へお伝えする義務(告知義務)があります。しかし、その後に一人でも入居者がいた場合は、告知義務の対象外となる点には注意が必要です。

お部屋のことで気になる点があれば、ご遠慮なくご質問ください。お客様が安心して選べるよう、私たちが責任を持ってお調べします。

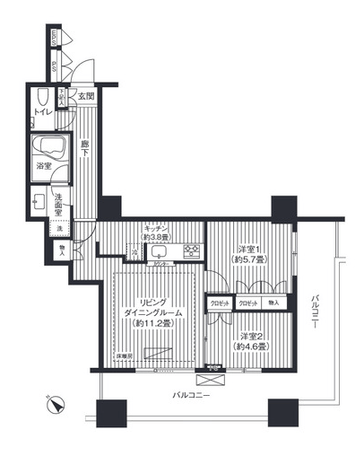
また、エアライズタワーで募集されていた部屋は以下のとおりです。新しい順に並んでいますが、詳しい募集時期は「物件登録日」をご覧ください。

物件アーカイブ 過去に募集された部屋一覧

参考賃料 32.5万円 〜 34.0万円
㎡数 76.73㎡
間取り 2LDK
所在階 29階
物件登録日 2026/05/01
参考賃料 33.0万円 〜 35.0万円
㎡数 40.26㎡
間取り 1LDK
所在階 23階
物件登録日 2026/03/24
参考賃料 43.0万円 〜 45.0万円
㎡数 86.43㎡
間取り 3LDK
所在階 17階
物件登録日 2026/01/05
参考賃料 45.0万円 〜 46.0万円
㎡数 86.43㎡
間取り 2LDK
所在階 34階
物件登録日 2025/11/28
参考賃料 27.0万円 〜 28.9万円
㎡数 58.99㎡
間取り 2LDK
所在階 6階
物件登録日 2025/10/28
参考賃料 20.5万円 〜 21.9万円
㎡数 41.72㎡
間取り 1LDK
所在階 4階
物件登録日 2025/10/27
参考賃料 45.0万円 〜 46.0万円
㎡数 86.43㎡
間取り 2LDK
所在階 1階
物件登録日 2025/10/04
参考賃料 28.0万円 〜 30.2万円
㎡数 67.98㎡
間取り 2LDK
所在階 7階
物件登録日 2025/08/26
参考賃料 40.0万円 〜 42.0万円
㎡数 86.43㎡
間取り 3LDK
所在階 17階
物件登録日 2025/08/12
参考賃料 40.0万円 〜 42.0万円
㎡数 86.43㎡
間取り 3LDK
所在階 17階
物件登録日 2025/07/31
参考賃料 32.0万円 〜 33.0万円
㎡数 70.26㎡
間取り 2LDK
所在階 25階
物件登録日 2025/07/04
参考賃料 33.0万円 〜 35.0万円
㎡数 64.85㎡
間取り 2LDK
所在階 21階
物件登録日 2025/06/23
参考賃料 21.5万円 〜 22.5万円
㎡数 40.26㎡
間取り 1LDK
所在階 18階
物件登録日 2025/06/08
参考賃料 22.0万円 〜 23.5万円
㎡数 45.69㎡
間取り 1LDK
所在階 7階
物件登録日 2025/04/21
参考賃料 28.0万円 〜 29.9万円
㎡数 60.22㎡
間取り 2LDK
所在階 9階
物件登録日 2025/04/07
参考賃料 20.8万円 〜 22.3万円
㎡数 45.36㎡
間取り 1LDK
所在階 6階
物件登録日 2025/03/21
参考賃料 27.5万円 〜 30.0万円
㎡数 62.31㎡
間取り 2LDK
所在階 23階
物件登録日 2025/01/18
参考賃料 34.0万円 〜 35.0万円
㎡数 57.33㎡
間取り 2LDK
所在階 40階
物件登録日 2024/12/12
参考賃料 34.0万円 〜 35.5万円
㎡数 73.72㎡
間取り 3LDK
所在階 19階
物件登録日 2024/10/17
参考賃料 20.0万円 〜 22.0万円
㎡数 40.26㎡
間取り 1LDK
所在階 27階
物件登録日 2024/09/12
参考賃料 29.8万円 〜 30.8万円
㎡数 67.98㎡
間取り 2LDK
所在階 21階
物件登録日 2024/09/03
参考賃料 25.0万円 〜 26.0万円
㎡数 55.34㎡
間取り 1LDK
所在階 33階
物件登録日 2024/08/09
参考賃料 32.0万円 〜 33.0万円
㎡数 70.26㎡
間取り 2LDK
所在階 25階
物件登録日 2024/03/14
参考賃料 17.6万円 〜 18.4万円
㎡数 38.11㎡
間取り 1LDK
所在階 10階
物件登録日 2023/12/01
参考賃料 18.5万円 〜 19.4万円
㎡数 45.69㎡
間取り 1LDK
所在階 7階
物件登録日 2023/08/25
参考賃料 20.8万円 〜 22.0万円
㎡数 42.67㎡
間取り 1LDK
所在階 39階
物件登録日 2023/08/14
参考賃料 22.9万円 〜 24.0万円
㎡数 58.26㎡
間取り 2LDK
所在階 8階
物件登録日 2023/08/10
参考賃料 26.0万円 〜 27.0万円
㎡数 57.33㎡
間取り 2LDK
所在階 33階
物件登録日 2023/05/23
参考賃料 26.0万円 〜 27.0万円
㎡数 55.34㎡
間取り 2LDK
所在階 35階
物件登録日 2023/03/06
参考賃料 42.8万円 〜 45.0万円
㎡数 84.54㎡
間取り 3SLDK
所在階 14階
物件登録日 2023/01/16
参考賃料 32.0万円 〜 33.0万円
㎡数 67.09㎡
間取り 1SLDK
所在階 21階
物件登録日 2022/12/27
参考賃料 42.8万円 〜 45.0万円
㎡数 84.54㎡
間取り 3SLDK
所在階 14階
物件登録日 2022/12/26
参考賃料 33.0万円 〜 34.0万円
㎡数 72.21㎡
間取り 2LDK
所在階 11階
物件登録日 2022/10/28
参考賃料 18.1万円 〜 19.0万円
㎡数 48.31㎡
間取り 1LDK
所在階 5階
物件登録日 2022/07/28
参考賃料 23.8万円 〜 25.0万円
㎡数 64.85㎡
間取り 2LDK
所在階 8階
物件登録日 2022/07/23
参考賃料 24.0万円 〜 26.2万円
㎡数 58.26㎡
間取り 2LDK
所在階 9階
物件登録日 2022/05/13
参考賃料 24.7万円 〜 26.9万円
㎡数 60.22㎡
間取り 2LDK
所在階 10階
物件登録日 2022/05/13
参考賃料 16.0万円 〜 16.8万円
㎡数 38.11㎡
間取り 1LDK
所在階 4階
物件登録日 2022/05/13

弊社の仲介手数料は【無料】または【半額+tax】です。お客様の費用負担を少しでも軽くできるよう、全力でお部屋探しをお手伝いします。

また、事故情報以外に「エアライズタワー」についてよくあるご質問をまとめました。

エアライズタワーについて、事故物件以外でよくある質問と回答

エアライズタワーについて、よくあるご質問をまとめました。

マンションの設備について

周辺の環境に関して

災害リスクについて

契約について

Q1. 駐車場は用意されていますか?

はい、エアライズタワーには駐車場が用意されています。

空き状況にもよりますが、平置きと機械式パーキングが利用可能で、大きさに合わせて「34,000~38,000円(税込)/月」が賃料の目安です。

なお、機械式のサイズは下記の通りなので、駐車場を借りるときは車検証でサイズを確認しましょう。

  • 全長:~5,300mm
  • 全幅:~1,900mm
  • 全高:~2,050mm
  • 重量:~2,300kg

駐輪場とバイク置き場について

エアライズタワーには駐輪場とバイク置き場があり、賃料の目安は下記の通りです。

  • 駐輪場:100~300円/月
  • バイク置き場:3,000~5,000円/月

Q2. 楽器の演奏はできますか?

はい、エアライズタワーは、オーナー様が楽器演奏を許可しているお部屋に限り、楽器演奏が可能です。

ただし、楽器の種類や演奏時間には規定がございます。後のトラブルを避けるためにも、ご希望の条件での演奏が可能か、ご契約前に必ず確認しましょう。

Q3. ペットを飼育することはできますか?

はい、エアライズタワーでオーナー様がペット飼育を許可しているお部屋では、以下のペットとのご入居が可能です。

  • 小型犬

ペットの大きさや種類によっては、オーナー様や管理組合の承諾が必要となります。そのため、必ず事前に不動産会社にご相談ください。

また、ペットを飼うときは敷金が1ヶ月分積み増しとなるケースが多いので、こちらも事前に確認しましょう。

動物病院やペットホテルも充実

マンションから歩いて8分の場所に「南池袋どうぶつ病院」がありますので、ペットの体調が優れないときでも安心です。

また、歩いて2分の場所に、ホテルやトリミングのサービスを提供している「SOPRA」というお店があるので、旅行や出張のとき便利に利用できます。

Q4. セキュリティ面はどうですか?

エアライズタワーには、管理員が24時間常駐し、住まう方々の日々を見守ります。『いざという時』の迅速な対応はもちろん、防犯面でも頼れる存在がいる暮らしは、何物にも代えがたい安心感につながります。

また、敷地内の2箇所にオートロックが設置してあるので、部外者に侵入されるリスクも低いです。

さらに、敷地内の各所に防犯カメラを複数台設置しているので、機械的なセキュリティも整っています。

Q5. コンシェルジュはいますか?何をしてくれますか?

はい、エアライズタワーにはコンシェルジュがいます。

なお、日中であれば下記のコンシェルジュサービスを提供しています。

  • クリーニングの取次
  • 宅配便の取次
  • タクシー・ハイヤーの配車手配
  • 共用施設の予約受付
  • ハウスクリーニング紹介
  • 備品貸し出しサービス
  • インフォメーションサービス

Q6. 周辺の治安は良いですか?

はい、マンション周辺の治安は良いです。

以下のマップは、2022年の1年間を通して、犯罪(自転車盗難なども含む)が合計何件発生したかを示したものです。

エラライズタワー周辺の治安引用:警視庁犯罪情報マップ

マンション周辺は犯罪が比較的少ない薄いオレンジ色に分類されていて、23区内の中でも治安は良いエリアと言えます。

しかし、池袋駅周辺の繁華街は夜のお店も多いので、女性の一人暮らしやお子さまがいるファミリー層は慎重に検討しましょう。

ただ、マンションの周辺には複数の交番や警察署があるので、いざという時には心強く、安心感を与えてくれます。

Q7. 電車などの交通アクセスはどのようなものがありますか?

エアライズタワー周辺の主要な交通アクセスを以下の移動手段に分けて紹介します。

  1. 電車
  2. バス
  3. タクシー・車

1.電車

エアライズタワーは以下の6駅が利用できます。

駅名 分数 路線
東池袋駅 1分(直結)
  • 東京メトロ有楽町線
東池袋四丁目駅 2分
  • 都電荒川線

都電雑司ヶ谷駅

6分
  • 都電荒川線
池袋駅 8分
  • JR山手線
  • JR埼京線
  • JR湘南新宿ライン
  • 東京メトロ有楽町線
  • 東京メトロ丸ノ内線
  • 東京メトロ副都心線
  • 西武池袋線
  • 東武東上線
雑司ヶ谷駅 10分
  • 東京メトロ副都心線

向原駅

11分
  • 都電荒川線

JRや地下鉄など合計9路線利用できるので、都内や埼玉方面への移動が便利です。

マンションと直結している「東池袋駅」から利用できる有楽町線は「飯田橋」や「銀座」など、都心のオフィス街にアクセスしやすい路線なので、都心部に通勤する会社員の方には魅力的と言えます。

2.バス

羽田空港・成田空港発着のリムジンバスを利用しやすいです。

というのも、マンションから徒歩3分のサンシャインバスターミナルからリムジンバスが発着しているので、電車に乗ることなく空港にアクセスできます。

ですので、出張や旅行で飛行機をよく使う人にとっても便利な立地と言えるでしょう。

3.タクシー・車

池袋エリアにあるマンションなので、タクシーを使うときも便利です。

都心の主要エリアからマンションまで、タクシーをご利用いただいた場合の目安時間と料金は以下の通りです。

エリア 通常料金(深夜料金) 時間
新宿駅 2,420円(2,900円) 約20~30分
大手町駅 3,220円(3,860円) 約30分
東京駅 3,380円(4,020円) 約30分
渋谷駅 3,700円(4,420円) 約30~40分
銀座駅 3,860円(4,660円) 約30~40分
六本木駅 3,940円(4,740円) 約30~40分
品川駅 5,620円(6,740円) 約40~50分

また、エアライズタワーのすぐ近くに、首都高の「東池袋」出入口があるので、車移動が多い方にも便利な立地です。

マンションの駐車場からわずか3分で高速に乗れるため、下道の渋滞で時間を無駄にする心配もありません。

Q8. 周辺にコンビニやスーパーはありますか?

はい、徒歩圏内にコンビニやスーパーが充実しており、日々の買い物が大変便利な立地です。(詳細は下図参照)

エアライズタワー周辺のコンビニ・スーパー引用:Google Map

まず、コンビニはマンションの敷地内に「セブンイレブン 東池袋エアライズタワー店」がございます。

この他、徒歩3分圏内(約240m)には以下の2店舗がございます。

  • セブンイレブン 東池袋4丁目店(約120m、徒歩2分)
  • ファミリーマート(約210m、徒歩3分)

スーパーもマンションの敷地内に「マルエツプチ」があるので、生鮮食品の買い物が非常に便利です。

この他、徒歩6分圏内(約480m)には以下の3店舗がございます。

  • 西友(約300m、徒歩4分)
  • まいばすけっと(約350m、徒歩5分)
  • 成城石井(約450m、徒歩6分)

ちなみに、「成城石井」には輸入ワインやチーズなど、一般的なスーパーでは手に入らない商品も豊富に取り揃えています。

なお、地下通路を通れば雨に濡れることなく買い物できます。

近くに薬局・ドラッグストアもある

以下のように、マンションから徒歩5分圏内(約400m)には以下の薬局・ドラッグストアがあるので薬の買い物も便利です。

  • ココカラファイン(マンションの敷地内)
  • コスモス薬局(マンションの敷地内)
  • デイジー薬局(マンションの敷地内)
  • コスモス薬局(約230m、徒歩3分)
  • 薬局トモズ(約300m、徒歩4分)
  • あうる薬局(約350m、徒歩5分)
  • そうごう薬局(約350m、徒歩5分)

Q9. 周辺にどんな飲食店がありますか?

マンションから徒歩5分の「サンシャインシティ」内だけでも、以下のような飲食店が90店舗以上揃っています。

  • カフェ
  • ハンバーガーショップ
  • カレー屋
  • イタリアンレストラン
  • フレンチレストラン
  • お好み焼き屋
  • うどん・そば屋
  • 和食料理店
  • 天ぷら
  • 焼き鳥
  • トンカツ屋
  • 郷土料理店
  • ラーメン屋
  • 中華料理店
  • 韓国料理店
  • 焼肉屋
  • ファストフード店

その他、マンションからすぐの池袋にもたくさんの飲食店があるので、外食の予定で困ることは少ないと言えるでしょう。

エアライズタワー周辺のその他のグルメ情報

その他、以下のようにチェーンの飲食店も周辺にあります。

・ファミレス

  • ジョナサン(約400m、徒歩5分)
  • サイゼリヤ(約650m、徒歩9分)
  • びっくりドンキー(約650m、徒歩9分)
  • ガスト(約700m、徒歩10分)

・牛丼・定食など

  • フレッシュネスバーガー(約100m、徒歩2分)
  • 松屋(約350m、徒歩5分)
  • すき家(約400m、徒歩5分)
  • なか卯(約450m、徒歩7分)
  • マクドナルド(約500m、徒歩7分)
  • 丸亀製麺(約550m、徒歩7分)
  • 大阪王将(約550m、徒歩8分)
  • はなまるうどん(約700m、徒歩9分)
  • 王将(約700m、徒歩9分)
  • 吉野家(約750m、徒歩10分)

・カフェ

  • ベローチェ(約200m、徒歩3分)
  • ドトール(約300m、徒歩6分)
  • カフェ・ド・クリエ(約400m、徒歩6分)
  • タリーズ(約500m、徒歩7分)
  • スターバックス(約600m、徒歩8分)
  • 珈琲茶館 集(約600m、徒歩9分)
  • ブルーボトル(約650m、徒歩9分)
  • コメダ珈琲(約650m、徒歩9分)

Q10. 学区域の小・中学校はどちらですか?

エアライズタワーの学区域は以下の通りです。(※学区域は変更になる場合があります。最新の情報は、各区教育委員会のウェブサイト等でご確認ください。)

小学校 中学校
南池袋小学校 千登世橋中学校
徒歩8分 徒歩18分

上記の通り、中学校まで歩いて10分以上かかるので、通学面は不便に感じるかもしれません。

ですので、お子さまがいらっしゃるご家庭は、通学面も含めて検討するようにしましょう。

小学校について

豊島区の小学校は、住んでる地域によって入学すべき小学校が「指定校(住所地の学校)」として決まっています。

ただし、以下のように「指定校(住所地の学校)」に隣接する学校を希望できる「隣接校選択制度」も利用可能です。

小学校の自由選択制を表したイメージ

Q11. 周辺に保育園はありますか?

はい、保育園は歩いて5分ほどの場所に「グローバルキッズ保育園」があるので、入園できれば共働きで忙しいご家庭の負担も減るでしょう。

また、豊島区は保育園に入園させやすい区として人気があるので、待機児童で悩むご家庭も非常に少ないです。

Q12. 周辺に子育てに便利な施設はありますか?

はい、エアライズタワー周辺には子育てに便利な施設が豊富に揃っています。

上述した駅直結という点も電車通学するお子さんにとっては魅力的ですが、それ以外にも、サンシャインと繋がっていたり、図書館があったりと至れり尽くせりです。

サンシャインには数多くの店舗や施設が揃っていますが、中でも下記の店舗が子育てには特に便利と言えます。

店舗・飲食店
ベビーザらス・トイザらス マクドナルド
成城石井 釜揚げスパゲッティ すぱじろう
ザ ダイソー サーティワンアイスクリーム
ディズニーストア サブウェイ
KIDDY LAND 大阪王将
ポケモンセンターメガトウキョー 丸亀製麺
ONE PIECE 麦わらストア リンガーハット
ニトリ CoCo壱番屋
ABCマート 天丼 てんや
薬局・クリニック
薬局アポック 赤羽歯科
飛鳥歯科クリニック 杉田歯科医院
アミューズメント施設
水族館 プラネタリウム

東池袋駅にも便利なお店が豊富

東池袋駅に併設した「ライズシティ池袋」にも、下記のお店が揃っているので、仕事帰りなど気軽に立ち寄りことができます。

  • マルエツ プチ
  • ココカラファイン
  • セブンイレブン

芝生が広がる公園も豊富

マンション周辺には、カフェも併設された人気の公園があるので、いつでも気軽に出向くことができます。

イケサンパーク(マンションから徒歩1分) 南池袋公園(マンションから歩いて7分)
イケサンパークの写真 南池袋公園の写真
画像引用:Google Map

Q13. 洪水などによる浸水のリスクはありますか?

いいえ、ハザードマップ上、最大規模の氾濫時でも浸水リスクはないとされており、安心してお住まいいただけます。

エアライズタワー周辺のハザードマップ引用:ハザードマップポータルサイト

Q14. 保証会社の利用は必須ですか?

エアライズタワーの多くの部屋が保証会社の利用を必須としています。

契約する保証会社は部屋によって異なるため、明確な費用は算出できませんが、初回保証料として総賃料の40~50%が相場となります。

借りる方にとっては追加費用が発生するものの、連帯保証人を用意する手間が省けるというメリットがあります。

Q15. 審査難易度はどのようになっていますか?

結論、エアライズタワーは分譲マンションのため、オーナー様によって審査の難易度が異なります。

したがって、特定の部屋の審査に落ちた場合でも、別の部屋であれば審査に通る可能性は十分にあります。

ですので、他にも気になる部屋がある場合は改めて申し込むことはできないか、不動産会社に確認するようにしましょう。

よくある質問とその回答は以上です。

ここから、マンションをよりイメージした上で契約したい方のために、画像でマンション内の内装や設備を紹介します。

豊富な画像でわかる!エアライズタワーのエントランス・室内イメージ

エアライズタワーの室内や共用スペースはどうなっているのか、契約前により具体的にイメージいただくために、以下の3つに分けて画像で紹介します。

①. エントランス

エントランス外観はガラス張りで開放感のある造りとなっています。

エアライズタワーのエントランス画像引用元:野村不動産

エントランス内部にはオートロックが導入されているので、防犯面で安心して生活できます。

エアライズタワーのエントランス画像引用元:SUUMO

オートロックを通過すると、シンプルな仕上がりのエントランスホールが出迎えます。

以下の写真のように、コンシェルジュが駐在しているフロントデスクもございます。

エアライズタワーのエントランスホール画像引用元:HOME’S

エントランスホールを奥に進むと、6基の常用エレベーターが用意されています。

エアライズタワーのエレベーターホール

画像引用元:SUUMO

ちなみに、タワーマンションのエレベーターは「50戸に対して1基」が理想とされています。

エアライズタワーは「558戸に対して6基」ということから、時間帯によっては少し待つかもしれません。

ただし常用エレベーターは、階層別で利用するエレベーターが分かれているので、満員で乗れないということは少ないでしょう。

②. 共用部

エアライズタワーは豪華な共用設備が整っているので、タワーマンションならではの生活を求める方には理想的な物件です。

  1. 会議室
  2. キッズルーム
  3. フィットネスルーム
  4. シアタールーム
  5. 防音室
  6. ゲストルーム
  7. ビューラウンジ
  8. プライベートバス
  9. リラクゼーションルーム(自習室)
  10.  エステティックルーム

会議室

マンション内には、打ち合わせなどにご活用いただける会議室がございます。

・利用時間
  • 09:00~12:00
・利用料金
  • 500円/1時間
・その他
  • 1回の利用は3時間まで
  • 要予約

キッズルーム

マンション内には、遊具が揃ったキッズルームが用意されているため、雨の日でも気軽に遊ぶことができます。

エアライズタワーの共用部

・利用時間
  • 09:00~19:00
・利用料金
  • 500円/1時間
画像引用元:HOME’S

フィットネスルーム

マンション内には有酸素マシンが揃ったフィットネスルームがあるので、気軽に汗を流すことができます。

エアライズタワーの共用部

・利用時間
  • 05:00~22:00
・利用料金
  • 無料
画像引用元:野村不動産

シアタールーム

マンション内には、プロジェクターが揃ったシアタールームがございます。

エアライズタワーの共用部

・利用時間
  • 月~木 10:00~22:00
  • 金~祝前日 10:00~0:00
  • 土・日・祝日 24時間
・利用料金
  • 300円/1時間
・その他
  • 要予約
  • 1回の予約で3時間まで利用可能
画像引用元:HOME’S

防音室

マンション内には防音室が用意されているので、楽器の練習などにご活用いただけるでしょう。

・利用時間
  • 月~木 10:00~22:00
  • 金~祝前日 10:00~0:00
  • 土・日・祝日 24時間
・利用料金
  • 200円/1時間
・その他
  • 要予約
  • 1回の予約で3時間まで利用可能

ゲストルーム

マンション内にはゲストルームもございます。

・利用時間
  • チェックイン 15:00
  • チェックアウト 10:00
・利用料金
  • 3,000円/1泊
・その他
  • 要予約
  • 連泊は2泊まで可
  • 最大利用回数 1住戸につき2泊/回 3泊/月 

ビューラウンジ

マンションの26階にはビューラウンジが用意されています。

エアライズタワーの共用部

・利用時間
  • 08:00~22:00
・利用料金
  • 無料
画像引用元:野村不動産

プライベートバス

マンションの26階には以下3種のプライベートバスが用意されています。

  • ジャグジー
  • 檜風呂
  • 岩風呂

エアライズタワーの共用部

エアライズタワーの共用部

・利用時間
  • 月~金 16:00~00:00
  • 土・日・祝日 24時間
・利用料金
  • 500円/1時間
・その他
  • 要予約
  • 1回の予約で2時間まで利用可能
画像引用元:HOME’SSUUMO

リラクゼーションルーム(自習室)

マンション内には、作業や勉強に集中できるリラクゼーションルームがございます。

・利用時間
  • 10:00~22:00
・利用料金
  • 200円/1時間
・その他
  • 要予約
  • 1回の予約で2時間まで利用可能

エステティックルーム

マンション内には日々の疲れを癒すエステティックルームもございます。

・利用時間
  • 10:00~22:00
・利用料金
  • 300円/1時間
・その他
  • 要予約
  • 1回の予約で2時間まで利用可能

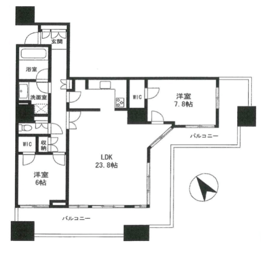
③. 室内イメージ

家具の配置された室内は以下のイメージです。(過去に募集された部屋なので、実際の内容とは異なる可能性があります。)

エアライズタワーの室内 エアライズタワーの室内
エアライズタワーの室内 エアライズタワーの室内
エアライズタワーの室内 エアライズタワーの室内
 画像引用元:野村不動産

家具のない室内は以下のイメージです。(過去に募集されていた部屋なので、実際の内容とは異なる可能性があります。)

エアライズタワーの室内 エアライズタワーの室内
エアライズタワーの室内 エアライズタワーの室内
エアライズタワーの室内 エアライズタワーの室内
エアライズタワーの室内 エアライズタワーの室内
エアライズタワーの室内 エアライズタワーの室内
エアライズタワーの室内 エアライズタワーの室内
エアライズタワーの室内 エアライズタワーの室内

水回りの雰囲気は以下のようになっており、どれも洗練された作りです。

キッチン
エアライズタワーの室内 エアライズタワーの室内
エアライズタワーの室内 エアライズタワーの室内
浴室
エアライズタワーの室内 エアライズタワーの室内
エアライズタワーの室内
洗面台
エアライズタワーの室内 エアライズタワーの室内
トイレ
エアライズタワーの室内 エアライズタワーの室内
画像引用元:SUUMO野村不動産

室内の素材や雰囲気は、お部屋によって異なります。必ず内見でご確認ください。

まとめ

エアライズタワーについて、事故物件を徹底的にリサーチした結果、事故の情報が1件ありました。

事故内容 時期 部屋
転落死 令和3年 26階

弊社は、お客様がご心配であれば、過去の事故の有無や詳細について、契約前に貸主に確認させていただきますので、お気軽にお申し付けください。

改めて、これまでに募集された部屋は以下の通りです。気になる部屋があれば、ご連絡をお待ちしています。

物件アーカイブ 過去に募集された部屋一覧

参考賃料 32.5万円 〜 34.0万円
㎡数 76.73㎡
間取り 2LDK
所在階 29階
物件登録日 2026/05/01
参考賃料 33.0万円 〜 35.0万円
㎡数 40.26㎡
間取り 1LDK
所在階 23階
物件登録日 2026/03/24
参考賃料 43.0万円 〜 45.0万円
㎡数 86.43㎡
間取り 3LDK
所在階 17階
物件登録日 2026/01/05
参考賃料 45.0万円 〜 46.0万円
㎡数 86.43㎡
間取り 2LDK
所在階 34階
物件登録日 2025/11/28
参考賃料 27.0万円 〜 28.9万円
㎡数 58.99㎡
間取り 2LDK
所在階 6階
物件登録日 2025/10/28
参考賃料 20.5万円 〜 21.9万円
㎡数 41.72㎡
間取り 1LDK
所在階 4階
物件登録日 2025/10/27
参考賃料 45.0万円 〜 46.0万円
㎡数 86.43㎡
間取り 2LDK
所在階 1階
物件登録日 2025/10/04
参考賃料 28.0万円 〜 30.2万円
㎡数 67.98㎡
間取り 2LDK
所在階 7階
物件登録日 2025/08/26
参考賃料 40.0万円 〜 42.0万円
㎡数 86.43㎡
間取り 3LDK
所在階 17階
物件登録日 2025/08/12
参考賃料 40.0万円 〜 42.0万円
㎡数 86.43㎡
間取り 3LDK
所在階 17階
物件登録日 2025/07/31
参考賃料 32.0万円 〜 33.0万円
㎡数 70.26㎡
間取り 2LDK
所在階 25階
物件登録日 2025/07/04
参考賃料 33.0万円 〜 35.0万円
㎡数 64.85㎡
間取り 2LDK
所在階 21階
物件登録日 2025/06/23
参考賃料 21.5万円 〜 22.5万円
㎡数 40.26㎡
間取り 1LDK
所在階 18階
物件登録日 2025/06/08
参考賃料 22.0万円 〜 23.5万円
㎡数 45.69㎡
間取り 1LDK
所在階 7階
物件登録日 2025/04/21
参考賃料 28.0万円 〜 29.9万円
㎡数 60.22㎡
間取り 2LDK
所在階 9階
物件登録日 2025/04/07
参考賃料 20.8万円 〜 22.3万円
㎡数 45.36㎡
間取り 1LDK
所在階 6階
物件登録日 2025/03/21
参考賃料 27.5万円 〜 30.0万円
㎡数 62.31㎡
間取り 2LDK
所在階 23階
物件登録日 2025/01/18
参考賃料 34.0万円 〜 35.0万円
㎡数 57.33㎡
間取り 2LDK
所在階 40階
物件登録日 2024/12/12
参考賃料 34.0万円 〜 35.5万円
㎡数 73.72㎡
間取り 3LDK
所在階 19階
物件登録日 2024/10/17
参考賃料 20.0万円 〜 22.0万円
㎡数 40.26㎡
間取り 1LDK
所在階 27階
物件登録日 2024/09/12
参考賃料 29.8万円 〜 30.8万円
㎡数 67.98㎡
間取り 2LDK
所在階 21階
物件登録日 2024/09/03
参考賃料 25.0万円 〜 26.0万円
㎡数 55.34㎡
間取り 1LDK
所在階 33階
物件登録日 2024/08/09
参考賃料 32.0万円 〜 33.0万円
㎡数 70.26㎡
間取り 2LDK
所在階 25階
物件登録日 2024/03/14
参考賃料 17.6万円 〜 18.4万円
㎡数 38.11㎡
間取り 1LDK
所在階 10階
物件登録日 2023/12/01
参考賃料 18.5万円 〜 19.4万円
㎡数 45.69㎡
間取り 1LDK
所在階 7階
物件登録日 2023/08/25
参考賃料 20.8万円 〜 22.0万円
㎡数 42.67㎡
間取り 1LDK
所在階 39階
物件登録日 2023/08/14
参考賃料 22.9万円 〜 24.0万円
㎡数 58.26㎡
間取り 2LDK
所在階 8階
物件登録日 2023/08/10
参考賃料 26.0万円 〜 27.0万円
㎡数 57.33㎡
間取り 2LDK
所在階 33階
物件登録日 2023/05/23
参考賃料 26.0万円 〜 27.0万円
㎡数 55.34㎡
間取り 2LDK
所在階 35階
物件登録日 2023/03/06
参考賃料 42.8万円 〜 45.0万円
㎡数 84.54㎡
間取り 3SLDK
所在階 14階
物件登録日 2023/01/16
参考賃料 32.0万円 〜 33.0万円
㎡数 67.09㎡
間取り 1SLDK
所在階 21階
物件登録日 2022/12/27
参考賃料 42.8万円 〜 45.0万円
㎡数 84.54㎡
間取り 3SLDK
所在階 14階
物件登録日 2022/12/26
参考賃料 33.0万円 〜 34.0万円
㎡数 72.21㎡
間取り 2LDK
所在階 11階
物件登録日 2022/10/28
参考賃料 18.1万円 〜 19.0万円
㎡数 48.31㎡
間取り 1LDK
所在階 5階
物件登録日 2022/07/28
参考賃料 23.8万円 〜 25.0万円
㎡数 64.85㎡
間取り 2LDK
所在階 8階
物件登録日 2022/07/23
参考賃料 24.0万円 〜 26.2万円
㎡数 58.26㎡
間取り 2LDK
所在階 9階
物件登録日 2022/05/13
参考賃料 24.7万円 〜 26.9万円
㎡数 60.22㎡
間取り 2LDK
所在階 10階
物件登録日 2022/05/13
参考賃料 16.0万円 〜 16.8万円
㎡数 38.11㎡
間取り 1LDK
所在階 4階
物件登録日 2022/05/13

物件概要

物件名 ライズシティ池袋エアライズタワー
住所 東京都豊島区東池袋4丁目5-1
最寄駅 東京メトロ有楽町線 東池袋駅 徒歩1分
JR山手線 池袋駅 徒歩8分
賃料
160,000 ~ 428,000 円/月
築年月 2007/01(築20年)
間取り 1LDK-3LDK 専有面積 40.26-86.43㎡
物件特徴 構造 RC(鉄筋コンクリート)
総階数 地上42階
地下2階
総戸数 558戸
物件種別 マンション 登録日
更新日
2023/01/15
2023/05/12
設備
  • オートロック
  • TVドアホン
  • セキュリティシステム
  • 防犯カメラ
  • カードキーシステム
  • 24時間管理
  • エレベータ
  • エレベーター2機以上
  • ごみ出し24時間OK
  • 各階ゴミ置き場有
  • 宅配ボックス
  • 駐車場有
  • 大型駐車場
  • 駐輪場
  • バイク置き場
  • タワーマンション
  • 分譲賃貸
  • フロントサービス
  • コンシェルジュ
  • ラウンジ
  • フィットネスジム
  • ゲストルーム
  • ペット可住戸あり
  • 楽器可住戸あり
  • 駅近(3分以内)
  • 都市ガス

関連記事

  1. 徹底調査!目黒第一マンションズの事故物件情報一覧

  2. 徹底調査!パークタワー晴海の事故物件情報一覧

  3. 徹底調査!ミレニアムガーデンコートの事故物件情報一覧

  4. 徹底調査!大崎ガーデンレジデンスの事故物件情報一覧

  5. 徹底調査!ザ・クレストタワーの事故物件情報一覧

  6. 徹底調査!ロイヤルパークスタワー南千住の事故物件情報一覧

コメント

  • コメント (0)

  • トラックバックは利用できません。

  1. この記事へのコメントはありません。

厳選した高級物件をあなたに

高級賃貸東京は、一般的な不動産屋さんのように、「店舗で一緒に物件を探す」ことを基本的には行いません。

なぜかと言うと、店舗での物件探しでは対面になる分、お客様がご自身で検討できる時間が限られてしまうからです。

弊社では、メールなどで希望に沿った物件情報を複数お送りいたしますので、お客様のペースでじっくり比較・検討いただいた上で内覧・お申し込みをしていただくことができます。

このスタイルで営業しているため、店舗での物件紹介は原則しておりません。

高級賃貸東京が選ばれる理由

取引先企業様