「Park Court渋谷The Towerはどんなマンション?」「選ぶべき賃貸物件?」など、Park Court渋谷The Tower(以下、パークコート渋谷ザ・タワー)の賃貸を検討していませんか?
私たちはこれまで数多くの賃貸物件をご紹介してきましたが、パークコート渋谷ザ・タワーは、特に以下のようなお客様に自信を持っておすすめできる物件です。
- 人気の高級ブランドマンションに住みたい
- タワーマンションならではの豪華な施設を堪能したい
- 地震に強いタワーマンションがいい
- セキュリティのレベルを重視している
- ペットとの暮らしを大切にしたい
このページでは、この結論に至った背景や、知っておいていただきたい注意点を以下の流れで解説していきます。
- Park Court渋谷The Towerの5つの特徴
- Park Court渋谷The Towerのエントランスや室内イメージ
- Park Court渋谷The Towerの交通情報・周辺環境
- その他の特徴や注意点(審査難易度・事故情報など)
この記事を読めば、パークコート渋谷ザ・タワーがどのような物件で、他の賃貸マンションと何が違うのかを深く理解できます。その結果、検討している物件があなたにとって最適な住まいなのか、自信を持って判断できるようになるでしょう。
まずはじめに、Park Court渋谷The Towerで募集されていた部屋は以下のとおりです。新しい順に並んでいますが、詳しい募集時期は「物件登録日」をご覧ください。
弊社の仲介手数料は【無料】または【半額+tax】です。お客様の費用負担を少しでも軽くできるよう、全力でお部屋探しをお手伝いします。
物件アーカイブ 過去に募集された部屋一覧
| 参考賃料 | 38.3万円 〜 39.3万円 |
|---|---|
| ㎡数 | 41.72㎡ |
| 間取り | 1LDK |
| 所在階 | 5階 |
| 物件登録日 | 2026/04/14 |
| 参考賃料 | 130.0万円 〜 131.0万円 |
|---|---|
| ㎡数 | 91.91㎡ |
| 間取り | 2LDK |
| 所在階 | 34階 |
| 物件登録日 | 2026/04/14 |
| 参考賃料 | 65.0万円 〜 66.0万円 |
|---|---|
| ㎡数 | 74.46㎡ |
| 間取り | 2LDK |
| 所在階 | 3階 |
| 物件登録日 | 2026/03/28 |
| 参考賃料 | 32.0万円 〜 35.0万円 |
|---|---|
| ㎡数 | 40.01㎡ |
| 間取り | 1LDK |
| 所在階 | 14階 |
| 物件登録日 | 2026/03/18 |
| 参考賃料 | 125.0万円 〜 126.0万円 |
|---|---|
| ㎡数 | 113.72㎡ |
| 間取り | 2LDK |
| 所在階 | 38階 |
| 物件登録日 | 2026/03/10 |
| 参考賃料 | 31.0万円 〜 32.5万円 |
|---|---|
| ㎡数 | 40.04㎡ |
| 間取り | 1R |
| 所在階 | 7階 |
| 物件登録日 | 2026/03/10 |
| 参考賃料 | 45.0万円 〜 46.0万円 |
|---|---|
| ㎡数 | 49.3㎡ |
| 間取り | 1LDK |
| 所在階 | 28階 |
| 物件登録日 | 2026/02/10 |
| 参考賃料 | 67.0万円 〜 70.0万円 |
|---|---|
| ㎡数 | 74.46㎡ |
| 間取り | 2LDK |
| 所在階 | 16階 |
| 物件登録日 | 2026/02/04 |
| 参考賃料 | 69.0万円 〜 70.0万円 |
|---|---|
| ㎡数 | 74.46㎡ |
| 間取り | 2LDK |
| 所在階 | 11階 |
| 物件登録日 | 2026/02/02 |
| 参考賃料 | 70.0万円 〜 74.0万円 |
|---|---|
| ㎡数 | 73.24㎡ |
| 間取り | 2LDK |
| 所在階 | 25階 |
| 物件登録日 | 2026/01/13 |
| 参考賃料 | 125.0万円 〜 126.0万円 |
|---|---|
| ㎡数 | 113.72㎡ |
| 間取り | 2LDK |
| 所在階 | 38階 |
| 物件登録日 | 2026/01/05 |
| 参考賃料 | 33.0万円 〜 34.5万円 |
|---|---|
| ㎡数 | 40.01㎡ |
| 間取り | 1LDK |
| 所在階 | 13階 |
| 物件登録日 | 2025/12/23 |
| 参考賃料 | 34.5万円 〜 36.5万円 |
|---|---|
| ㎡数 | 40.07㎡ |
| 間取り | 1LDK |
| 所在階 | 15階 |
| 物件登録日 | 2025/12/23 |
| 参考賃料 | 32.5万円 〜 35.0万円 |
|---|---|
| ㎡数 | 40.04㎡ |
| 間取り | 1R |
| 所在階 | 12階 |
| 物件登録日 | 2025/12/23 |
| 参考賃料 | 68.0万円 〜 70.0万円 |
|---|---|
| ㎡数 | 74.87㎡ |
| 間取り | 1LDK |
| 所在階 | 30階 |
| 物件登録日 | 2025/12/19 |
| 参考賃料 | 115.0万円 〜 116.0万円 |
|---|---|
| ㎡数 | 94.07㎡ |
| 間取り | 2LDK |
| 所在階 | 35階 |
| 物件登録日 | 2025/12/15 |
| 参考賃料 | 68.0万円 〜 71.0万円 |
|---|---|
| ㎡数 | 74.87㎡ |
| 間取り | 3LDK |
| 所在階 | 22階 |
| 物件登録日 | 2025/12/11 |
| 参考賃料 | 61.0万円 〜 62.0万円 |
|---|---|
| ㎡数 | 62.30㎡ |
| 間取り | 2LDK |
| 所在階 | 31階 |
| 物件登録日 | 2025/12/08 |
| 参考賃料 | 33.7万円 〜 35.2万円 |
|---|---|
| ㎡数 | 43.38㎡ |
| 間取り | 1LDK |
| 所在階 | 13階 |
| 物件登録日 | 2025/12/01 |
| 参考賃料 | 65.0万円 〜 66.0万円 |
|---|---|
| ㎡数 | 72.52㎡ |
| 間取り | 2LDK |
| 所在階 | 10階 |
| 物件登録日 | 2025/11/28 |
| 参考賃料 | 70.0万円 〜 71.0万円 |
|---|---|
| ㎡数 | 74.87㎡ |
| 間取り | 1LDK |
| 所在階 | 30階 |
| 物件登録日 | 2025/11/26 |
| 参考賃料 | 75.0万円 〜 76.0万円 |
|---|---|
| ㎡数 | 74.87㎡ |
| 間取り | 2LDK |
| 所在階 | 23階 |
| 物件登録日 | 2025/11/04 |
| 参考賃料 | 70.0万円 〜 71.0万円 |
|---|---|
| ㎡数 | 74.87㎡ |
| 間取り | 1LDK |
| 所在階 | 30階 |
| 物件登録日 | 2025/10/27 |
| 参考賃料 | 55.0万円 〜 58.0万円 |
|---|---|
| ㎡数 | 65.93㎡ |
| 間取り | 2LDK |
| 所在階 | 12階 |
| 物件登録日 | 2025/10/23 |
| 参考賃料 | 48.0万円 〜 50.0万円 |
|---|---|
| ㎡数 | 59.64㎡ |
| 間取り | 1LDK |
| 所在階 | 9階 |
| 物件登録日 | 2025/10/17 |
| 参考賃料 | 55.0万円 〜 58.0万円 |
|---|---|
| ㎡数 | 65.93㎡ |
| 間取り | 2LDK |
| 所在階 | 12階 |
| 物件登録日 | 2025/10/15 |
| 参考賃料 | 67.0万円 〜 70.0万円 |
|---|---|
| ㎡数 | 62.30㎡ |
| 間取り | 2LDK |
| 所在階 | 31階 |
| 物件登録日 | 2025/09/29 |
| 参考賃料 | 63.0万円 〜 64.0万円 |
|---|---|
| ㎡数 | 72.52㎡ |
| 間取り | 2LDK |
| 所在階 | 7階 |
| 物件登録日 | 2025/09/28 |
| 参考賃料 | 74.0万円 〜 75.0万円 |
|---|---|
| ㎡数 | 72.52㎡ |
| 間取り | 2LDK |
| 所在階 | 19階 |
| 物件登録日 | 2025/09/16 |
| 参考賃料 | 34.5万円 〜 38.0万円 |
|---|---|
| ㎡数 | 41.72㎡ |
| 間取り | 1LDK |
| 所在階 | 16階 |
| 物件登録日 | 2025/09/11 |
| 参考賃料 | 115.0万円 〜 116.0万円 |
|---|---|
| ㎡数 | 94.07㎡ |
| 間取り | 2LDK |
| 所在階 | 35階 |
| 物件登録日 | 2025/09/02 |
| 参考賃料 | 35.0万円 〜 36.0万円 |
|---|---|
| ㎡数 | 40.9㎡ |
| 間取り | 1LDK |
| 所在階 | 27階 |
| 物件登録日 | 2025/08/26 |
| 参考賃料 | 67.0万円 〜 70.0万円 |
|---|---|
| ㎡数 | 75.32㎡ |
| 間取り | 2LDK |
| 所在階 | 3階 |
| 物件登録日 | 2025/08/19 |
| 参考賃料 | 36.0万円 〜 37.0万円 |
|---|---|
| ㎡数 | 40.01㎡ |
| 間取り | 1LDK |
| 所在階 | 20階 |
| 物件登録日 | 2025/08/12 |
| 参考賃料 | 60.0万円 〜 63.0万円 |
|---|---|
| ㎡数 | 65.93㎡ |
| 間取り | 2LDK |
| 所在階 | 12階 |
| 物件登録日 | 2025/08/12 |
| 参考賃料 | 42.0万円 〜 43.0万円 |
|---|---|
| ㎡数 | 47.03㎡ |
| 間取り | 1LDK |
| 所在階 | 11階 |
| 物件登録日 | 2025/07/30 |
| 参考賃料 | 55.0万円 〜 56.0万円 |
|---|---|
| ㎡数 | 59.86㎡ |
| 間取り | 1LDK |
| 所在階 | 12階 |
| 物件登録日 | 2025/07/29 |
| 参考賃料 | 33.5万円 〜 37.0万円 |
|---|---|
| ㎡数 | 41.72㎡ |
| 間取り | 1LDK |
| 所在階 | 10階 |
| 物件登録日 | 2025/07/28 |
| 参考賃料 | 60.0万円 〜 63.0万円 |
|---|---|
| ㎡数 | 65.93㎡ |
| 間取り | 2LDK |
| 所在階 | 12階 |
| 物件登録日 | 2025/07/15 |
| 参考賃料 | 47.0万円 〜 48.0万円 |
|---|---|
| ㎡数 | 59.64㎡ |
| 間取り | 1LDK |
| 所在階 | 18階 |
| 物件登録日 | 2025/07/14 |
| 参考賃料 | 68.0万円 〜 69.0万円 |
|---|---|
| ㎡数 | 72.52㎡ |
| 間取り | 2LDK |
| 所在階 | 6階 |
| 物件登録日 | 2025/07/10 |
| 参考賃料 | 69.0万円 〜 72.0万円 |
|---|---|
| ㎡数 | 74.46㎡ |
| 間取り | 2LDK |
| 所在階 | 17階 |
| 物件登録日 | 2025/07/08 |
| 参考賃料 | 30.0万円 〜 32.0万円 |
|---|---|
| ㎡数 | 40.04㎡ |
| 間取り | 1R |
| 所在階 | 16階 |
| 物件登録日 | 2025/07/08 |
| 参考賃料 | 65.0万円 〜 66.0万円 |
|---|---|
| ㎡数 | 74.46㎡ |
| 間取り | 2LDK |
| 所在階 | 5階 |
| 物件登録日 | 2025/07/07 |
| 参考賃料 | 45.3万円 〜 47.3万円 |
|---|---|
| ㎡数 | 59.64㎡ |
| 間取り | 1LDK |
| 所在階 | 8階 |
| 物件登録日 | 2025/06/13 |
| 参考賃料 | 49.0万円 〜 51.0万円 |
|---|---|
| ㎡数 | 59.34㎡ |
| 間取り | 1LDK |
| 所在階 | 11階 |
| 物件登録日 | 2025/06/10 |
| 参考賃料 | 32.0万円 〜 34.0万円 |
|---|---|
| ㎡数 | 41.72㎡ |
| 間取り | 1LDK |
| 所在階 | 17階 |
| 物件登録日 | 2025/05/30 |
| 参考賃料 | 60.0万円 〜 63.0万円 |
|---|---|
| ㎡数 | 65.93㎡ |
| 間取り | 2LDK |
| 所在階 | 12階 |
| 物件登録日 | 2025/05/19 |
| 参考賃料 | 39.9万円 〜 40.9万円 |
|---|---|
| ㎡数 | 49.3㎡ |
| 間取り | 1LDK |
| 所在階 | 29階 |
| 物件登録日 | 2025/05/01 |
1. Park Court渋谷The Towerの5つの特徴
パークコート渋谷ザ・タワーには、以下の特徴があります。
- 高級マンションブランド「Park Court」シリーズの1つ
- 渋谷で共用施設が最も充実しているタワーマンション
- 地震に強い「制震構造」で建てられている
- 24時間有人管理の厳重なセキュリティ
- 大切なペットと快適に暮らせる
その分、賃料は高めですが、これらに魅力を感じるなら、ぜひ前向きにご検討ください。
1-1. 高級マンションブランド「Park Court」シリーズの1つ
パークコート渋谷ザ・タワーは、都内でも屈指の高級ブランドマンションとして有名な「Park Court」シリーズの1つです。
中でも、パークコートのタワーマンションは、1部屋の価格が数億円で取引されるほど、高いグレードを誇ります。
また、パークコート渋谷ザ・タワーと同様に、都心の一等地にあるパークコートのタワーマンションは、以下のように外観デザインのレベルも桁違いに高いです。
| パークコート赤坂檜町 ザ タワー |
![]() |
| パークコート青山 ザ タワー |
![]() |
| パークコート麻布十番 ザ タワー |
![]() |
| 画像引用元:三井不動産 |
分譲賃貸として貸し出される
パークコート渋谷ザ・タワーは、オーナー様が購入されたお部屋を賃貸として貸し出す、いわゆる分譲賃貸マンションです。
そのため、数億円もするようなハイクラスなお部屋を賃貸で借りられるのが大きな魅力です。人気の部屋は時期を問わずすぐに埋まってしまうため、まさに早い者勝ちとなります。
ちなみに、過去に募集されたお部屋の賃料を間取りごとにまとめると、以下のようになります。
| 1LDK | 2LDK | 3LDK |
| 30~88万円 | 55~113万円 | 65~110万円 |
1-2. 渋谷で共用施設が最も充実しているタワーマンション
パークコート渋谷ザ・タワーの魅力的なポイントの1つが、以下の豪華な共用施設の数々です。
| クリエイティブラウンジ | ゴルフレンジ |
![]() |
![]() |
| フィットネスルーム | スクリーニングルーム |
![]() |
![]() |
| メディアラウンジ | ザ パークビューラウンジ |
![]() |
![]() |
| 画像引用元:HOME’S | |
渋谷エリアには多くのタワーマンションがありますが、パークコート渋谷ザ・タワーほど共用施設が充実しているタワーマンションはありません。
下記は、パークコート渋谷ザ・タワーにある共用施設の一覧です。
- パーティルーム
- フィットネスルーム
- パークビューラウンジ
- コワーキングラウンジ
- クリエイティブラウンジ
- ブックラウンジ
- メディアラウンジ
- ゲストルーム
- ゴルフレンジ
- スクリーニングルーム
- ミーティングルーム
- スタディルーム
数が多いだけでなく、高級ホテルのような豪華なデザイン性も魅力的です。
なお、上記の共用施設の利用に関しては、有料で予約を必要とする施設もあります。
渋谷エリアにある他のタワーマンションとの比較
| マンション名 | 共用施設の数 |
| Park Court渋谷The Tower | 12 |
| ラ・トゥール渋谷 | 2 |
| パーク・アヴェニュー神南 | 2 |
| ラ・トゥール渋谷宇田川 | 1 |
1-3. 地震に強い「制震構造」で建てられている
パークコート渋谷ザ・タワーは、日本の準大手ゼネコンである「東急建設」が施工した、地震に強い「制震構造」のタワーマンションです。
制震構造は、建物に組み込まれた「制震装置」が地震のエネルギーを吸収することで、大きな揺れが来た際にも建物の被害を軽減できる仕組みです。
また、タワーマンションに採用される耐震構造は主に3つありますが、中でも制震構造は非常にバランスの取れた構造と言えます。
| 免震構造 | 制震構造 | 耐震構造 | |
| 地震の揺れ | ほぼ感じない | 軽減 | 揺れやすい |
| 建物の被害 | 大幅に軽減 | 軽減 | 受けやすい |
| 家具に被害 | 大幅に軽減 | 軽減 | 転倒や移動 |
| 強風による揺れ | ゆっくりと長く揺れる | ほぼ感じない | ほぼ感じない |
高層建築物でも広く採用されている
制震構造はタワーマンションだけでなく、高層建築物にも広く採用されている信頼度の高い構造です。
以下は、制震構造を採用している有名な高層建築物です。
| 東京都庁 |
![]() |
| 東京スカイツリー |
![]() |
これらの理由から、「タワーマンションに住みたいけれど、地震が心配」という方にも、積極的にご検討いただきたい物件です。
1-4. 24時間有人管理の厳重なセキュリティ
パークコート渋谷ザ・タワーには24時間体制で警備員が常駐しているため、夜間でも安心して暮らすことができます。
また、エントランスに加え、エレベーターホールにもオートロックを完備。不審者の侵入を二重でブロックするため、女性の一人暮らしや小さなお子様がいるご家庭でも、安心して毎日をお過ごしいただけます。
さらに、エレベーターはお部屋の鍵がないと呼び出せない仕組みです。居住者以外はフロアに上がれないため、セキュリティ面でも安心感が違います。
コンシェルジュによるセキュリティも万全
フロントデスクには専用のコンシェルジュがおりますので、人的なセキュリティも万全を期しています。
なお、日中であれば、下記のコンシェルジュサービスを提供しています。
- インフォメーションサービス
- ゲストの受付
- 共用施設の予約受付
- クリーニングの取次
- 宅配便の取次
- タクシー・ハイヤーの配車手配
- 来客用駐車場の予約受付
- ハウスメイド・ハウスクリーニング紹介
- 備品貸し出しサービス
- 切手・粗大ゴミ処理券の販売
1-5. 大切なペットと快適に暮らせる
パークコート渋谷ザ・タワーでオーナー様がペット飼育を許可しているお部屋では、以下のペットとのご入居が可能です。
- 小型犬
- 猫
- 小動物
ペットの大きさや種類によっては、オーナー様や管理組合の承諾が必要となります。そのため、必ず事前に不動産会社にご相談ください。
また、ペットを飼うときは敷金が1ヶ月分積み増しとなりますので、初期費用が高くなる点に注意しましょう。
代々木公園を散歩コースにできる
マンションから歩いて5分の場所に「代々木公園」があるので、広々とした緑豊かな環境でストレスを与えることなく散歩ができます。

動物病院やペットサロンも充実
マンションから歩いて6分の場所に「渋谷犬猫病院」がありますので、ペットの体調が優れないときでも安心です。
また、15分ほど歩きますが、ホテルやトリミングのサービスを提供している「PET HILLS」というお店があるので、旅行や出張のとき便利に利用できます。
2. パークコート渋谷ザ・タワーのエントランスや室内イメージ
パークコート渋谷ザ・タワーの魅力をより具体的にイメージしていただけるよう、室内の様子と共用スペースを以下の4つのカテゴリに分けて写真でご紹介します。
2-1. エントランス
エントランスは、渋谷という街並みを表現したような、遊び心あるデザイン性の高い作りとなっています。




高級ホテル顔負けのエントランスホールには、コンシェルジュカウンターもしっかり用意されています。
画像引用元:HOME’S
奥に進むと2つ目のオートロックが設置してあります。

エレベーターホールもアーティスティックな内装となっています。

共用廊下も上品な空間
エレベーターを降りた先は、ホテルライクな内廊下の仕様となっています。

2-2. 共用部
繰り返しになりますが、パークコート渋谷ザ・タワーは、渋谷エリアにあるタワーマンションのなかでも群を抜いて共用施設が充実しており、タワーマンションならではの生活を求める方には理想の物件と言えます。
この章では、共用施設の概要や利用料金などをより詳しく解説していきます。
クリエイティブラウンジ
エントランスホールを抜けた先には、階段上に作られたクリエイティブラウンジがあり、来客との待ち合わせや談笑などに活用できます。


コワーキングラウンジ

コワーキングラウンジは、仕事に集中したいときに利用したり、ちょっとした会議などにも活用できます。
メディアラウンジ
画像引用元:三井のすまいLOOP
メディアラウンジは、パソコンを利用しての調べ物やテレワークなど様々な用途に活用できます。
ザ パークビューラウンジ




ザ パークビューラウンジは、20階と21階が2層吹き抜けになった展望空間で、都心部の景色を眺めながらくつろぐことができます。
また、20階にはバーが設けられており、お酒を楽しむこともできます。
| ・利用時間 |
|
| ・利用料金 |
|
ブックラウンジ

ライブラリーラウンジでは、空き時間などに気軽に読書を楽しむことができます。
ゴルフレンジ

シュミレーターでゴルフの練習ができるゴルフラウンジが設けられています。
| ・利用時間 |
|
| ・利用料金 |
|
スクリーニングルーム

スクリーニングルームでは、大型スクリーンで好きな映画などを楽しむことができます。
| ・利用時間 |
|
| ・利用料金 |
|
ゲストルーム

ゲストルームとは、友人や家族を招く際などに活用できる宿泊施設のことで、パークコート渋谷ザ・タワーには2室が用意されています。
| ・利用時間 |
|
| ・利用料金 |
|
パーティールーム

キッチンも完備されたパーティールームは、大人数でのイベントや入居者同士の交流会などに活用できます。
| ・利用時間 |
|
| ・利用料金 |
|
スタディルーム

仕事や勉強に集中できるスタディルームも設けられています。
| ・利用時間 |
|
| ・利用料金 |
|
フィットネスルーム
画像引用元:三井のすまいLOOP
パークコート渋谷ザ・タワーのフィットネスルームは21階と高層階に設けられているため、景色を楽しみながら体を動かすことができます。
| ・利用時間 |
|
| ・利用料金 |
|
その他には、コピー機などが完備されたオフィスサポートコーナーも設けられています。
フロントデスクではコンシェルジュが対応
エントランスホールにあるフロントデスクには、コンシェルジュスタッフが駐在しています。
サービスとしては、来訪者の受付・案内や、クリーニングの取次などのサービスを受けることができます。
2-3. 室内イメージ
リビングなどの室内の様子は以下の写真をご参照ください。(※これらの写真は過去に募集されていたお部屋のものですので、実際の内容とは異なる可能性があります。ご了承ください。)
![]() |
![]() |
![]() |
![]() |
![]() |
![]() |
![]() |
![]() |
![]() |
![]() |
水回りの雰囲気は下記のようになっており、どれも洗練された作りです。
![]() |
![]() |
![]() |
![]() |
また、高層階にはよりハイグレードな部屋が用意されており、内装も以下の通りゴージャスな作りとなっています。(※この部屋は32階にあります。)
![]() |
![]() |
![]() |
![]() |
![]() |
![]() |
![]() |
![]() |
| 画像引用元:HOME’S | |
室内の素材や雰囲気は、お部屋によって異なります。必ず内見でご確認ください。
高層階の「北向き」は代々木公園を一望できる
高層階で窓が北向きにある部屋であれば、以下のように代々木公園を部屋から一望できます。
画像引用元:HOME’S
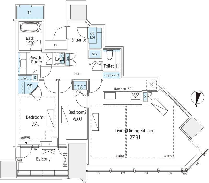
2-4. 間取り
現在募集中の部屋がない場合もございますが、パークコート渋谷ザ・タワーの代表的な部屋の間取りをご紹介します。
1LDK
![]() |
![]() |
| 40.9㎡(12.37坪) | 43.38㎡(13.12坪) |
![]() |
![]() |
| 47.03㎡(14.23坪) | 62.72㎡(18.97坪) |
2LDK
![]() |
![]() |
| 74.46㎡(22.52坪) | 74.87㎡(22.65坪) |
![]() |
![]() |
| 75.32㎡(22.78坪) | 111.9㎡(33.85坪) |
| 間取り図引用元:HOME’S | |
3. パークコート渋谷ザ・タワーザ タワーの交通情報・周辺環境
パークコート渋谷ザ・タワーの周辺施設(駅やコンビニなど)をマップにまとめましたので、以下をご覧ください。
引用:Google Map
パークコート渋谷ザ・タワーは渋谷駅にも徒歩圏内ということもあり、マンション周辺にはコンビニも多くあります。
ただ、スーパーが少なく、食材の買い出しに困る可能性があります。
3-1. 交通アクセスについて
パークコート渋谷ザ・タワーは主に以下4つの駅が利用できます。
| 駅名 | 分数 | 路線 |
| 渋谷駅 | 10分 |
|
| 明治神宮前駅 | 10分 |
|
| 原宿駅 | 10分 |
|
| 代々木公園駅 | 12分 |
|
合計12路線を使えるので、都心内の移動で不便に感じることはないでしょう。
空港へのアクセスも便利
渋谷駅とつながる「渋谷マークシティ」から、羽田空港と成田空港に直結のリムジンバスが発着しています。
ですので、日頃から飛行機を利用する人にとっても便利な駅です。
首都高の出入口も近い
すぐ近くに首都高の「富ヶ谷IC」があるので、車移動が多い方にも便利な立地です。
マンションの駐車場からわずか4~5分で首都高速道路に乗れるため、下道の渋滞に巻き込まれる心配もありません。
タクシー移動にも便利な立地
渋谷に近い立地ですのでタクシーを使うときも便利です。
都心の主要エリアからマンションまで、タクシーをご利用いただいた場合の目安時間と料金は以下の通りです。
| エリア | 通常料金(深夜料金) | 時間 |
| 新宿駅 | 1,540円(1,780円) | 約10~20分 |
| 六本木駅 | 1,700円(2,020円) | 約20分 |
| 品川駅 | 2,820円(3,380円) | 約20~30分 |
| 銀座駅 | 3,300円(3,940円) | 約30分 |
| 東京駅 | 3,540円(4,260円) | 約30~40分 |
3-2. 周辺のコンビニやスーパー・薬局について
パークコート渋谷ザ・タワー周辺にはコンビニが充実していて、日々の生活も便利です。
ただし、マンション周辺にスーパーが少なく、一番近い「まいばすけっと渋谷神山町店」までは徒歩4分で行けますが、それ以外はどれも徒歩10分前後かかります。
引用:Google Map
なお、マンション周辺にある生活に便利な施設までの距離は、下記のようになっています。
| ・コンビニ |
|
| ・スーパー |
|
| ・ドラッグストア |
|
| ・クリーニング店 |
|
3-3. 飲食店について
パークコート渋谷ザ・タワーは、都内屈指の繁華街である渋谷駅周辺に建っているため、マンション周辺にも下記のような飲食店が多く揃っています。
- カフェ
- イタリアンレストラン
- フレンチレストラン
- 和食店
- そば・うどん店
- 寿司屋
- 天ぷら
- ダイニングバー
- 中華料理店
- 焼肉・鉄板焼き
- ファストフード店
これだけ多くのお店を利用できるので、外食の予定で困ることはないと言えるでしょう。
パークコート渋谷ザ・タワー周辺のその他のグルメ情報
その他、以下のようにチェーンの飲食店も周辺にあります。
|
・ファミレス |
|
|
・牛丼・定食など |
|
|
・カフェ |
|
3-4. 学区域や保育園について
パークコート渋谷ザ・タワーの学区域は以下の通りです。(※学区域は変更になる場合があります。最新の情報は、各区教育委員会のウェブサイト等でご確認ください。)
| 小学校 | 中学校 |
| 神南小学校 | 松濤中学校 |
| 徒歩3分 | 徒歩9分 |
学校選択制度について
渋谷区の中学校は、地域によって入学すべき中学校が「指定校」や「調整校」として決まっています。
ただし、「指定校」や「調整校」以外の渋谷区内の中学校も希望できる「学校選択制度」も利用可能です。
保育園について
保育園は歩いて7分の場所に「渋谷もりのこ神南」がありますので、入園できれば共働き家庭の負担も減るでしょう。
この他にも周辺には複数の保育園がございます。
引用:Google Map
3-5. 周辺の治安について
マンション周辺の治安は悪いです。
以下のマップは、2022年の1年間を通して、犯罪(自転車盗難なども含む)が合計で何件発生したのかを示したものです。
引用:警視庁犯罪情報マップ
パークコート渋谷ザ・タワーの建つ地域は、犯罪の多い赤色に塗られているため、女性の方や小さな子供のいる家族の方は慎重に検討しましょう。
ただ、マンションの周辺には複数の交番や警察署があるので、いざという時には心強く、安心感を与えてくれます。
パークコート渋谷ザ・タワーの入り口付近
以下の写真の通り、マンション前には道幅の広い歩道が整備されているので、お子さま連れでも安心です。
引用:Google Map
3-6. 洪水などによる浸水リスクについて
ハザードマップ上、最大規模の氾濫時でも浸水リスクはないとされており、安心してお住まいいただけます。(※ハザードマップは変更されるケースがあります。最新の情報は、各自治体のウェブサイト等でご確認ください。)
4. その他の特徴や注意点(審査難易度・事故情報など)
その他に、ここまでに挙げきれなかった、以下9個のパークコート渋谷ザ・タワーの特徴や注意点を紹介します。
- 駐車場が使える
- 楽器の演奏ができる
- インターネットが無料で使える
- 各階で24時間ゴミ出しができる
- 保証会社の利用が必須
- 審査難易度は部屋次第
- 礼金を2ヶ月分求められる部屋もある
- 定期借家契約について
- 事故物件情報は該当なし
4-1. 駐車場が使える
パークコート渋谷ザ・タワーには、駐車場が用意されています。
空き状況にもよりますが、平置きと機械式パーキングが利用可能で、大きさに合わせて「月55,000~75,900円(税込)」が賃料の目安です。
駐車場のサイズは以下の通りです。お借りになる際は、車検証でサイズを必ずご確認ください。
- 全長:5,300mm
- 全幅:1,950mm
- 全高:2,050mm
- 重量:2,600kg
駐輪場とバイク置き場について
パークコート渋谷ザ・タワーには駐輪場とバイク置き場があり、賃料の目安は下記の通りです。
- 駐輪場:200~500円/月
- バイク置き場:2,000~3,000円/月
4-2. 楽器の演奏ができる
パークコート渋谷ザ・タワーは、オーナー様が楽器演奏を許可しているお部屋に限り、楽器演奏が可能です。
ただし、楽器の種類や演奏時間には規定がございます。後のトラブルを避けるためにも、ご希望の条件での演奏が可能か、ご契約前に必ず確認しましょう。
4-3. インターネットが無料で使える
パークコート渋谷ザ・タワーはインターネットが無料で利用できます。
部屋にネット回線が引き込まれているので、面倒な手続きも必要なく、入居後すぐに接続可能です。
また、お好きなWi-Fiルーターを自身で用意すれば、どの部屋に居ても快適なネット環境が整います。
4-4. 各階で24時間ゴミ出しができる
パークコート渋谷ザ・タワーでは、各階にゴミ捨て場が設置されており、24時間365日いつでもゴミを捨てることができます。
粗大ゴミは所定の場所へ持ち出す必要がありますが、日々のゴミ捨てでエレベーターを使わずに済むのは魅力的です。
4-5. 保証会社の利用が必須
パークコート渋谷ザ・タワーの多くの部屋が保証会社の利用を必須としています。
契約する保証会社は部屋によって異なるため、明確な費用は算出できませんが、初回保証料として総賃料の40~50%が相場となります。
借りる方にとっては追加費用が発生するものの、連帯保証人を用意する手間が省けるというメリットがあります。
4-6. 審査難易度は部屋次第
結論、パークコート渋谷ザ・タワーは分譲マンションのため、オーナー様によって審査の難易度が異なります。
したがって、特定の部屋の審査に落ちた場合でも、別の部屋であれば審査に通る可能性は十分にあります。
もし他にも気になるお部屋がある場合は、改めて申し込みが可能かどうか、不動産会社にご確認ください。
4-7. 礼金を2ヶ月分求められる部屋もある
パークコート渋谷ザ・タワーの部屋を借りる際、礼金を2ヶ月分求められるケースもあります。
仮に賃料が50万円の場合、礼金だけで100万円も払うことになるので、無駄な出費が増えてしまいます。
稀に交渉によって礼金が安くなるケースもありますが、交渉を一切受け付けないオーナー様も多いのが実情です。そのため、類似物件と比較した上で慎重にご検討ください。
以下は、礼金0で募集されることが多い、渋谷にある類似のタワーマンションです。
| ラ・トゥール渋谷宇田川 | ラ・トゥール渋谷神南 |
![]() |
![]() |
| 画像引用元:住友不動産 | |
4-8. 定期借家契約について
パークコート渋谷ザ・タワーでは、「定期借家契約」となるお部屋が多く見られます。
定期借家契約は期間限定の契約ですが、基本的には一般的な賃貸契約の更新と同様に再契約を結ぶことで、引き続き住み続けられるケースがほとんどです。
ただし、オーナー様が一時的に留守にする期間だけ貸し出しているお部屋など、再契約ができない場合もありますのでご注意ください。
また、再契約時には、近隣相場に合わせて賃料が変更になる可能性もあります。
4-9. 事故物件情報は該当なし
事故情報(過去の事件や事故)を「事故物件検索サイト(https://www.oshimaland.co.jp/)」やTwitterなどのSNS、Google検索で調べました。
その結果、パークコート渋谷ザ・タワーが事故物件に該当する情報は見当たりませんでした。
ただし、不動産業者から提示される資料に「告知事項あり」と表記されている場合は、事故やその他のトラブルにつながる事柄がある可能性が高いです。そのため、必ず内容を確認するようにしましょう。
5. まとめ
ここまでをまとめると、Park Court渋谷The Towerは、「賃料は高いが、それに見合った高いスペックのマンション」です。
これらの特徴を踏まえると、以下に当てはまる方には特におすすめしたい物件です。
- 人気の高級ブランドマンションに住みたい
- タワーマンションならではの豪華な施設を堪能したい
- 地震に強いタワーマンションがいい
- セキュリティのレベルを重視している
- ペットとの暮らしを大切にしたい
改めて、過去に募集された部屋は以下の通りです。気になる部屋があれば、お気軽にご連絡をお待ちしています。
物件アーカイブ 過去に募集された部屋一覧
| 参考賃料 | 38.3万円 〜 39.3万円 |
|---|---|
| ㎡数 | 41.72㎡ |
| 間取り | 1LDK |
| 所在階 | 5階 |
| 物件登録日 | 2026/04/14 |
| 参考賃料 | 130.0万円 〜 131.0万円 |
|---|---|
| ㎡数 | 91.91㎡ |
| 間取り | 2LDK |
| 所在階 | 34階 |
| 物件登録日 | 2026/04/14 |
| 参考賃料 | 65.0万円 〜 66.0万円 |
|---|---|
| ㎡数 | 74.46㎡ |
| 間取り | 2LDK |
| 所在階 | 3階 |
| 物件登録日 | 2026/03/28 |
| 参考賃料 | 32.0万円 〜 35.0万円 |
|---|---|
| ㎡数 | 40.01㎡ |
| 間取り | 1LDK |
| 所在階 | 14階 |
| 物件登録日 | 2026/03/18 |
| 参考賃料 | 125.0万円 〜 126.0万円 |
|---|---|
| ㎡数 | 113.72㎡ |
| 間取り | 2LDK |
| 所在階 | 38階 |
| 物件登録日 | 2026/03/10 |
| 参考賃料 | 31.0万円 〜 32.5万円 |
|---|---|
| ㎡数 | 40.04㎡ |
| 間取り | 1R |
| 所在階 | 7階 |
| 物件登録日 | 2026/03/10 |
| 参考賃料 | 45.0万円 〜 46.0万円 |
|---|---|
| ㎡数 | 49.3㎡ |
| 間取り | 1LDK |
| 所在階 | 28階 |
| 物件登録日 | 2026/02/10 |
| 参考賃料 | 67.0万円 〜 70.0万円 |
|---|---|
| ㎡数 | 74.46㎡ |
| 間取り | 2LDK |
| 所在階 | 16階 |
| 物件登録日 | 2026/02/04 |
| 参考賃料 | 69.0万円 〜 70.0万円 |
|---|---|
| ㎡数 | 74.46㎡ |
| 間取り | 2LDK |
| 所在階 | 11階 |
| 物件登録日 | 2026/02/02 |
| 参考賃料 | 70.0万円 〜 74.0万円 |
|---|---|
| ㎡数 | 73.24㎡ |
| 間取り | 2LDK |
| 所在階 | 25階 |
| 物件登録日 | 2026/01/13 |
| 参考賃料 | 125.0万円 〜 126.0万円 |
|---|---|
| ㎡数 | 113.72㎡ |
| 間取り | 2LDK |
| 所在階 | 38階 |
| 物件登録日 | 2026/01/05 |
| 参考賃料 | 33.0万円 〜 34.5万円 |
|---|---|
| ㎡数 | 40.01㎡ |
| 間取り | 1LDK |
| 所在階 | 13階 |
| 物件登録日 | 2025/12/23 |
| 参考賃料 | 34.5万円 〜 36.5万円 |
|---|---|
| ㎡数 | 40.07㎡ |
| 間取り | 1LDK |
| 所在階 | 15階 |
| 物件登録日 | 2025/12/23 |
| 参考賃料 | 32.5万円 〜 35.0万円 |
|---|---|
| ㎡数 | 40.04㎡ |
| 間取り | 1R |
| 所在階 | 12階 |
| 物件登録日 | 2025/12/23 |
| 参考賃料 | 68.0万円 〜 70.0万円 |
|---|---|
| ㎡数 | 74.87㎡ |
| 間取り | 1LDK |
| 所在階 | 30階 |
| 物件登録日 | 2025/12/19 |
| 参考賃料 | 115.0万円 〜 116.0万円 |
|---|---|
| ㎡数 | 94.07㎡ |
| 間取り | 2LDK |
| 所在階 | 35階 |
| 物件登録日 | 2025/12/15 |
| 参考賃料 | 68.0万円 〜 71.0万円 |
|---|---|
| ㎡数 | 74.87㎡ |
| 間取り | 3LDK |
| 所在階 | 22階 |
| 物件登録日 | 2025/12/11 |
| 参考賃料 | 61.0万円 〜 62.0万円 |
|---|---|
| ㎡数 | 62.30㎡ |
| 間取り | 2LDK |
| 所在階 | 31階 |
| 物件登録日 | 2025/12/08 |
| 参考賃料 | 33.7万円 〜 35.2万円 |
|---|---|
| ㎡数 | 43.38㎡ |
| 間取り | 1LDK |
| 所在階 | 13階 |
| 物件登録日 | 2025/12/01 |
| 参考賃料 | 65.0万円 〜 66.0万円 |
|---|---|
| ㎡数 | 72.52㎡ |
| 間取り | 2LDK |
| 所在階 | 10階 |
| 物件登録日 | 2025/11/28 |
| 参考賃料 | 70.0万円 〜 71.0万円 |
|---|---|
| ㎡数 | 74.87㎡ |
| 間取り | 1LDK |
| 所在階 | 30階 |
| 物件登録日 | 2025/11/26 |
| 参考賃料 | 75.0万円 〜 76.0万円 |
|---|---|
| ㎡数 | 74.87㎡ |
| 間取り | 2LDK |
| 所在階 | 23階 |
| 物件登録日 | 2025/11/04 |
| 参考賃料 | 70.0万円 〜 71.0万円 |
|---|---|
| ㎡数 | 74.87㎡ |
| 間取り | 1LDK |
| 所在階 | 30階 |
| 物件登録日 | 2025/10/27 |
| 参考賃料 | 55.0万円 〜 58.0万円 |
|---|---|
| ㎡数 | 65.93㎡ |
| 間取り | 2LDK |
| 所在階 | 12階 |
| 物件登録日 | 2025/10/23 |
| 参考賃料 | 48.0万円 〜 50.0万円 |
|---|---|
| ㎡数 | 59.64㎡ |
| 間取り | 1LDK |
| 所在階 | 9階 |
| 物件登録日 | 2025/10/17 |
| 参考賃料 | 55.0万円 〜 58.0万円 |
|---|---|
| ㎡数 | 65.93㎡ |
| 間取り | 2LDK |
| 所在階 | 12階 |
| 物件登録日 | 2025/10/15 |
| 参考賃料 | 67.0万円 〜 70.0万円 |
|---|---|
| ㎡数 | 62.30㎡ |
| 間取り | 2LDK |
| 所在階 | 31階 |
| 物件登録日 | 2025/09/29 |
| 参考賃料 | 63.0万円 〜 64.0万円 |
|---|---|
| ㎡数 | 72.52㎡ |
| 間取り | 2LDK |
| 所在階 | 7階 |
| 物件登録日 | 2025/09/28 |
| 参考賃料 | 74.0万円 〜 75.0万円 |
|---|---|
| ㎡数 | 72.52㎡ |
| 間取り | 2LDK |
| 所在階 | 19階 |
| 物件登録日 | 2025/09/16 |











































