「晴海アイランド トリトンスクエアビュータワーはどんなマンション?」「選ぶべき賃貸物件?」など、晴海アイランド トリトンスクエアビュータワー(以下、トリトンスクエアビュータワー)の賃貸を検討していませんか?
私たちはこれまで数多くの賃貸物件をご紹介してきましたが、トリトンスクエアビュータワーは、特に以下のようなお客様に自信を持っておすすめできる物件です。
- スペックの高いタワーマンションを探している
- 利便性がいいタワーマンションに住みたい
- セキュリティ面を重視している
- 子育てのしやすさも重要
- ペットとの暮らしを大切にしたい
このページでは、この結論に至った背景や、知っておいていただきたい注意点を以下の流れで解説していきます。
- 晴海アイランド トリトンスクエアビュータワーの5つの特徴
- 晴海アイランドトリトンスクエアビュータワーのエントランスや室内イメージ
- 晴海アイランドトリトンスクエアビュータワーの交通情報・周辺環境
- その他の特徴や注意点(審査難易度・事故情報など)
この記事を読めば、トリトンスクエアビュータワーがどのような物件で、他の賃貸マンションと何が違うのかを深く理解できます。その結果、検討している物件があなたにとって最適な住まいなのか、自信を持って判断できるようになるでしょう。
まずはじめに、晴海アイランド トリトンスクエアビュータワーで募集されていた部屋は以下のとおりです。新しい順に並んでいますが、詳しい募集時期は「物件登録日」をご覧ください。
弊社の仲介手数料は【無料】または【半額+tax】です。お客様の費用負担を少しでも軽くできるよう、全力でお部屋探しをお手伝いします。
物件アーカイブ 過去に募集された部屋一覧
| 参考賃料 | 27.5万円 〜 29.0万円 |
|---|---|
| ㎡数 | 69.86㎡ |
| 間取り | 3SLDK |
| 所在階 | 23階 |
| 物件登録日 | 2026/03/05 |
| 参考賃料 | 50.0万円 〜 55.0万円 |
|---|---|
| ㎡数 | 98.27㎡ |
| 間取り | 3LDK |
| 所在階 | 44階 |
| 物件登録日 | 2026/01/25 |
| 参考賃料 | 17.3万円 〜 18.8万円 |
|---|---|
| ㎡数 | 46.63㎡ |
| 間取り | 1LDK |
| 所在階 | 14階 |
| 物件登録日 | 2025/10/08 |
| 参考賃料 | 29.5万円 〜 31.0万円 |
|---|---|
| ㎡数 | 75.99㎡ |
| 間取り | 3LDK |
| 所在階 | 24階 |
| 物件登録日 | 2025/09/29 |
| 参考賃料 | 27.5万円 〜 29.0万円 |
|---|---|
| ㎡数 | 69.86㎡ |
| 間取り | 2LDK |
| 所在階 | 26階 |
| 物件登録日 | 2025/09/06 |
| 参考賃料 | 15.7万円 〜 19.1万円 |
|---|---|
| ㎡数 | 59.8㎡ |
| 間取り | 1SLDK |
| 所在階 | 3階 |
| 物件登録日 | 2025/08/20 |
| 参考賃料 | 22.4万円 〜 24.8万円 |
|---|---|
| ㎡数 | 57.78㎡ |
| 間取り | 2LDK |
| 所在階 | 50階 |
| 物件登録日 | 2025/04/28 |
| 参考賃料 | 27.5万円 〜 29.0万円 |
|---|---|
| ㎡数 | 69.86㎡ |
| 間取り | 3SLDK |
| 所在階 | 36階 |
| 物件登録日 | 2025/04/23 |
| 参考賃料 | 18.0万円 〜 19.0万円 |
|---|---|
| ㎡数 | 46.63㎡ |
| 間取り | 1LDK |
| 所在階 | 21階 |
| 物件登録日 | 2025/03/12 |
| 参考賃料 | 26.0万円 〜 27.5万円 |
|---|---|
| ㎡数 | 69.86㎡ |
| 間取り | 3SLDK |
| 所在階 | 26階 |
| 物件登録日 | 2024/05/01 |
| 参考賃料 | 20.0万円 〜 21.5万円 |
|---|---|
| ㎡数 | 55.93㎡ |
| 間取り | 1LDK |
| 所在階 | 28階 |
| 物件登録日 | 2024/04/16 |
| 参考賃料 | 25.5万円 〜 27.0万円 |
|---|---|
| ㎡数 | 69.86㎡ |
| 間取り | 3LDK |
| 所在階 | 49階 |
| 物件登録日 | 2024/02/06 |
| 参考賃料 | 24.5万円 〜 26.0万円 |
|---|---|
| ㎡数 | 69.86㎡ |
| 間取り | 3SLDK |
| 所在階 | 26階 |
| 物件登録日 | 2023/11/21 |
| 参考賃料 | 20.0万円 〜 21.0万円 |
|---|---|
| ㎡数 | 57.78㎡ |
| 間取り | 1SLDK |
| 所在階 | 12階 |
| 物件登録日 | 2023/11/15 |
| 参考賃料 | 17.8万円 〜 18.6万円 |
|---|---|
| ㎡数 | 46.63㎡ |
| 間取り | 1LDK |
| 所在階 | 23階 |
| 物件登録日 | 2023/07/20 |
| 参考賃料 | 23.3万円 〜 24.8万円 |
|---|---|
| ㎡数 | 94.12㎡ |
| 間取り | 3LDK |
| 所在階 | 43階 |
| 物件登録日 | 2023/06/14 |
| 参考賃料 | 15.2万円 〜 18.6万円 |
|---|---|
| ㎡数 | 59.80㎡ |
| 間取り | 1SLDK |
| 所在階 | 3階 |
| 物件登録日 | 2023/06/08 |
| 参考賃料 | 29.8万円 〜 33.3万円 |
|---|---|
| ㎡数 | 89.6㎡ |
| 間取り | 2SLDK |
| 所在階 | 44階 |
| 物件登録日 | 2023/05/22 |
| 参考賃料 | 17.0万円 〜 18.9万円 |
|---|---|
| ㎡数 | 57.78㎡ |
| 間取り | 1SLDK |
| 所在階 | 9階 |
| 物件登録日 | 2023/04/24 |
| 参考賃料 | 29.0万円 〜 30.0万円 |
|---|---|
| ㎡数 | 77.52㎡ |
| 間取り | 3LDK |
| 所在階 | 26階 |
| 物件登録日 | 2022/10/21 |
| 参考賃料 | 27.5万円 〜 28.5万円 |
|---|---|
| ㎡数 | 94.12㎡ |
| 間取り | 3LDK |
| 所在階 | 42階 |
| 物件登録日 | 2022/10/07 |
| 参考賃料 | 23.0万円 〜 24.0万円 |
|---|---|
| ㎡数 | 69.86㎡ |
| 間取り | 2SLDK |
| 所在階 | 43階 |
| 物件登録日 | 2022/05/10 |
| 参考賃料 | 18.0万円 〜 19.0万円 |
|---|---|
| ㎡数 | 55.27㎡ |
| 間取り | 2SDK |
| 所在階 | 30階 |
| 物件登録日 | 2022/04/15 |
| 参考賃料 | 23.3万円 〜 24.8万円 |
|---|---|
| ㎡数 | 94.12㎡ |
| 間取り | 3LDK |
| 所在階 | 41階 |
| 物件登録日 | 2022/03/09 |
| 参考賃料 | 25.5万円 〜 26.0万円 |
|---|---|
| ㎡数 | 69.86㎡ |
| 間取り | 1SLDK |
| 所在階 | 31階 |
| 物件登録日 | 2022/03/09 |
| 参考賃料 | 21.5万円 〜 23.0万円 |
|---|---|
| ㎡数 | 69.86㎡ |
| 間取り | 2SLDK |
| 所在階 | 49階 |
| 物件登録日 | 2022/03/09 |
1. 晴海アイランドトリトンスクエアビュータワーの5つの特徴
トリトンスクエアビュータワーには、以下の特徴があります。
その分、賃料は高めですが、これらに魅力を感じるなら、ぜひ前向きにご検討ください。
1-1. 晴海を代表するタワーマンションの1つ
晴海には数多くのタワーマンションがありますが、その中でもトリトンスクエアビュータワーは、晴海を代表するタワーマンションの1つに数えられます。
というのも、後述する利便性だけでなく、防犯面においても高いスペックを誇ることから、1部屋の価格が1億円以上で販売されることもある高級物件です。
分譲賃貸として貸し出される
トリトンスクエアビュータワーは、オーナー様が購入されたお部屋を賃貸として貸し出す、いわゆる分譲賃貸マンションです。
そのため、数億円もするようなハイクラスなお部屋を賃貸で借りられるのが大きな魅力です。人気の部屋は時期を問わずすぐに埋まってしまうため、まさに早い者勝ちとなります。
ちなみに、過去に募集されたお部屋の賃料を間取りごとにまとめると、以下のようになります。
| 1R | 14~16万円 |
| 1DK | 13~15万円 |
| 1LDK | 15~19万円 |
| 2LDK | 18~28万円 |
| 3LDK | 20~37万円 |
1-2. 2駅2路線使える便利な立地
トリトンスクエアビュータワーの周辺にある2つの駅からは、下記の2路線を利用することができます。
| 駅名 | 分数 | 路線 |
| 月島駅 | 6分 |
|
| 勝どき駅 | 9分 |
|
上記の通り、都心の中心地を走る地下鉄を利用できるので、都心内の移動で不便に感じることは少ない立地と言えるでしょう。
なお、月島駅から使える「大江戸線」と「有楽町線」は、新宿や永田町など、都心のオフィス街にアクセスしやすい路線です。
下記の表は、都心のオフィス街までの所要時間と乗り換え回数です。
| 駅名 | 所要時間 | 乗り換え |
| 有楽町駅 | 5分 | 0回 |
| 永田町駅 | 9分 | 0回 |
| 六本木駅 | 16分 | 0回 |
| 東京駅 | 17分 | 1回 |
| 渋谷駅 | 22分 | 1回 |
| 新宿駅 | 26分 | 0回 |
首都高の出入口も近い
近くに首都高の「晴海IC」があるので、車移動が多い方にも便利な立地です。
マンションの駐車場からわずか3~4分で首都高速道路に乗れるため、下道の渋滞に巻き込まれる心配もありません。
1-3. 24時間有人管理の厳重なセキュリティ
トリトンスクエアビュータワーには、管理員が24時間常駐し、住まう方々の日々を見守ります。『いざという時』の迅速な対応はもちろん、防犯面でも頼れる存在がいる暮らしは、何物にも代えがたい安心感につながります。
また、エントランスにはモニター付きのオートロックが設置されているので、部外者に侵入されるリスクも低いです。
さらに、敷地内の各所に防犯カメラを複数台設置しているので、機械的なセキュリティも整っています。
コンシェルジュによるセキュリティも万全
フロントデスクには専用のコンシェルジュがおりますので、人的なセキュリティも万全を期しています。
また、日中であれば来訪者の受付や宅急便の発送代行をはじめとした、下記のコンシェルジュサービスを提供しています。
- インフォメーションサービス
- ゲスト対応
- 宅配便発送サービス
- クリーニングの受付
- 共用施設の利用受付
- 粗大ゴミの収集手続き
- タクシー・ハイヤーの配車手配
- メッセージお預かり
- 各種レンタル品の貸し出し
1-4. マンション周辺に便利な店舗や施設が多い
トリトンスクエアビュータワーは子育てにも便利なタワーマンションです。
というのも、マンションのすぐ近くにある「晴海トリトン」には、子育てにも便利なお店や施設が揃っています。
| 店舗名|営業時間 | |
| マルエツ プチ | 成城石井 |
| トモズ | ダイソー |
| ローソン | セブンイレブン |
| 海鮮三崎港(回転寿司) | 和幸(とんかつ) |
| マクドナルド | フードコート |
| クリニック | |
| 夢未来クリニック(小児科) | 晴海トリトン歯科 |
| 育児施設|教育施設 | |
| アスク晴海保育園 | 太陽の子晴海トリトン保育園 |
| SEIHA ENGLISH ACADEMY | セイハダンスアカデミー |
また、マンションを取り囲む敷地には、豊富な遊具が揃う公園もありますので、いつでも気軽に利用できます。
![]() |
![]() |
| 引用:Google Map | |
自転車や車があればさらに便利
自転車で5分程度の場所には、ファミリー層から絶大な人気を誇る大型商業施設「ららぽーと豊洲」があります。
こちらには映画館やアミューズメントスペースなど、親子で楽しめる施設が豊富に揃っています。
また、手ぶらでBBQを楽しめる「WILD MAGIC」も豊洲にあるので、休日は豊洲だけでも遊び尽くせるでしょう。
| ららぽーと豊洲 | WILD MAGIC |
![]() |
![]() |
| 引用:三井ショッピングパーク|Google Map | |
さらに、車で15分ほどのお台場には、充実したレジャー施設の他、開放的なビーチや公園も揃っています。
お台場は1年を通して様々なイベントが開催されているので、季節ごとのイベントを家族で楽しめる魅力的な街です。

仮に自転車や車を持っていない場合でも、マンションのすぐ近くにレンタサイクルがあったり、周辺にカーシェアが用意されているので安心です。
1-5. 大切なペットと快適に暮らせる
トリトンスクエアビュータワーでオーナー様がペット飼育を許可しているお部屋では、以下のペットとのご入居が可能です。
- 小型犬
- 猫
ペットの種類に関しては、貸主や管理組合から承諾をもらう必要がありますので、事前に相談しましょう。
また、ペットを飼育するときは敷金が1ヶ月分積み増しになるケースが多いので、こちらも事前に確認しましょう。
動物病院やペットサロンも充実
マンションから歩いて9分の場所に「アニーマどうぶつ病院」がありますので、ペットの体調が優れないときでも安心です。
また、8分ほど歩いた場所に、ホテルやトリミングのサービスを提供している「リトルワンワン」というお店があるので、旅行や出張のとき便利に利用できます。
2. 晴海アイランド トリトンスクエアビュータワーのエントランスや室内イメージ
トリトンスクエアビュータワーの魅力をより具体的にイメージしていただけるよう、室内の様子と共用スペースを以下の4つのカテゴリに分けて写真でご紹介します。
2-1. エントランス
エントランス外観は以下の写真のように重厚感のある造りとなっています。
画像引用元:SUUMO
なお、エントランス内部にはオートロックが導入されているので、防犯面でも安心して暮らすことができます。
画像引用元:HOME’S
2-2. 共用部
オートロックを通過すると、2層吹き抜けで開放感のあるエントランスロビーが用意されています。

以下の写真の通り、1階にはコンシェルジュが駐在しているフロントデスクもございます。

なお、2階にはソファーセットが揃ったラウンジもございます。


そして、エントランスを奥に進むとエレベーターホールとなります。
画像引用元:SUUMO
ちなみに、タワーマンションのエレベーターは「50戸に対して1基」が理想とされています。
トリトンスクエアビュータワーは「624戸に対して7基(非常用も含む)」ということから、時間帯によっては少し待つかもしれません。
ただし、お住まいの階層毎にご利用するエレベーターが3基ずつ分かれているので、満員で乗れないということはないでしょう。
- 低層階用・・・3基
- 高層階用・・・3基
- 非常用・・・1基
集会室が用意されている
マンションの2階には、打ち合わせなどにご利用いただける集会室が全8室(和室4部屋・洋室4部屋)用意されています。
トランクルームが用意されている
マンション内には、有料のトランクルームが用意されています。
| ・利用料金 |
|
2-3. 室内イメージ
室内はイメージは以下の通りです。(過去に募集された部屋なので、実際の内容とは異なる可能性があります。)
![]() |
![]() |
![]() |
![]() |
![]() |
![]() |
![]() |
![]() |
![]() |
![]() |
![]() |
![]() |
![]() |
![]() |
![]() |
![]() |
![]() |
![]() |
水回りは以下のようなイメージです。
| キッチン | |
![]() |
![]() |
![]() |
|
| 洗面台 | |
![]() |
![]() |
| 浴室 | トイレ |
![]() |
![]() |
| 画像引用元:SUUMO | |
室内の素材や雰囲気は、お部屋によって異なります。必ず内見でご確認ください。
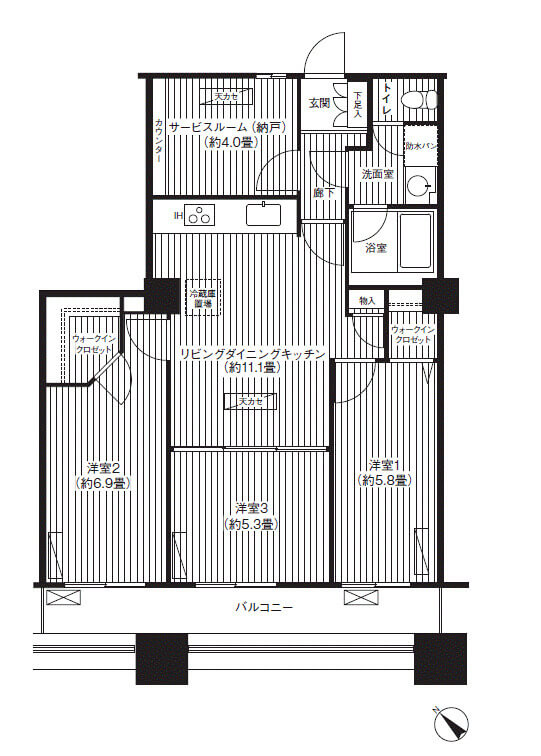
2-4. 間取り
現在募集中の部屋がない場合もございますが、トリトンスクエアビュータワーの代表的な部屋の間取りをご紹介します。
1DK
![]() |
|
| 39.4㎡(11.92坪) |
2DK
![]() |
|
| 42.51㎡(12.86坪) |
2LDK
![]() |
![]() |
| 69.86㎡(21.13坪) | 91.42㎡(27.65坪) |
3LDK
![]() |
|
| 69.86㎡(21.13坪) | |
![]() |
![]() |
| 91.42㎡(27.65坪) | 85.86㎡(25.88坪) |
| 間取り図引用元:SUUMO | |
3. 晴海アイランド トリトンスクエアビュータワーの交通情報・周辺環境
トリトンスクエアビュータワーの周辺施設(駅やコンビニなど)をマップにまとめましたので、以下をご覧ください。
引用:Google Map
マンション周辺にはコンビニやスーパーが揃っているので、日常的な買い物が便利です。
3-1. 交通アクセスについて
繰り返しになりますが、トリトンスクエアビュータワーは主に以下2つの駅が利用できます。
| 駅名 | 分数 | 路線 |
| 月島駅 | 6分 |
|
| 勝どき駅 | 9分 |
|
合計2路線を使えるので、都心内の移動で不便に感じることはないでしょう。
タクシー移動にも便利な立地
大通りの「晴海通り」に近い立地なので、タクシーを使うときも便利です。
都心の主要エリアからマンションまで、タクシーをご利用いただいた場合の目安時間と料金は以下の通りです。
| エリア | 通常料金(深夜料金) | 時間 |
| 銀座駅 | 1,140円(1,380円) | 約10分 |
| 大手町駅 | 1,860円(2,180円) | 約20分 |
| 東京駅 | 1,780円(2,100円) | 約20分 |
| 六本木駅 | 2,500円(2,980円) | 約20~30分 |
| 品川駅 | 3,220円(3,860円) | 約30分 |
| 渋谷駅 | 3,860円(4,580円) | 約30~40分 |
| 新宿駅 | 3,860円(4,580円) | 約30~40分 |
3-2. 周辺のコンビニやスーパー・薬局について
マンションのある「晴海トリトンスクエア」の施設内にコンビニやスーパーが揃っているので、日常的な買い物が便利です。
まず、コンビニは晴海トリトンスクエア内に以下3つの店舗がございます。
- ファミリーマート(約210m、徒歩3分)
- セブンイレブン(約230m、徒歩4分)
- ローソン(約280m、徒歩4分)
そして、スーパーは以下の2店舗が晴海トリトンスクエア内にございます。
- 成城石井(約300m、徒歩4分)
- マルエツプチ(約400m、徒歩5分)
敷地内に薬局・ドラッグストアもある
「晴海トリトンスクエア」の中には、調剤薬局の「日野薬局」や、大手ドラッグストアの「トモズ」があるので、薬の買い物で困ることはないでしょう。
3-3. 飲食店について
マンションのある「晴海トリトンスクエア」内には以下の飲食店が揃っています。
- カフェ
- ラーメン店
- 蕎麦・うどん屋
- 牛カツ専門店
- とんかつ屋
- 回転寿司屋
- 中華料理店
- タイ料理店
- インド料理店
- 台湾料理店
- ステーキ店
- 焼肉店
- イタリアンレストラン
- 居酒屋
- ベーカリー
- ファストフード店
- フードコート
これだけ多くのお店を利用できるので、外食で困ることはないと言えるでしょう。
また、近隣には高級飲食店が集う「銀座」があるため、グルメな方でも満足いただけるでしょう。
月島もんじゃストリートも近い
マンションから徒歩10分ほどの場所には、80店舗以上が軒を連ねる「月島もんじゃストリート」があります。
東京の観光名所にもなっているので、遠方から来客があった際に連れて行くと喜ばれるでしょう。
トリトンスクエアビュータワー周辺のその他のグルメ情報
その他、「晴海トリトンスクエア」以外にも、以下のようにチェーンの飲食店も周辺にあります。
| ・ファミレス |
|
| ・牛丼 |
|
| ・カフェ |
|
3-4. 学区域や保育園について
トリトンスクエアビュータワーの学区域は以下の通りです。(※学区域は変更になる場合があります。最新の情報は、各区教育委員会のウェブサイト等でご確認ください。)
| 小学校 | 中学校 |
| 月島第三小学校 | 晴海中学校 |
| 徒歩2分 | 徒歩1分 |
中学校について
中央区の中学校は、地域によって入学すべき中学校が「指定校」として決まっています。
ただし、「指定校」以外の中央区内の中学校も希望できる「学校選択制度」も利用可能です。
保育園について
保育園に関しても、マンションの隣に「中央区立 晴海保育園」があるため、入園できれば共働きで忙しいご家庭の負担も減るでしょう。
この他にも周辺には複数の保育園があるため、お子さまの預け先を比較的検討しやすいエリアと言えるでしょう。
引用:Google Map
3-5. 周辺の治安について
マンション周辺の治安は良いです。
以下のマップは、2022年の1年間を通して、犯罪(自転車盗難なども含む)が合計何件発生したかを示したものです。
引用:警視庁犯罪情報マップ
トリトンスクエアビュータワーの周辺は犯罪が少ない”黄色”に分類されていて、23区内の中でも治安が良いエリアと言えます。
トリトンスクエアビュータワーの入り口付近
以下の写真の通り、マンションの入り口に面した道路前の歩道は、整備が行き届いているので小さなお子さま連れでも安心です。
引用:Google Map
3-6. 洪水などによる浸水リスクについて
浸水リスクを調べたところ、最大規模の氾濫が起きた場合、マンションが建つエリアは「0.5m未満」の浸水が予測されています。
万が一、周辺で氾濫が起こった場合、最大で建物1階部分まで浸水する可能性がありますので、浸水リスクも含めて検討するようにしましょう。
4. その他の特徴や注意点(審査難易度・事故情報など)
その他に、ここまでに挙げきれなかった、以下9個のトリトンスクエアビュータワーの特徴や注意点を紹介します。
- 1997年築の古いマンション
- オール電化の設備仕様
- 駐車場が使える
- 24時間ゴミ出しができる
- 楽器の演奏ができる
- 保証会社の利用が必須
- 審査難易度は部屋次第
- 事故物件情報は該当あり
- 液状化のリスクがある
4-1. 1997年築の古いタワーマンション
トリトンスクエアビュータワーは、賃料の水準が高い高級マンションですが、建てられたのは「1997年」という古いタワーマンションです。
今では「免震構造」や「制震構造」といった地震に強いタワーマンションも多いですが、トリトンスクエアビュータワーは「地震に強い」とは言えません。
ですので、「地震が心配」と言う人は、周辺にある以下のマンションも併せて検討してみましょう。
| 免震構造 | |
| ドゥ・トゥール | ザ・パークハウス晴海タワーズ |
![]() |
![]() |
| 制震構造 | |
| キャピタルゲートプレイス ザ・タワー | THE TOKYO TOWERS |
![]() |
![]() |
| 画像引用元:Google Map | |
4-2. オール電化の設備仕様
トリトンスクエアビュータワーの設備はオール電化の仕様となっています。
ガスを使わないことから、火災のリスクも減るので、より安心して暮らすことができます。
4-3. 駐車場が使える
トリトンスクエアビュータワーには駐車場が用意されています。
空き状況にもよりますが、平置きと機械式パーキングが利用可能で、大きさに合わせて「25,000~50,000円(税込)/月」が賃料の目安です。
なお、機械式のサイズは下記の通りなので、駐車場を借りるときは車検証でサイズを確認しましょう。
- 全長:4,500~5,000mm
- 全幅:1,700~1,800mm
- 全高:1,550~2,000mm
- 重量:1,700~2,300kg
駐輪場とバイク置き場について
トリトンスクエアビュータワーには駐輪場とバイク置き場があり、賃料の目安は下記の通りです。
- 駐輪場:300円(税込)/月
- バイク置き場:3,000円(税込)/月
4-4. 24時間ゴミ出しができる
トリトンスクエアビュータワーには専用のゴミ捨て場がありますので、24時間365日ゴミを捨てることができます。
4-5. 楽器の演奏ができる
トリトンスクエアビュータワーは、オーナー様が楽器演奏を許可しているお部屋に限り、楽器演奏が可能です。
ただし、楽器の種類や演奏時間には規定がございます。後のトラブルを避けるためにも、ご希望の条件での演奏が可能か、ご契約前に必ず確認しましょう。
4-6. 保証会社の利用が必須
トリトンスクエアビュータワーの多くの部屋が、保証会社の利用を必須としています。
契約する保証会社は部屋によって異なるため、明確な費用は算出できませんが、初回保証料として総賃料の40~50%が相場となります。
借りる方にとっては追加費用が発生するものの、連帯保証人を用意する手間が省けるというメリットがあります。
4-7. 審査難易度は部屋次第
結論、トリトンスクエアビュータワーは分譲マンションのため、オーナー様によって審査の難易度が異なります。
したがって、特定の部屋の審査に落ちた場合でも、別の部屋であれば審査に通る可能性は十分にあります。
もし他にも気になるお部屋がある場合は、改めて申し込みが可能かどうか、不動産会社にご確認ください。
4-8. 事故物件情報は該当あり
事故情報(過去の事件や事故)を「事故物件検索サイト(https://www.oshimaland.co.jp/)」やTwitterなどのSNS、Google検索で調べました。
その結果、事故物件検索サイト(https: //www.oshimaland.co.jp/)に下記の情報がありました。
| 事故内容 | 時期 | 部屋 |
| 飛び降り | 平成19年 | 43F |
他にも、不動産業者から提示される資料に「告知事項あり」と表記されている場合は、事故やその他トラブルの原因となる事柄がある可能性が高いので、内容を必ず聞くようにしましょう。
4-9. 液状化のリスクがある
晴海エリアは埋立地なので、液状化のリスクがあります。
中でもトリトンスクエアビュータワーがある土地は、「液状化のリスクが大きい」とハザードマップ上に明記されています。
そのため、絶対に液状化で悩みたくない人は、豊洲を含む埋立地のマンションは避けたほうがいいでしょう。
5. まとめ
ここまでをまとめると、晴海アイランド トリトンスクエアビュータワーは、「賃料は高いが、それに見合った高いスペックのマンション」です。
これらの特徴を踏まえると、以下に当てはまる方には特におすすめしたい物件です。
- スペックの高いタワーマンションを探してる
- 利便性がいいタワーマンションに住みたい
- セキュリティ面を重視している
- 子育てのしやすさも重要
- ペットとの暮らしを大切にしたい
改めて、これまでに募集されたお部屋の情報は以下の通りです。 気になるお部屋がありましたら、どうぞお気軽にご連絡ください。お待ちしております。
物件アーカイブ 過去に募集された部屋一覧
| 参考賃料 | 27.5万円 〜 29.0万円 |
|---|---|
| ㎡数 | 69.86㎡ |
| 間取り | 3SLDK |
| 所在階 | 23階 |
| 物件登録日 | 2026/03/05 |
| 参考賃料 | 50.0万円 〜 55.0万円 |
|---|---|
| ㎡数 | 98.27㎡ |
| 間取り | 3LDK |
| 所在階 | 44階 |
| 物件登録日 | 2026/01/25 |
| 参考賃料 | 17.3万円 〜 18.8万円 |
|---|---|
| ㎡数 | 46.63㎡ |
| 間取り | 1LDK |
| 所在階 | 14階 |
| 物件登録日 | 2025/10/08 |
| 参考賃料 | 29.5万円 〜 31.0万円 |
|---|---|
| ㎡数 | 75.99㎡ |
| 間取り | 3LDK |
| 所在階 | 24階 |
| 物件登録日 | 2025/09/29 |
| 参考賃料 | 27.5万円 〜 29.0万円 |
|---|---|
| ㎡数 | 69.86㎡ |
| 間取り | 2LDK |
| 所在階 | 26階 |
| 物件登録日 | 2025/09/06 |
| 参考賃料 | 15.7万円 〜 19.1万円 |
|---|---|
| ㎡数 | 59.8㎡ |
| 間取り | 1SLDK |
| 所在階 | 3階 |
| 物件登録日 | 2025/08/20 |
| 参考賃料 | 22.4万円 〜 24.8万円 |
|---|---|
| ㎡数 | 57.78㎡ |
| 間取り | 2LDK |
| 所在階 | 50階 |
| 物件登録日 | 2025/04/28 |
| 参考賃料 | 27.5万円 〜 29.0万円 |
|---|---|
| ㎡数 | 69.86㎡ |
| 間取り | 3SLDK |
| 所在階 | 36階 |
| 物件登録日 | 2025/04/23 |
| 参考賃料 | 18.0万円 〜 19.0万円 |
|---|---|
| ㎡数 | 46.63㎡ |
| 間取り | 1LDK |
| 所在階 | 21階 |
| 物件登録日 | 2025/03/12 |
| 参考賃料 | 26.0万円 〜 27.5万円 |
|---|---|
| ㎡数 | 69.86㎡ |
| 間取り | 3SLDK |
| 所在階 | 26階 |
| 物件登録日 | 2024/05/01 |
| 参考賃料 | 20.0万円 〜 21.5万円 |
|---|---|
| ㎡数 | 55.93㎡ |
| 間取り | 1LDK |
| 所在階 | 28階 |
| 物件登録日 | 2024/04/16 |
| 参考賃料 | 25.5万円 〜 27.0万円 |
|---|---|
| ㎡数 | 69.86㎡ |
| 間取り | 3LDK |
| 所在階 | 49階 |
| 物件登録日 | 2024/02/06 |
| 参考賃料 | 24.5万円 〜 26.0万円 |
|---|---|
| ㎡数 | 69.86㎡ |
| 間取り | 3SLDK |
| 所在階 | 26階 |
| 物件登録日 | 2023/11/21 |
| 参考賃料 | 20.0万円 〜 21.0万円 |
|---|---|
| ㎡数 | 57.78㎡ |
| 間取り | 1SLDK |
| 所在階 | 12階 |
| 物件登録日 | 2023/11/15 |
| 参考賃料 | 17.8万円 〜 18.6万円 |
|---|---|
| ㎡数 | 46.63㎡ |
| 間取り | 1LDK |
| 所在階 | 23階 |
| 物件登録日 | 2023/07/20 |
| 参考賃料 | 23.3万円 〜 24.8万円 |
|---|---|
| ㎡数 | 94.12㎡ |
| 間取り | 3LDK |
| 所在階 | 43階 |
| 物件登録日 | 2023/06/14 |
| 参考賃料 | 15.2万円 〜 18.6万円 |
|---|---|
| ㎡数 | 59.80㎡ |
| 間取り | 1SLDK |
| 所在階 | 3階 |
| 物件登録日 | 2023/06/08 |
| 参考賃料 | 29.8万円 〜 33.3万円 |
|---|---|
| ㎡数 | 89.6㎡ |
| 間取り | 2SLDK |
| 所在階 | 44階 |
| 物件登録日 | 2023/05/22 |
| 参考賃料 | 17.0万円 〜 18.9万円 |
|---|---|
| ㎡数 | 57.78㎡ |
| 間取り | 1SLDK |
| 所在階 | 9階 |
| 物件登録日 | 2023/04/24 |
| 参考賃料 | 29.0万円 〜 30.0万円 |
|---|---|
| ㎡数 | 77.52㎡ |
| 間取り | 3LDK |
| 所在階 | 26階 |
| 物件登録日 | 2022/10/21 |
| 参考賃料 | 27.5万円 〜 28.5万円 |
|---|---|
| ㎡数 | 94.12㎡ |
| 間取り | 3LDK |
| 所在階 | 42階 |
| 物件登録日 | 2022/10/07 |
| 参考賃料 | 23.0万円 〜 24.0万円 |
|---|---|
| ㎡数 | 69.86㎡ |
| 間取り | 2SLDK |
| 所在階 | 43階 |
| 物件登録日 | 2022/05/10 |
| 参考賃料 | 18.0万円 〜 19.0万円 |
|---|---|
| ㎡数 | 55.27㎡ |
| 間取り | 2SDK |
| 所在階 | 30階 |
| 物件登録日 | 2022/04/15 |
| 参考賃料 | 23.3万円 〜 24.8万円 |
|---|---|
| ㎡数 | 94.12㎡ |
| 間取り | 3LDK |
| 所在階 | 41階 |
| 物件登録日 | 2022/03/09 |
| 参考賃料 | 25.5万円 〜 26.0万円 |
|---|---|
| ㎡数 | 69.86㎡ |
| 間取り | 1SLDK |
| 所在階 | 31階 |
| 物件登録日 | 2022/03/09 |
| 参考賃料 | 21.5万円 〜 23.0万円 |
|---|---|
| ㎡数 | 69.86㎡ |
| 間取り | 2SLDK |
| 所在階 | 49階 |
| 物件登録日 | 2022/03/09 |
物件概要
| 物件名 | 晴海アイランド トリトンスクエアビュータワー | ||
|---|---|---|---|
| 住所 | 東京都中央区晴海1丁目6-1 | ||
| 最寄駅 | 東京メトロ有楽町線 月島駅 徒歩6分 都営大江戸線 勝どき駅 徒歩9分 |
||
| 賃料 | 125,000 ~ 298,000 円/月 |
築年月 | 1997/02(築30年) |
| 間取り | 1LDK-3SLDK | 専有面積 | 46.63-98.27㎡ |
| 物件特徴 | 構造 | SRC(鉄骨鉄筋コンクリート) | |
| 総階数 | 地上50階 地下2階 |
総戸数 | 624戸 |
| 物件種別 | マンション | 登録日 更新日 |
2023/07/07 2024/10/31 |
| 設備 |
|
||
記事ランキング
厳選した高級物件をあなたに
高級賃貸東京は、一般的な不動産屋さんのように、「店舗で一緒に物件を探す」ことを基本的には行いません。
なぜかと言うと、店舗での物件探しでは対面になる分、お客様がご自身で検討できる時間が限られてしまうからです。
弊社では、メールなどで希望に沿った物件情報を複数お送りいたしますので、お客様のペースでじっくり比較・検討いただいた上で内覧・お申し込みをしていただくことができます。
このスタイルで営業しているため、店舗での物件紹介は原則しておりません。
高級賃貸東京が選ばれる理由取引先企業様
Copyright © 高級賃貸東京. All Rights Reserved.




































引用:




