1. Brillia Tower大崎の4つの特徴
ブリリアタワー大崎には、以下の特徴があります。
その分、賃料は高めですが、これらに魅力を感じるなら、ぜひ前向きにご検討ください。
1-1. 高級マンションブランド「Brillia」シリーズの1つ
ブリリアタワー大崎は、高級ブランドマンションとして有名な「Brillia」シリーズの1つです。
中でも、「Brillia」のタワーマンションは、中古でも1部屋の価格が数億円で販売されるほど、高いグレードを誇ります。
また、Brilliaの外観はデザイン性も高く、一見するだけでグレードの高さが伝わってくる物件ばかりです。
分譲賃貸として貸し出される
ブリリアタワー大崎は、オーナー様が購入されたお部屋を賃貸として貸し出す、いわゆる分譲賃貸マンションです。
つまり、数億円もするグレードの高い部屋を借りることもできるので、人気の部屋は季節を問わず常に早い者勝ちとなります。
ちなみに、過去に募集されたお部屋の賃料を間取りごとにまとめると、以下のようになります。
| 1LDK |
18~25万円 |
| 2LDK |
20~42万円 |
| 3LDK |
27~39万円 |
1-2. 2駅6路線を利用できる便利な立地
ブリリアタワー大崎の周辺にある2つの駅からは、下記の6路線を利用することができます。
| 駅名 |
分数 |
路線 |
| 大崎駅 |
4分 |
- JR山手線
- JR埼京線
- JR湘南新宿ライン
- りんかい線
- 相鉄・JR直通線
|
| 新馬場駅 |
14分 |
|
上記の通り、山手線をはじめとしたJR各線を利用できるので、都心内の移動で不便に感じることは少ない立地と言えるでしょう。
また、マンションの向かいにある「ゲートシティ大崎」を通れば大崎駅に直結となるので、雨の日でも駅まで行きやすいです。
ただし、ゲートシティ大崎を通れるのは「7:00~24:00」までとなります。
タクシー移動にも便利な立地
大崎に近い立地なので、タクシーを使うときも便利です。
都心の主要エリアからマンションまで、タクシーをご利用いただいた場合の目安時間と料金は以下の通りです。
| エリア |
通常料金(深夜料金) |
時間 |
| 品川駅 |
740円(900円) |
約10分 |
| 恵比寿駅 |
1,860円(2,180円) |
約20分 |
| 渋谷駅 |
2,500円(2,980円) |
約20~30分 |
| 六本木駅 |
2,900円(3,460円) |
約20~30分 |
| 銀座駅 |
3,220円(3,860円) |
約30分 |
| 東京駅 |
3,860円(4,580円) |
約30~40分 |
| 新宿駅 |
4,180円(4,980円) |
約30~40分 |
1-3. 24時間有人管理の厳重なセキュリティ
ブリリアタワー大崎には、管理員が24時間常駐し、住まう方々の日々を見守ります。『いざという時』の迅速な対応はもちろん、防犯面でも頼れる存在がいる暮らしは、何物にも代えがたい安心感につながります。
また、エントランスにモニター付きのオートロックがありますので、部外者に侵入されるリスクも低いです。
さらに、敷地内の各所に防犯カメラを複数台設置しているので、機械的なセキュリティも整っています。
コンシェルジュによるセキュリティも万全
フロントデスクには専用のコンシェルジュがおりますので、人的なセキュリティも万全を期しています。
なお、日中であれば下記のコンシェルジュサービスを提供しています。
- クリーニングの取次
- 宅配便の取次
- タクシー・ハイヤーの配車手配
- 共用施設の予約受付
- ハウスクリーニング紹介
- 備品貸し出しサービス
- インフォメーションサービス
1-4. 大切なペットと快適に暮らせる
ブリリアタワー大崎でオーナー様がペット飼育を許可しているお部屋では、以下のペットとのご入居が可能です。
ペットの種類に関しては、貸主や管理組合から承諾をもらう必要がありますので、事前に不動産会社に相談してください。
また、ペットを飼育するときは、敷金が1ヶ月分積み増しになるケースも多いので、こちらも事前に確認しましょう。
マンション周辺に動物病院やホテルもある
マンションから歩いて12分の場所に「ノースアニマルクリニック」がありますので、ペットの体調が優れないときでも安心です。
また、マンションから歩いて11分の場所に、ホテルやトリミングのサービスを提供している「PRETTY STARS」というお店があるので、旅行や出張のとき便利に利用できます。
2. Brillia Tower大崎のエントランスや室内イメージ
ブリリアタワー大崎の魅力をより具体的にイメージしていただけるよう、室内の様子と共用スペースを以下の4つのカテゴリに分けて写真でご紹介します。
2-1. エントランス
ブリリアタワー大崎のエントランスの外観は、スタイリッシュなデザインとなっています。


そして、エントランス内部にはオートロックと防犯カメラが設置されているので、防犯面でも安心してお過ごしいただけます。

オートロックを通過すると、コンシェルジュの駐在しているフロントデスクが用意されています。

フロントデスクの奥には、ソファーセットが揃ったラウンジが用意されています。

そして、エントランスホール内には、エレベーターが合計4基用意されています。

ちなみに、タワーマンションのエレベーターは「50戸に対して1基」が理想とされています。
ブリリアタワー大崎は「238戸に対して4基」なので、時間帯によっては少しお待ちいただく場合があるでしょう。
共用廊下は内廊下仕様
エレベーターホールからお部屋までは、ホテルライクな内廊下仕様となっています。
画像引用元:HOME’S
2-2. 共用部
ブリリアタワー大崎には、高級タワーマンションにふさわしい以下の設備が揃っています。
- シアタールーム
- ジェットバスルーム
- フィットネスルーム
- ゲストルーム
- スカイライトテラス
シアタールーム
マンションの21階には、大型スクリーンや音響設備が揃ったシアタールームがございます。
ジェットバスルーム
マンションの21階には、ジェットバスルームがございます。
フィットネスルーム
マンションの21階には、有酸素マシンが揃ったフィットネスルームがございます。
ゲストルーム
マンションの21階には、ツインベッドが揃うゲストルームがございます。
| ・利用時間 |
- チェックイン 14:00
- チェックアウト 11:00
|
| ・利用料金 |
- 金~日曜日及び祝日の前日 7,000円/1泊
- 日~木曜日※祝日の前日は除く 3,500円/1泊
|
スカイライトテラス
マンションの22階には、周辺を一望できるスカイライトテラスがございます。
2-3.室内イメージ
室内のイメージは以下の通りです。(過去に募集されていた部屋なので、実際の内容とは異なる可能性があります。)
キッチンや浴室などのイメージは以下の通りとなっています。
室内の素材や雰囲気は、お部屋によって異なります。必ず内見でご確認ください。
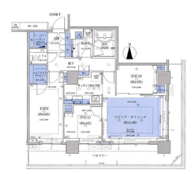
2-4. 間取り
現在募集中の部屋がない場合もございますが、ブリリアタワー大崎の代表的な部屋の間取りをご紹介します。
1LDK
 |
 |
| 44.89㎡(13.58坪) |
45.66㎡(13.81坪) |
1SLDK(DEN・納戸付き)
 |
| 72.09㎡(21.81坪) |
2LDK
 |
 |
| 56.83㎡(17.19坪) |
60.01㎡(18.15坪) |
 |
|
| 72.09㎡(21.81坪) |
80.57㎡(24.37坪) |
 |
 |
| 80.91㎡(24.48坪) |
81.01㎡(24.51坪) |
3LDK
3. Brillia Tower大崎の交通情報・周辺環境
ブリリアタワー大崎の周辺施設(駅やコンビニなど)をマップにまとめましたので、以下をご覧ください。
引用:Google Map
マンション周辺にはコンビニやスーパーが多く、日常的によく使うお店などがとても充実しています。
3-1. 交通アクセスについて
繰り返しになりますが、ブリリアタワー大崎は主に以下2つの駅が利用できます。
| 駅名 |
分数 |
路線 |
| 大崎駅 |
4分 |
- JR山手線
- JR埼京線
- JR湘南新宿ライン
- りんかい線
- 相鉄・JR直通線
|
| 新馬場駅 |
14分 |
|
JRをはじめとした合計6路線を使えるので、都心内の移動で不便に感じることはないでしょう。
空港へのアクセスも便利
大崎駅からは、羽田空港と成田空港に直結のシャトルバスが発着しているので、日頃から飛行機を利用する人にとっても便利な駅です。
3-2. 周辺のコンビニやスーパー・薬局について
繰り返しになりますが、マンション周辺にはコンビニやスーパーが多く、日常的な買い物がしやすいです。
まず、コンビニはマンションから徒歩1分の場所に「ローソン」があります。
また、マンションの向かいにある「ゲートシティ大崎」内には以下の2店舗があります。
そして、スーパーは徒歩10分圏内(約800m)に以下の店舗がございます。
- 成城石井(約220m、徒歩3分)
- ライフ 大崎ニューシティー(約450m、徒歩6分)
- ライフドラッグプラス(約550m、徒歩7分)
- まいばすけっと大崎(約750m、徒歩10分)
なお、高級スーパーの「成城石井」では、こだわりのお惣菜や輸入ワイン、チーズなど通常のスーパーで買えない製品が購入できます。
薬局・ドラッグストアも徒歩圏内
マンションから徒歩10分圏内(約800m)には医薬品から日用品まで揃うドラッグストアが充実しています。
- クオール薬局(約450m、徒歩6分)
- たんぽぽ薬局(約650m、徒歩8分)
- マツモトキヨシ(約450m、徒歩6分)
- シンクパークファーマシー(約600、徒歩9分)
- くすりの福太郎(約650m、徒歩10分)
- 大崎薬局(約650m、徒歩10分)
3-3. 飲食店について
マンションから近い「大崎駅」や「五反田駅」周辺には、以下のような飲食店が数多くあります。
- カフェ
- イタリアンレストラン
- フレンチレストラン
- 和食店
- そば・うどん店
- 寿司屋
- 天ぷら
- ダイニングバー
- 中華料理店
- 台湾料理店
- タイ料理店
- アジアン多国籍料理店
- 焼肉・鉄板焼き
- ファストフード店
これだけ多くのお店を利用できるので、外食の予定で困ることはないと言えるでしょう。
高架下の飲食店街が充実している
東急池上線の「五反田駅〜大崎広小路駅」の高架下には、飲食店街「五反田桜横丁」があります。
おしゃれな飲食店が10店舗以上揃っているので、デートやご友人とのお食事にご利用いただけるでしょう。
以下は、五反田桜横丁の写真です。
画像引用元:食べログ
マンション周辺にある、その他のグルメ情報
その他、マンション周辺には、以下のようにチェーンの飲食店も豊富にあります。
|
ファミレス
|
- サイゼリヤ (約400m、徒歩5分)
- デニーズ(約550m、徒歩7分)
|
|
定食など
|
- マクドナルド(約200m、徒歩3分)
- 大戸屋(約230m、徒歩3分)
- 丸亀製麺(約750m、徒歩10分)
|
|
カフェ
|
- スターバックスコーヒー(約190m、徒歩3分)
- ドトール (約240m、徒歩3分)
- エクセルシオール(約600m、徒歩9分)
|
3-4. 学区域や保育園について
ブリリアタワー大崎の学区域は以下の通りです。(※学区域は変更になる場合があります。最新の情報は、各区教育委員会のウェブサイト等でご確認ください。)
| 小学校 |
中学校 |
| 芳水小学校 |
大崎中学校 |
| 徒歩13分 |
徒歩17分 |
学区域の中学校まで距離があるため、お子さまの通学には不便を感じるかもしれません。
ですので、お子さまがいらっしゃるご家庭は、通学面も含めて検討するようにしましょう。
小学校について
品川区の小学校は、住んでる地域によって入学すべき小学校が「指定校(住所地の学校)」として決まっています。
ただし、以下のイメージ図のように「指定校(住所地の学校)」と隣り合った小学校も希望できる「学校選択制度」も利用可能です。
画像引用元:品川区
保育園について
保育園は徒歩4分の場所に「グローバルキッズ大崎園」があるので、入園できれば共働きで忙しいご家庭の負担も減るでしょう。
この他にも周辺には複数の保育園がございます。
引用:Google Map
3-5. 周辺の治安について
マンション周辺の治安は悪いです。
以下のマップは、2022年の1年間を通して、犯罪(自転車盗難なども含む)が合計何件発生したかを示したものです。

引用:警視庁犯罪情報マップ
ご覧の通りマンション周辺は犯罪が多い赤色に分類されていることから、23区内では犯罪が多いエリアと言えます。
特に、五反田駅前の繁華街は夜のお店も多いので、女性の一人暮らしやお子さまがいるファミリー層は注意しましょう。
ただ、マンションの周辺には複数の交番や警察署があるので、いざという時には心強く、安心感を与えてくれます。
ブリリアタワー大崎の入り口付近
以下の写真の通り、マンション前には道幅の広い歩道が整備されているので、お子さま連れでも安心です。
引用:Google Map
3-6. 洪水などによる浸水リスクについて
浸水リスクを調べたところ、最大規模の氾濫が起きた場合、マンションが建つエリアは「0.5m~3.0m未満」の浸水が予測されています。
引用:ハザードマップポータルサイト
万が一、目黒川などが氾濫した場合は、最大で建物2階部分まで浸水する可能性がありますので、浸水リスクも含めて検討するようにしましょう。
4. その他の特徴や注意点(審査難易度・事故情報など)
その他に、ここまでに挙げきれなかった、以下7個のブリリアタワー大崎の特徴や注意点を紹介します。
- 駐車場が使える
- 楽器の演奏ができる
- 各階で24時間ゴミ出しができる
- 保証会社の利用が必須
- 審査難易度は部屋次第
- 定期借家契約について
- 事故物件情報は該当なし
4-1. 駐車場が使える
ブリリアタワー大崎には、駐車場が用意されています。
空き状況にもよりますが、平置きと機械式パーキングが利用可能で、大きさに合わせて「33,000~46,200円(税込)/月」が賃料の目安です。
なお、機械式パーキングのサイズは下記の通りなので、駐車場を借りるときは車検証でサイズを確認しましょう。
- 全長:5,000~5,300mm
- 全幅:1,900~2,050mm
- 全高:1,550~2,050mm
- 重量:~2,300kg
駐輪場とバイク置き場について
ブリリアタワー大崎には駐輪場とバイク置き場があり、賃料の目安は下記の通りです。
- 駐輪場:200~300円/月
- バイク置き場:1,800~2,000円/月
4-2. 楽器の演奏ができる
ブリリアタワー大崎では、オーナー様が楽器演奏を許可しているお部屋に限り、楽器演奏が可能です。
ただし、楽器の種類や演奏時間には制限があります。問題なく演奏できるか、事前に不動産会社にご確認ください。
4-3. 各階で24時間ゴミ出しができる
ブリリアタワー大崎では、各階にゴミ捨て場が設置されており、24時間365日いつでもゴミを捨てることができます。
粗大ゴミは所定の場所へ持ち出す必要がありますが、日々のゴミ捨てでエレベーターを使わずに済むのは魅力的です。
4-4. 保証会社の利用が必須
ブリリアタワー大崎の多くの部屋が、保証会社の利用を必須としています。
契約する保証会社は部屋によって異なるため、明確な費用は算出できませんが、初回保証料として総賃料の40~50%が相場となります。
借りる方にとっては追加費用が発生するものの、連帯保証人を用意する手間が省けるというメリットがあります。
4-5. 審査難易度は部屋次第
結論、ブリリアタワー大崎は分譲マンションのため、オーナー様によって審査の難易度が異なります。
したがって、特定の部屋の審査に落ちた場合でも、別の部屋であれば審査に通る可能性は十分にあります。
もし他にも気になるお部屋がある場合は、改めて申し込みが可能かどうか、不動産会社にご確認ください。
4-6. 定期借家契約について
ブリリアタワー大崎は、期間限定の契約となる、「定期借家契約」を結ぶ部屋が多いです。
定期借家契約は期間限定の契約ですが、基本的には一般的な賃貸契約の更新と同様に再契約を結ぶことで、引き続き住み続けられるケースがほとんどです。
ただし、オーナー様が一時的に留守にする期間だけ貸し出しているお部屋など、再契約ができない場合もありますのでご注意ください。
また、再契約時には、近隣相場に合わせて賃料が変更になる可能性もあります。
4-7. 事故物件情報は該当なし
事故情報(過去の事件や事故)を「事故物件検索サイト(https://www.oshimaland.co.jp/)」やTwitterなどのSNS、Google検索で調べました。
その結果、ブリリアタワー大崎が事故物件に該当する情報は見当たりませんでした。
ただし、不動産業者から提示される資料に「告知事項あり」と表記されている場合は、事故やその他のトラブルにつながる事柄がある可能性が高いです。そのため、必ず内容を確認するようにしましょう。
5. まとめ
ここまでをまとめると、Brillia Tower大崎は、「賃料は高いが、それに見合った高いスペックのマンション」です。
これらの特徴を踏まえると、以下に当てはまる方には特におすすめしたい物件です。
- 人気の高級ブランドマンションに住みたい
- 立地や利便性を重視している
- セキュリティが厳重なタワーマンションがいい
- ペットとの暮らしを大切にしたい
改めて、これまでに募集されたお部屋の情報は以下の通りです。 気になるお部屋がありましたら、どうぞお気軽にご連絡ください。お待ちしております。