「Brillia ist Tower 勝どきはどんなマンション?」「賃料相場や審査基準はどんな感じ?」など、Brillia ist Tower 勝どき(以下、ブリリアイストタワー勝どき)の賃貸を検討していませんか?
私たちはこれまで数多くの賃貸物件をご紹介してきましたが、ブリリアイストタワー勝どきは、特に以下のようなお客様に自信を持っておすすめできる物件です。
- 人気の高級ブランドマンションに住みたい
- 立地や利便性を重視している
- 耐震性も重要
- セキュリティが厳重なマンションを探している
- 子育てしやすいエリアがいい
このページでは、この結論に至った背景や、知っておいていただきたい注意点を以下の流れで解説していきます。
- Brillia ist Tower 勝どきの5つの特徴
- Brillia ist Tower 勝どきのエントランスや室内イメージ
- Brillia ist Tower 勝どきの交通情報・周辺環境
- その他の特徴や注意点(審査難易度・事故情報など)
この記事を読めば、ブリリアイストタワー勝どきがどのような物件で、他の賃貸マンションと何が違うのかを深く理解できます。その結果、検討している物件があなたにとって最適な住まいなのか、自信を持って判断できるようになるでしょう。
まずはじめに、Brillia ist Tower 勝どきで募集されていた部屋は以下のとおりです。新しい順に並んでいますが、詳しい募集時期は「物件登録日」をご覧ください。
弊社の仲介手数料は【無料】または【半額+tax】です。お客様の費用負担を少しでも軽くできるよう、全力でお部屋探しをお手伝いします。
物件アーカイブ 過去に募集された部屋一覧
| 参考賃料 | 56.6万円 〜 59.1万円 |
|---|---|
| ㎡数 | 96.81㎡ |
| 間取り | 3LDK |
| 所在階 | 40階 |
| 物件登録日 | 2026/05/13 |
| 参考賃料 | 57.6万円 〜 60.1万円 |
|---|---|
| ㎡数 | 96.81㎡ |
| 間取り | 3LDK |
| 所在階 | 44階 |
| 物件登録日 | 2026/05/13 |
| 参考賃料 | 40.9万円 〜 43.2万円 |
|---|---|
| ㎡数 | 74.38㎡ |
| 間取り | 2LDK |
| 所在階 | 38階 |
| 物件登録日 | 2026/05/01 |
| 参考賃料 | 56.8万円 〜 59.3万円 |
|---|---|
| ㎡数 | 96.81㎡ |
| 間取り | 2LDK |
| 所在階 | 41階 |
| 物件登録日 | 2026/03/26 |
| 参考賃料 | 41.1万円 〜 43.4万円 |
|---|---|
| ㎡数 | 74.38㎡ |
| 間取り | 2LDK |
| 所在階 | 39階 |
| 物件登録日 | 2026/02/09 |
| 参考賃料 | 27.5万円 〜 29.0万円 |
|---|---|
| ㎡数 | 49.44㎡ |
| 間取り | 1LDK |
| 所在階 | 35階 |
| 物件登録日 | 2026/01/29 |
| 参考賃料 | 23.9万円 〜 25.4万円 |
|---|---|
| ㎡数 | 42.09㎡ |
| 間取り | 1R |
| 所在階 | 37階 |
| 物件登録日 | 2026/01/29 |
| 参考賃料 | 27.5万円 〜 29.0万円 |
|---|---|
| ㎡数 | 48.97㎡ |
| 間取り | 1LDK |
| 所在階 | 25階 |
| 物件登録日 | 2026/01/29 |
| 参考賃料 | 36.9万円 〜 38.8万円 |
|---|---|
| ㎡数 | 69.57㎡ |
| 間取り | 2LDK |
| 所在階 | 37階 |
| 物件登録日 | 2026/01/29 |
| 参考賃料 | 48.1万円 〜 50.4万円 |
|---|---|
| ㎡数 | 84.82㎡ |
| 間取り | 2LDK |
| 所在階 | 30階 |
| 物件登録日 | 2026/01/21 |
| 参考賃料 | 48.1万円 〜 50.4万円 |
|---|---|
| ㎡数 | 84.82㎡ |
| 間取り | 2LDK |
| 所在階 | 30階 |
| 物件登録日 | 2026/01/06 |
| 参考賃料 | 27.5万円 〜 29.0万円 |
|---|---|
| ㎡数 | 48.97㎡ |
| 間取り | 1LDK |
| 所在階 | 26階 |
| 物件登録日 | 2025/12/23 |
| 参考賃料 | 48.0万円 〜 50.3万円 |
|---|---|
| ㎡数 | 84.82㎡ |
| 間取り | 2LDK |
| 所在階 | 29階 |
| 物件登録日 | 2025/12/23 |
| 参考賃料 | 28.8万円 〜 30.7万円 |
|---|---|
| ㎡数 | 55.04㎡ |
| 間取り | 1SLDK |
| 所在階 | 15階 |
| 物件登録日 | 2025/11/25 |
| 参考賃料 | 21.7万円 〜 23.2万円 |
|---|---|
| ㎡数 | 40.11㎡ |
| 間取り | 1R |
| 所在階 | 26階 |
| 物件登録日 | 2025/11/25 |
| 参考賃料 | 48.3万円 〜 50.6万円 |
|---|---|
| ㎡数 | 84.82㎡ |
| 間取り | 2LDK |
| 所在階 | 37階 |
| 物件登録日 | 2025/11/25 |
| 参考賃料 | 48.0万円 〜 50.3万円 |
|---|---|
| ㎡数 | 84.82㎡ |
| 間取り | 2LDK |
| 所在階 | 29階 |
| 物件登録日 | 2025/11/18 |
| 参考賃料 | 39.9万円 〜 42.2万円 |
|---|---|
| ㎡数 | 74.38㎡ |
| 間取り | 2LDK |
| 所在階 | 39階 |
| 物件登録日 | 2025/11/18 |
| 参考賃料 | 28.1万円 〜 30.0万円 |
|---|---|
| ㎡数 | 53.75㎡ |
| 間取り | 2LDK |
| 所在階 | 16階 |
| 物件登録日 | 2025/11/18 |
| 参考賃料 | 27.5万円 〜 29.0万円 |
|---|---|
| ㎡数 | 48.97㎡ |
| 間取り | 1LDK |
| 所在階 | 26階 |
| 物件登録日 | 2025/11/18 |
| 参考賃料 | 48.1万円 〜 50.4万円 |
|---|---|
| ㎡数 | 84.82㎡ |
| 間取り | 2LDK |
| 所在階 | 30階 |
| 物件登録日 | 2025/11/18 |
| 参考賃料 | 23.0万円 〜 24.5万円 |
|---|---|
| ㎡数 | 42.52㎡ |
| 間取り | 1K |
| 所在階 | 18階 |
| 物件登録日 | 2025/11/18 |
| 参考賃料 | 31.3万円 〜 33.2万円 |
|---|---|
| ㎡数 | 57.25㎡ |
| 間取り | 1LDK |
| 所在階 | 40階 |
| 物件登録日 | 2025/11/18 |
| 参考賃料 | 27.5万円 〜 29.0万円 |
|---|---|
| ㎡数 | 48.97㎡ |
| 間取り | 1LDK |
| 所在階 | 26階 |
| 物件登録日 | 2025/10/22 |
| 参考賃料 | 28.9万円 〜 30.8万円 |
|---|---|
| ㎡数 | 53.87㎡ |
| 間取り | 1LDK |
| 所在階 | 14階 |
| 物件登録日 | 2025/10/22 |
| 参考賃料 | 27.4万円 〜 28.9万円 |
|---|---|
| ㎡数 | 48.97㎡ |
| 間取り | 1LDK |
| 所在階 | 20階 |
| 物件登録日 | 2025/10/22 |
| 参考賃料 | 29.7万円 〜 31.6万円 |
|---|---|
| ㎡数 | 56.11㎡ |
| 間取り | 1LDK |
| 所在階 | 24階 |
| 物件登録日 | 2025/10/22 |
| 参考賃料 | 28.2万円 〜 30.1万円 |
|---|---|
| ㎡数 | 53.75㎡ |
| 間取り | 2LDK |
| 所在階 | 17階 |
| 物件登録日 | 2025/10/22 |
| 参考賃料 | 29.3万円 〜 31.2万円 |
|---|---|
| ㎡数 | 53.71㎡ |
| 間取り | 1LDK |
| 所在階 | 24階 |
| 物件登録日 | 2025/10/22 |
| 参考賃料 | 27.1万円 〜 28.6万円 |
|---|---|
| ㎡数 | 48.97㎡ |
| 間取り | 1LDK |
| 所在階 | 19階 |
| 物件登録日 | 2025/10/22 |
| 参考賃料 | 29.3万円 〜 31.2万円 |
|---|---|
| ㎡数 | 53.71㎡ |
| 間取り | 1LDK |
| 所在階 | 29階 |
| 物件登録日 | 2025/10/22 |
| 参考賃料 | 23.3万円 〜 24.8万円 |
|---|---|
| ㎡数 | 42.52㎡ |
| 間取り | 1K |
| 所在階 | 26階 |
| 物件登録日 | 2025/10/22 |
| 参考賃料 | 26.9万円 〜 28.4万円 |
|---|---|
| ㎡数 | 48.97㎡ |
| 間取り | 1LDK |
| 所在階 | 14階 |
| 物件登録日 | 2025/10/22 |
| 参考賃料 | 28.9万円 〜 30.8万円 |
|---|---|
| ㎡数 | 53.87㎡ |
| 間取り | 1LDK |
| 所在階 | 14階 |
| 物件登録日 | 2025/09/24 |
| 参考賃料 | 39.9万円 〜 42.2万円 |
|---|---|
| ㎡数 | 74.38㎡ |
| 間取り | 2LDK |
| 所在階 | 34階 |
| 物件登録日 | 2025/09/17 |
| 参考賃料 | 33.6万円 〜 35.5万円 |
|---|---|
| ㎡数 | 60.62㎡ |
| 間取り | 2LDK |
| 所在階 | 22階 |
| 物件登録日 | 2025/09/16 |
| 参考賃料 | 29.3万円 〜 31.2万円 |
|---|---|
| ㎡数 | 55.04㎡ |
| 間取り | 1SLDK |
| 所在階 | 24階 |
| 物件登録日 | 2025/09/16 |
| 参考賃料 | 48.0万円 〜 50.3万円 |
|---|---|
| ㎡数 | 84.82㎡ |
| 間取り | 2LDK |
| 所在階 | 29階 |
| 物件登録日 | 2025/09/16 |
| 参考賃料 | 34.2万円 〜 36.1万円 |
|---|---|
| ㎡数 | 62.4㎡ |
| 間取り | 2LDK |
| 所在階 | 35階 |
| 物件登録日 | 2025/09/16 |
| 参考賃料 | 43.8万円 〜 46.1万円 |
|---|---|
| ㎡数 | 80.6㎡ |
| 間取り | 3LDK |
| 所在階 | 28階 |
| 物件登録日 | 2025/09/10 |
| 参考賃料 | 39.9万円 〜 42.2万円 |
|---|---|
| ㎡数 | 74.38㎡ |
| 間取り | 2LDK |
| 所在階 | 34階 |
| 物件登録日 | 2025/07/18 |
| 参考賃料 | 24.3万円 〜 25.8万円 |
|---|---|
| ㎡数 | 44.12㎡ |
| 間取り | 1LDK |
| 所在階 | 21階 |
| 物件登録日 | 2025/07/16 |
| 参考賃料 | 31.5万円 〜 33.4万円 |
|---|---|
| ㎡数 | 57.25㎡ |
| 間取り | 2LDK |
| 所在階 | 36階 |
| 物件登録日 | 2025/07/16 |
| 参考賃料 | 28.9万円 〜 30.8万円 |
|---|---|
| ㎡数 | 53.87㎡ |
| 間取り | 1LDK |
| 所在階 | 14階 |
| 物件登録日 | 2025/07/16 |
| 参考賃料 | 32.9万円 〜 34.8万円 |
|---|---|
| ㎡数 | 62.18㎡ |
| 間取り | 2LDK |
| 所在階 | 25階 |
| 物件登録日 | 2025/06/24 |
| 参考賃料 | 23.3万円 〜 24.8万円 |
|---|---|
| ㎡数 | 42.52㎡ |
| 間取り | 1K |
| 所在階 | 26階 |
| 物件登録日 | 2025/06/24 |
| 参考賃料 | 28.2万円 〜 30.1万円 |
|---|---|
| ㎡数 | 53.75㎡ |
| 間取り | 2LDK |
| 所在階 | 17階 |
| 物件登録日 | 2025/06/24 |
| 参考賃料 | 31.6万円 〜 33.5万円 |
|---|---|
| ㎡数 | 56.46㎡ |
| 間取り | 2LDK |
| 所在階 | 39階 |
| 物件登録日 | 2025/06/24 |
| 参考賃料 | 37.5万円 〜 39.8万円 |
|---|---|
| ㎡数 | 73.37㎡ |
| 間取り | 2LDK |
| 所在階 | 41階 |
| 物件登録日 | 2025/06/16 |
1. Brillia ist Tower 勝どきの5つの特徴
ブリリアイストタワー勝どきには、以下の特徴があります。
- 高級賃貸ブランド「Brillia ist」シリーズの1つ
- 3駅3路線を利用できる便利な立地
- 地震に強い「免震構造」で建てられている
- 24時間有人管理の厳重なセキュリティ
- 子育てに便利な店舗や施設がある
その分、賃料は高めですが、これらに魅力を感じる方はぜひ前向きにご検討ください。
1-1. 高級賃貸ブランド「Brillia ist」シリーズの1つ
ブリリアイストタワー勝どきは、高級賃貸ブランドとして人気な「Brillia ist」シリーズの1つです。
中でもブリリアイストのタワーマンションは、ハイグレードな分譲仕様の設備が揃うので、人気の部屋は常に早い者勝ちとなります。
なお、部屋によって異なりますが、主に導入されている設備は以下の通りです。
| 共用部 | 室内 |
|
|
ちなみに、過去に募集されたお部屋の賃料を間取りごとにまとめると、以下のようになります。
| 1R・1K | 16~18万円 |
| 1LDK | 17~25万円 |
| 2LDK | 20~46万円 |
| 3LDK | 36~40万円 |
1-2. 3駅3路線を利用できる便利な立地
ブリリアイストタワー勝どきの周辺にある3つの駅からは、下記の3路線を利用することができます。
| 駅名 | 分数 | 路線 |
| 勝どき駅 | 2分 |
|
| 月島駅 | 9分 |
|
| 築地駅 | 14分 |
|
最寄りの勝どき駅から使える「大江戸線」は、以下の通り「六本木」や「新宿」など、都心のオフィス街にアクセスしやすい路線です。
| 駅名 | 所要時間 | 乗り換え |
| 六本木駅 | 13分 | 0回 |
| 銀座駅 | 18分 | 1回 |
| 上野駅 | 21分 | 1回 |
| 東京駅 | 22分 | 1回 |
| 品川駅 | 22分 | 1回 |
| 新宿駅 | 23分 | 0回 |
| 渋谷駅 | 26分 | 1回 |
タクシー移動にも便利な立地
勝どき駅に近い立地なので、タクシーを使うときも便利です。
都心の主要エリアからマンションまで、タクシーをご利用いただいた場合の目安時間と料金は以下の通りです。
| エリア | 通常料金(深夜料金) | 時間 |
| 銀座駅 | 900円(1,060円) | 約5~10分 |
| 東京駅 | 1,380円(1,620円) | 約10~20分 |
| 六本木駅 | 2,180円(2,660円) | 約20分 |
| 品川駅 | 2,900円(3,460円) | 約20~30分 |
| 渋谷駅 | 3,540円(4,260円) | 約30分 |
| 新宿駅 | 3,380円(4,100円) | 約30分 |
1-3. 地震に強い「免震構造」で建てられている
ブリリアイストタワー勝どきは、準大手建設会社である「東急建設」が施工した、地震に強い「免震構造」のタワーマンションです。
免震構造は、「積層ゴム」や「オイルダンパー」などの免震装置によって地盤と建物を切り離し、地震の揺れが建物に直接伝わらないようにする構造です。
なお、タワーマンションの地震に強い構造としては主に以下の3つがあり、わかりやすくランク分けすると免震構造が一番優れていると言えます。
| 免震構造 | 制震構造 | 耐震構造 | |
| 総合ランク | S | A | B |
| 地震の揺れ | ほぼ感じない | 軽減 | 揺れやすい |
| 建物の被害 | 大幅に軽減 | 軽減 | 受けやすい |
| 家具の被害 | 大幅に軽減 | 軽減 | 受けやすい |
| 強風による揺れ | ゆっくりと長く揺れる | ほぼ感じない | ほぼ感じない |
上記のことから、「タワーマンションに住みたいけど地震が心配」という人にも、積極的に検討していただきたいです。
1-4. 24時間有人管理の厳重なセキュリティ
ブリリアイストタワー勝どきには、管理員が24時間常駐し、住まう方々の日々を見守ります。『いざという時』の迅速な対応はもちろん、防犯面でも頼れる存在がいる暮らしは、何物にも代えがたい安心感につながります。
また、エントランスとエレベーターの2箇所にオートロックが設置されているので、不審者が立ち入るリスクも限りなく低いです。
さらに、警備会社による24時間オンラインセキュリティも採用しているので、遠隔警備も整っています。
コンシェルジュによるセキュリティも万全
フロントデスクには専用のコンシェルジュがおりますので、人的なセキュリティも万全を期しています。
また、日中であれば来訪者の受付や宅急便の発送代行をはじめとした、下記のコンシェルジュサービスを提供しています。
- クリーニングの受付
- 共用施設の利用受付
- タクシー・ハイヤーの配車手配
- 各種インフォメーション
- メッセージお預かり
- 各種レンタル品の貸し出し
1-5. 子育てに便利な店舗や施設がある
ブリリアイストタワー勝どきは、子育てにも便利なタワーマンションです。
というのも、歩いて3分圏内に下記のお店や施設が揃っているので、子育て世帯には魅力的です。
| 店舗 | |
| スーパーFUJIデルド | 文化堂 |
| 東武ストア | キャンドゥ |
| デニーズ | サイゼリヤ |
| ファミリーマート | セブンイレブン(建物内) |
| クリニック・ドラッグストア | |
| 勝どき一丁目薬局(建物内) | 有明こどもクリニック |
| 勝どき小児クリニック(建物内) | サクマ眼科クリニック(建物内) |
| ドラッグセイムス(建物内) | どらっぐぱぱす |
| 公共施設 | |
| 月島第二小学校 | グロースリンク勝どき(建物内) |
| 郵便局 | 勝どき橋交番 |
上記の中でも「グロースリンク勝どき」は、以下の遊び場などが豊富に揃う人気の施設です。
| プレイホール | |
![]() |
![]() |
| クライミング | じゃぶじゃぶ池 |
![]() |
![]() |
| 画像引用:グローバルリンク | |
人気の「ららぽーと豊洲」やBBQ施設も近い
ファミリー層から絶大な人気を誇る大型商業施設「ららぽーと豊洲」も比較的近く、歩くと25分、自転車だと10分ほどです。
こちらには映画館やアミューズメント施設など、親子で楽しめる施設が豊富に揃っています。
また、豊洲には手ぶらでBBQを楽しめる「WILD MAGIC」という施設もあるので、休日は豊洲だけでも遊び尽くせるでしょう。
| ららぽーと豊洲 | WILD MAGIC |
![]() |
![]() |
| 引用:三井ショッピングパーク|Google Map | |
車があればお台場も気軽に行ける
車で15分ほどの場所には、自然豊かなビーチやレジャー施設などが充実しているお台場があるので、車があるとさらに便利です。
また、お台場では1年を通してさまざまなイベントが開催されているので、季節ごとのイベントを家族で楽しめる魅力的な街です。

仮に車を持っていない場合でも、マンション周辺にカーシェアが複数用意されているので安心です。
2. Brillia ist Tower 勝どきのエントランスや室内イメージ
ブリリアイストタワー勝どきの魅力をより具体的にイメージしていただけるよう、室内の様子と共用スペースを以下の4つのカテゴリに分けて写真でご紹介します。
2-1. エントランス
ブリリアイストタワー勝どきのエントランスは、重厚感のあるデザインとなっています。

エントランス内部には、以下の写真のようにオートロックが導入されているので、防犯面で安心してお過ごしいただけます。

オートロックを通過した先にあるエントランスロビー内には、コンシェルジュが駐在しているフロントデスクがございます。

また、エントランスロビー内にはソファーセットが揃っているので、待ち合わせ場所としてご活用いただけます。

そして、エントランスロビーの奥にはシックな色合いのエレベーターホールがございます。

ちなみに、タワーマンションのエレベーターは「50戸に対して1基」が理想とされています。
ブリリアイストタワー勝どきは「536戸に対して6基(非常用も含む)」ということから、時間帯によってはお待ちいただく場合があるでしょう。
共用廊下も上品な仕上がり
エレベーターホールから玄関ドアまでは、ホテルライクな内廊下の仕様となっています。(以下は参考写真で別物件となります)

2-2. 共用部
ブリリアイストタワー勝どきには、高級マンションに相応しい以下2つの設備が用意されています。
スカイラウンジ
マンションの40階には、東京の景色を一望できるスカイラウンジが用意されています。

| ・利用時間 |
|
| ・利用料金 |
|
フィットネスルーム
マンションの30階には、気軽に汗を流すことのできるフィットネスルームが用意されています。
ちなみに、ランニングマシーンをご利用の際は、事前予約が必要となっています。

| ・利用時間 |
|
| ・利用料金 |
|
| 画像引用元:at home | |
この他にも、マンションの隣にある「NAS(フィットネスジム)」を以下のように割安な価格でご利用可能です。
- 月会費 8,800円(通常 11,000円)
ちなみに、都度利用は「1回:1,100円」となります
2-3. 室内イメージ
家具のない室内は以下のイメージです。(過去に募集されていた部屋なので、実際の内容とは異なる可能性があります。)
![]() |
![]() |
![]() |
![]() |
![]() |
![]() |
![]() |
![]() |
![]() |
![]() |
![]() |
![]() |
![]() |
![]() |
![]() |
![]() |
キッチンや洗面台などの水回りも以下のように洗練された仕上がりとなっています。
| キッチン | |
![]() |
![]() |
![]() |
![]() |
![]() |
![]() |
![]() |
![]() |
| 洗面台 | |
![]() |
![]() |
![]() |
![]() |
| 浴室 | |
![]() |
![]() |
![]() |
![]() |
| トイレ | |
![]() |
|
![]() |
![]() |
| 画像引用元:at home|東京建物 | |
室内の素材や雰囲気は、お部屋によって異なります。必ず内見でご確認ください。
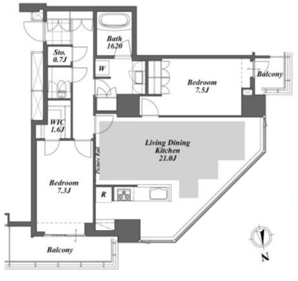
2-4. 間取り
現在募集中の部屋がない場合もございますが、ブリリアイストタワー勝どきの代表的な部屋の間取りをご紹介します。
1R
![]() |
| 42.52㎡(12.86坪) |
| 間取り図引用元:HOME’S |
1LDK
![]() |
![]() |
| 43.84㎡(13.26坪) | 48.97㎡(14.81坪) |
2LDK
![]() |
![]() |
| 82.58㎡(24.98坪) | 84.82㎡(25.66坪) |
| 間取り図引用元:at home | |
3. Brillia ist Tower 勝どきの交通情報・周辺環境
ブリリアイストタワー勝どきの周辺施設(駅やコンビニなど)をマップにまとめましたので、以下をご覧ください。
引用:Google Map
マンション周辺にはコンビニやスーパーが多いので、日常的な買い物が便利です。
3-1. 交通アクセスについて
繰り返しになりますが、ブリリアイストタワー勝どきは以下の3駅が利用可能です。
| 駅名 | 分数 | 路線 |
| 勝どき駅 | 2分 |
|
| 月島駅 | 9分 |
|
| 築地駅 | 14分 |
|
マンションから2分の「勝どき駅(都営大江戸線)」からは、「六本木」や「新宿」まで乗り換えなしで移動できます。
路線バスも利用しやすい
マンション周辺に路線バスの停留所があり、行き先によっては電車より便利に使えることもあります。

下記は、マンション周辺にある3つのバス停からの行き先を示したものです。
| のりば① | のりば② | のりば③ |
|
|
|
なお、「のりば③」から乗車できるバスは「東京BRT」となります。
2020年に運行を開始した「東京BRT」は、新橋まで約8分、虎ノ門ヒルズまで約20分で到着するので、電車を利用するより早くて便利です。
首都高の出入口も近い
近くに首都高の「晴海IC」や「銀座IC」があるので、車移動が多い方にも便利な立地です。
マンションの駐車場からわずか3~5分ほどで首都高速道路に乗れるため、下道の渋滞に巻き込まれる心配もありません。
3-2. 周辺のコンビニやスーパー・薬局について
繰り返しになりますが、マンション周辺にはコンビニやスーパーが多いので、日常的な買い物が便利です。
まず、コンビニはマンション内に「セブンイレブン」がございます。
この他にも、徒歩3分圏内(約240m)に下記の2店舗が揃っています。
- ファミリーマート 月島3丁目店(約180m、徒歩2分)
- セブンイレブン 勝どき駅前店(約250m、徒歩3分)
スーパーは徒歩4分圏内(約320m)に以下の3店舗があるので、日常的な買い物が非常に便利です。
- 文化堂(約86m、徒歩1分)
- FUJIデリド(約110m、徒歩2分)
- 東武ストア(約300m、徒歩4分)
薬局・ドラッグストアも近い
まず、マンション内には以下の薬局・ドラッグストアがあります。
- 勝どき一丁目薬局
- ドラッグセイムス
その他にも、徒歩5分圏内(約400m)には以下の店舗があります。
- ぱぱす薬局(約86m、徒歩1分)
- どらっぐぱぱす(約100m、徒歩2分)
- アイセイ薬局(約300m、徒歩4分)
- アピス薬局(約300m、徒歩5分)
3-3. 飲食店について
マンション周辺には、下記の飲食店が揃っています。
- 牛丼屋
- 居酒屋
- 焼肉屋
- 和食料理店
- ラーメン店
- 蕎麦屋
- バー
- ファストフード店
また、タクシーで10分ほどの場所には、老舗の有名店などが集う「銀座」があるので、グルメな人でも満足いただけるでしょう。
ブリリアイストタワー勝どき周辺のその他のグルメ情報
その他、以下のようにチェーンの飲食店も周辺にあります。
|
・ファミレス・カフェ |
|
|
・牛丼・定食など |
|
3-4. 学区域や保育園について
ブリリアイストタワー勝どきの学区域は以下の通りです。(※学区域は変更になる場合があります。最新の情報は、各区教育委員会のウェブサイト等でご確認ください。)
| 小学校 | 中学校 |
| 月島第二小学校 | 晴海中学校 |
| 徒歩1分 | 徒歩12分 |
学区域の中学校まで距離があるため、お子さまの通学には不便を感じるかもしれません。
そのため、お子さまがいらっしゃるご家庭は、通学面も考慮に入れてご検討ください。
ただし、以下のように通学路は見通しの良い道なりですので、安心して通うことができるでしょう。
| マンションから晴海中学校までの通学路 |
![]() |
![]() |
保育園について
まず、マンション内には「勝どき保育園」があるので、入園できれば共働きで忙しいご家庭の負担も減るでしょう。
この他にも、マンションの周辺には以下のようにたくさんの保育園がございます。
引用:Google Map
3-5. 周辺の治安について
まず、勝どきエリアの治安は良いです。
以下のマップは、2022年の1年間を通して、犯罪(自転車盗難なども含む)が合計で何件発生したのかを示したものです。
引用:警視庁犯罪情報マップ
マンション周辺は犯罪が比較的少ない薄いオレンジ色に分類されているので、23区内でも治安が良いエリアと言えます。
ブリリアイストタワー勝どきの入り口付近
ブリリアイストタワー勝どきは、以下の通り大通りに面していますが、歩道が整備されているのでお子さま連れでも安心です。
引用:Google Map
また、上記の写真でも分かる通り、マンションの前には交番があるので安心して生活することができます。
3-6. 洪水などによる浸水リスクについて
浸水リスクを調べたところ、最大規模の氾濫が起きた場合、マンションが建つエリアは「0.5m未満」の浸水が予測されています。
万が一、マンション周辺で氾濫が起こった場合は、最大で建物1階部分まで浸水する可能性がありますので、浸水リスクも含めて検討するようにしましょう。
4. その他の特徴や注意点(審査難易度・事故情報など)
その他に、ここまでに挙げきれなかった、以下9個のブリリアイストタワー勝どきの特徴や注意点を紹介します。
- 駐車場が使える
- 各階で24時間ゴミ出しができる
- インターネットが無料で使える
- 保証会社の利用が必須
- 審査難易度は普通
- 礼金を求められる部屋が多い
- 契約時の諸費用について
- 事故物件情報の調査結果
- 定期借家契約について
4-1. 駐車場が使える
ブリリアイストタワー勝どきには、駐車場が用意されています。
空き状況にもよりますが、機械式パーキングが利用可能で、大きさに合わせて「33,000~60,500円(税込)/月」が賃料の目安です。
駐車場のサイズは以下の通りです。お借りになる際は、車検証でサイズを必ずご確認ください。
- 全長:~5,300mm
- 全幅:~2,050mm
- タイヤ幅:~1,860mm
- 全高:1,550~2,000mm
- 最低地上高:110mm~
- 重量:2,200~2,500kg
駐輪場とバイク置き場について
ブリリアイストタワー勝どきには駐輪場とバイク置き場があり、賃料の目安は下記の通りです。
- 駐輪場:440円(税込)/月
- バイク置き場:5,500~16,500円(税込)/月
4-2. 各階で24時間ゴミ出しができる
ブリリアイストタワー勝どきでは、各階にゴミ捨て場が設置されており、24時間365日いつでもゴミを捨てることができます。
粗大ゴミは所定の場所へ持ち出す必要がありますが、日々のゴミ捨てでエレベーターを使わずに済むのは魅力的です。
また、ディスポーザーがついている部屋であれば、生ゴミの処理も非常に楽です。
4-3. インターネットが無料で使える
ブリリアイストタワー勝どきはインターネットが無料で利用できます。
部屋にネット回線が引き込まれているので、面倒な手続きも必要なく、入居後すぐに接続可能です。
また、お好きなWi-Fiルーターを自身で用意すれば、どの部屋に居ても快適なネット環境が整います。
4-4. 保証会社の利用が必須
ブリリアイストタワー勝どきに入居するには、連帯保証人の有無に関係なく、保証会社の利用が必須です。(大手法人契約を除く)
料金は、契約時に総賃料の「50%」を支払い、2年目以降は1年毎に「10,000円」の更新料を支払う必要があります。
4-5. 審査難易度は普通
結論、ブリリアイストタワー勝どきの審査難易度は普通です。
上述した保証会社の審査が通れば大抵の場合、貸主の審査も通るケースが多いです。
ただし、誰でも簡単に通るわけではないので、最低でも下記の条件はクリアしておきましょう。
- 年収:家賃の36倍以上
- 勤続年数:1年以上
- 雇用形態:正社員(または安定した収入のある経営者や法人等)
4-6. 礼金を求められる部屋が多い
ブリリアイストタワー勝どきの部屋を借りるときは、礼金1ヶ月分を求められるケースが多いです。
そのため、仮に20万円の部屋を借りる場合、礼金だけで20万円も払うことになるので、無駄な出費が増えてしまいます。
また、交渉して礼金が0になるケースは極めて稀ですので、礼金を払いたくないという人は、以下の礼金0で募集される類似物件を検討してみましょう。
| プラザタワー勝どき |
![]() |
4-7. 契約時の諸費用について
契約する部屋によって金額は異なりますが、契約時には下記の費用がかかるケースが多いです。
| 火災保険料 | 約20,000円/※ |
| 鍵交換費用 | 16,500円(税込) |
| ※補償対象とする家財の金額によりプラン料金の変動があります。 | |
4-8. 事故物件情報の調査結果
事故情報(過去の事件や事故)を「事故物件検索サイト(https://www.oshimaland.co.jp/)」やTwitterなどのSNS、Google検索で調べました。
その結果、ブリリアイストタワー勝どきが事故物件に該当する情報は見当たりませんでした。
ただし、不動産業者から提示される資料に「告知事項あり」と表記されている場合は、事故やその他のトラブルにつながる事柄がある可能性が高いです。そのため、必ず内容を確認するようにしましょう。
4-9. 定期借家契約について
ブリリアイストタワー勝どきは、期間限定の契約となる「定期借家契約」を結びます。
期間限定と言っても、基本的には一般的な更新のように、再契約を結ぶことで、2年後も継続して住み続けることができます。
ただ、契約期間中に家賃を滞納したりすると、再契約できず退去を求められる可能性もあるので注意しましょう。
また、再契約時には、近隣相場に合わせて賃料が変更になる可能性もあります。
5. まとめ
ここまでをまとめると、Brillia ist Tower 勝どきは、「賃料は高いが、それに見合った高いスペックのマンション」です。
これらの特徴を踏まえると、以下に当てはまる方には特におすすめしたい物件です。
- 人気の高級ブランドマンションに住みたい
- 立地や利便性を重視している
- 耐震性も重要
- セキュリティが厳重なマンションを探している
- 子育てしやすいエリアがいい
改めて、これまでに募集されたお部屋の情報は以下の通りです。 気になるお部屋がありましたら、どうぞお気軽にご連絡ください。お待ちしております。
物件アーカイブ 過去に募集された部屋一覧
| 参考賃料 | 56.6万円 〜 59.1万円 |
|---|---|
| ㎡数 | 96.81㎡ |
| 間取り | 3LDK |
| 所在階 | 40階 |
| 物件登録日 | 2026/05/13 |
| 参考賃料 | 57.6万円 〜 60.1万円 |
|---|---|
| ㎡数 | 96.81㎡ |
| 間取り | 3LDK |
| 所在階 | 44階 |
| 物件登録日 | 2026/05/13 |
| 参考賃料 | 40.9万円 〜 43.2万円 |
|---|---|
| ㎡数 | 74.38㎡ |
| 間取り | 2LDK |
| 所在階 | 38階 |
| 物件登録日 | 2026/05/01 |
| 参考賃料 | 56.8万円 〜 59.3万円 |
|---|---|
| ㎡数 | 96.81㎡ |
| 間取り | 2LDK |
| 所在階 | 41階 |
| 物件登録日 | 2026/03/26 |
| 参考賃料 | 41.1万円 〜 43.4万円 |
|---|---|
| ㎡数 | 74.38㎡ |
| 間取り | 2LDK |
| 所在階 | 39階 |
| 物件登録日 | 2026/02/09 |
| 参考賃料 | 27.5万円 〜 29.0万円 |
|---|---|
| ㎡数 | 49.44㎡ |
| 間取り | 1LDK |
| 所在階 | 35階 |
| 物件登録日 | 2026/01/29 |
| 参考賃料 | 23.9万円 〜 25.4万円 |
|---|---|
| ㎡数 | 42.09㎡ |
| 間取り | 1R |
| 所在階 | 37階 |
| 物件登録日 | 2026/01/29 |
| 参考賃料 | 27.5万円 〜 29.0万円 |
|---|---|
| ㎡数 | 48.97㎡ |
| 間取り | 1LDK |
| 所在階 | 25階 |
| 物件登録日 | 2026/01/29 |
| 参考賃料 | 36.9万円 〜 38.8万円 |
|---|---|
| ㎡数 | 69.57㎡ |
| 間取り | 2LDK |
| 所在階 | 37階 |
| 物件登録日 | 2026/01/29 |
| 参考賃料 | 48.1万円 〜 50.4万円 |
|---|---|
| ㎡数 | 84.82㎡ |
| 間取り | 2LDK |
| 所在階 | 30階 |
| 物件登録日 | 2026/01/21 |
| 参考賃料 | 48.1万円 〜 50.4万円 |
|---|---|
| ㎡数 | 84.82㎡ |
| 間取り | 2LDK |
| 所在階 | 30階 |
| 物件登録日 | 2026/01/06 |
| 参考賃料 | 27.5万円 〜 29.0万円 |
|---|---|
| ㎡数 | 48.97㎡ |
| 間取り | 1LDK |
| 所在階 | 26階 |
| 物件登録日 | 2025/12/23 |
| 参考賃料 | 48.0万円 〜 50.3万円 |
|---|---|
| ㎡数 | 84.82㎡ |
| 間取り | 2LDK |
| 所在階 | 29階 |
| 物件登録日 | 2025/12/23 |
| 参考賃料 | 28.8万円 〜 30.7万円 |
|---|---|
| ㎡数 | 55.04㎡ |
| 間取り | 1SLDK |
| 所在階 | 15階 |
| 物件登録日 | 2025/11/25 |
| 参考賃料 | 21.7万円 〜 23.2万円 |
|---|---|
| ㎡数 | 40.11㎡ |
| 間取り | 1R |
| 所在階 | 26階 |
| 物件登録日 | 2025/11/25 |
| 参考賃料 | 48.3万円 〜 50.6万円 |
|---|---|
| ㎡数 | 84.82㎡ |
| 間取り | 2LDK |
| 所在階 | 37階 |
| 物件登録日 | 2025/11/25 |
| 参考賃料 | 48.0万円 〜 50.3万円 |
|---|---|
| ㎡数 | 84.82㎡ |
| 間取り | 2LDK |
| 所在階 | 29階 |
| 物件登録日 | 2025/11/18 |
| 参考賃料 | 39.9万円 〜 42.2万円 |
|---|---|
| ㎡数 | 74.38㎡ |
| 間取り | 2LDK |
| 所在階 | 39階 |
| 物件登録日 | 2025/11/18 |
| 参考賃料 | 28.1万円 〜 30.0万円 |
|---|---|
| ㎡数 | 53.75㎡ |
| 間取り | 2LDK |
| 所在階 | 16階 |
| 物件登録日 | 2025/11/18 |
| 参考賃料 | 27.5万円 〜 29.0万円 |
|---|---|
| ㎡数 | 48.97㎡ |
| 間取り | 1LDK |
| 所在階 | 26階 |
| 物件登録日 | 2025/11/18 |
| 参考賃料 | 48.1万円 〜 50.4万円 |
|---|---|
| ㎡数 | 84.82㎡ |
| 間取り | 2LDK |
| 所在階 | 30階 |
| 物件登録日 | 2025/11/18 |
| 参考賃料 | 23.0万円 〜 24.5万円 |
|---|---|
| ㎡数 | 42.52㎡ |
| 間取り | 1K |
| 所在階 | 18階 |
| 物件登録日 | 2025/11/18 |
| 参考賃料 | 31.3万円 〜 33.2万円 |
|---|---|
| ㎡数 | 57.25㎡ |
| 間取り | 1LDK |
| 所在階 | 40階 |
| 物件登録日 | 2025/11/18 |
| 参考賃料 | 27.5万円 〜 29.0万円 |
|---|---|
| ㎡数 | 48.97㎡ |
| 間取り | 1LDK |
| 所在階 | 26階 |
| 物件登録日 | 2025/10/22 |
| 参考賃料 | 28.9万円 〜 30.8万円 |
|---|---|
| ㎡数 | 53.87㎡ |
| 間取り | 1LDK |
| 所在階 | 14階 |
| 物件登録日 | 2025/10/22 |
| 参考賃料 | 27.4万円 〜 28.9万円 |
|---|---|
| ㎡数 | 48.97㎡ |
| 間取り | 1LDK |
| 所在階 | 20階 |
| 物件登録日 | 2025/10/22 |
| 参考賃料 | 29.7万円 〜 31.6万円 |
|---|---|
| ㎡数 | 56.11㎡ |
| 間取り | 1LDK |
| 所在階 | 24階 |
| 物件登録日 | 2025/10/22 |
| 参考賃料 | 28.2万円 〜 30.1万円 |
|---|---|
| ㎡数 | 53.75㎡ |
| 間取り | 2LDK |
| 所在階 | 17階 |
| 物件登録日 | 2025/10/22 |
| 参考賃料 | 29.3万円 〜 31.2万円 |
|---|---|
| ㎡数 | 53.71㎡ |
| 間取り | 1LDK |
| 所在階 | 24階 |
| 物件登録日 | 2025/10/22 |
















































引用: