徹底調査!ビーコンタワーレジデンスの事故物件情報一覧

BEACON Tower Residence(以下、ビーコンタワー)について、下記8つの方法で事故物件(飛び降り、転落、自殺、火災、孤独死、不審死、事件)かどうかを徹底的にリサーチしましたが、これらの事故の情報はありませんでした。

  • 事故物件検索サイトhttps://www.oshimaland.co.jp/
  • Twitter
  • Instagram
  • Youtube
  • Google検索
  • マンション掲示板(https://www.e-mansion.co.jp)
  • 5ちゃんねる(https://5ch.net)
  • その他データベース

なお、過去に事故などがあったお部屋について、不動産会社や大家さんには次の入居者様へお伝えする義務(告知義務)があります。しかし、その後に一人でも入居者がいた場合は、告知義務の対象外となる点には注意が必要です。

お部屋のことで気になる点があれば、ご遠慮なくご質問ください。お客様が安心して選べるよう、私たちが責任を持ってお調べします。

また、 ビーコンタワーで募集されていた部屋は以下のとおりです。新しい順に並んでいますが、詳しい募集時期は「物件登録日」をご覧ください。

物件アーカイブ 過去に募集された部屋一覧

参考賃料 31.0万円 〜 32.0万円
㎡数 82.71㎡
間取り 2LDK
所在階 14階
物件登録日 2026/02/21
参考賃料 20.2万円 〜 21.5万円
㎡数 55.72㎡
間取り 1LDK
所在階 6階
物件登録日 2026/02/09
参考賃料 32.0万円 〜 33.0万円
㎡数 85.2㎡
間取り 2LDK
所在階 31階
物件登録日 2025/12/16
参考賃料 26.0万円 〜 27.0万円
㎡数 60.34㎡
間取り 1SLDK
所在階 33階
物件登録日 2025/05/29
参考賃料 23.4万円 〜 24.9万円
㎡数 70.08㎡
間取り 3LDK
所在階 27階
物件登録日 2025/03/10
参考賃料 35.8万円 〜 37.8万円
㎡数 87.75㎡
間取り 2SLDK
所在階 21階
物件登録日 2025/02/03
参考賃料 26.3万円 〜 28.0万円
㎡数 81.91㎡
間取り 3LDK
所在階 9階
物件登録日 2024/10/24
参考賃料 31.0万円 〜 32.0万円
㎡数 100.02㎡
間取り 3LDK
所在階 25階
物件登録日 2024/07/10
参考賃料 19.0万円 〜 20.0万円
㎡数 54.72㎡
間取り 1LDK
所在階 12階
物件登録日 2024/06/25
参考賃料 23.0万円 〜 24.0万円
㎡数 60.34㎡
間取り 1SLDK
所在階 31階
物件登録日 2024/02/06
参考賃料 25.8万円 〜 27.8万円
㎡数 85.78㎡
間取り 2LDK
所在階 9階
物件登録日 2023/10/27
参考賃料 21.0万円 〜 23.0万円
㎡数 60.01㎡
間取り 2LDK
所在階 24階
物件登録日 2023/05/06
参考賃料 23.0万円 〜 24.0万円
㎡数 70.01㎡
間取り 2LDK
所在階 7階
物件登録日 2023/04/17
参考賃料 32.0万円 〜 33.5万円
㎡数 97.62㎡
間取り 3LDK
所在階 24階
物件登録日 2022/11/10
参考賃料 25.8万円 〜 27.8万円
㎡数 85.78㎡
間取り 2LDK
所在階 9階
物件登録日 2022/08/28
参考賃料 25.8万円 〜 27.8万円
㎡数 85.78㎡
間取り 2LDK
所在階 9階
物件登録日 2022/08/15
参考賃料 18.0万円 〜 19.5万円
㎡数 55.72㎡
間取り 1LDK
所在階 5階
物件登録日 2022/07/25
参考賃料 25.0万円 〜 27.0万円
㎡数 100.02㎡
間取り 3LDK
所在階 24階
物件登録日 2022/05/23
参考賃料 26.5万円 〜 28.0万円
㎡数 2.71㎡
間取り 2LDK
所在階 36階
物件登録日 2022/05/17
参考賃料 26.0万円 〜 27.0万円
㎡数 82.71㎡
間取り 2LDK
所在階 14階
物件登録日 2022/03/30
参考賃料 24.0万円 〜 25.0万円
㎡数 82.71㎡
間取り 2LDK
所在階 35階
物件登録日 2021/12/09
参考賃料 26.0万円 〜 27.0万円
㎡数 85.20㎡
間取り 2LDK
所在階 31階
物件登録日 2021/12/09

弊社の仲介手数料は【無料】または【半額+tax】です。お客様の費用負担を少しでも軽くできるよう、全力でお部屋探しをお手伝いします。

また、事故情報以外に「ビーコンタワー」についてよくあるご質問をまとめました。

ビーコンタワーについて、事故物件以外でよくある質問と回答

ビーコンタワーについて、よくあるご質問をまとめました。

マンションの設備について

周辺の環境に関して

災害リスクについて

契約について

Q1. 駐車場は用意されていますか?

はい、ビーコンタワーレジデンスには駐車場が用意されています。

空き状況にもよりますが、平置き駐車場の区画によって「25,300~33,000円(税込)/月」が賃料の目安です。

駐車場のサイズは以下の通りです。お借りになる際は、車検証でサイズを必ずご確認ください。

  • 全長:~5,050mm
  • 全幅:~1,850mm
  • 全高:1,550~2,100mm
  • 最低地上高:120mm
  • 重量:~2,300kg

駐輪場とバイク置き場について

ビーコンタワーレジデンスには駐輪場とバイク置き場があり、賃料の目安は下記の通りです。

  • 駐輪場:100円/月
  • バイク置き場:2,000円/月

Q2. 楽器の演奏はできますか?

はい、ビーコンタワーレジデンスは、オーナー様が楽器演奏を許可しているお部屋に限り、楽器演奏が可能です。

ただし、演奏できる楽器や時間には制限がありますので、問題なく演奏できそうか不動産会社に確認しましょう。

Q3. ペットの飼育はできますか?

はい、ビーコンタワーレジデンスでオーナー様がペット飼育を許可しているお部屋では、以下のペットとのご入居が可能です。

  • 小型犬

ペットの種類に関しては、貸主や管理組合から承諾をもらう必要がありますので、事前に相談しましょう。

また、ペットを飼育するときは敷金が1ヶ月分積み増しになるケースが多いので、こちらも事前に確認しましょう。

なお、マンションの設備としてペット用の足洗い場が用意されているので、散歩帰りなど便利に利用できます。

動物病院やペットサロンも充実

マンションから近い「イオン東雲」には、動物病院が併設されたペットショップがあるので、ペットの体調が優れないときでも安心です。

さらに、ホテルやトリミングのサービスも提供しているので、旅行や出張のとき便利に利用できます。

Q4. セキュリティ面はどうですか?

ビーコンタワーレジデンスには、管理員が24時間常駐し、住まう方々の日々を見守ります。『いざという時』の迅速な対応はもちろん、防犯面でも頼れる存在がいる暮らしは、何物にも代えがたい安心感につながります。

また、エントランスに加え、エレベーターホールにもオートロックを完備。不審者の侵入を二重でブロックするため、女性の一人暮らしや小さなお子様がいるご家庭でも、安心して毎日をお過ごしいただけます。

さらに、エレベーターはお部屋の鍵がないと呼び出せない仕組みです。居住者以外はフロアに上がれないため、セキュリティ面でも安心感が違います。

Q5. コンシェルジュはいますか?何をしてくれますか?

はい、フロントデスクには専用のコンシェルジュがいます。

また、日中であれば来訪者の受付や宅急便の発送代行をはじめとした、下記のコンシェルジュサービスを提供しています。

  • インフォメーションサービス
  • ゲスト対応
  • 宅配便発送サービス
  • クリーニングの受付
  • 共用施設の利用受付
  • 粗大ゴミの収集手続き
  • タクシー・ハイヤーの配車手配
  • メッセージお預かり
  • 各種レンタル品の貸し出し

Q6. 周辺の治安は良いですか?

いいえ、マンション周辺の治安は悪いです。

以下のマップは、2022年の1年間を通して、犯罪(自転車盗難なども含む)が合計何件発生したかを示したものです。

ビーコンタワーレジデンス周辺の治安引用:警視庁犯罪情報マップ

ご覧の通りマンション周辺は犯罪発生件数が多い赤色に分類されていることから、東京都内でも治安が悪いエリアと言えます。

ですから、女性の一人暮らしやお子さまがいるファミリー層は慎重に検討しましょう。

ただ、マンション周辺に複数の交番があるので、緊急時の対応は早いです。

ですから、女性の一人暮らしやお子さまがいるファミリー層は慎重に検討しましょう。

Q7. 電車などの交通アクセスはどのようなものがありますか?

ビーコンタワーレジデンス周辺の主要な交通アクセスを以下の移動手段に分けて紹介します。

  1. 電車
  2. バス
  3. タクシー・車

1.電車

ビーコンタワーレジデンスの周辺にある3つの駅からは、下記の3路線を利用することができます。

駅名 分数 路線
辰巳駅 9分
  • 東京メトロ有楽町線
豊洲駅 12分
  • 東京メトロ有楽町線
  • ゆりかもめ
東雲駅 13分
  • りんかい線

最寄り駅から利用できる「有楽町線」は、「銀座」や「永田町」といった都心のオフィス街にアクセスしやすい路線です。

一方、東雲駅から利用できる「りんかい線」は、大崎駅から埼京線と繋がることで、「渋谷」や「新宿」に乗り換えなしでアクセスできます。

以上のことから、都心の主要オフィス街に通勤する方にとっては便利な路線と言えるでしょう。

2.バス

ビーコンタワーレジデンスは羽田空港と成田空港発着のリムジンバスの利用もしやすいです。

というのも、豊洲駅から空港直結のリムジンバスが発着しているからです。

なので、出張や旅行で飛行機をよく使う人にとっても便利な立地と言えるでしょう。

3.タクシー・車

「豊洲」に近い立地なので、タクシーを使うときも便利です。

都心の主要エリアからマンションまで、タクシーをご利用いただいた場合の目安時間と料金は以下の通りです。

エリア 通常料金(深夜料金) 時間
銀座駅 2,100円(2,500円) 約20分
新橋駅 2,500円(2,980円) 約20~30分
東京駅 2,660円(3,140円) 約20~30分
大手町駅 2,740円(3,300円) 約20~30分
六本木駅 3,460円(4,100円) 約30分
品川駅 4,100円(4,980円) 約30~40分
渋谷駅 4,820円(5,780円) 約40~50分
新宿駅 5,540円(6,600円) 約40~50分

また、近くに首都高の「豊洲IC」があるので、車移動が多い方にも便利な立地です。

マンションの駐車場からわずか5~6分ほどで首都高速道路に乗れるため、下道の渋滞に巻き込まれる心配もありません。

Q8. 周辺にコンビニやスーパーはありますか?

はい、徒歩圏内にコンビニやスーパーが充実しており、日々の買い物が大変便利な立地です。(詳細は下図参照)

ビーコンタワーレジデンス周辺のコンビニ・スーパー引用:Google Map

まず、コンビニは徒歩5分の場所に「ファミリーマート」がございます。

スーパーは24時間営業している「イオン東雲」が徒歩4分ほどの場所にあるので、生鮮食品の買い物で困ることはないでしょう。

また、徒歩8分の場所には「東武ストア」もございます。

薬局・ドラッグストアの数も多い

マンションから徒歩10分圏内(約800m)には、下記の薬局やドラッグストアが豊富に揃っています。

  • くすりの福太郎(約290m、徒歩4分)
  • イオン薬局 第二東雲店(約350m、徒歩4分)
  • イオン薬局 東雲店(約350m、徒歩4分)
  • ひとは薬局(約400m、徒歩5分)
  • しののめ薬局49(約800m、徒歩10分)

Q9. 周辺にどんな飲食店がありますか?

マンションから徒歩4分ほどの「イオン東雲」の中には、お子さま連れでも利用しやすい以下の飲食店が揃っています。

  • マクドナルド
  • サーティーワンアイスクリーム
  • 築地銀だこ
  • はなまるうどん
  • リンガーハット
  • すき家
  • らーめん花月嵐

また、「ららぽーと豊洲」や「有明ガーデン」といった大型の商業施設も近いので、休日に家族で外食するときも便利です。

周辺にある、その他のグルメ情報

その他、マンション周辺には、以下のようにチェーンの飲食店もあります。

  • コメダ(約300m、徒歩4分)
  • すき家(約650m、徒歩8分)
  • タリーズ(約800m、徒歩11分)
  • やよい軒(約1km、徒歩13分)
  • バーミヤン(約1km、徒歩13分)

Q10. 学区域の小・中学校はどちらですか?

ビーコンタワーレジデンスの学区域は以下の通りです。(※学区域は変更になる場合があります。最新の情報は、各区教育委員会のウェブサイト等でご確認ください。)

小学校 中学校
東雲小学校 有明中学校
徒歩11分 徒歩14分

上記の通り、学区域の中学校までは遠いので、お子さまの通学面では不便な立地条件となります。

ただし、以下のように通学路は見晴らしの良い道なりですので、安心して通うことができるでしょう。

マンションから学区域の小中学校までの通学路
ビーコンタワーレジデンスの通学路
ビーコンタワーレジデンスの通学路

念のため、お子さまがいらっしゃる家庭は、内見時に通学路も確認するようにしましょう。

学校選択制度について

江東区のの小・中学校では、地域によって入学すべき中学校が「指定校」として定められています。

ただし、「指定校」以外の江東区内の小・中学校も希望できる「学校選択制度」をご利用いただくことも可能です。

希望可能な範囲は以下の通りとなっています。

  • 小学校 徒歩2km圏内の小学校
  • 中学校 区内全域の中学校

Q11. 周辺に保育園はありますか?

はい、保育園は徒歩3分の場所に「YMCA東雲保育園」があるので、入園できれば共働き家庭の負担も減るでしょう。

この他にも、マンション周辺には複数の保育園がありますので、比較的検討しやすいエリアと言えます。

ビーコンタワー周辺の保育園引用:Google Map

Q12. 周辺に子育てに便利な施設はありますか?

はい、マンションから歩いて4分の「イオン東雲」には、子育て世帯に嬉しい下記の店舗や施設が揃っています。

店舗・飲食店
スーパー(24時間営業) マクドナルド
ダイソー 不二家
サーティワンアイスクリーム ラーメン花月嵐
築地銀だこ はなまるうどん
リンガーハット すき家
薬局・クリニック
いよりこどもクリニック キャナルコート歯科クリニック
しののめ内科クリニック しののめ皮ふ科クリニック
イオン薬局 しののめ眼科

上記の通り、小児科などの医療機関も揃っているので、お子さまの体調が悪いときでも負担をかけずに受診できます。

自転車や車があればさらに便利

自転車で7~8分の場所には、ファミリー層から絶大な人気を誇る大型商業施設「ららぽーと豊洲」があります。

こちらには映画館やアミューズメントスペースなど、親子で楽しめる施設が豊富に揃っています。

また、手ぶらでBBQを楽しめる「WILD MAGIC」も豊洲にあるので、休日は豊洲だけでも遊び尽くせるでしょう。

ららぽーと豊洲 WILD MAGIC
ららぽーと豊洲の写真 ワイルドマジックの写真
引用:三井ショッピングパーク|Google Map

さらに、車で15分ほどのお台場には、充実したレジャー施設の他、開放的なビーチや公園も揃っています。

お台場は1年を通して様々なイベントが開催されているので、季節ごとのイベントを家族で楽しめる魅力的な街です。

お台場のイメージ

仮に自転車や車を持っていない場合でも、マンションのすぐ近くにレンタサイクルがあったり、周辺にカーシェアが用意されているので安心です。

Q13. マンションは地震に強い構造ですか?

はい、ビーコンタワーレジデンスは、国内大手5社の1つである「大成建設」が施工した、地震に強い「免震構造」のタワーマンションです。

免震構造は、「積層ゴム」や「オイルダンパー」などの免震装置によって地盤と建物を切り離し、地震の揺れが建物に直接伝わらないようにする構造です。

なお、タワーマンションの地震に強い構造としては主に以下の3つがあり、わかりやすくランク分けすると免震構造が一番優れていると言えます。

  免震構造 制震構造 耐震構造
総合ランク S A B
地震の揺れ ほぼ感じない 軽減 揺れやすい
建物の被害 大幅に軽減 軽減 受けやすい
家具の被害 大幅に軽減 軽減 受けやすい
強風による揺れ ゆっくりと長く揺れる ほぼ感じない ほぼ感じない

上記のことから、「タワーマンションに住みたいけど地震が心配」という人にも、積極的に検討していただきたいです。

Q14. 洪水などによる浸水のリスクはありますか?

はい、ハザードマップで浸水リスクを確認したところ、最大規模の洪水が発生した場合、マンションが建つエリアでは0.5m未満の浸水が予測されています。

ビーコーンタワーレジデンス周辺のハザードマップ引用:ハザードマップポータルサイト

万が一、周辺の河川が氾濫した場合は、最大で建物1階部分が浸水する可能性がありますので、浸水リスクも含めて検討するようにしましょう。

Q15. 液状化のリスクはありますか?

はい、東雲エリアは埋立地なので、液状化のリスクがあります。

中でもビーコンタワーレジデンスの地形は「液状化のリスクが大きい」とハザードマップに記されています。

ですので、絶対に液状化で悩みたくない人は、東雲を含む埋立地のマンションは避けたほうがいいでしょう。

Q16. 保証会社の利用は必須ですか?

はい、ビーコンタワーレジデンスの多くの部屋が、保証会社の利用を必須としています。

契約する保証会社は部屋によって異なるため、明確な費用は算出できませんが、初回保証料として総賃料の40~50%が相場となります。

借りる方にとっては追加費用が発生するものの、連帯保証人を用意する手間が省けるというメリットがあります。

Q17. 審査難易度はどのようになっていますか?

結論、ビーコンタワーレジデンスは分譲マンションのため、オーナー様によって審査の難易度が異なります。

したがって、特定の部屋の審査に落ちた場合でも、別の部屋であれば審査に通る可能性は十分にあります。

もし他にも気になるお部屋がある場合は、改めて申し込みが可能かどうか、不動産会社にご確認ください。

よくある質問とその回答は以上です。

ここから、マンションをよりイメージした上で契約したい方のために、画像でマンション内の内装や設備を紹介します。

豊富な画像でわかる! ビーコンタワーのエントランス・室内イメージ

ビーコンタワーの室内や共用スペースはどうなっているのか、契約前により具体的にイメージいただくために、以下の3つに分けて画像で紹介します。

①. エントランス

エントランス外観は以下の写真のように重厚感のある造りとなっています。

ビーコンタワーレジデンスのエントランスホール

エントランス内部にはオートロックが導入されているので、防犯面でも安心して暮らすことができます。

ビーコンタワーレジデンスのエントランスホール

オートロックを通過すると、2層吹き抜けの開放感あるエントランスロビーが用意されています。

ビーコンタワーレジデンスのエントランスホール

エントランスホール内には、コンシェルジュが駐在するフロントデスクがございます。

ビーコンタワーレジデンスのエントランスホール

また、エントランスホールの隣にはソファーセットの揃った、エントランスロビーもございます。

ビーコンタワーレジデンスのエントランスロビー

そして、エントランスホール内に設置された2つ目のオートロックを通過すると、エレベーターホールとなります。

エレベーターホールには、合計5基のエレベーターが用意されています。

ビーコンタワーレジデンスのエレベーターホール画像引用元:SUUMO

ちなみに、タワーマンションのエレベーターは「50戸に対して1基」が理想とされています。

ビーコンタワーレジデンスは「440戸に対して5基」ということから、時間帯によっては少し待つかもしれません。

②. 共用部

ビーコンタワーレジデンスの内装は、タワーマンションに相応しい豪華な仕様です。

この章では、下記の共用施設の利用方法などを詳しく紹介していきます。

ビーコンカフェ

マンションの2階にはカフェがございます。

ビーコンタワーレジデンスの共用部

ビーコンタワーレジデンスの共用部

カフェ内には以下の写真のようにライブラリースペースもあるので、コーヒーを飲みながら読書を楽しむことができます。

ビーコンタワーレジデンスの共用部

・利用時間
  • 09:00~21:00
・利用料金
  • メニューに準ずる

ビジネスセンター

マンション内には個別ブースが揃えられたビジネスセンターがございます。

ビーコンタワーレジデンスの共用部

マルチルーム

マンション内には様々な用途にご利用いただけるマルチルームがございます。

ビーコンタワーレジデンスの共用部

キッズスペース

マンション内には遊具などが揃ったキッズスペースが用意されています。

ビーコンタワーレジデンスの共用部画像引用元:SUUMO

ゲストルーム

マンション内にはゲストルームが全3室用意されているので、遠方からのゲストも時間を気にせず過ごすことができます。

ちなみに、30階にあるレジデンシャルスイートという部屋は、以下のように高級ホテル仕様の洗練された仕上がりとなっています。

ビーコンタワーレジデンスの共用部

・利用料金
  • レジデンシャルスイート 10,000円/1泊
  • その他のお部屋 3,000円/1泊
画像引用元:公式パンフレット

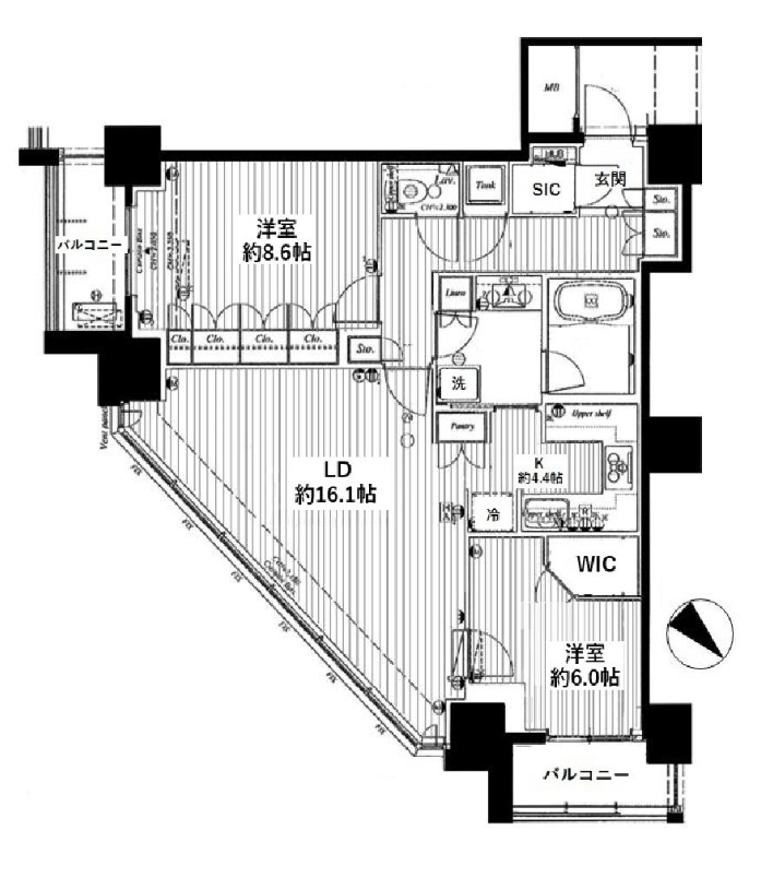
③. 室内イメージ

家具が配置された室内は以下の通りです。(過去に募集された部屋ですので、実際の内容とは異なる可能性があります。)

ビーコンタワーレジデンスの室内 ビーコンタワーレジデンスの室内
ビーコンタワーレジデンスの室内 ビーコンタワーレジデンスの室内
ビーコンタワーレジデンスの室内 ビーコンタワーレジデンスの室内
ビーコンタワーレジデンスの室内 ビーコンタワーレジデンスの室内
ビーコンタワーレジデンスの室内 ビーコンタワーレジデンスの室内

家具のない室内は以下の通りです。(過去に募集された部屋なので、実際の内容とは異なる可能性があります。)

ビーコンタワーレジデンスの室内 ビーコンタワーレジデンスの室内
ビーコンタワーレジデンスの室内 ビーコンタワーレジデンスの室内
ビーコンタワーレジデンスの室内 ビーコンタワーレジデンスの室内
ビーコンタワーレジデンスの室内 ビーコンタワーレジデンスの室内

キッチンなどの水回りは、以下のように洗練された仕上がりです。

キッチン
ビーコンタワーレジデンスの室内 ビーコンタワーレジデンスの室内
浴室
ビーコンタワーレジデンスの室内 ビーコンタワーレジデンスの室内
洗面台
ビーコンタワーレジデンスの室内 ビーコンタワーレジデンスの室内
トイレ
ビーコンタワーレジデンスの室内 ビーコンタワーレジデンスの室内
画像引用元:SUUMO

室内の素材や雰囲気は、お部屋によって異なります。必ず内見でご確認ください。

まとめ

ビーコンタワーについて、事故物件を徹底的にリサーチしましたが、事故の情報はありませんでした。

ただ、弊社は、お客様がご心配であれば、過去の事故について、契約前に貸主に確認させていただきますので、お気軽にお申し付けください。

改めて、最新の部屋情報及び、過去に募集された部屋の情報は以下の通りです。気になる部屋があれば、ご連絡をお待ちしています。

物件アーカイブ 過去に募集された部屋一覧

参考賃料 31.0万円 〜 32.0万円
㎡数 82.71㎡
間取り 2LDK
所在階 14階
物件登録日 2026/02/21
参考賃料 20.2万円 〜 21.5万円
㎡数 55.72㎡
間取り 1LDK
所在階 6階
物件登録日 2026/02/09
参考賃料 32.0万円 〜 33.0万円
㎡数 85.2㎡
間取り 2LDK
所在階 31階
物件登録日 2025/12/16
参考賃料 26.0万円 〜 27.0万円
㎡数 60.34㎡
間取り 1SLDK
所在階 33階
物件登録日 2025/05/29
参考賃料 23.4万円 〜 24.9万円
㎡数 70.08㎡
間取り 3LDK
所在階 27階
物件登録日 2025/03/10
参考賃料 35.8万円 〜 37.8万円
㎡数 87.75㎡
間取り 2SLDK
所在階 21階
物件登録日 2025/02/03
参考賃料 26.3万円 〜 28.0万円
㎡数 81.91㎡
間取り 3LDK
所在階 9階
物件登録日 2024/10/24
参考賃料 31.0万円 〜 32.0万円
㎡数 100.02㎡
間取り 3LDK
所在階 25階
物件登録日 2024/07/10
参考賃料 19.0万円 〜 20.0万円
㎡数 54.72㎡
間取り 1LDK
所在階 12階
物件登録日 2024/06/25
参考賃料 23.0万円 〜 24.0万円
㎡数 60.34㎡
間取り 1SLDK
所在階 31階
物件登録日 2024/02/06
参考賃料 25.8万円 〜 27.8万円
㎡数 85.78㎡
間取り 2LDK
所在階 9階
物件登録日 2023/10/27
参考賃料 21.0万円 〜 23.0万円
㎡数 60.01㎡
間取り 2LDK
所在階 24階
物件登録日 2023/05/06
参考賃料 23.0万円 〜 24.0万円
㎡数 70.01㎡
間取り 2LDK
所在階 7階
物件登録日 2023/04/17
参考賃料 32.0万円 〜 33.5万円
㎡数 97.62㎡
間取り 3LDK
所在階 24階
物件登録日 2022/11/10
参考賃料 25.8万円 〜 27.8万円
㎡数 85.78㎡
間取り 2LDK
所在階 9階
物件登録日 2022/08/28
参考賃料 25.8万円 〜 27.8万円
㎡数 85.78㎡
間取り 2LDK
所在階 9階
物件登録日 2022/08/15
参考賃料 18.0万円 〜 19.5万円
㎡数 55.72㎡
間取り 1LDK
所在階 5階
物件登録日 2022/07/25
参考賃料 25.0万円 〜 27.0万円
㎡数 100.02㎡
間取り 3LDK
所在階 24階
物件登録日 2022/05/23
参考賃料 26.5万円 〜 28.0万円
㎡数 2.71㎡
間取り 2LDK
所在階 36階
物件登録日 2022/05/17
参考賃料 26.0万円 〜 27.0万円
㎡数 82.71㎡
間取り 2LDK
所在階 14階
物件登録日 2022/03/30
参考賃料 24.0万円 〜 25.0万円
㎡数 82.71㎡
間取り 2LDK
所在階 35階
物件登録日 2021/12/09
参考賃料 26.0万円 〜 27.0万円
㎡数 85.20㎡
間取り 2LDK
所在階 31階
物件登録日 2021/12/09

物件概要

物件名 BEACON Tower Residence
住所 東京都江東区東雲1丁目9-43
最寄駅 東京メトロ有楽町線 辰巳駅 徒歩9分
東京メトロ有楽町線 豊洲駅 徒歩12分
東京臨海高速鉄道りんかい線 東雲駅 徒歩13分
賃料
180,000 ~ 320,000 円/月
築年月 2009/01(築18年)
間取り 1LDK-1SLDK 専有面積 55.72-85.2㎡
物件特徴 構造 RC(鉄筋コンクリート)
総階数 地上41階
地下1階
総戸数 440戸
物件種別 マンション 登録日
更新日
2023/03/23
2023/05/12
設備
  • オートロック
  • TVドアホン
  • セキュリティシステム
  • 防犯カメラ
  • 24時間管理
  • エレベータ
  • エレベーター2機以上
  • ごみ出し24時間OK
  • 各階ゴミ置き場有
  • 宅配ボックス
  • 駐車場有
  • 大型駐車場
  • 駐輪場
  • バイク置き場
  • タワーマンション
  • 分譲賃貸
  • 免震構造
  • 住宅性能評価書
  • フロントサービス
  • コンシェルジュ
  • ラウンジ
  • パーティルーム
  • ゲストルーム
  • キッズルーム
  • ペット可住戸あり
  • 楽器可住戸あり
  • 二重オートロック
  • カフェあり
  • 地震に強い(免震・制震)

関連記事

  1. 徹底調査!パークホームズ品川 ザ レジデンスの事故物件情報一覧

  2. 徹底調査!ウェリスタワー千代田岩本町の事故物件情報一覧

  3. 徹底調査!ザ・パークハウス恵比寿の事故物件情報一覧

  4. 徹底調査!プラティーヌ御茶ノ水の事故物件情報一覧

  5. 賃貸契約で必要なものがすぐわかる!新社会人から自営業・水商売まで職種別に解説!

  6. 徹底調査!ブリスベージュ神宮前の事故物件情報一覧

コメント

  • コメント (0)

  • トラックバックは利用できません。

  1. この記事へのコメントはありません。

厳選した高級物件をあなたに

高級賃貸東京は、一般的な不動産屋さんのように、「店舗で一緒に物件を探す」ことを基本的には行いません。

なぜかと言うと、店舗での物件探しでは対面になる分、お客様がご自身で検討できる時間が限られてしまうからです。

弊社では、メールなどで希望に沿った物件情報を複数お送りいたしますので、お客様のペースでじっくり比較・検討いただいた上で内覧・お申し込みをしていただくことができます。

このスタイルで営業しているため、店舗での物件紹介は原則しておりません。

高級賃貸東京が選ばれる理由

取引先企業様