「パークアクシス表参道レジデンスはどんなマンション?」「選ぶべき賃貸物件?」など、パークアクシス表参道レジデンス(以下、パークアクシス表参道)の賃貸を検討していませんか?
私たちはこれまで数多くの賃貸物件をご紹介してきましたが、パークアクシス表参道は、特に以下のようなお客様に自信を持っておすすめできる物件です。
- 人気の高級ブランドマンションに住みたい
- 利便性も重視している
- ペットと一緒に暮らしたい
- セキュリティにもこだわりたい
- 静かに暮らせるエリアで探している
このページでは、この結論に至った背景や、知っておいていただきたい注意点を以下の流れで解説していきます。
- パークアクシス表参道レジデンスの5つの特徴
- パークアクシス表参道レジデンスのエントランスや室内イメージ
- パークアクシス表参道レジデンスの交通情報・周辺環境
- その他の特徴や注意点(審査難易度・事故情報など)
この記事を読めば、パークアクシス表参道がどのような物件で、他の賃貸マンションと何が違うのかを深く理解できます。その結果、検討している物件があなたにとって最適な住まいなのか、自信を持って判断できるようになるでしょう。
まずはじめに、パークアクシス表参道で募集されていた部屋は以下のとおりです。新しい順に並んでいますが、詳しい募集時期は「物件登録日」をご覧ください。
弊社の仲介手数料は【無料】または【半額+tax】です。お客様の費用負担を少しでも軽くできるよう、全力でお部屋探しをお手伝いします。
物件アーカイブ 過去に募集された部屋一覧

参考賃料 | 25.0万円 〜 26.0万円 |
---|---|
㎡数 | 38.21㎡ |
間取り | 1LDK |
所在階 | 2階 |
物件登録日 | 2025/10/10 |

参考賃料 | 34.0万円 〜 35.0万円 |
---|---|
㎡数 | 50.05㎡ |
間取り | 1LDK |
所在階 | 3階 |
物件登録日 | 2025/06/16 |

参考賃料 | 32.5万円 〜 33.5万円 |
---|---|
㎡数 | 50.08㎡ |
間取り | 1LDK |
所在階 | 3階 |
物件登録日 | 2025/05/30 |

参考賃料 | 32.5万円 〜 33.5万円 |
---|---|
㎡数 | 52.42㎡ |
間取り | 1LDK |
所在階 | 2階 |
物件登録日 | 2024/10/29 |

参考賃料 | 106.6万円 〜 107.6万円 |
---|---|
㎡数 | 117.47㎡ |
間取り | 3LDK |
所在階 | 5階 |
物件登録日 | 2024/06/09 |

参考賃料 | 30.5万円 〜 31.5万円 |
---|---|
㎡数 | 50.05㎡ |
間取り | 1LDK |
所在階 | 2階 |
物件登録日 | 2024/05/09 |

参考賃料 | 31.3万円 〜 32.3万円 |
---|---|
㎡数 | 50.05㎡ |
間取り | 1LDK |
所在階 | 2階 |
物件登録日 | 2024/04/05 |

参考賃料 | 31.3万円 〜 32.3万円 |
---|---|
㎡数 | 50.08㎡ |
間取り | 1LDK |
所在階 | 2階 |
物件登録日 | 2024/04/05 |

参考賃料 | 31.7万円 〜 32.7万円 |
---|---|
㎡数 | 50.08㎡ |
間取り | 1LDK |
所在階 | 3階 |
物件登録日 | 2024/02/15 |

参考賃料 | 31.3万円 〜 32.3万円 |
---|---|
㎡数 | 50.05㎡ |
間取り | 1LDK |
所在階 | 2階 |
物件登録日 | 2024/02/15 |

参考賃料 | 31.0万円 〜 32.0万円 |
---|---|
㎡数 | 45.64㎡ |
間取り | 1LDK |
所在階 | 2階 |
物件登録日 | 2024/02/08 |

参考賃料 | 52.0万円 〜 53.0万円 |
---|---|
㎡数 | 73.36㎡ |
間取り | 1LDK |
所在階 | 4階 |
物件登録日 | 2024/02/08 |

参考賃料 | 30.3万円 〜 31.3万円 |
---|---|
㎡数 | 45.64㎡ |
間取り | 1LDK |
所在階 | 1階 |
物件登録日 | 2024/02/08 |

参考賃料 | 31.0万円 〜 32.0万円 |
---|---|
㎡数 | 45.64㎡ |
間取り | 1LDK |
所在階 | 2階 |
物件登録日 | 2024/01/19 |

参考賃料 | 55.0万円 〜 56.0万円 |
---|---|
㎡数 | 73.36㎡ |
間取り | 1LDK |
所在階 | 4階 |
物件登録日 | 2024/01/19 |

参考賃料 | 26.0万円 〜 27.0万円 |
---|---|
㎡数 | 38.97㎡ |
間取り | 1DK |
所在階 | 1階 |
物件登録日 | 2024/01/05 |

参考賃料 | 26.6万円 〜 27.6万円 |
---|---|
㎡数 | 40.03㎡ |
間取り | 1LDK |
所在階 | 3階 |
物件登録日 | 2024/01/05 |

参考賃料 | 20.7万円 〜 21.7万円 |
---|---|
㎡数 | 30.50㎡ |
間取り | 1R |
所在階 | 2階 |
物件登録日 | 2024/01/05 |

参考賃料 | 32.6万円 〜 33.6万円 |
---|---|
㎡数 | 52.42㎡ |
間取り | 1LDK |
所在階 | 3階 |
物件登録日 | 2023/12/05 |

参考賃料 | 25.5万円 〜 26.5万円 |
---|---|
㎡数 | 37.75㎡ |
間取り | 1DK |
所在階 | 3階 |
物件登録日 | 2022/12/05 |

参考賃料 | 31.0万円 〜 32.0万円 |
---|---|
㎡数 | 50.05㎡ |
間取り | 1LDK |
所在階 | 2階 |
物件登録日 | 2022/10/10 |

参考賃料 | 20.3万円 〜 21.3万円 |
---|---|
㎡数 | 30.5㎡ |
間取り | 1R |
所在階 | 2階 |
物件登録日 | 2022/08/07 |

参考賃料 | 28.6万円 〜 29.6万円 |
---|---|
㎡数 | 44.46㎡ |
間取り | 1LDK |
所在階 | 4階 |
物件登録日 | 2022/07/17 |

1. パークアクシス表参道レジデンスの5つの特徴
パークアクシス表参道には、以下の特徴があります。
その分、賃料は高めですが、これらに魅力を感じるなら、ぜひ前向きにご検討ください。
1-1. 高級マンションブランド「Park Axis」シリーズの1つ
パークアクシス表参道は、高級賃貸ブランドとして人気がある「Park Axis」シリーズの1つです。
その中でもパークアクシス表参道は、分譲マンションに匹敵する下記の設備が揃っているため、2017年の新築当時から常に人気の物件です。
共用部 | 室内 |
|
|
ちなみに、過去に募集されたお部屋の賃料を間取りごとにまとめると、以下のようになります。
1R | 16~19万円 |
1DK | 21~24万円 |
1LDK | 23~59万円 |
1-2. 4駅13路線を利用できる便利な立地
パークアクシス表参道は、周辺にある4つの駅から下記13つの路線を利用できる、便利な立地に建てられています。
駅名 | 分数 | 路線 |
明治神宮前駅 |
7分 |
|
表参道駅 |
9分 |
|
渋谷駅 |
10分 |
|
原宿駅 |
13分 |
|
都心の中心地を走る東京メトロの各線を利用できるので、東京の主要エリアにもアクセスしやすいです。
タクシー移動にも便利な立地
表参道はタクシーを使うときも便利です。
下記は、都心の主要エリアからマンションまで、タクシーを利用したときの料金と時間の目安です。
区間 | 料金の目安(深夜料金) | 時間の目安 |
六本木駅 | 1,460円(1,700円) | 約10分 |
新宿駅 | 1,460円(1,780円) | 約20分 |
銀座駅 | 2,980円(3,620円) | 約30分 |
品川駅 | 2,740円(3,220円) | 約30分 |
東京駅 | 3,330円(3,940円) | 約30分 |
1-3. 大切なペットと快適に暮らせる
パークアクシス表参道は、敷金を1ヶ月分積み増しすることで、ペットを飼うことができます。
ペットの大きさや種類に関しては、貸主から承諾をもらう必要がありますので、事前に相談しましょう。
動物病院やペットサロンも充実
マンションから歩いて9分の場所に「アニマルケアサロンFLORA」がありますので、ペットの体調が優れないときでも安心です。
また、歩いて6分の場所に、ホテルやトリミングのサービスを提供している「PET HILLS」というお店があるので、旅行や出張のとき便利に利用できます。
さらに、周辺には複数のサロンが揃っているので、用途に合わせてお店をセレクトしやすいです。
店名 | トリミング | ホテル |
Chuck’s TOKYO | ○ | |
Miss BIBI | ○ | ○ |
KENCHERRY | ○ | ○ |
1-4. 厳重なセキュリティシステムが充実
パークアクシス表参道は、厳重なセキュリティシステムを導入しているので、安心して暮らすことができます。
まず、エントランスとエレベーターホールの2箇所にオートロックが設置されています。
さらに、エレベーターはお部屋の鍵がないと呼び出せない仕組みです。居住者以外はフロアに上がれないため、セキュリティ面でも安心感が違います。
1-5. 閑静な住宅街にあるマンション
パークアクシス表参道は、渋谷区の中でも閑静な住宅街として知られる「神宮前5丁目」にあります。
このエリアは大通りや線路に面していないため、騒音で悩まされることなく、快適に暮らすことができるでしょう。
また、少し歩けば「表参道」や「渋谷」といった華やかなエリアがありますので、食事やショッピングをするときも不便ありません。
2. パークアクシス表参道レジデンスのエントランスや室内イメージ
パークアクシス表参道の魅力をより具体的にイメージしていただけるよう、室内の様子と共用スペースを以下の4つのカテゴリに分けて写真でご紹介します。
2-1. エントランス
パークアクシス表参道のエントランスアプローチは、表参道という都心でありながら緑に囲まれています。
エントランス外観は、落ち着いた佇まいとなっています。
エントランスの内部にはオートロックが導入されているので、防犯面でも安心してお過ごしいただけます。
画像引用元:三井不動産
2-2. 共用部
パークアクシス表参道は、共用部も充実した施設が揃っています。
先ほどのオートロックを通過すると、特徴的なアートが配置されたエントランスホールが用意されています。
また、エントランスホールには、テーブルセットが揃ったラウンジがあります。
なお、こちらのラウンジには以下のアートが配置されています。
画像引用元:三井不動産
そして、エントランスホールとエレベーターホールの間に2つ目のオートロックが導入されています。
画像引用元:HOME’S
共用廊下も上品な仕上がり
エレベーターホールから玄関ドアまでは、ホテルライクな内廊下の仕様となっています。(以下は参考写真で別物件となります)
2-3. 室内イメージ
家具を配置したモデルルームを、間取りごとに紹介します。(モデルルームなので、実際の内容とは異なる可能性があります。)
1DK | |
![]() |
![]() |
1LDK | |
![]() |
![]() |
3LDK | |
![]() |
![]() |
![]() |
![]() |
部屋によっては、周辺を一望できるルーフバルコニーが用意されています。
画像引用元:三井不動産
家具のない室内は以下のとおりとなっています。(過去に募集された部屋なので、実際の内容とは異なる可能性があります。)
![]() |
![]() |
![]() |
![]() |
![]() |
![]() |
![]() |
![]() |
![]() |
![]() |
![]() |
![]() |
キッチンなどの水回りは以下のように、洗練された造りとなっています。
キッチン | 洗面台 |
![]() |
![]() |
浴室 | トイレ |
![]() |
![]() |
画像引用元:HOME’S |
その他、部屋によっては日々の生活で便利に使える下記の設備が導入されています。
天井型カセットコンロ | ピクチャーレール |
![]() |
![]() |
人感センサー | 食器洗浄乾燥機 |
![]() |
![]() |
TVモニター付きインターホン | グリル付きガスコンロ |
![]() |
![]() |
追い焚き付きセミオートバス | 浴室換気乾燥機 |
![]() |
![]() |
画像引用元:三井不動産 |
室内の素材や雰囲気は、お部屋によって異なります。必ず内見でご確認ください。
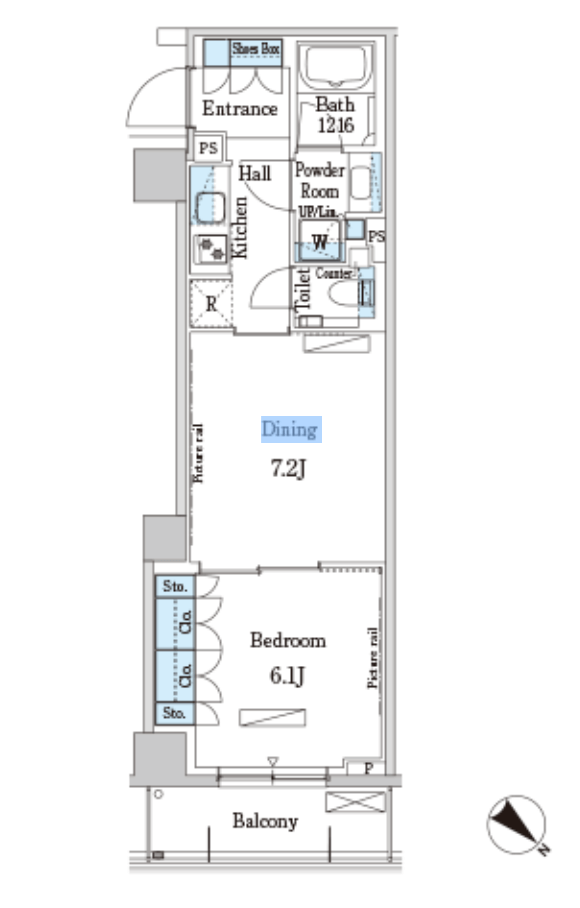
2-4. 間取り
現在募集中の部屋がない場合もございますが、パークアクシス表参道の代表的な部屋の間取りをご紹介します。
1R
![]() |
|
28.86㎡(8.73坪) |
納戸付きの1R
![]() |
30.50㎡(9.22坪) |
1DK
![]() |
![]() |
38.21㎡(11.55坪) | 38.97㎡(11.78坪) |
![]() |
![]() |
37.75㎡(11.41坪) |
1LDK
![]() |
![]() |
50.08㎡(15.14坪) | 40.03㎡(12.10坪) |
![]() |
![]() |
52.42㎡(15.85坪) | 45.64㎡(13.80坪) |
![]() |
![]() |
50.05㎡(15.14坪) | 54.82㎡(16.58坪) |
![]() |
![]() |
78.03㎡(23.60坪) | 44.66㎡(13.44坪) |
プライベートガーデン付きの1LDK
![]() |
![]() |
45.64㎡(13.80坪) | 50.05㎡(15.40坪) |
1SLDK(納戸付き)
![]() |
|
73.36㎡(22.19坪) |
3LDK
![]() |
|
117.47㎡(35.53坪) | |
間取り図引用元:三井不動産 |
3. パークアクシス表参道レジデンスの交通情報・周辺環境
パークアクシス表参道の周辺施設(駅やコンビニなど)をマップにまとめましたので、以下をご覧ください。
引用:Google Map
表参道の中心地ということもあり、近隣には数多くのお店が揃っています。
3-1. 交通アクセスについて
繰り返しになりますが、パークアクシス表参道は、主に下記4つの駅が利用できます。
駅名 | 分数 | 路線 |
明治神宮前駅 |
7分 |
|
表参道駅 |
9分 |
|
渋谷駅 |
10分 |
|
原宿駅 |
13分 |
|
合計13路線を利用できるので、都心内の移動が便利です。
3-2. 周辺のコンビニやスーパー・薬局について
繰り返しになりますが、表参道という都心の中心とも言えるエリアですので、周囲にお店が多いです。
まず、コンビニは徒歩4分の場所に「ファミーマート」があります。
スーパーは、徒歩5分の場所に「東急ストア」があるので、生鮮食品の買い物も便利です。
高級スーパーも徒歩圏内
マンションから徒歩10分ほどの場所には下記の高級スーパーがあり、一般的なスーパーでは手に入らない輸入食品や高級食材を購入することができます。
- 紀ノ国屋インターナショナル(約800m、徒歩10分)
- オモ キノクニヤ エチカ表参道店(約950m、徒歩12分)
- 明治屋(約1km、徒歩13分)
薬局・ドラッグストアはある?
薬局・ドラッグストアは下記の通り、徒歩10分圏内(約800m)にたくさんの店舗があるので、薬などの買い物で困ることはないでしょう。
- アキヤマ薬局(約400m、徒歩4分)
- クオール薬局(約500m、徒歩6分)
- 渋谷鈴薬局(約500m、徒歩7分)
- ココカラファイン(約550m、徒歩7分)
- 薬ヒグチ&ファーマライズ(約600m、徒歩8分)
- 日本調剤(約650m、徒歩8分)
- ことぶき薬局 青山店(約650m、徒歩8分)
- マツモトキヨシ 青山店(約700m、徒歩9分)
- ファーコス薬局(約700m、徒歩9分)
- フレンド薬局 表参道店(約800m、徒歩10分)
3-3. 飲食店について
マンションから徒歩10分の場所にある「表参道ヒルズ」だけでも、以下のようにたくさんの飲食店が揃っています。
- ワインバー
- 和食料理店
- イタリアン
- フレンチバル
- 中華料理店
- 寿司屋
- ローストビーフ専門店
- ハンバーガーショップ
- ラーメン屋
- カフェ
- ショコラトリー&カフェ
- オーガニックレストラン&カフェ
「表参道ヒルズ」以外にも、一人で気軽に立ち寄れるお店や、ミシュランの星を獲得するお店が周辺に多いので、グルメな方でも満足できるでしょう。
飲食店に特化した複合施設もある
渋谷の再開発で、2020年には「ミヤシタパーク」内に「渋谷横丁」という飲食店などの複合施設が誕生しました。
全国の郷土料理やB級グルメに特化した飲食店が出店していて、お酒も楽しめるのでB級グルメやお酒が好きな方でも楽しめるでしょう。
引用:渋谷横丁
パークアクシス表参道のその他のグルメ情報
その他、以下のようにチェーンの飲食店も周辺にあります。
ファミレス |
|
ハンバーガー・定食など |
|
カフェ |
|
3-4. 学区域や保育園について
パークアクシス表参道の学区域は以下の通りです。(※学区域は変更になる場合があります。最新の情報は、各区教育委員会のウェブサイト等でご確認ください。)
小学校 | 中学校 |
神南小学校 | 松濤中学校 |
徒歩14分 | 徒歩22分 |
学区域の中学校まで距離があるため、お子さまの通学には不便を感じるかもしれません。
以上のことから、お子さまがいらっしゃる家庭は、通学面も含めて検討するようにしましょう。
調整区域について
渋谷区の小・中学校は、地域によって入学すべき学校が「指定校」が決まっています。
しかし、お住まいの住所によって、区指定の小・中学校を希望できる「調整区域」という制度が採用されています。
なお、パークアクシス表参道のエリアは、小・中学校どちらも「調整区域」に指定されており、以下の学校から選ぶことができます。
小学校
神南小学校 | 神宮前小学校 | 常盤松小学校 |
徒歩14分 | 徒歩8分 | 徒歩17分 |
指定校 | 調整校 | 調整校 |
中学校
松濤中学校 | 原宿外苑中学校 |
徒歩22分 | 徒歩19分 |
指定校 | 調整校 |
学校選択制度について
渋谷区の中学校は、地域によって入学すべき中学校が「指定校」や「調整校」として決まっています。
ただし、「指定校」や「調整校」以外の渋谷区内の中学校も希望できる「学校選択制度」も利用可能です。
インターナショナルスクールもある
下記のように、周辺にはインターナショナルスクールもいくつかありますので、通わせる施設の比較もしやすいです。
- Marie International School
- Clarence International School
保育園について
保育園は徒歩4分の場所に「ベネッセ 美竹の丘保育園」があるので、入園できれば共働き家庭の負担も減るでしょう。
3-5. 周辺の治安について
マンション周辺の治安は悪いです。
以下のマップは、2022年の1年間を通して、犯罪(自転車盗難なども含む)が合計で何件発生したのかを示したものです。
引用:警視庁犯罪情報マップ
ご覧の通りマンション周辺は赤色に分類されていることから、23区内でも治安が悪いエリアと言えます。
また、渋谷駅周辺は居酒屋や夜のお店も多いので、女性やお子さまがいるファミリー層は注意しましょう。
ただ、マンションの周辺には複数の交番や警察署があるので、いざという時には心強く、安心感を与えてくれます。
パークアクシス表参道の入り口付近
以下の写真の通り、マンション前の道幅が狭いので、小さなお子さまをお連れの場合は注意が必要です。
3-6. 洪水などによる浸水リスクについて
浸水リスクを調べたところ、最大規模の氾濫が起きた場合でも、マンションが建つエリアの浸水リスクはなかったので安心です。
4. その他の特徴や注意点(審査難易度・事故情報など)
その他に、ここまでに挙げきれなかった、以下8個のパークアクシス表参道の特徴や注意点を紹介します。
- 駐輪場とバイク置き場が使える
- アップライトピアノを演奏できる
- 24時間ゴミ出しができる
- 保証会社の利用が必須
- 審査難易度は厳しい
- 事故物件情報は該当なし
- 契約時の諸費用について
- 短期解約のペナルティあり
- 退去時の費用について
4-1. 駐輪場とバイク置き場が使える
パークアクシス表参道には駐輪場とバイク置き場があり、賃料の目安は下記の通りです。
- 駐輪場:1,100円(税込)/月
- バイク置き場:11,000円(税込)/月
4-2. アップライトピアノを演奏できる
パークアクシス表参道は、アップライトピアノの演奏が許可されています。
ただし、演奏時間の制限があり、いつでも自由に演奏できるわけではないので注意しましょう。
4-3. 24時間ゴミ出しができる
パークアクシス表参道には専用のゴミ捨て場があるので、24時間365日ゴミを捨てることができます。
以下はマンション内に用意されているゴミ捨て場の写真です。
画像引用元:HOME’S
4-4. 保証会社の利用が必須
パークアクシス表参道に入居するには、連帯保証人の有無に関係なく、保証会社の利用が必須です。(大手法人契約を除く)
料金は、契約時に総賃料の50%を支払い、2年目以降は1年毎に9,600円の更新料を支払う必要があります。
また、利用する会社は「レジデントアシスタンス」という保証会社で、口座振替事務手数料として毎月110円かかります。
4-5. 審査難易度は厳しい
結論、パークアクシス表参道の審査は厳しいです。
上述した保証会社の審査+貸主の審査も行われるため、厳しい審査が2度あることになります。
また、年収だけでなく、勤続年数なども重要視されますので、最低でも下記の条件はクリアしておきましょう。
- 年収:家賃の36倍
- 勤続年数:1年以上
- 雇用形態:正社員
4-6. 事故物件情報は該当なし
事故情報(過去の事件や事故)を「事故物件検索サイト(https://www.oshimaland.co.jp/)」やTwitterなどのSNS、Google検索で調べました。
その結果、パークアクシス表参道が事故物件に該当する情報は見当たりませんでした。
ただし、不動産業者から提示される資料に「告知事項あり」と表記されている場合は、事故やその他のトラブルにつながる事柄がある可能性が高いです。そのため、必ず内容を確認するようにしましょう。
4-7. 契約時の諸費用について
契約する部屋によって金額は異なりますが、契約時には下記の費用がかかるケースが多いです。
火災保険料 | 鍵交換費用 |
20,000円前後※ | 22,000円(税込) |
※. 入居人数や補償対象とする家財の金額によりプラン料金の変動があります。 |
4-8. 短期解約のペナルティあり
パークアクシス表参道の部屋を契約してから1年未満で解約すると、賃料1ヶ月分の違約金を支払うペナルティがあります。
ですので、短期間の入居を希望する場合は注意しましょう。
なお、1年以上契約していれば、いつ解約してもペナルティはありません。
4-9. 退去時の費用について
パークアクシス表参道を退去するときは、「㎡単価:1,320円(税込)」のハウスクリーニング費用がかかります。
仮に50㎡の部屋を借りていた場合は、退去時に「66,000円(税込)」の清掃費用が敷金から差し引かれるということを覚えておきましょう。
5. まとめ
ここまでをまとめると、パークアクシス表参道レジデンスは、「賃料は高いが、それに見合った高いスペックのマンション」です。
これらの特徴を踏まえると、以下に当てはまる方には特におすすめしたい物件です。
- 人気の高級ブランドマンションに住みたい
- 利便性も重視している
- ペットと一緒に暮らしたい
- セキュリティにもこだわりたい
- 静かに暮らせるエリアで探している
改めて、これまでに募集されたお部屋の情報は以下の通りです。 気になるお部屋がありましたら、どうぞお気軽にご連絡ください。お待ちしております。
物件アーカイブ 過去に募集された部屋一覧

参考賃料 | 25.0万円 〜 26.0万円 |
---|---|
㎡数 | 38.21㎡ |
間取り | 1LDK |
所在階 | 2階 |
物件登録日 | 2025/10/10 |

参考賃料 | 34.0万円 〜 35.0万円 |
---|---|
㎡数 | 50.05㎡ |
間取り | 1LDK |
所在階 | 3階 |
物件登録日 | 2025/06/16 |

参考賃料 | 32.5万円 〜 33.5万円 |
---|---|
㎡数 | 50.08㎡ |
間取り | 1LDK |
所在階 | 3階 |
物件登録日 | 2025/05/30 |

参考賃料 | 32.5万円 〜 33.5万円 |
---|---|
㎡数 | 52.42㎡ |
間取り | 1LDK |
所在階 | 2階 |
物件登録日 | 2024/10/29 |

参考賃料 | 106.6万円 〜 107.6万円 |
---|---|
㎡数 | 117.47㎡ |
間取り | 3LDK |
所在階 | 5階 |
物件登録日 | 2024/06/09 |

参考賃料 | 30.5万円 〜 31.5万円 |
---|---|
㎡数 | 50.05㎡ |
間取り | 1LDK |
所在階 | 2階 |
物件登録日 | 2024/05/09 |

参考賃料 | 31.3万円 〜 32.3万円 |
---|---|
㎡数 | 50.05㎡ |
間取り | 1LDK |
所在階 | 2階 |
物件登録日 | 2024/04/05 |

参考賃料 | 31.3万円 〜 32.3万円 |
---|---|
㎡数 | 50.08㎡ |
間取り | 1LDK |
所在階 | 2階 |
物件登録日 | 2024/04/05 |

参考賃料 | 31.7万円 〜 32.7万円 |
---|---|
㎡数 | 50.08㎡ |
間取り | 1LDK |
所在階 | 3階 |
物件登録日 | 2024/02/15 |

参考賃料 | 31.3万円 〜 32.3万円 |
---|---|
㎡数 | 50.05㎡ |
間取り | 1LDK |
所在階 | 2階 |
物件登録日 | 2024/02/15 |

参考賃料 | 31.0万円 〜 32.0万円 |
---|---|
㎡数 | 45.64㎡ |
間取り | 1LDK |
所在階 | 2階 |
物件登録日 | 2024/02/08 |

参考賃料 | 52.0万円 〜 53.0万円 |
---|---|
㎡数 | 73.36㎡ |
間取り | 1LDK |
所在階 | 4階 |
物件登録日 | 2024/02/08 |

参考賃料 | 30.3万円 〜 31.3万円 |
---|---|
㎡数 | 45.64㎡ |
間取り | 1LDK |
所在階 | 1階 |
物件登録日 | 2024/02/08 |

参考賃料 | 31.0万円 〜 32.0万円 |
---|---|
㎡数 | 45.64㎡ |
間取り | 1LDK |
所在階 | 2階 |
物件登録日 | 2024/01/19 |

参考賃料 | 55.0万円 〜 56.0万円 |
---|---|
㎡数 | 73.36㎡ |
間取り | 1LDK |
所在階 | 4階 |
物件登録日 | 2024/01/19 |

参考賃料 | 26.0万円 〜 27.0万円 |
---|---|
㎡数 | 38.97㎡ |
間取り | 1DK |
所在階 | 1階 |
物件登録日 | 2024/01/05 |

参考賃料 | 26.6万円 〜 27.6万円 |
---|---|
㎡数 | 40.03㎡ |
間取り | 1LDK |
所在階 | 3階 |
物件登録日 | 2024/01/05 |

参考賃料 | 20.7万円 〜 21.7万円 |
---|---|
㎡数 | 30.50㎡ |
間取り | 1R |
所在階 | 2階 |
物件登録日 | 2024/01/05 |

参考賃料 | 32.6万円 〜 33.6万円 |
---|---|
㎡数 | 52.42㎡ |
間取り | 1LDK |
所在階 | 3階 |
物件登録日 | 2023/12/05 |

参考賃料 | 25.5万円 〜 26.5万円 |
---|---|
㎡数 | 37.75㎡ |
間取り | 1DK |
所在階 | 3階 |
物件登録日 | 2022/12/05 |

参考賃料 | 31.0万円 〜 32.0万円 |
---|---|
㎡数 | 50.05㎡ |
間取り | 1LDK |
所在階 | 2階 |
物件登録日 | 2022/10/10 |

参考賃料 | 20.3万円 〜 21.3万円 |
---|---|
㎡数 | 30.5㎡ |
間取り | 1R |
所在階 | 2階 |
物件登録日 | 2022/08/07 |

参考賃料 | 28.6万円 〜 29.6万円 |
---|---|
㎡数 | 44.46㎡ |
間取り | 1LDK |
所在階 | 4階 |
物件登録日 | 2022/07/17 |

物件概要
物件名 | パークアクシス表参道レジデンス | ||
---|---|---|---|
住所 | 東京都渋谷区神宮前5丁目36-6 | ||
最寄駅 | 東京メトロ千代田線 明治神宮前駅 徒歩9分 東京メトロ銀座線 表参道駅 徒歩12分 湘南新宿ライン高海 渋谷駅 徒歩7分 |
||
賃料 | 203,000 ~ 550,000 円/月 |
築年月 | 2017/11(築8年) |
間取り | 1LDK-3LDK | 専有面積 | 38.21-117.47㎡ |
物件特徴 | 構造 | RC(鉄筋コンクリート) | |
総階数 | 地上5階 | 総戸数 | -戸 |
物件種別 | マンション | 登録日 更新日 |
2023/07/07 2023/07/10 |
設備 |
|
記事ランキング


厳選した高級物件をあなたに
高級賃貸東京は、一般的な不動産屋さんのように、「店舗で一緒に物件を探す」ことを基本的には行いません。
なぜかと言うと、店舗での物件探しでは対面になる分、お客様がご自身で検討できる時間が限られてしまうからです。
弊社では、メールなどで希望に沿った物件情報を複数お送りいたしますので、お客様のペースでじっくり比較・検討いただいた上で内覧・お申し込みをしていただくことができます。
このスタイルで営業しているため、店舗での物件紹介は原則しておりません。
高級賃貸東京が選ばれる理由取引先企業様





Copyright © 高級賃貸東京. All Rights Reserved.