「MY TOWER RESIDENCEはどんなマンション?」「選ぶべき賃貸物件?」など、MY TOWER RESIDENCE(以下、マイタワーレジデンス)の賃貸を検討していませんか?
私たちはこれまで数多くの賃貸物件をご紹介してきましたが、マイタワーレジデンスは、特に以下のようなお客様に自信を持っておすすめできる物件です。
- グレードの高いタワーマンションに住みたい
- 立地や利便性を重視している
- 部屋からの眺望を楽しみたい
- セキュリティが厳重なタワーマンションがいい
このページでは、この結論に至った背景や、知っておいていただきたい注意点を以下の流れで解説していきます。
- MY TOWER RESIDENCEの4つの特徴
- MY TOWER RESIDENCEのエントランスや室内イメージ
- MY TOWER RESIDENCEの交通情報・周辺環境
- その他の特徴や注意点(審査難易度・事故情報など)
この記事を読めば、マイタワーレジデンスがどのような物件で、他の賃貸マンションと何が違うのかを深く理解できます。その結果、検討している物件があなたにとって最適な住まいなのか、自信を持って判断できるようになるでしょう。
まずはじめに、MY TOWER RESIDENCEで募集されていた部屋は以下のとおりです。新しい順に並んでいますが、詳しい募集時期は「物件登録日」をご覧ください。
弊社の仲介手数料は【無料】または【半額+tax】です。お客様の費用負担を少しでも軽くできるよう、全力でお部屋探しをお手伝いします。
物件アーカイブ 過去に募集された部屋一覧
| 参考賃料 | 32.3万円 〜 33.5万円 |
|---|---|
| ㎡数 | 51.7㎡ |
| 間取り | 1LDK |
| 所在階 | 18階 |
| 物件登録日 | 2026/04/16 |
| 参考賃料 | 43.7万円 〜 45.2万円 |
|---|---|
| ㎡数 | 73.3㎡ |
| 間取り | 2LDK |
| 所在階 | 12階 |
| 物件登録日 | 2026/04/16 |
| 参考賃料 | 32.5万円 〜 33.7万円 |
|---|---|
| ㎡数 | 54.56㎡ |
| 間取り | 1LDK |
| 所在階 | 14階 |
| 物件登録日 | 2026/04/16 |
| 参考賃料 | 30.2万円 〜 31.4万円 |
|---|---|
| ㎡数 | 53.13㎡ |
| 間取り | 1LDK |
| 所在階 | 11階 |
| 物件登録日 | 2026/03/30 |
| 参考賃料 | 30.0万円 〜 31.2万円 |
|---|---|
| ㎡数 | 53.13㎡ |
| 間取り | 1LDK |
| 所在階 | 15階 |
| 物件登録日 | 2026/03/30 |
| 参考賃料 | 47.5万円 〜 49.0万円 |
|---|---|
| ㎡数 | 72.64㎡ |
| 間取り | 2LDK |
| 所在階 | 24階 |
| 物件登録日 | 2026/03/12 |
| 参考賃料 | 42.2万円 〜 43.7万円 |
|---|---|
| ㎡数 | 65.88㎡ |
| 間取り | 2LDK |
| 所在階 | 24階 |
| 物件登録日 | 2026/02/04 |
| 参考賃料 | 23.5万円 〜 24.7万円 |
|---|---|
| ㎡数 | 40.52㎡ |
| 間取り | 1LDK |
| 所在階 | 14階 |
| 物件登録日 | 2026/01/29 |
| 参考賃料 | 18.0万円 〜 19.0万円 |
|---|---|
| ㎡数 | 30.05㎡ |
| 間取り | 1R |
| 所在階 | 15階 |
| 物件登録日 | 2025/12/24 |
| 参考賃料 | 30.8万円 〜 32.0万円 |
|---|---|
| ㎡数 | 53.13㎡ |
| 間取り | 1LDK |
| 所在階 | 11階 |
| 物件登録日 | 2025/12/24 |
| 参考賃料 | 43.4万円 〜 44.9万円 |
|---|---|
| ㎡数 | 73.3㎡ |
| 間取り | 2LDK |
| 所在階 | 11階 |
| 物件登録日 | 2025/12/24 |
| 参考賃料 | 17.8万円 〜 19.0万円 |
|---|---|
| ㎡数 | 30.1㎡ |
| 間取り | 1DK |
| 所在階 | 13階 |
| 物件登録日 | 2025/12/18 |
| 参考賃料 | 25.1万円 〜 26.3万円 |
|---|---|
| ㎡数 | 43.31㎡ |
| 間取り | 1LDK |
| 所在階 | 16階 |
| 物件登録日 | 2025/10/14 |
| 参考賃料 | 15.8万円 〜 17.0万円 |
|---|---|
| ㎡数 | 28.49㎡ |
| 間取り | 1K |
| 所在階 | 18階 |
| 物件登録日 | 2025/09/29 |
| 参考賃料 | 17.0万円 〜 18.2万円 |
|---|---|
| ㎡数 | 30.05㎡ |
| 間取り | 1K |
| 所在階 | 19階 |
| 物件登録日 | 2025/09/26 |
| 参考賃料 | 18.0万円 〜 19.2万円 |
|---|---|
| ㎡数 | 31.96㎡ |
| 間取り | 1K |
| 所在階 | 16階 |
| 物件登録日 | 2025/09/10 |
| 参考賃料 | 16.6万円 〜 17.8万円 |
|---|---|
| ㎡数 | 27.61㎡ |
| 間取り | 1K |
| 所在階 | 17階 |
| 物件登録日 | 2025/09/03 |
| 参考賃料 | 37.0万円 〜 38.5万円 |
|---|---|
| ㎡数 | 62.49㎡ |
| 間取り | 2LDK |
| 所在階 | 12階 |
| 物件登録日 | 2025/08/08 |
| 参考賃料 | 43.5万円 〜 45.0万円 |
|---|---|
| ㎡数 | 75.06㎡ |
| 間取り | 2LDK |
| 所在階 | 16階 |
| 物件登録日 | 2025/07/03 |
| 参考賃料 | 31.6万円 〜 32.8万円 |
|---|---|
| ㎡数 | 53.13㎡ |
| 間取り | 1LDK |
| 所在階 | 13階 |
| 物件登録日 | 2025/07/01 |
| 参考賃料 | 21.2万円 〜 22.2万円 |
|---|---|
| ㎡数 | 36.74㎡ |
| 間取り | 1DK |
| 所在階 | 15階 |
| 物件登録日 | 2025/06/23 |
| 参考賃料 | 19.1万円 〜 20.3万円 |
|---|---|
| ㎡数 | 36.74㎡ |
| 間取り | 1DK |
| 所在階 | 12階 |
| 物件登録日 | 2025/06/20 |
| 参考賃料 | 33.3万円 〜 34.5万円 |
|---|---|
| ㎡数 | 54.49㎡ |
| 間取り | 1LDK |
| 所在階 | 14階 |
| 物件登録日 | 2025/06/17 |
| 参考賃料 | 30.1万円 〜 31.3万円 |
|---|---|
| ㎡数 | 51.7㎡ |
| 間取り | 1LDK |
| 所在階 | 15階 |
| 物件登録日 | 2025/06/17 |
| 参考賃料 | 46.1万円 〜 47.6万円 |
|---|---|
| ㎡数 | 72.64㎡ |
| 間取り | 2LDK |
| 所在階 | 22階 |
| 物件登録日 | 2025/05/27 |
| 参考賃料 | 27.7万円 〜 28.9万円 |
|---|---|
| ㎡数 | 47.92㎡ |
| 間取り | 1LDK |
| 所在階 | 15階 |
| 物件登録日 | 2025/04/30 |
| 参考賃料 | 25.3万円 〜 26.5万円 |
|---|---|
| ㎡数 | 43.31㎡ |
| 間取り | 1LDK |
| 所在階 | 17階 |
| 物件登録日 | 2025/03/25 |
| 参考賃料 | 21.3万円 〜 22.5万円 |
|---|---|
| ㎡数 | 36.74㎡ |
| 間取り | 1DK |
| 所在階 | 13階 |
| 物件登録日 | 2025/03/25 |
| 参考賃料 | 25.6万円 〜 26.8万円 |
|---|---|
| ㎡数 | 43.34㎡ |
| 間取り | 1LDK |
| 所在階 | 18階 |
| 物件登録日 | 2025/03/05 |
| 参考賃料 | 27.7万円 〜 28.9万円 |
|---|---|
| ㎡数 | 52.49㎡ |
| 間取り | 1LDK |
| 所在階 | 14階 |
| 物件登録日 | 2025/02/18 |
| 参考賃料 | 46.0万円 〜 47.5万円 |
|---|---|
| ㎡数 | 75.06㎡ |
| 間取り | 2LDK |
| 所在階 | 18階 |
| 物件登録日 | 2025/02/03 |
| 参考賃料 | 25.8万円 〜 27.0万円 |
|---|---|
| ㎡数 | 47.92㎡ |
| 間取り | 1LDK |
| 所在階 | 13階 |
| 物件登録日 | 2025/01/23 |
| 参考賃料 | 38.3万円 〜 39.8万円 |
|---|---|
| ㎡数 | 65.88㎡ |
| 間取り | 2LDK |
| 所在階 | 25階 |
| 物件登録日 | 2024/12/10 |
| 参考賃料 | 16.2万円 〜 17.0万円 |
|---|---|
| ㎡数 | 30.05㎡ |
| 間取り | 1R |
| 所在階 | 16階 |
| 物件登録日 | 2024/10/30 |
| 参考賃料 | 19.1万円 〜 20.3万円 |
|---|---|
| ㎡数 | 36.74㎡ |
| 間取り | 1DK |
| 所在階 | 14階 |
| 物件登録日 | 2024/10/30 |
| 参考賃料 | 16.1万円 〜 17.3万円 |
|---|---|
| ㎡数 | 30.46㎡ |
| 間取り | 1DK |
| 所在階 | 11階 |
| 物件登録日 | 2024/08/23 |
| 参考賃料 | 21.9万円 〜 23.1万円 |
|---|---|
| ㎡数 | 40.52㎡ |
| 間取り | 1LDK |
| 所在階 | 14階 |
| 物件登録日 | 2024/07/09 |
| 参考賃料 | 27.3万円 〜 28.5万円 |
|---|---|
| ㎡数 | 59.41㎡ |
| 間取り | 1LDK |
| 所在階 | 19階 |
| 物件登録日 | 2024/07/09 |
| 参考賃料 | 40.2万円 〜 41.7万円 |
|---|---|
| ㎡数 | 75.06㎡ |
| 間取り | 2LDK |
| 所在階 | 13階 |
| 物件登録日 | 2024/06/13 |
| 参考賃料 | 20.6万円 〜 21.8万円 |
|---|---|
| ㎡数 | 36.74㎡ |
| 間取り | 1LDK |
| 所在階 | 19階 |
| 物件登録日 | 2024/05/30 |
| 参考賃料 | 25.8万円 〜 27.0万円 |
|---|---|
| ㎡数 | 54.56㎡ |
| 間取り | 1LDK |
| 所在階 | 14階 |
| 物件登録日 | 2024/05/30 |
| 参考賃料 | 24.0万円 〜 25.2万円 |
|---|---|
| ㎡数 | 47.92㎡ |
| 間取り | 1LDK |
| 所在階 | 11階 |
| 物件登録日 | 2024/03/25 |
| 参考賃料 | 27.8万円 〜 29.0万円 |
|---|---|
| ㎡数 | 53.13㎡ |
| 間取り | 1LDK |
| 所在階 | 15階 |
| 物件登録日 | 2024/02/08 |
| 参考賃料 | 38.0万円 〜 39.5万円 |
|---|---|
| ㎡数 | 65.88㎡ |
| 間取り | 2LDK |
| 所在階 | 21階 |
| 物件登録日 | 2024/02/08 |
| 参考賃料 | 21.0万円 〜 22.2万円 |
|---|---|
| ㎡数 | 43.31㎡ |
| 間取り | 1LDK |
| 所在階 | 17階 |
| 物件登録日 | 2024/01/24 |
| 参考賃料 | 16.0万円 〜 17.0万円 |
|---|---|
| ㎡数 | 30.40㎡ |
| 間取り | 1K |
| 所在階 | 16階 |
| 物件登録日 | 2024/01/24 |
| 参考賃料 | 38.5万円 〜 40.0万円 |
|---|---|
| ㎡数 | 75.06㎡ |
| 間取り | 2LDK |
| 所在階 | 17階 |
| 物件登録日 | 2024/01/24 |
| 参考賃料 | 21.0万円 〜 22.2万円 |
|---|---|
| ㎡数 | 40.47㎡ |
| 間取り | 1LDK |
| 所在階 | 15階 |
| 物件登録日 | 2023/12/25 |
| 参考賃料 | 22.3万円 〜 23.5万円 |
|---|---|
| ㎡数 | 39.10㎡ |
| 間取り | 1LDK |
| 所在階 | 17階 |
| 物件登録日 | 2023/11/22 |
トップ画像引用元:Google Map
1. MY TOWER RESIDENCEの4つの特徴
マイタワーレジデンスには、以下の特徴があります。
その分、賃料は高めですが、これらに魅力を感じるなら、ぜひ前向きにご検討ください。
1-1. 代々木を代表する高級タワーマンションの1つ
マイタワーレジデンスは、代々木を代表する高級タワーマンションの1つです。
というのも、後述する立地や利便性の良さだけでなく、サービス面においても他の賃貸マンションよりグレードが高いからです。
ちなみに、過去に募集されたお部屋の賃料を間取りごとにまとめると、以下のようになります。
| 1R・1K | 14~17万円 |
| 1DK | 16~18万円 |
| 1LDK | 19~30万円 |
| 2LDK | 30~38万円 |
| 3LDK | 48~68万円 |
1-2. 5駅14路線を利用できる便利な立地
マイタワーレジデンスの周辺にある5つの駅からは、下記の14路線を利用することができます。
| 駅名 | 分数 | 路線 |
| 南新宿駅 | 2分 |
|
| 代々木駅 | 3分 |
|
| 新宿駅 | 7分 |
|
| 新宿三丁目駅 | 10分 |
|
| 北参道駅 | 11分 |
|
上記の通り、新宿駅も気軽に利用できる立地なので、都心内の移動で不便に感じることは少ないでしょう。
タクシー移動にも便利な立地
「代々木」や「新宿」といった都心の中心地ですので、タクシーを使うときも便利です。
都心の主要エリアからマンションまで、タクシーをご利用いただいた場合の目安時間と料金は以下の通りです。
| エリア | 通常料金(深夜料金) | 時間 |
| 渋谷駅 | 1,460円(1,700円) | 約10分 |
| 六本木駅 | 1,860円(2,180円) | 約20分 |
| 池袋駅 | 2,340円(2,820円) | 約20分 |
| 東京駅 | 3,300円(3,940円) | 約30分 |
| 品川駅 | 3,540円(4,260円) | 約30~40分 |
空港へのリムジンバスも便利
羽田空港と成田空港へのアクセスも非常に便利です。
というのも、歩いて4分の「小田急ホテルセンチュリーサザンタワー」から、リムジンバスが発着しているのです。
そのため、出張や旅行で飛行機をよく使う人にとっても便利な立地と言えるでしょう。
1-3. すべての部屋が高層階で見晴らしがいい
マイタワーレジデンスはすべての部屋が「11~27階」にあるため、どの部屋でも眺望が期待できます。
中でも「北向き」の部屋であれば、新宿の高層ビル群を眺めることができます。

一方「南向き」の部屋であれば、緑豊かな明治神宮を眺めることができます。
画像引用元:三井不動産
以上のことから、内見するときは部屋の方角と眺望にも注目してみましょう。
1-4. 24時間有人管理の厳重なセキュリティ
マイタワーレジデンスには、管理員が24時間常駐し、住まう方々の日々を見守ります。『いざという時』の迅速な対応はもちろん、防犯面でも頼れる存在がいる暮らしは、何物にも代えがたい安心感につながります。
また、エントランスにモニター付きのオートロックを設置しているので、部外者に侵入されるリスクも低いです。
なお、低層階にある美容専門学校の出入り口は別なので、居住フロアで学生と鉢合わせることはありません。
コンシェルジュによるセキュリティも万全
フロントデスクには専用のコンシェルジュがおりますので、人的なセキュリティも万全を期しています。
また、下記の時間帯であれば、クリーニングの取次や郵便物の発送手配をはじめとした、きめ細かなサービスを受けることができます。
- 月〜金|7:45~12:00 / 16:45~21:00
- 土日祝|8:30~17:30(内1時間休憩あり)
さらに、英語対応も可能となっているので、外国籍の方でも安心して暮らすことができます。
2. MY TOWER RESIDENCEのエントランスや室内イメージ
マイタワーレジデンスの魅力をより具体的にイメージしていただけるよう、室内の様子と共用スペースを以下の4つのカテゴリに分けて写真でご紹介します。
2-1. エントランス
マイタワーレジデンスはのエントランスは、同じ建物内にある専門学校のエントランスと隣接しています。

エントランス外観はガラス張りで開放的な造りです。

エントランスの内部にはオートロックが設置されているので、防犯面でも安心してお過ごしいただけます。

2-2. 共用部
マイタワーレジデンスはマンション内の共用部もグレードが高いです。
まず、オートロックを通過した先には、上品な佇まいのエントランスホールがあります。
エントランスホール内には、以下のようにテーブル席もあるので待ち合わせなどにご利用いただけます。

なお、エントランスホール内にはコンシェルジュが駐在しているフロントデスクが用意されています。

そして、エントランスホールには合計3基のエレベーターが用意されています。
以下の写真のように、エレベーターも上品な仕上がりとなっています。

ちなみに、タワーマンションのエレベーターは「50戸に対して1基」が理想とされています。
マイタワーレジデンスは「144戸に対して3基」ということから、余裕を持ってご利用いただけるでしょう。
プライバシーに配慮された内廊下仕様
エレベーターホールから玄関までは、以下の写真の通りプライバシーに配慮された内廊下となっています。

2-3. 室内イメージ
モデルルームは以下のイメージです。(モデルルームなので、実際の内容とは異なる可能性があります。)


画像引用元:三井不動産
家具のない室内は以下のイメージです。(過去に募集されていた部屋なので、実際の内容とは異なる可能性があります。)


画像引用元:三井不動産
キッチンや洗面台などの水回りは以下のように洗練された造りなっています。
| キッチン | 洗面台 |
![]() |
![]() |
| 浴室 | トイレ |
![]() |
![]() |
| 画像引用元:HOME’S | |
室内の素材や雰囲気は、お部屋によって異なります。必ず内見でご確認ください。
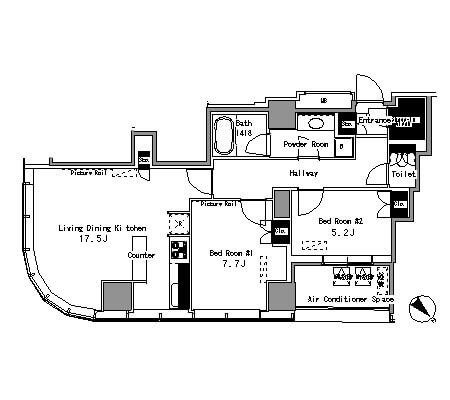
2-4. 間取り
現在募集中の部屋がない場合もございますが、マイタワーレジデンスの代表的な部屋の間取りをご紹介します。
1R
![]() |
![]() |
| 28.49㎡(8.61坪) | 30.05㎡(9.09坪) |
![]() |
![]() |
| 31.96㎡(9.66坪) | 31.42㎡(9.50坪) |
![]() |
![]() |
| 30.40㎡(9.19坪) | 25.49㎡(7.71坪) |
1K
![]() |
| 27.61㎡(8.35坪) |
1DK
|
|
| 30.10㎡(9.10坪) | 31.42㎡(9.50坪) |
![]() |
|
| 36.74㎡(11.11坪) | 43.31㎡(13.10坪) |
![]() |
![]() |
| 33.06㎡(10.00坪) | 32.24㎡(9.75坪) |
![]() |
|
| 40.47㎡(12.24坪) | |
1LDK
![]() |
![]() |
| 47.92㎡(14.49坪) | 54.49㎡(16.48坪) |
![]() |
![]() |
| 51.70㎡(15.63坪) | 53.13㎡(16.07坪) |
![]() |
![]() |
| 59.41㎡(17.97坪) | 39.10㎡(11.82坪) |
![]() |
![]() |
| 40.52㎡(12.25坪) | 45.62㎡(13.80坪) |
![]() |
![]() |
| 52.49㎡(15.87坪) | 41.97㎡(12.69坪) |
![]() |
![]() |
| 54.56㎡(16.48坪) | 49.30㎡(14.91坪) |
2LDK
![]() |
![]() |
| 75.06㎡(22.70坪) | 73.30㎡(22.17坪) |
![]() |
![]() |
| 62.49㎡(18.90坪) | 65.88㎡(19.92坪) |
![]() |
![]() |
| 61.22㎡(18.51坪) | 72.64㎡(21.97坪) |
3LDK
![]() |
![]() |
| 95.25㎡(28.81坪) | 106.29㎡(32.15坪) |
| 間取り図引用元:三井不動産 | |
3. MY TOWER RESIDENCEの交通情報・周辺環境
マイタワーレジデンスの周辺施設(駅やコンビニなど)をマップにまとめましたので、以下をご覧ください。
引用:Google Map
マンション周辺にはスーパーやコンビニが多く、日常的な買い物がしやすいです。
3-1. 交通アクセスについて
繰り返しになりますが、マイタワーレジデンスは主に以下5つの駅が利用できます。
| 駅名 | 分数 | 路線 |
| 南新宿駅 | 2分 |
|
| 代々木駅 | 3分 |
|
| 新宿駅 | 7分 |
|
| 新宿三丁目駅 | 10分 |
|
| 北参道駅 | 11分 |
|
ビッグターミナル駅の「新宿駅」を使えるので、都心内の移動で不便に感じることはないでしょう。
3-2. 周辺のコンビニやスーパー・薬局について
マンション周辺にはコンビニやスーパーが多くあるため、日常的な買い物が便利です。
まず、コンビニはマンションの敷地内に20時まで営業している「ファミリーマート」があります。
その他にも、徒歩5分圏内(約400m)に以下の24時間営業のコンビニが揃っています。
- セブンイレブン
- ファミリーマート
- ローソン
- ナチュラルローソン
スーパーは歩いて1分の場所に「まいばすっと」があるので、日常的な買い物が便利です。
その他にも、歩いて4分の場所に24時間営業の「マルマンストア」があるので、帰りが遅くなっても買い物で困ることはないでしょう。
薬局の数が多い
マンションから歩いて3分圏内(約240m)には、下記のように薬局が豊富に揃っています。
- オリーブ堂(約95m、徒歩1分)
- ミツヤ代々木調剤薬局(約160m、徒歩2分)
- 斉藤薬局(約220m、徒歩3分)
- 鈴木薬局(約270m、徒歩3分)
- 薬局サンライズファーマシー(約290m、徒歩3分)
3-3. 飲食店について
マンション周辺には以下のような飲食店が揃っています。
- イタリアンレストラン
- タイ料理店
- ラーメン屋
- 和食料理店
- 中華料理店
- 居酒屋
- ネパール料理
- バー
- ファストフード店
また、歩いて10分程の新宿駅周辺にはたくさんの飲食店が揃っているので、外食で困ることはないでしょう。
その他、以下のようにチェーンの飲食店も周辺にあります。
|
・ファミレス |
|
|
・定食など |
|
|
・カフェ |
|
3-4. 学区域や保育園について
マイタワーレジデンスの学区域は以下の通りです。(※学区域は変更になる場合があります。最新の情報は、各区教育委員会のウェブサイト等でご確認ください。)
| 小学校 | 中学校 |
| 代々木山谷小学校 | 原宿外苑中学校 |
| 徒歩9分 | 徒歩19分 |
上記の通り、学区域の中学校までは遠いので、お子さまの通学面では不便な立地条件となります。
ですので、お子さまがいらっしゃるご家庭は、通学面も含めて検討するようにしましょう。
学校選択制度について
渋谷区の中学校は、地域によって入学すべき中学校が「指定校」として決まっています。
ただし、「指定校」以外の渋谷区内の中学校も希望できる「学校選択制度」も利用可能です。
保育園について
保育園は歩いて4分の場所に「キッズハーモニー よよぎの社」があるため、入園できれば共働きで忙しいご家庭の負担も減るでしょう。
この他にも周辺には複数の保育園がございます。
引用:Google Map
3-5. 周辺の治安について
マンション周辺の治安は良くないです。
以下のマップは、2022年の1年間を通して、犯罪(自転車盗難なども含む)が合計で何件発生したのかを示したものです。
引用:警視庁犯罪情報マップ
ご覧の通りマンション周辺は犯罪発生件数がオレンジ色に分類されていることから、23区内でも治安が良いエリアとは言えません。
ただし、新宿駅周辺は居酒屋や夜のお店も多いので、女性の一人暮らしやお子さまがいるファミリー層は注意しましょう。
ただ、マンションの周辺には複数の交番や警察署があるので、いざという時には心強く、安心感を与えてくれます。
マイタワーレジデンスの入り口付近
以下の写真の通り、マンション前の道路は踏切に面しているので、お子さま連れの場合は十分注意しましょう。
引用:Google Map
3-6. 洪水などによる浸水リスクについて
ハザードマップ上、最大規模の氾濫時でも浸水リスクはないとされており、安心してお住まいいただけます。(※ハザードマップは変更されるケースがあります。最新の情報は、各自治体のウェブサイト等でご確認ください。)
4. その他の特徴や注意点(審査難易度・事故情報など)
その他に、ここまでに挙げきれなかった、以下11個のマイタワーレジデンスの特徴や注意点を紹介します。
- 駐車場が使える
- 各階で24時間ゴミ出しができる
- ペットの飼育は不可
- 楽器の演奏ができる
- 保証会社の利用が必須
- 審査難易度は厳しい
- 契約時の諸費用について
- 礼金1ヶ月分を求められるケースが多い
- 事故物件情報は該当なし
- 短期解約のペナルティあり
- 退去時の費用について
4-1. 駐車場が使える
マイタワーレジデンスには、駐車場が用意されています。
空き状況にもよりますが、機械式パーキングが利用可能で、大きさに合わせて「月52,800~57,750円(税込)」が賃料の目安です。
駐車場のサイズは以下の通りです。お借りになる際は、車検証でサイズを必ずご確認ください。
- 全長:5,050~5,300mm
- 全幅:1,850~1,950mm
- 全高:1,550~2,000mm
- 重量:1,900~2,300kg
4-2. 各階で24時間ゴミ出しができる
マイタワーレジデンスでは、各階にゴミ捨て場が設置されており、24時間365日いつでもゴミを捨てることができます。
粗大ゴミは所定の場所へ持ち出す必要がありますが、日々のゴミ捨てでエレベーターを使わずに済むのは魅力的です。
4-3. ペットの飼育は不可
マイタワーレジデンスは、ペットを飼うことができません。
ですので、ペットを飼えるタワーマンションがいい人は、以下の物件を検討してみましょう。
| セントラルパークタワー・ラ・トゥール新宿 | ラ・トゥール新宿ガーデン |
![]() |
![]() |
| ラ・トゥール新宿グランド | ラ・トゥール新宿アネックス |
![]() |
![]() |
| 画像引用元:住友不動産 | |
4-4. 楽器の演奏ができる
マイタワーレジデンスでは、オーナー様が楽器演奏を許可しているお部屋に限り、楽器演奏が可能です。
ただし、楽器の種類や演奏時間には規定がございます。後のトラブルを避けるためにも、ご希望の条件での演奏が可能か、ご契約前に必ず確認しましょう。
4-5. 保証会社の利用が必須
マイタワーレジデンスに入居するには、連帯保証人の有無に関係なく、保証会社の利用が必須です。(大手法人契約を除く)
料金は、契約時に総賃料の50%を支払い、2年目以降は1年毎に「9,600円」の更新料を支払う必要があります。
なお、利用するのは「レジデントアシスタンス」または「CASA」という保証会社で、口座振替事務手数料として毎月110円かかります。
4-6. 審査難易度は厳しい
結論、マイタワーレジデンスの審査は厳しいです。
上述した保証会社の審査+貸主の審査も行われるため、厳しい審査が2度あることになります。
また、年収だけでなく、勤続年数なども重要視されますので、最低でも下記の条件はクリアしておきましょう。
- 年収:家賃の36倍以上
- 勤続年数:1年以上
- 雇用形態:正社員(または安定した収入のある経営者や法人等)
4-7. 契約時の諸費用について
契約する部屋によって金額は異なりますが、契約時には下記の費用がかかるケースが多いです。
| 火災保険料 | 鍵交換費用 |
| 20,000円前後※ | 22,000円(税込) |
| ※入居人数や補償対象とする家財の金額によりプラン料金の変動があります。 | |
4-8. 礼金1ヶ月分を求められるケースが多い
マイタワーレジデンスの部屋を借りるときは、礼金1ヶ月分を求められるケースが多いです。
そのため、仮に30万円の部屋を借りる場合、礼金だけで30万円も払うことになるので、無駄な出費が増えてしまいます。
また、交渉して礼金が0になるケースは極めて稀ですので、礼金を払いたくないという人は、以下の礼金0で募集される類似物件を検討してみましょう。
| セントラルパークタワー・ラ・トゥール新宿 | ラ・トゥール新宿ガーデン |
![]() |
![]() |
| ラ・トゥール新宿グランド | ラ・トゥール新宿アネックス |
![]() |
![]() |
| 画像引用元:住友不動産 | |
4-9. 事故物件情報は該当なし
事故情報(過去の事件や事故)を「事故物件検索サイト(https://www.oshimaland.co.jp/)」やTwitterなどのSNS、Google検索で調べました。
その結果、マイタワーレジデンスが事故物件に該当する情報は見当たりませんでした。
ただし、不動産業者から提示される資料に「告知事項あり」と表記されている場合は、事故やその他のトラブルにつながる事柄がある可能性が高いです。そのため、必ず内容を確認するようにしましょう。
4-10. 短期解約のペナルティあり
マイタワーレジデンスの部屋を契約してから1年未満で解約すると、賃料1ヶ月分の違約金を支払うペナルティがあります。
ですので、短期間の入居を希望する場合は注意しましょう。
なお、1年以上契約していれば、いつ解約してもペナルティはありません。
4-11. 退去時の費用について
マイタワーレジデンスを退去するときは、「㎡単価:1,320円(税込)」のハウスクリーニング費用がかかります。
仮に50㎡の部屋を借りていた場合は、退去時に「66,000円(税込)」の清掃費用が敷金から差し引かれるということを覚えておきましょう。
5. まとめ
ここまでをまとめると、MY TOWER RESIDENCEは、「賃料は高いが、それに見合った高いスペックのマンション」です。
これらの特徴を踏まえると、以下に当てはまる方には特におすすめしたい物件です。
- グレードの高いタワーマンションに住みたい
- 立地や利便性を重視している
- 部屋からの眺望を楽しみたい
- セキュリティが厳重なタワーマンションがいい
改めて、これまでに募集されたお部屋の情報は以下の通りです。 気になるお部屋がありましたら、どうぞお気軽にご連絡ください。お待ちしております。
物件アーカイブ 過去に募集された部屋一覧
| 参考賃料 | 32.3万円 〜 33.5万円 |
|---|---|
| ㎡数 | 51.7㎡ |
| 間取り | 1LDK |
| 所在階 | 18階 |
| 物件登録日 | 2026/04/16 |
| 参考賃料 | 43.7万円 〜 45.2万円 |
|---|---|
| ㎡数 | 73.3㎡ |
| 間取り | 2LDK |
| 所在階 | 12階 |
| 物件登録日 | 2026/04/16 |
| 参考賃料 | 32.5万円 〜 33.7万円 |
|---|---|
| ㎡数 | 54.56㎡ |
| 間取り | 1LDK |
| 所在階 | 14階 |
| 物件登録日 | 2026/04/16 |
| 参考賃料 | 30.2万円 〜 31.4万円 |
|---|---|
| ㎡数 | 53.13㎡ |
| 間取り | 1LDK |
| 所在階 | 11階 |
| 物件登録日 | 2026/03/30 |
| 参考賃料 | 30.0万円 〜 31.2万円 |
|---|---|
| ㎡数 | 53.13㎡ |
| 間取り | 1LDK |
| 所在階 | 15階 |
| 物件登録日 | 2026/03/30 |
| 参考賃料 | 47.5万円 〜 49.0万円 |
|---|---|
| ㎡数 | 72.64㎡ |
| 間取り | 2LDK |
| 所在階 | 24階 |
| 物件登録日 | 2026/03/12 |
| 参考賃料 | 42.2万円 〜 43.7万円 |
|---|---|
| ㎡数 | 65.88㎡ |
| 間取り | 2LDK |
| 所在階 | 24階 |
| 物件登録日 | 2026/02/04 |
| 参考賃料 | 23.5万円 〜 24.7万円 |
|---|---|
| ㎡数 | 40.52㎡ |
| 間取り | 1LDK |
| 所在階 | 14階 |
| 物件登録日 | 2026/01/29 |
| 参考賃料 | 18.0万円 〜 19.0万円 |
|---|---|
| ㎡数 | 30.05㎡ |
| 間取り | 1R |
| 所在階 | 15階 |
| 物件登録日 | 2025/12/24 |
| 参考賃料 | 30.8万円 〜 32.0万円 |
|---|---|
| ㎡数 | 53.13㎡ |
| 間取り | 1LDK |
| 所在階 | 11階 |
| 物件登録日 | 2025/12/24 |
| 参考賃料 | 43.4万円 〜 44.9万円 |
|---|---|
| ㎡数 | 73.3㎡ |
| 間取り | 2LDK |
| 所在階 | 11階 |
| 物件登録日 | 2025/12/24 |
| 参考賃料 | 17.8万円 〜 19.0万円 |
|---|---|
| ㎡数 | 30.1㎡ |
| 間取り | 1DK |
| 所在階 | 13階 |
| 物件登録日 | 2025/12/18 |
| 参考賃料 | 25.1万円 〜 26.3万円 |
|---|---|
| ㎡数 | 43.31㎡ |
| 間取り | 1LDK |
| 所在階 | 16階 |
| 物件登録日 | 2025/10/14 |
| 参考賃料 | 15.8万円 〜 17.0万円 |
|---|---|
| ㎡数 | 28.49㎡ |
| 間取り | 1K |
| 所在階 | 18階 |
| 物件登録日 | 2025/09/29 |
| 参考賃料 | 17.0万円 〜 18.2万円 |
|---|---|
| ㎡数 | 30.05㎡ |
| 間取り | 1K |
| 所在階 | 19階 |
| 物件登録日 | 2025/09/26 |
| 参考賃料 | 18.0万円 〜 19.2万円 |
|---|---|
| ㎡数 | 31.96㎡ |
| 間取り | 1K |
| 所在階 | 16階 |
| 物件登録日 | 2025/09/10 |
| 参考賃料 | 16.6万円 〜 17.8万円 |
|---|---|
| ㎡数 | 27.61㎡ |
| 間取り | 1K |
| 所在階 | 17階 |
| 物件登録日 | 2025/09/03 |
| 参考賃料 | 37.0万円 〜 38.5万円 |
|---|---|
| ㎡数 | 62.49㎡ |
| 間取り | 2LDK |
| 所在階 | 12階 |
| 物件登録日 | 2025/08/08 |
| 参考賃料 | 43.5万円 〜 45.0万円 |
|---|---|
| ㎡数 | 75.06㎡ |
| 間取り | 2LDK |
| 所在階 | 16階 |
| 物件登録日 | 2025/07/03 |
| 参考賃料 | 31.6万円 〜 32.8万円 |
|---|---|
| ㎡数 | 53.13㎡ |
| 間取り | 1LDK |
| 所在階 | 13階 |
| 物件登録日 | 2025/07/01 |
| 参考賃料 | 21.2万円 〜 22.2万円 |
|---|---|
| ㎡数 | 36.74㎡ |
| 間取り | 1DK |
| 所在階 | 15階 |
| 物件登録日 | 2025/06/23 |
| 参考賃料 | 19.1万円 〜 20.3万円 |
|---|---|
| ㎡数 | 36.74㎡ |
| 間取り | 1DK |
| 所在階 | 12階 |
| 物件登録日 | 2025/06/20 |
| 参考賃料 | 33.3万円 〜 34.5万円 |
|---|---|
| ㎡数 | 54.49㎡ |
| 間取り | 1LDK |
| 所在階 | 14階 |
| 物件登録日 | 2025/06/17 |
| 参考賃料 | 30.1万円 〜 31.3万円 |
|---|---|
| ㎡数 | 51.7㎡ |
| 間取り | 1LDK |
| 所在階 | 15階 |
| 物件登録日 | 2025/06/17 |
| 参考賃料 | 46.1万円 〜 47.6万円 |
|---|---|
| ㎡数 | 72.64㎡ |
| 間取り | 2LDK |
| 所在階 | 22階 |
| 物件登録日 | 2025/05/27 |
| 参考賃料 | 27.7万円 〜 28.9万円 |
|---|---|
| ㎡数 | 47.92㎡ |
| 間取り | 1LDK |
| 所在階 | 15階 |
| 物件登録日 | 2025/04/30 |
| 参考賃料 | 25.3万円 〜 26.5万円 |
|---|---|
| ㎡数 | 43.31㎡ |
| 間取り | 1LDK |
| 所在階 | 17階 |
| 物件登録日 | 2025/03/25 |
| 参考賃料 | 21.3万円 〜 22.5万円 |
|---|---|
| ㎡数 | 36.74㎡ |
| 間取り | 1DK |
| 所在階 | 13階 |
| 物件登録日 | 2025/03/25 |
| 参考賃料 | 25.6万円 〜 26.8万円 |
|---|---|
| ㎡数 | 43.34㎡ |
| 間取り | 1LDK |
| 所在階 | 18階 |
| 物件登録日 | 2025/03/05 |







































