「赤坂タワーレジデンス Top of the Hillはどんなマンション?」「選ぶべき賃貸物件?」など、赤坂タワーレジデンス Top of the Hill(以下、赤坂タワーレジデンス)の賃貸を検討していませんか?
私たちはこれまで数多くの賃貸物件をご紹介してきましたが、赤坂タワーレジデンスは、特に以下のようなお客様に自信を持っておすすめできる物件です。
- グレードの高いタワーマンションに住みたい
- 利便性の良さを重視している
- 耐震性も重要
- セキュリティが厳重なタワーマンションがいい
- 豪華なラウンジがあって欲しい
- ペットとの暮らしを大切にしたい
このページでは、この結論に至った背景や、知っておいていただきたい注意点を以下の流れで解説していきます。
- 赤坂タワーレジデンス Top of the Hillの6つの特徴
- 赤坂タワーレジデンス Top of the Hillのエントランスや室内イメージ
- 赤坂タワーレジデンス Top of the Hillの交通情報・周辺環境
- その他の特徴や注意点(審査難易度・事故情報など)
この記事を読めば、赤坂タワーレジデンスがどのような物件で、他の賃貸マンションと何が違うのかを深く理解できます。その結果、検討している物件があなたにとって最適な住まいなのか、自信を持って判断できるようになるでしょう。
まずはじめに、赤坂タワーレジデンスで募集されていた部屋は以下のとおりです。新しい順に並んでいますが、詳しい募集時期は「物件登録日」をご覧ください。
弊社の仲介手数料は【無料】または【半額+tax】です。お客様の費用負担を少しでも軽くできるよう、全力でお部屋探しをお手伝いします。
物件アーカイブ 過去に募集された部屋一覧
| 参考賃料 | 76.3万円 〜 77.3万円 |
|---|---|
| ㎡数 | 84.03㎡ |
| 間取り | 2LDK |
| 所在階 | 17階 |
| 物件登録日 | 2026/04/20 |
| 参考賃料 | 82.8万円 〜 83.8万円 |
|---|---|
| ㎡数 | 86.06㎡ |
| 間取り | 2LDK |
| 所在階 | 21階 |
| 物件登録日 | 2026/03/23 |
| 参考賃料 | 82.8万円 〜 83.8万円 |
|---|---|
| ㎡数 | 86.06㎡ |
| 間取り | 2LDK |
| 所在階 | 21階 |
| 物件登録日 | 2026/03/09 |
| 参考賃料 | 58.0万円 〜 60.0万円 |
|---|---|
| ㎡数 | 66.13㎡ |
| 間取り | 1SLDK |
| 所在階 | 17階 |
| 物件登録日 | 2025/12/08 |
| 参考賃料 | 68.0万円 〜 69.0万円 |
|---|---|
| ㎡数 | 84㎡ |
| 間取り | 1LDK |
| 所在階 | 39階 |
| 物件登録日 | 2025/11/05 |
| 参考賃料 | 65.0万円 〜 67.0万円 |
|---|---|
| ㎡数 | 75.70㎡ |
| 間取り | 2LDK |
| 所在階 | 32階 |
| 物件登録日 | 2025/10/22 |
| 参考賃料 | 57.2万円 〜 58.2万円 |
|---|---|
| ㎡数 | 76.72㎡ |
| 間取り | 2LDK |
| 所在階 | 14階 |
| 物件登録日 | 2025/10/15 |
| 参考賃料 | 56.0万円 〜 60.0万円 |
|---|---|
| ㎡数 | 67.23㎡ |
| 間取り | 1SLDK |
| 所在階 | 21階 |
| 物件登録日 | 2025/10/07 |
| 参考賃料 | 49.0万円 〜 50.0万円 |
|---|---|
| ㎡数 | 57.56㎡ |
| 間取り | 1LDK |
| 所在階 | 20階 |
| 物件登録日 | 2025/09/29 |
| 参考賃料 | 68.0万円 〜 69.0万円 |
|---|---|
| ㎡数 | 83.37㎡ |
| 間取り | 1LDK |
| 所在階 | 32階 |
| 物件登録日 | 2025/09/03 |
| 参考賃料 | 115.0万円 〜 116.0万円 |
|---|---|
| ㎡数 | 110.01㎡ |
| 間取り | 2LDK |
| 所在階 | 33階 |
| 物件登録日 | 2025/08/28 |
| 参考賃料 | 57.2万円 〜 58.2万円 |
|---|---|
| ㎡数 | 76.72㎡ |
| 間取り | 2LDK |
| 所在階 | 14階 |
| 物件登録日 | 2025/08/01 |
| 参考賃料 | 56.0万円 〜 62.0万円 |
|---|---|
| ㎡数 | 66.13㎡ |
| 間取り | 1LDK |
| 所在階 | 16階 |
| 物件登録日 | 2025/06/24 |
| 参考賃料 | 35.0万円 〜 36.0万円 |
|---|---|
| ㎡数 | 51.44㎡ |
| 間取り | 1LDK |
| 所在階 | 11階 |
| 物件登録日 | 2025/05/16 |
| 参考賃料 | 65.0万円 〜 66.0万円 |
|---|---|
| ㎡数 | 80.88㎡ |
| 間取り | 2LDK |
| 所在階 | 23階 |
| 物件登録日 | 2025/04/24 |
| 参考賃料 | 140.0万円 〜 141.0万円 |
|---|---|
| ㎡数 | 134.98㎡ |
| 間取り | 3LDK |
| 所在階 | 40階 |
| 物件登録日 | 2025/03/05 |
| 参考賃料 | 73.0万円 〜 74.0万円 |
|---|---|
| ㎡数 | 88.54㎡ |
| 間取り | 1SLDK |
| 所在階 | 30階 |
| 物件登録日 | 2025/03/04 |
| 参考賃料 | 105.0万円 〜 106.0万円 |
|---|---|
| ㎡数 | 112.52㎡ |
| 間取り | 2LDK |
| 所在階 | 41階 |
| 物件登録日 | 2025/02/14 |
| 参考賃料 | 54.0万円 〜 56.0万円 |
|---|---|
| ㎡数 | 84.03㎡ |
| 間取り | 2LDK |
| 所在階 | 17階 |
| 物件登録日 | 2024/11/20 |
| 参考賃料 | 52.0万円 〜 53.0万円 |
|---|---|
| ㎡数 | 71.07㎡ |
| 間取り | 2LDK |
| 所在階 | 6階 |
| 物件登録日 | 2024/11/18 |
| 参考賃料 | 76.0万円 〜 77.0万円 |
|---|---|
| ㎡数 | 95.07㎡ |
| 間取り | 2LDK |
| 所在階 | 29階 |
| 物件登録日 | 2024/10/16 |
| 参考賃料 | 45.0万円 〜 46.0万円 |
|---|---|
| ㎡数 | 66.13㎡ |
| 間取り | 2LDK |
| 所在階 | 14階 |
| 物件登録日 | 2024/09/13 |
| 参考賃料 | 42.0万円 〜 43.8万円 |
|---|---|
| ㎡数 | 58.05㎡ |
| 間取り | 1LDK |
| 所在階 | 27階 |
| 物件登録日 | 2024/09/11 |
| 参考賃料 | 52.0万円 〜 53.0万円 |
|---|---|
| ㎡数 | 71.07㎡ |
| 間取り | 2LDK |
| 所在階 | 6階 |
| 物件登録日 | 2024/09/02 |
| 参考賃料 | 37.0万円 〜 38.0万円 |
|---|---|
| ㎡数 | 50㎡ |
| 間取り | 1LDK |
| 所在階 | 8階 |
| 物件登録日 | 2024/08/30 |
| 参考賃料 | 38.0万円 〜 39.0万円 |
|---|---|
| ㎡数 | 58.05㎡ |
| 間取り | 1LDK |
| 所在階 | 25階 |
| 物件登録日 | 2024/08/27 |
| 参考賃料 | 57.0万円 〜 59.0万円 |
|---|---|
| ㎡数 | 120.25㎡ |
| 間取り | 2LDK |
| 所在階 | 10階 |
| 物件登録日 | 2024/08/26 |
| 参考賃料 | 76.0万円 〜 77.0万円 |
|---|---|
| ㎡数 | 94.30㎡ |
| 間取り | 2LDK |
| 所在階 | 35階 |
| 物件登録日 | 2024/08/23 |
| 参考賃料 | 42.0万円 〜 43.8万円 |
|---|---|
| ㎡数 | 58.05㎡ |
| 間取り | 1LDK |
| 所在階 | 27階 |
| 物件登録日 | 2024/07/19 |
| 参考賃料 | 69.0万円 〜 70.0万円 |
|---|---|
| ㎡数 | 85.50㎡ |
| 間取り | 2LDK |
| 所在階 | 8階 |
| 物件登録日 | 2024/07/17 |
| 参考賃料 | 78.0万円 〜 79.0万円 |
|---|---|
| ㎡数 | 84.31㎡ |
| 間取り | 2LDK |
| 所在階 | 38階 |
| 物件登録日 | 2024/06/25 |
| 参考賃料 | 68.0万円 〜 69.0万円 |
|---|---|
| ㎡数 | 92.72㎡ |
| 間取り | 2LDK |
| 所在階 | 24階 |
| 物件登録日 | 2024/05/27 |
| 参考賃料 | 69.0万円 〜 70.0万円 |
|---|---|
| ㎡数 | 85.5㎡ |
| 間取り | 2LDK |
| 所在階 | 8階 |
| 物件登録日 | 2024/05/08 |
| 参考賃料 | 90.0万円 〜 91.0万円 |
|---|---|
| ㎡数 | 101.59㎡ |
| 間取り | 2LDK |
| 所在階 | 33階 |
| 物件登録日 | 2024/04/26 |
| 参考賃料 | 31.0万円 〜 33.0万円 |
|---|---|
| ㎡数 | 50㎡ |
| 間取り | 1LDK |
| 所在階 | 6階 |
| 物件登録日 | 2024/04/26 |
| 参考賃料 | 31.0万円 〜 33.0万円 |
|---|---|
| ㎡数 | 61.56㎡ |
| 間取り | 1LDK |
| 所在階 | 4階 |
| 物件登録日 | 2024/03/12 |
| 参考賃料 | 33.0万円 〜 34.0万円 |
|---|---|
| ㎡数 | 52.41㎡ |
| 間取り | 1LDK |
| 所在階 | 19階 |
| 物件登録日 | 2024/02/20 |
| 参考賃料 | 36.0万円 〜 38.0万円 |
|---|---|
| ㎡数 | 50.83㎡ |
| 間取り | 1LDK |
| 所在階 | 9階 |
| 物件登録日 | 2024/01/30 |
| 参考賃料 | 80.0万円 〜 81.0万円 |
|---|---|
| ㎡数 | 100.36㎡ |
| 間取り | 2LDK |
| 所在階 | 36階 |
| 物件登録日 | 2024/01/13 |
| 参考賃料 | 58.0万円 〜 59.0万円 |
|---|---|
| ㎡数 | 84.03㎡ |
| 間取り | 2LDK |
| 所在階 | 15階 |
| 物件登録日 | 2023/12/22 |
| 参考賃料 | 80.0万円 〜 81.0万円 |
|---|---|
| ㎡数 | 100.36㎡ |
| 間取り | 2LDK |
| 所在階 | 36階 |
| 物件登録日 | 2023/12/05 |
| 参考賃料 | 58.0万円 〜 59.0万円 |
|---|---|
| ㎡数 | 84.03㎡ |
| 間取り | 2LDK |
| 所在階 | 15階 |
| 物件登録日 | 2023/11/13 |
| 参考賃料 | 31.0万円 〜 32.0万円 |
|---|---|
| ㎡数 | 51.13㎡ |
| 間取り | 1LDK |
| 所在階 | 4階 |
| 物件登録日 | 2023/11/01 |
| 参考賃料 | 43.0万円 〜 45.0万円 |
|---|---|
| ㎡数 | 50.83㎡ |
| 間取り | 1LDK |
| 所在階 | 8階 |
| 物件登録日 | 2023/10/25 |
| 参考賃料 | 34.0万円 〜 35.0万円 |
|---|---|
| ㎡数 | 51.01㎡ |
| 間取り | 1LDK |
| 所在階 | 11階 |
| 物件登録日 | 2023/06/06 |
| 参考賃料 | 60.0万円 〜 61.0万円 |
|---|---|
| ㎡数 | 83.26㎡ |
| 間取り | 3LDK |
| 所在階 | 36階 |
| 物件登録日 | 2023/06/06 |
| 参考賃料 | 37.0万円 〜 38.0万円 |
|---|---|
| ㎡数 | 51.33㎡ |
| 間取り | 1LDK |
| 所在階 | 14階 |
| 物件登録日 | 2023/05/24 |
| 参考賃料 | 98.0万円 〜 99.0万円 |
|---|---|
| ㎡数 | 129.5㎡ |
| 間取り | 3 |
| 所在階 | 8階 |
| 物件登録日 | 2023/04/17 |
| 参考賃料 | 73.0万円 〜 75.0万円 |
|---|---|
| ㎡数 | 90.17㎡ |
| 間取り | 1SLDK |
| 所在階 | 28階 |
| 物件登録日 | 2023/03/15 |
1. 赤坂タワーレジデンス Top of the Hillの6つの特徴
赤坂タワーレジデンスには、以下の特徴があります。
- 港区で最もグレードが高いタワーマンションの1つ
- 7駅6路線を利用できる便利な立地
- 地震に強い「免震構造」で建てられている
- 24時間有人管理の厳重なセキュリティ
- ホテルのような豪華なラウンジが豊富
- 大切なペットと快適に暮らせる
その分、賃料は高めですが、これらに魅力を感じるなら、ぜひ前向きにご検討ください。
1-1. 港区で最もグレードが高いタワーマンションの1つ
港区には数多くの高級マンションがありますが、その中でも赤坂タワーレジデンスは、最もグレードが高いタワーマンションの1つに数えられます。
というのも、後述する利便性の良さだけでなく、耐震性やサービス面においても高いスペックを誇ることから、1部屋の価格が数億円で販売されるほどの高級物件です。
分譲賃貸として貸し出される
赤坂タワーレジデンスは、オーナー様が購入されたお部屋を賃貸として貸し出す、いわゆる分譲賃貸マンションです。
つまり、数億円もする高いグレードの部屋を借りることができるので、人気の部屋は季節を問わず常に早い者勝ちとなります。
ちなみに、過去に募集されたお部屋の賃料を間取りごとにまとめると、以下のようになります。
| 1LDK | 2LDK | 3LDK |
| 27~68万円 | 45~100万円 | 72~133万円 |
1-2. 7駅6路線を利用できる便利な立地
赤坂タワーレジデンスの周辺にある7つの駅からは、下記の6路線を利用することができます。
| 駅名 | 分数 | 路線 |
| 赤坂駅 | 4分 |
|
| 六本木一丁目駅 | 9分 |
|
| 溜池山王駅 | 9分 |
|
| 国会議事堂前駅 | 10分 |
|
| 赤坂見附駅 | 11分 |
|
| 六本木駅 | 13分 |
|
| 乃木坂駅 | 15分 |
|
ご覧の通り、都心部を走る地下鉄が利用できるので、都心内の移動で困ることは少ないと言えます。
首都高の出入り口も近い
近くに首都高の「霞が関IC」と「飯倉IC」があるので、車移動が多い方にも便利な立地です。
マンションの駐車場からわずか5~6分で首都高速道路に乗れるため、下道の渋滞に巻き込まれる心配もありません。
タクシー移動にも便利な立地
赤坂という都心の中心地なので、タクシーを使うときも便利です。
都心の主要エリアからマンションまで、タクシーをご利用いただいた場合の目安時間と料金は以下の通りです。
| エリア | 通常料金(深夜料金) | 時間 |
| 六本木駅 | 580円(660円) | 約10分 |
| 銀座駅 | 1,300円(1,540円) | 約10~20分 |
| 東京駅 | 1,460円(1,780円) | 約10~20分 |
| 渋谷駅 | 1,620円(1,860円) | 約20分 |
| 品川駅 | 2,100円(2,500円) | 約20分 |
| 新宿駅 | 2,260円(2,660円) | 約20分 |
1-3. 地震に強い「制震構造」で建てられている
赤坂タワーレジデンスは、国内大手5社の1つである「竹中工務店」が施工した、地震に強い「制震構造」のタワーマンションです。
制震構造は、建物に組み込まれた「制震装置」が地震のエネルギーを吸収することで、大きな揺れが来た際にも建物の被害を軽減できる仕組みです。
また、タワーマンションに採用される耐震構造は主に3つありますが、中でも制震構造は非常にバランスの取れた構造と言えます。
| 免震構造 | 制震構造 | 耐震構造 | |
| 地震の揺れ | ほぼ感じない | 軽減 | 揺れやすい |
| 建物の被害 | 大幅に軽減 | 軽減 | 受けやすい |
| 家具に被害 | 大幅に軽減 | 軽減 | 受けやすい |
| 強風による揺れ | ゆっくりと長く揺れる | ほぼ感じない | ほぼ感じない |
高層建築物でも広く採用されている
制震構造はタワーマンションだけでなく、高層建築物にも広く採用されている信頼度の高い構造です。
以下は、制震構造を採用している有名な高層建築物です。
| 東京都庁 |
![]() |
| 東京スカイツリー |
![]() |
これらの理由から、「タワーマンションに住みたいけれど、地震が心配」という方にも、積極的にご検討いただきたい物件です。
災害時の備えも充実
赤坂タワーレジデンスは災害時の備えも充実しています。
マンション内には、防災備蓄倉庫や非常用発電設備が備え付けられているので、万が一の災害時に役立ちます。
1-4. 24時間有人管理の厳重なセキュリティ
赤坂タワーレジデンスには24時間体制で警備員が常駐しているため、夜間でも安心して暮らすことができます。
また、エントランスに加え、エレベーターホールにもオートロックを完備。不審者の侵入を二重でブロックするため、女性の一人暮らしや小さなお子様がいるご家庭でも、安心して毎日をお過ごしいただけます。
さらに、エレベーターはお部屋の鍵がないと呼び出せない仕組みです。居住者以外はフロアに上がれないため、セキュリティ面でも安心感が違います。
コンシェルジュによるセキュリティも万全
フロントデスクには専用のコンシェルジュがおりますので、人的なセキュリティも万全を期しています。
なお、毎日「7:30~21:00」の時間帯であれば、下記のコンシェルジュサービスを提供しています。
- クリーニングの取次
- 宅配便の取次
- タクシー・ハイヤーの配車手配
- 来客用駐車場の予約受付
- ハウスメイド・ハウスクリーニング紹介
- 備品貸し出しサービス
- 切手・粗大ゴミ処理券の販売
1-5. ホテルのような豪華なラウンジが豊富
赤坂タワーレジデンスには、高級ホテルさながらの豪華なラウンジが豊富にあります。
まず、最上階の44階には、都心を一望できる「トップラウンジ」があり、併設されたバーカウンターではワインなどのお酒を楽しむことができます。

そして、上記のトップラウンジとは対照的な雰囲気なのが、以下の「ラグジュアリーライブラリー」です。

こちらのラウンジは2階にあるため、マンションを取り囲む緑豊かな景色を眺めながら、優雅な過ごすことができます。
屋上にはスカイテラスもある
屋外の開放的な雰囲気を味わいたいときは、以下のスカイテラスを利用することができます。

地上45階、高さは約160mなので、都心の街並みを一望することができます。
このように数多くのラウンジが用意されているので、友人をマンションに招待するときも喜ばれるでしょう。
豪華なゲストルームもある
最上階にはジャグジーが設けられた豪華なゲストルームもあり、予約が取れれば有料で利用できます。
画像引用元:森リビング
1-6. 大切なペットと快適に暮らせる
赤坂タワーレジデンスでオーナー様がペット飼育を許可しているお部屋では、以下のペットとのご入居が可能です。
- 小型犬
- 猫
- 小動物
なお、マンションの設備としてペット用の足洗い場が用意されているので、散歩帰りなど便利に利用できます。
そして、ペットの種類に関しては貸主や管理組合から承諾をもらう必要がありますので、事前に不動産会社に相談してください。
なお、ペットを飼育する際は、敷金が1ヶ月分積み増しになるケースもありますので、こちらも併せてご確認ください。
動物病院やペットサロンも充実
マンションから歩いて10分の場所に「六本木動物病院」がありますので、ペットの体調が優れないときでも安心です。
また、同じく10分の場所に、ホテルやトリミングのサービスを提供している「赤坂ニッコロ」というお店があるので、旅行や出張のとき便利に利用できます。
その他にも、下記のお店が周辺にありますので、用途に合わせて利用するお店をセレクトしやすいです。
| ショップ | トリミング | ホテル |
| DOG SALON MuRuna | ○ | |
| プレミアキャットホテル&スパ | ○ | ○ |
| GREENDOG | ○ | ○ |
2. 赤坂タワーレジデンス Top of the Hillのエントランスや室内イメージ
赤坂タワーレジデンスの魅力をより具体的にイメージしていただけるよう、室内の様子と共用スペースを以下の4つのカテゴリに分けて写真でご紹介します。
2-1. エントランス
まず、エントランスに繋がるアプローチには、ガードマンが常駐している管理室がありますので、セキュリティ面も万全を期しています。


エントランス内部には、オートロックが導入されているので防犯面で安心してお過ごしいただけます。

2-2. 共用部
赤坂タワーレジデンスの共用部は、高級ホテルのような豪華な内装デザインとなっています。
以下は、ロビーラウンジとしても利用できるエントランスホールです。

エントランスホールを奥へ進むと、2つ目のオートロックが設置されています。

2つ目のオートロックを通過した先に、以下のエレベーターホールがあります。

なお、サブエントランス側にもオートロックがあり、簡易的なラウンジスペースも用意されています。


共用廊下も上品な仕上がり
エレベーターホールから玄関ドアまでは、ホテルライクな内廊下の仕様となっています。

2-3. 室内イメージ
室内は以下のイメージです。(モデルルームですので、実際の内容とは異なる可能性があります。)

画像引用元:森リビング
以下は、家具を配置していない部屋のイメージです。
![]() |
![]() |
![]() |
![]() |
以下は、水回り設備のイメージです。
| 浴室 | 洗面台 | トイレ |
![]() |
![]() |
![]() |
| 画像引用元:at home | ||
室内の素材や雰囲気は、お部屋によって異なります。必ず内見でご確認ください。
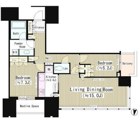
2-4. 間取り
現在募集中の部屋がない場合もございますが、赤坂タワーレジデンスの代表的な部屋の間取りをご紹介します。
1LDK
![]() |
![]() |
| 54.29㎡(16.40坪) | 84.31㎡(25.47坪) |
2LDK
![]() |
![]() |
| 71.07㎡(21.47坪) | 100.36㎡(30.32坪) |
3LDK
![]() |
![]() |
| 102.22㎡(30.88坪) | 130.62㎡(39.46坪) |
| 間取り図引用元:at home | |
3. 赤坂タワーレジデンス Top of the Hillの交通情報・周辺環境
赤坂タワーレジデンスの周辺施設(駅やコンビニなど)をマップにまとめましたので、以下をご覧ください。
引用:Google Map
赤坂という都心の中心地ですので、日常的によく使うお店などがとても充実しています。
3-1. 交通アクセスについて
繰り返しになりますが、赤坂タワーレジデンスは主に以下7つの駅が利用可能です。
| 駅名 | 分数 | 路線 |
| 赤坂駅 | 4分 |
|
| 六本木一丁目駅 | 9分 |
|
| 溜池山王駅 | 9分 |
|
| 国会議事堂前駅 | 10分 |
|
| 赤坂見附駅 | 11分 |
|
| 六本木駅 | 13分 |
|
| 乃木坂駅 | 15分 |
|
合計6路線を使えるので、都心内の移動で不便に感じることは少ないでしょう。
空港へのリムジンバスも便利
羽田空港・成田空港へのアクセスも非常に便利です。
というのも、マンションから歩いて10分の「ザ・キャピタルホテル東急」よりリムジンバスが発着しているので、電車に乗ることなく空港にアクセスできます。
そのため、出張や旅行で飛行機をよく使う人にとっても便利な立地と言えるでしょう。
3-2. 周辺のコンビニやスーパー・薬局について
マンション周辺にコンビニなどが充実していて、日々の生活も便利です。
まず、マンションを出て20秒程の場所にセブンイレブンがあり、スーパーは24時間営業の「吉池」が歩いて3分です。
また、ドラッグストアは歩いて3分の場所にあります。
その他の周辺店舗
マンションから400m(徒歩5分目安)圏内には、以下のように複数のスーパーやコンビニがあります。
|
・コンビニ |
|
|
・スーパー |
|
|
・ドラッグストア |
|
3-3. 飲食店について
赤坂タワーレジデンス周辺は、飲食店も充実しています。
中でも最寄りの赤坂駅周辺には、ミシュランの星を獲得する名店から、一人でも気軽に立ち寄れるお店まで、豊富に揃っています。
また、近隣の六本木周辺まで行けば、以下のような飲食店が数多くあります。
- カフェ
- イタリアンレストラン
- フレンチレストラン
- 和食店
- そば・うどん店
- 寿司屋
- 天ぷら
- ダイニングバー
- 中華料理店
- 焼肉・鉄板焼き
- ファストフード店
これだけ多くのお店を利用できるので、外食の予定で困ることはないと言えるでしょう。
赤坂タワーレジデンス周辺のその他のグルメ情報
その他、以下のようにチェーンの飲食店も周辺にあります。
|
・ファミレス |
|
|
・牛丼・定食など |
|
|
・カフェ |
|
3-4. 学区域や保育園について
赤坂タワーレジデンスの学区域は以下の通りです。(※学区域は変更になる場合があります。最新の情報は、各区教育委員会のウェブサイト等でご確認ください。)
| 小学校 | 中学校 |
| 赤坂小学校 | 赤坂中学校 |
| 徒歩11分 | 徒歩12分 |
学区域の小中学校まで距離があるため、お子さまの通学には不便を感じるかもしれません。
ですので、お子さまがいらっしゃるご家庭は、通学面も含めて検討するようにしましょう。
学校選択制度について
港区の小・中学校では、地域によって入学すべき中学校が「指定校」として定められています。
ただし、「指定校」以外の港区内の小・中学校も希望できる「学校選択制度」をご利用いただくことも可能です。
「指定校」以外に選択できる学校の範囲は以下の通りです。
- 中学校:区内全域の中学校
- 小学校:隣接校(指定校の地域に隣接した学校)※以下参照

保育園について
保育園は歩いて5分の場所に「はなさかす保育園」があるので、入園できれば共働きで忙しいご家庭の負担も減るでしょう。
引用:Google Map
3-5. 周辺の治安について
マンション周辺の治安は良くありません。
以下のマップは、2022年の1年間を通して、犯罪(自転車盗難なども含む)が合計で何件発生したのかを示したものです。
引用:警視庁犯罪情報マップ
赤坂タワーレジデンスの周辺は犯罪が比較的多めのオレンジ色に分類されているので、23区内でも治安が良いとは言えないエリアです。
ですから、女性の一人暮らしやお子さまがいるファミリー層は十分検討するようにしましょう。
ただ、マンションの周辺には複数の交番や警察署があるので、いざという時には心強く、安心感を与えてくれます。
赤坂タワーレジデンスの入り口付近
以下の写真の通り、マンション前には道幅の広い歩道が整備されているので、お子さま連れでも安心です。
引用:Google Map
3-6. 洪水などによる浸水リスクについて
ハザードマップ上、最大規模の氾濫時でも浸水リスクはないとされており、安心してお住まいいただけます。(※ハザードマップは変更されるケースがあります。最新の情報は、各自治体のウェブサイト等でご確認ください。)
4. その他の特徴や注意点(審査難易度・事故情報など)
その他に、ここまでに挙げきれなかった、以下9個の赤坂タワーレジデンスの特徴や注意点を紹介します。
- 駐車場が使える
- 楽器の演奏ができる
- ワインセラーが使える
- 各階で24時間ゴミ出しができる
- 保証会社の利用が必須
- 審査難易度は部屋次第
- 敷金を4ヶ月分求められる部屋もある
- 定期借家契約について
- 事故物件情報は該当なし
4-1. 駐車場が使える
赤坂タワーレジデンスには駐車場が用意されています。
空き状況にもよりますが、平置きと機械式パーキングが利用可能で、大きさに合わせて「月44,000~51,700円(税込)」が賃料の目安です。
駐車場のサイズは以下の通りです。お借りになる際は、車検証でサイズを必ずご確認ください。
- 全長:5,300mm
- 全幅:2,050mm
- 全高:1,550~2,000mm
- 重量:2,300kg
駐輪場とバイク置き場について
赤坂タワーレジデンスには駐輪場とバイク置き場があり、賃料の目安は下記の通りです。
- 駐輪場:330円(税込)/月
- バイク置き場:2,200~4,400円(税込)/月
洗車場も完備
駐車場には洗車できるスペースも完備されており、月に2回まで「200円/2時間」で利用できます。
都心の高級マンションでも洗車場がある物件は少ないので、車好きの人にとっては魅力的な共用設備と言えるでしょう。
4-2. 楽器の演奏ができる
赤坂タワーレジデンスは、オーナー様が楽器演奏を許可しているお部屋に限り、楽器演奏が可能です。
ただし、楽器の種類や演奏時間には規定がございます。後のトラブルを避けるためにも、ご希望の条件での演奏が可能か、ご契約前に必ず確認しましょう。
4-3. ワインセラーが使える
赤坂タワーレジデンスには、ワインセラーが共用設備として用意されています。
なお、月額16,000円で利用できますので、ワイン好きの方にはぴったりのサービスと言えます。
4-4. 各階で24時間ゴミ出しができる
赤坂タワーレジデンスでは、各階にゴミ捨て場が設置されており、24時間365日いつでもゴミを捨てることができます。
粗大ゴミは所定の場所へ持ち出す必要がありますが、日々のゴミ捨てでエレベーターを使わずに済むのは魅力的です。
また、ディスポーザーが付いている部屋であれば、生ゴミの処理も非常に楽です。
4-5. 保証会社の利用が必須
赤坂タワーレジデンスの多くの部屋が保証会社の利用を必須としています。
契約する保証会社は部屋によって異なるため、明確な費用は算出できませんが、初回保証料として総賃料の40~50%が相場となります。
借りる方にとっては追加費用が発生するものの、連帯保証人を用意する手間が省けるというメリットがあります。
4-6. 審査難易度は部屋次第
結論、赤坂タワーレジデンスは分譲マンションのため、オーナー様によって審査の難易度が異なります。
したがって、特定の部屋の審査に落ちた場合でも、別の部屋であれば審査に通る可能性は十分にあります。
また、部屋によっては「法人名義」でないと契約できない部屋もありますので、個人名義での契約を希望する人は、内見前に確認しましょう。
4-7. 敷金を4ヶ月分求められる部屋もある
赤坂タワーレジデンスを借りるとき、敷金を4ヶ月分求められる部屋もあります。
仮に50万円の部屋を借りる場合、敷金だけで200万円もの大金が必要となるので、事前に準備しておきましょう。
また、部屋によっては連帯保証人を求められるケースもありますので、連帯保証人を用意できない人は、内見前に問題ないか確認しましょう。
4-8. 定期借家契約について
赤坂タワーレジデンスでは、「定期借家契約」となるお部屋が多く見られます。
期間限定と言っても、基本的には一般的な更新のように再契約を結ぶことで、継続して住み続けることができます。
ただ、契約期間中に賃料を滞納したりすると、再契約できず退去を求められる可能性もあるので注意しましょう。
また、再契約時には、近隣相場に合わせて賃料が変更になる可能性もあります。
4-9. 事故物件情報は該当なし
事故情報(過去の事件や事故)を「事故物件検索サイト(https://www.oshimaland.co.jp/)」やTwitterなどのSNS、Google検索で調べました。
その結果、赤坂タワーレジデンスが事故物件に該当する情報は見当たりませんでした。
ただし、不動産業者から提示される資料に「告知事項あり」と表記されている場合は、事故やその他のトラブルにつながる事柄がある可能性が高いです。そのため、必ず内容を確認するようにしましょう。
5. まとめ
ここまでをまとめると、赤坂タワーレジデンス Top of the Hillは、「賃料は高いが、それに見合った高いスペックのマンション」です。
これらの特徴を踏まえると、以下に当てはまる方には特におすすめしたい物件です。
- グレードの高いタワーマンションに住みたい
- 利便性の良さを重視している
- 耐震性も重要
- セキュリティが厳重なタワーマンションがいい
- 豪華なラウンジがあって欲しい
- ペットとの暮らしを大切にしたい
改めて、これまでに募集されたお部屋の情報は以下の通りです。 気になるお部屋がありましたら、どうぞお気軽にご連絡ください。お待ちしております。
物件アーカイブ 過去に募集された部屋一覧
| 参考賃料 | 76.3万円 〜 77.3万円 |
|---|---|
| ㎡数 | 84.03㎡ |
| 間取り | 2LDK |
| 所在階 | 17階 |
| 物件登録日 | 2026/04/20 |
| 参考賃料 | 82.8万円 〜 83.8万円 |
|---|---|
| ㎡数 | 86.06㎡ |
| 間取り | 2LDK |
| 所在階 | 21階 |
| 物件登録日 | 2026/03/23 |
| 参考賃料 | 82.8万円 〜 83.8万円 |
|---|---|
| ㎡数 | 86.06㎡ |
| 間取り | 2LDK |
| 所在階 | 21階 |
| 物件登録日 | 2026/03/09 |
| 参考賃料 | 58.0万円 〜 60.0万円 |
|---|---|
| ㎡数 | 66.13㎡ |
| 間取り | 1SLDK |
| 所在階 | 17階 |
| 物件登録日 | 2025/12/08 |
| 参考賃料 | 68.0万円 〜 69.0万円 |
|---|---|
| ㎡数 | 84㎡ |
| 間取り | 1LDK |
| 所在階 | 39階 |
| 物件登録日 | 2025/11/05 |
| 参考賃料 | 65.0万円 〜 67.0万円 |
|---|---|
| ㎡数 | 75.70㎡ |
| 間取り | 2LDK |
| 所在階 | 32階 |
| 物件登録日 | 2025/10/22 |
| 参考賃料 | 57.2万円 〜 58.2万円 |
|---|---|
| ㎡数 | 76.72㎡ |
| 間取り | 2LDK |
| 所在階 | 14階 |
| 物件登録日 | 2025/10/15 |
| 参考賃料 | 56.0万円 〜 60.0万円 |
|---|---|
| ㎡数 | 67.23㎡ |
| 間取り | 1SLDK |
| 所在階 | 21階 |
| 物件登録日 | 2025/10/07 |
| 参考賃料 | 49.0万円 〜 50.0万円 |
|---|---|
| ㎡数 | 57.56㎡ |
| 間取り | 1LDK |
| 所在階 | 20階 |
| 物件登録日 | 2025/09/29 |
| 参考賃料 | 68.0万円 〜 69.0万円 |
|---|---|
| ㎡数 | 83.37㎡ |
| 間取り | 1LDK |
| 所在階 | 32階 |
| 物件登録日 | 2025/09/03 |
| 参考賃料 | 115.0万円 〜 116.0万円 |
|---|---|
| ㎡数 | 110.01㎡ |
| 間取り | 2LDK |
| 所在階 | 33階 |
| 物件登録日 | 2025/08/28 |
| 参考賃料 | 57.2万円 〜 58.2万円 |
|---|---|
| ㎡数 | 76.72㎡ |
| 間取り | 2LDK |
| 所在階 | 14階 |
| 物件登録日 | 2025/08/01 |
| 参考賃料 | 56.0万円 〜 62.0万円 |
|---|---|
| ㎡数 | 66.13㎡ |
| 間取り | 1LDK |
| 所在階 | 16階 |
| 物件登録日 | 2025/06/24 |
| 参考賃料 | 35.0万円 〜 36.0万円 |
|---|---|
| ㎡数 | 51.44㎡ |
| 間取り | 1LDK |
| 所在階 | 11階 |
| 物件登録日 | 2025/05/16 |
| 参考賃料 | 65.0万円 〜 66.0万円 |
|---|---|
| ㎡数 | 80.88㎡ |
| 間取り | 2LDK |
| 所在階 | 23階 |
| 物件登録日 | 2025/04/24 |
| 参考賃料 | 140.0万円 〜 141.0万円 |
|---|---|
| ㎡数 | 134.98㎡ |
| 間取り | 3LDK |
| 所在階 | 40階 |
| 物件登録日 | 2025/03/05 |
| 参考賃料 | 73.0万円 〜 74.0万円 |
|---|---|
| ㎡数 | 88.54㎡ |
| 間取り | 1SLDK |
| 所在階 | 30階 |
| 物件登録日 | 2025/03/04 |
| 参考賃料 | 105.0万円 〜 106.0万円 |
|---|---|
| ㎡数 | 112.52㎡ |
| 間取り | 2LDK |
| 所在階 | 41階 |
| 物件登録日 | 2025/02/14 |
| 参考賃料 | 54.0万円 〜 56.0万円 |
|---|---|
| ㎡数 | 84.03㎡ |
| 間取り | 2LDK |
| 所在階 | 17階 |
| 物件登録日 | 2024/11/20 |
| 参考賃料 | 52.0万円 〜 53.0万円 |
|---|---|
| ㎡数 | 71.07㎡ |
| 間取り | 2LDK |
| 所在階 | 6階 |
| 物件登録日 | 2024/11/18 |
| 参考賃料 | 76.0万円 〜 77.0万円 |
|---|---|
| ㎡数 | 95.07㎡ |
| 間取り | 2LDK |
| 所在階 | 29階 |
| 物件登録日 | 2024/10/16 |
| 参考賃料 | 45.0万円 〜 46.0万円 |
|---|---|
| ㎡数 | 66.13㎡ |
| 間取り | 2LDK |
| 所在階 | 14階 |
| 物件登録日 | 2024/09/13 |
| 参考賃料 | 42.0万円 〜 43.8万円 |
|---|---|
| ㎡数 | 58.05㎡ |
| 間取り | 1LDK |
| 所在階 | 27階 |
| 物件登録日 | 2024/09/11 |
| 参考賃料 | 52.0万円 〜 53.0万円 |
|---|---|
| ㎡数 | 71.07㎡ |
| 間取り | 2LDK |
| 所在階 | 6階 |
| 物件登録日 | 2024/09/02 |
| 参考賃料 | 37.0万円 〜 38.0万円 |
|---|---|
| ㎡数 | 50㎡ |
| 間取り | 1LDK |
| 所在階 | 8階 |
| 物件登録日 | 2024/08/30 |
| 参考賃料 | 38.0万円 〜 39.0万円 |
|---|---|
| ㎡数 | 58.05㎡ |
| 間取り | 1LDK |
| 所在階 | 25階 |
| 物件登録日 | 2024/08/27 |
| 参考賃料 | 57.0万円 〜 59.0万円 |
|---|---|
| ㎡数 | 120.25㎡ |
| 間取り | 2LDK |
| 所在階 | 10階 |
| 物件登録日 | 2024/08/26 |
| 参考賃料 | 76.0万円 〜 77.0万円 |
|---|---|
| ㎡数 | 94.30㎡ |
| 間取り | 2LDK |
| 所在階 | 35階 |
| 物件登録日 | 2024/08/23 |
| 参考賃料 | 42.0万円 〜 43.8万円 |
|---|---|
| ㎡数 | 58.05㎡ |
| 間取り | 1LDK |
| 所在階 | 27階 |
| 物件登録日 | 2024/07/19 |















