カテリーナ三田タワースイート(以下、カテリーナ三田)について下記8つの方法で事故物件(飛び降り、転落、自殺、火災、孤独死、不審死、事件)を徹底的にリサーチしたところ、事故の情報が2件ありました。
- 事故物件検索サイト(https://www.oshimaland.co.jp/)
- Youtube
- Google検索
- マンション掲示板(https://www.e-mansion.co.jp)
- 5ちゃんねる(https://5ch.net)
- その他データベース
事故の詳細は以下の通りとなっています。
| 事故内容 | 時期 | 部屋 |
| 転落死 | 平成20年 | ウエストアーク |
| 自殺 | 平成19年 | イーストアーク20階 |
部屋の号数は不明ですが、直近の事故に関しては入居者に伝える義務がありますから、気になる方は不動産会社の担当者に確認しましょう。
なお、過去に事故などがあったお部屋について、不動産会社や大家さんには次の入居者様へお伝えする義務(告知義務)があります。しかし、その後に一人でも入居者がいた場合は、告知義務の対象外となる点には注意が必要です。
お部屋のことで気になる点があれば、ご遠慮なくご質問ください。お客様が安心して選べるよう、私たちが責任を持ってお調べします。
また、カテリーナ三田で募集されていた部屋は以下のとおりです。新しい順に並んでいますが、詳しい募集時期は「物件登録日」をご覧ください。
上段:ウエストアーク|下段:イーストアーク
物件アーカイブ 過去に募集された部屋一覧
| 参考賃料 | 33.0万円 〜 35.0万円 |
|---|---|
| ㎡数 | 60.56㎡ |
| 間取り | 1LDK |
| 所在階 | 26階 |
| 物件登録日 | 2026/02/08 |
| 参考賃料 | 37.0万円 〜 39.0万円 |
|---|---|
| ㎡数 | 70.32㎡ |
| 間取り | 2LDK |
| 所在階 | 17階 |
| 物件登録日 | 2026/01/26 |
| 参考賃料 | 41.0万円 〜 42.0万円 |
|---|---|
| ㎡数 | 73.96㎡ |
| 間取り | 2LDK |
| 所在階 | 28階 |
| 物件登録日 | 2025/12/03 |
| 参考賃料 | 25.0万円 〜 27.0万円 |
|---|---|
| ㎡数 | 54.17㎡ |
| 間取り | 1LDK |
| 所在階 | 2階 |
| 物件登録日 | 2025/10/05 |
| 参考賃料 | 2.5万円 〜 4.0万円 |
|---|---|
| ㎡数 | 51.1㎡ |
| 間取り | 1LDK |
| 所在階 | 3階 |
| 物件登録日 | 2025/08/07 |
| 参考賃料 | 18.8万円 〜 19.8万円 |
|---|---|
| ㎡数 | 34.58㎡ |
| 間取り | 1K |
| 所在階 | 11階 |
| 物件登録日 | 2025/07/03 |
| 参考賃料 | 35.8万円 〜 37.8万円 |
|---|---|
| ㎡数 | 73.96㎡ |
| 間取り | 2LDK |
| 所在階 | 18階 |
| 物件登録日 | 2025/06/24 |
| 参考賃料 | 15.5万円 〜 17.0万円 |
|---|---|
| ㎡数 | 34.58㎡ |
| 間取り | 1K |
| 所在階 | 5階 |
| 物件登録日 | 2025/05/08 |
| 参考賃料 | 29.5万円 〜 32.0万円 |
|---|---|
| ㎡数 | 60.56㎡ |
| 間取り | 1LDK |
| 所在階 | 7階 |
| 物件登録日 | 2025/04/28 |
| 参考賃料 | 41.0万円 〜 42.0万円 |
|---|---|
| ㎡数 | 68.59㎡ |
| 間取り | 2LDK |
| 所在階 | 8階 |
| 物件登録日 | 2025/03/31 |
| 参考賃料 | 43.0万円 〜 45.0万円 |
|---|---|
| ㎡数 | 73.96㎡ |
| 間取り | 2LDK |
| 所在階 | 27階 |
| 物件登録日 | 2024/11/25 |
| 参考賃料 | 16.0万円 〜 17.5万円 |
|---|---|
| ㎡数 | 33.03㎡ |
| 間取り | 1R |
| 所在階 | 8階 |
| 物件登録日 | 2024/11/21 |
| 参考賃料 | 43.0万円 〜 45.0万円 |
|---|---|
| ㎡数 | 73.96㎡ |
| 間取り | 2LDK |
| 所在階 | 27階 |
| 物件登録日 | 2024/10/29 |
| 参考賃料 | 38.0万円 〜 40.0万円 |
|---|---|
| ㎡数 | 68.59㎡ |
| 間取り | 2LDK |
| 所在階 | 8階 |
| 物件登録日 | 2024/10/16 |
| 参考賃料 | 28.5万円 〜 30.0万円 |
|---|---|
| ㎡数 | 68.59㎡ |
| 間取り | 2LDK |
| 所在階 | 5階 |
| 物件登録日 | 2024/10/08 |
| 参考賃料 | 25.5万円 〜 27.5万円 |
|---|---|
| ㎡数 | 55.82㎡ |
| 間取り | 1LDK |
| 所在階 | 14階 |
| 物件登録日 | 2024/05/12 |
| 参考賃料 | 27.5万円 〜 29.5万円 |
|---|---|
| ㎡数 | 60.56㎡ |
| 間取り | 1LDK |
| 所在階 | 26階 |
| 物件登録日 | 2024/02/13 |
| 参考賃料 | 27.5万円 〜 29.5万円 |
|---|---|
| ㎡数 | 60.56㎡ |
| 間取り | 2LDK |
| 所在階 | 26階 |
| 物件登録日 | 2024/01/07 |
| 参考賃料 | 16.0万円 〜 17.0万円 |
|---|---|
| ㎡数 | 34.05㎡ |
| 間取り | 1K |
| 所在階 | 9階 |
| 物件登録日 | 2023/11/07 |
| 参考賃料 | 45.0万円 〜 46.0万円 |
|---|---|
| ㎡数 | 76.93㎡ |
| 間取り | 3LDK |
| 所在階 | 25階 |
| 物件登録日 | 2023/08/09 |
| 参考賃料 | 15.0万円 〜 16.0万円 |
|---|---|
| ㎡数 | 34.58㎡ |
| 間取り | 1K |
| 所在階 | 6階 |
| 物件登録日 | 2023/06/02 |
| 参考賃料 | 35.0万円 〜 37.0万円 |
|---|---|
| ㎡数 | 77.3㎡ |
| 間取り | 2SLDK |
| 所在階 | 12階 |
| 物件登録日 | 2023/05/23 |
| 参考賃料 | 16.0万円 〜 17.0万円 |
|---|---|
| ㎡数 | 34.05㎡ |
| 間取り | 1R |
| 所在階 | 9階 |
| 物件登録日 | 2023/02/07 |
| 参考賃料 | 40.0万円 〜 41.0万円 |
|---|---|
| ㎡数 | 73.96㎡ |
| 間取り | 2LDK |
| 所在階 | 27階 |
| 物件登録日 | 2022/11/22 |
| 参考賃料 | 23.0万円 〜 24.5万円 |
|---|---|
| ㎡数 | 54.17㎡ |
| 間取り | 1LDK |
| 所在階 | 7階 |
| 物件登録日 | 2022/09/27 |
| 参考賃料 | 15.8万円 〜 16.8万円 |
|---|---|
| ㎡数 | 33.03㎡ |
| 間取り | 1R |
| 所在階 | 8階 |
| 物件登録日 | 2022/09/26 |
| 参考賃料 | 24.5万円 〜 26.5万円 |
|---|---|
| ㎡数 | 55.82㎡ |
| 間取り | 1LDK |
| 所在階 | 14階 |
| 物件登録日 | 2022/07/27 |
| 参考賃料 | 35.0万円 〜 36.0万円 |
|---|---|
| ㎡数 | 68.59㎡ |
| 間取り | 2LDK |
| 所在階 | 24階 |
| 物件登録日 | 2022/07/25 |
| 参考賃料 | 33.0万円 〜 34.0万円 |
|---|---|
| ㎡数 | 68.59㎡ |
| 間取り | 2LDK |
| 所在階 | 20階 |
| 物件登録日 | 2022/06/14 |
| 参考賃料 | 25.0万円 〜 27.0万円 |
|---|---|
| ㎡数 | 55.82㎡ |
| 間取り | 1LDK |
| 所在階 | 21階 |
| 物件登録日 | 2022/03/08 |
| 参考賃料 | 14.0万円 〜 15.5万円 |
|---|---|
| ㎡数 | 34.58㎡ |
| 間取り | 1K |
| 所在階 | 5階 |
| 物件登録日 | 2022/01/20 |
| 参考賃料 | 41.0万円 〜 42.0万円 |
|---|---|
| ㎡数 | 84.43㎡ |
| 間取り | 3LDK |
| 所在階 | 15階 |
| 物件登録日 | 2022/01/19 |
| 参考賃料 | 32.0万円 〜 34.0万円 |
|---|---|
| ㎡数 | 68.59㎡ |
| 間取り | 2LDK |
| 所在階 | 20階 |
| 物件登録日 | 2022/01/19 |
| 参考賃料 | 15.4万円 〜 16.4万円 |
|---|---|
| ㎡数 | 33.03㎡ |
| 間取り | 1R |
| 所在階 | 10階 |
| 物件登録日 | 2022/01/19 |
| 参考賃料 | 26.5万円 〜 27.5万円 |
|---|---|
| ㎡数 | 60.56㎡ |
| 間取り | 1LDK |
| 所在階 | 24階 |
| 物件登録日 | 2022/01/19 |
| 参考賃料 | 26.4万円 〜 27.9万円 |
|---|---|
| ㎡数 | 60.56㎡ |
| 間取り | 1LDK |
| 所在階 | 3階 |
| 物件登録日 | 2022/01/19 |
物件アーカイブ 過去に募集された部屋一覧
| 参考賃料 | 26.5万円 〜 28.0万円 |
|---|---|
| ㎡数 | 47.02㎡ |
| 間取り | 1LDK |
| 所在階 | 10階 |
| 物件登録日 | 2026/01/17 |
| 参考賃料 | 60.0万円 〜 61.0万円 |
|---|---|
| ㎡数 | 94.74㎡ |
| 間取り | 2LDK |
| 所在階 | 17階 |
| 物件登録日 | 2025/12/11 |
| 参考賃料 | 37.8万円 〜 39.8万円 |
|---|---|
| ㎡数 | 77.92㎡ |
| 間取り | 2LDK |
| 所在階 | 5階 |
| 物件登録日 | 2025/04/23 |
| 参考賃料 | 42.0万円 〜 44.0万円 |
|---|---|
| ㎡数 | 84.62㎡ |
| 間取り | 2LDK |
| 所在階 | 13階 |
| 物件登録日 | 2025/03/18 |
| 参考賃料 | 36.0万円 〜 38.0万円 |
|---|---|
| ㎡数 | 77.92㎡ |
| 間取り | 2LDK |
| 所在階 | 3階 |
| 物件登録日 | 2025/03/18 |
| 参考賃料 | 26.5万円 〜 27.5万円 |
|---|---|
| ㎡数 | 53.1㎡ |
| 間取り | 1LDK |
| 所在階 | 17階 |
| 物件登録日 | 2025/02/19 |
| 参考賃料 | 26.5万円 〜 27.5万円 |
|---|---|
| ㎡数 | 53.1㎡ |
| 間取り | 1LDK |
| 所在階 | 17階 |
| 物件登録日 | 2025/02/04 |
| 参考賃料 | 36.0万円 〜 38.5万円 |
|---|---|
| ㎡数 | 77.92㎡ |
| 間取り | 2LDK |
| 所在階 | 10階 |
| 物件登録日 | 2024/12/16 |
| 参考賃料 | 17.0万円 〜 18.0万円 |
|---|---|
| ㎡数 | 35.44㎡ |
| 間取り | 1LDK |
| 所在階 | 10階 |
| 物件登録日 | 2024/09/13 |
| 参考賃料 | 16.5万円 〜 17.5万円 |
|---|---|
| ㎡数 | 35.44㎡ |
| 間取り | 1LDK |
| 所在階 | 9階 |
| 物件登録日 | 2024/09/05 |
| 参考賃料 | 35.8万円 〜 37.8万円 |
|---|---|
| ㎡数 | 77.92㎡ |
| 間取り | 3LDK |
| 所在階 | 5階 |
| 物件登録日 | 2024/05/13 |
| 参考賃料 | 35.0万円 〜 37.0万円 |
|---|---|
| ㎡数 | 77.92㎡ |
| 間取り | 2SLDK |
| 所在階 | 10階 |
| 物件登録日 | 2024/05/09 |
| 参考賃料 | 23.0万円 〜 25.0万円 |
|---|---|
| ㎡数 | 49.49㎡ |
| 間取り | 1K |
| 所在階 | 2階 |
| 物件登録日 | 2024/04/26 |
| 参考賃料 | 25.5万円 〜 26.5万円 |
|---|---|
| ㎡数 | 52.19㎡ |
| 間取り | 1LDK |
| 所在階 | 6階 |
| 物件登録日 | 2023/11/27 |
| 参考賃料 | 18.0万円 〜 19.0万円 |
|---|---|
| ㎡数 | 44.37㎡ |
| 間取り | 1LDK |
| 所在階 | 11階 |
| 物件登録日 | 2023/11/07 |
| 参考賃料 | 23.5万円 〜 25.5万円 |
|---|---|
| ㎡数 | 47.02㎡ |
| 間取り | 1LDK |
| 所在階 | 5階 |
| 物件登録日 | 2023/10/24 |
| 参考賃料 | 23.5万円 〜 25.5万円 |
|---|---|
| ㎡数 | 47.02㎡ |
| 間取り | 1LDK |
| 所在階 | 5階 |
| 物件登録日 | 2023/10/06 |
| 参考賃料 | 22.2万円 〜 23.2万円 |
|---|---|
| ㎡数 | 44.37㎡ |
| 間取り | 1LDK |
| 所在階 | 10階 |
| 物件登録日 | 2023/07/21 |
| 参考賃料 | 32.0万円 〜 34.0万円 |
|---|---|
| ㎡数 | 84.62㎡ |
| 間取り | 2LDK |
| 所在階 | 12階 |
| 物件登録日 | 2023/04/21 |
| 参考賃料 | 26.0万円 〜 28.0万円 |
|---|---|
| ㎡数 | 53.10㎡ |
| 間取り | 1SLDK |
| 所在階 | 26階 |
| 物件登録日 | 2023/02/08 |
| 参考賃料 | 36.0万円 〜 37.0万円 |
|---|---|
| ㎡数 | 77.92㎡ |
| 間取り | 2LDK |
| 所在階 | 6階 |
| 物件登録日 | 2023/01/31 |
| 参考賃料 | 33.8万円 〜 35.8万円 |
|---|---|
| ㎡数 | 77.92㎡ |
| 間取り | 2SLDK |
| 所在階 | 5階 |
| 物件登録日 | 2022/12/27 |
| 参考賃料 | 21.9万円 〜 23.9万円 |
|---|---|
| ㎡数 | 53.10㎡ |
| 間取り | 1LDK |
| 所在階 | 5階 |
| 物件登録日 | 2022/10/07 |
| 参考賃料 | 32.0万円 〜 34.0万円 |
|---|---|
| ㎡数 | 84.62㎡ |
| 間取り | 2LDK |
| 所在階 | 13階 |
| 物件登録日 | 2022/08/10 |
| 参考賃料 | 26.5万円 〜 29.0万円 |
|---|---|
| ㎡数 | 64.45㎡ |
| 間取り | 2LDK |
| 所在階 | 5階 |
| 物件登録日 | 2022/06/21 |
| 参考賃料 | 29.8万円 〜 31.8万円 |
|---|---|
| ㎡数 | 77.92㎡ |
| 間取り | 2LDK |
| 所在階 | 3階 |
| 物件登録日 | 2022/06/14 |
| 参考賃料 | 25.0万円 〜 26.0万円 |
|---|---|
| ㎡数 | 52.19㎡ |
| 間取り | 1LDK |
| 所在階 | 6階 |
| 物件登録日 | 2022/05/23 |
| 参考賃料 | 29.5万円 〜 32.5万円 |
|---|---|
| ㎡数 | 77.92㎡ |
| 間取り | 2SLDK |
| 所在階 | 11階 |
| 物件登録日 | 2022/04/07 |
| 参考賃料 | 14.3万円 〜 15.3万円 |
|---|---|
| ㎡数 | 34.05㎡ |
| 間取り | 1K |
| 所在階 | 2階 |
| 物件登録日 | 2022/01/20 |
| 参考賃料 | 24.0万円 〜 25.0万円 |
|---|---|
| ㎡数 | 54.17㎡ |
| 間取り | 1LDK |
| 所在階 | 4階 |
| 物件登録日 | 2022/01/19 |
| 参考賃料 | 15.5万円 〜 16.5万円 |
|---|---|
| ㎡数 | 35.44㎡ |
| 間取り | 1LDK |
| 所在階 | 2階 |
| 物件登録日 | 2022/01/19 |
弊社の仲介手数料は【無料】または【半額+tax】です。お客様の費用負担を少しでも軽くできるよう、全力でお部屋探しをお手伝いします。
また、事故情報以外に「カテリーナ三田」についてよくあるご質問をまとめました。
カテリーナ三田について、事故物件以外でよくある質問と回答
カテリーナ三田について、よくあるご質問をまとめました。
マンションの設備について
- Q1. 駐車場は用意されていますか?
- Q2. 楽器の演奏はできますか?
- Q3. ペットを飼育することはできますか?
- Q4. セキュリティ面はどうですか?
- Q5. コンシェルジュはいますか?何をしてくれますか?
周辺の環境に関して
- Q6. 周辺の治安は良いですか?
- Q7. 電車などの交通アクセスはどのようなものがありますか?
- Q8. 周辺にコンビニやスーパーはありますか?
- Q9. 周辺にどんな飲食店がありますか?
- Q10. 学区域の小・中学校はどちらですか?
- Q11. 周辺に保育園はありますか?
災害リスクについて
契約について
Q1. 駐車場は用意されていますか?
はい、カテリーナ三田には駐車場が用意されています。
空き状況にもよりますが、平置きと機械式パーキングが利用可能で、大きさに合わせて「38,500~46,200円(税込)/月」が賃料の目安です。
なお、機械式パーキングのサイズは下記の通りなので、駐車場を借りるときは車検証でサイズを確認しましょう。
- 全長:5,000~5,300mm
- 全幅:1,850~1,900mm
- 全高:1,550~2,100mm
- 重量:2,000~2,500kg
駐輪場とバイク置き場について
カテリーナ三田には駐輪場とバイク置き場があり、賃料の目安は下記の通りです。
- 駐輪場:220~440円(税込)/月
- バイク置き場:3,300円(税込)/月
Q2. 楽器の演奏はできますか?
はい、カテリーナ三田は、オーナー様が楽器演奏を許可しているお部屋に限り、楽器演奏が可能です。
ただし、楽器の種類や演奏時間には規定がございます。後のトラブルを避けるためにも、ご希望の条件での演奏が可能か、ご契約前に必ず確認しましょう。
Q3. ペットを飼育することはできますか?
はい、カテリーナ三田の部屋によっては、下記のペットを合計2匹まで飼うことができます。
- 小型犬
- 猫
- 体長:50cm程度
- 体重:10kg程度
ペットの大きさや種類に関しては、貸主や管理組合から承諾をもらう必要がありますので、事前に相談しましょう。
また、ペットを飼うときは敷金が1ヶ月分積み増しになるケースも多いので、こちらも併せて確認してください。
動物病院やペットサロンも充実
マンションから歩いて5分の場所に「ONEどうぶつ整形外科センター東京」がありますので、ペットの体調が優れないときでも安心です。
また、歩いて6分の場所に、ホテルやトリミングのサービスを提供している「Shampoo」というお店があるので、旅行や出張のとき便利に利用できます。
その他にも、下記のお店が周辺にありますので、好みに合わせて利用するお店をセレクトしやすいです。
| ショップ | トリミング | ホテル |
| トゥルーカラーズ | ○ | ○ |
| ハルとマナ | ○ | ○ |
| ビスケット | ○ | ○ |
| テリアス | ○ | ○ |
Q4. セキュリティ面はどうですか?
カテリーナ三田には、管理員が24時間常駐し、住まう方々の日々を見守ります。『いざという時』の迅速な対応はもちろん、防犯面でも頼れる存在がいる暮らしは、何物にも代えがたい安心感につながります。
また、エントランスとエレベーターホール前の2箇所にオートロックが設置されているので、一般的なマンションより厳重なセキュリティ体制となっています。
さらに、警備会社による24時間オンライン警備も採用しているので、機械的なセキュリティも整っています。
Q5. コンシェルジュはいますか?何をしてくれますか?
はい、フロントデスクには専用のコンシェルジュがいます。
また、下記のコンシェルジュサービスを24時間体制で提供しているので、ホテルのような住み心地を味わえます。
- レセプションサービス
- インフォメーションサービス
- 共用施設予約受付
- タクシー・ハイヤー手配
- クリーニング取次サービス
- メッセージ預かり
- 荷物一時預かり
- コピー・FAXサービス
- フロントショップ
- 電球交換サービス
Q6. 周辺の治安は良いですか?
はい、マンション周辺の治安は良いです。
以下のマップは、2022年の1年間を通して、犯罪(自転車盗難なども含む)が合計で何件発生したのかを示したものです。
引用:警視庁犯罪情報マップ
カテリーナ三田の周辺は犯罪が比較的少ない薄いオレンジ色に分類されていて、23区内の中でも治安は良いエリアと言えます。
しかし、田町駅前には夜のお店や居酒屋なども多いので、マンション周辺に比べるとやや犯罪件数は増えます。
ですから、女性の一人暮らしやお子さまがいるファミリー層は注意しましょう。
ただ、マンションの周辺には複数の交番や警察署があるので、いざという時には心強く、安心感を与えてくれます。
Q7. 電車などの交通アクセスはどのようなものがありますか?
カテリーナ三田周辺の主要な交通アクセスを以下の移動手段に分けて紹介します。
1.電車
カテリーナ三田の周辺にある4つの駅からは、下記の5路線を利用することができます。
| 駅名 | 分数 | 路線 |
|
三田駅 |
2分 |
|
|
田町駅 |
5分 |
|
|
芝公園駅 |
10分 |
|
|
日の出駅 |
13分 |
|
上記の通り、都心の中心地を走る地下鉄やJR線を利用できるので、都心内の移動で不便に感じることは少ない立地と言えるでしょう。
また、三田駅から浅草線を使えば「羽田空港」まで乗り換えなし20分なので、出張や旅行が多い人にも便利です。
2.バス
マンションから歩いて9分の「ホテル ザ セレスティン東京芝」からリムジンバスが発着しているので、電車に乗ることなく空港にアクセスできます。
3.タクシー・車
「三田駅」に近い立地ですので、タクシーを使うときも便利です。
下記は、都心の主要エリアからマンションまで、タクシーを利用したときの料金と時間の目安です。
| エリア | 通常料金(深夜料金) | 時間 |
| 品川駅 | 1,140円(1,380円) | 約10分 |
| 六本木駅 | 1,220円(1,460円) | 約10分 |
| 銀座駅 | 1,380円(1,620円) | 約10~20分 |
| 東京駅 | 1,940円(2,340円) | 約20分 |
| 渋谷駅 | 2,260円(2,740円) | 約20分 |
| 新宿駅 | 3,220円(3,860円) | 約30分 |
また、近くに首都高の「芝公園IC」があるので、車移動が多い方にも便利な立地です。
マンションの駐車場からわずか5~6分で首都高速道路に乗れるため、下道の渋滞に巻き込まれる心配もありません。
Q8. 周辺にコンビニやスーパーはありますか?
はい、徒歩圏内にコンビニやスーパーが充実しており、日々の買い物が大変便利な立地です。(詳細は下図参照)
引用:Google Map
まず、コンビニは徒歩2分圏内(約160m)に以下の2店舗がございます。
- セブンイレブン
- ファミリーマート
そして、スーパーはマンションの1階に「マルエツプチ」があるので、生鮮食品の買い物が便利です。
この他にも、徒歩3分の場所には「まいばすけっと」もございます。
薬局・ドラッグストアも徒歩圏内
マンションから徒歩8分圏内(約640m)には、以下の調剤薬局やドラッグストアが揃っているので、薬の買い物も便利です。
- 三田薬局(約140m、徒歩2分)
- アイン薬局(約200m、徒歩3分)
- ドラッグセイムス(約300m、徒歩4分)
- H&B薬・化粧品雑貨 三田ひふみ(約300m、徒歩4分)
- 田町芝浦ファミリー薬局(約400m、徒歩5分)
- マツモトキヨシ(約500m、徒歩6分)
- QOLサポートクオール薬局(約400m、徒歩6分)
- いるか薬局(約400m、徒歩6分)
- ミネドラッグ(約450m、徒歩6分)
- 田町駅前薬局(約500m、徒歩6分)
- ドラッグストアスマイル(約550m、徒歩7分)
- ココカラファイン(約600m、徒歩8分)
Q9. 周辺にどんな飲食店がありますか?
マンション周辺には、以下のような飲食店が揃っています。
- カフェ
- イタリアンレストラン
- フレンチレストラン
- 中華料理店
- 韓国料理店
- 多国籍料理店
- 和食店
- そば・うどん店
- 寿司屋
- 天ぷら
- ダイニングバー
- 焼肉・鉄板焼き
- ファストフード店
この他、タクシーで8分ほどの場所にある「麻布十番」には、ミシュランの星を獲得する名店から隠れ家的なお店まで豊富に揃っているので、グルメな方もきっと満足できるでしょう。
また、マンション周辺には、以下のようにチェーンの飲食店もあります。
|
・ファミレス |
|
|
軽飲食 |
|
|
・カフェ |
|
Q10. 学区域の小・中学校はどちらですか?
カテリーナ三田の学区域は以下の通りです。(※学区域は変更になる場合があります。最新の情報は、各区教育委員会のウェブサイト等でご確認ください。)
| 小学校 | 中学校 |
| 芝小学校 | 三田中学校 |
| 徒歩6分 | 徒歩13分 |
学区域の中学校まで距離があるため、お子さまの通学には不便を感じるかもしれません。
そのため、お子さまがいらっしゃるご家庭は、通学面も考慮に入れてご検討ください。
学校選択制度について
港区の小・中学校では、地域によって入学すべき中学校が「指定校」として定められています。
ただし、「指定校」以外の港区内の小・中学校も希望できる「学校選択制度」をご利用いただくことも可能です。
「指定校」以外に選択できる学校の範囲は以下の通りです。
- 中学校:区内全域の中学校
- 小学校:隣接校(指定校の地域に隣接した学校)※以下参照

Q11. 周辺に保育園はありますか?
はい、保育園はマンション内に「プチ・ナーサリー田町」があるので、入園できれば共働きで忙しいご家庭の負担も減るでしょう。
この他にも周辺には複数の保育園があるため、お子さまの預け先を比較的検討しやすいエリアと言えるでしょう。
引用:Google Map
Q12. マンションは地震に強い構造ですか?
はい、カテリーナ三田は、共に国内大手5社である「大林組」と「清水建設」が施工した、地震に強いタワーマンションです。
中でもウエストアークは「制震構造」を採用しているので、大きな地震でも建物の被害を軽減することができます。
また、タワーマンションに採用される耐震構造は主に3つありますが、中でも制震構造は非常にバランスの取れた構造と言えます。
| 免震構造 | 制震構造 | 耐震構造 | |
| 地震の揺れ | ほぼ感じない | 軽減 | 揺れやすい |
| 建物の被害 | 大幅に軽減 | 軽減 | 受けやすい |
| 家具に被害 | 大幅に軽減 | 軽減 | 転倒や移動 |
| 強風による揺れ | ゆっくりと長く揺れる | ほぼ感じない | ほぼ感じない |
高層建築物でも広く採用されている
制震構造はタワーマンションだけでなく、高層建築物にも広く採用されている信頼度の高い構造です。
以下は、制震構造を採用している有名な高層建築物です。
| 東京都庁 |
![]() |
| 東京スカイツリー |
![]() |
これらの理由から、「タワーマンションに住みたいけれど、地震が心配」という方にも、積極的にご検討いただきたい物件です。
Q13. 洪水などによる浸水のリスクはありますか?
はい、浸水リスクを調べたところ、最大規模の氾濫が起きた場合、マンションのあるエリアは「0.5m~3.0m未満」の浸水が予測されています。
万が一、周辺の河川で氾濫が起こった場合は、最大でマンションの2階まで浸水する可能性がありますので、浸水リスクも含めて検討するようにしましょう。
Q14. 保証会社の利用は必須ですか?
はい、カテリーナ三田の多くの部屋が保証会社の利用を必須としています。
契約する保証会社は部屋によって異なるため、明確な費用は算出できませんが、初回保証料として総賃料の40~50%が相場となります。
借りる方にとっては追加費用が発生するものの、連帯保証人を用意する手間が省けるというメリットがあります。
Q15. 審査難易度はどのようになっていますか?
結論、カテリーナ三田は分譲マンションのため、オーナー様によって審査の難易度が異なります。
したがって、特定の部屋の審査に落ちた場合でも、別の部屋であれば審査に通る可能性は十分にあります。
もし他にも気になるお部屋がある場合は、改めて申し込みが可能かどうか、不動産会社にご確認ください。
よくある質問とその回答は以上です。
ここから、マンションをよりイメージした上で契約したい方のために、画像でマンション内の内装や設備を紹介します。
豊富な画像でわかる!カテリーナ三田のエントランス・室内イメージ
カテリーナ三田の室内や共用スペースはどうなっているのか、契約前により具体的にイメージいただくために、以下の3つに分けて画像で紹介します。
① エントランス
カテリーナ三田のエントランスは、高級感ある上品な佇まいです。

エントランス内部には、以下の写真のようにオートロックが導入されているので、防犯面で安心して過ごすことができます。

オートロックを通過すると、二層吹き抜けの豪華なグランドエントランスが用意されています。



エスカレーターで2階に上がると、コンシェルジュが常駐しているフロントデスクが用意されています。

なお、フロントデスクの近くには、お待ち合わせなどにご活用いただけるラグジュアリーラウンジがございます。
画像引用元:カテリーナ三田公式
さらに奥に進むとエレベーターが用意されております。(以下の写真は、住居階のエレベーターとなっています。)

ちなみに、タワーマンションのエレベーターは「50戸に対して1基」が理想とされています。
カテリーナ三田は「752戸に対して8基(非常用も含む)」ということから、時間帯によっては混雑する場合があります。
ただし、お住まいの棟によってご利用なるエレベーターが異なるので、満員で乗れないということはないでしょう。
- ウエストアーク・・・5基(常用4基・人荷兼非常用1基)
- イーストアーク・・・3基(常用2基・人荷兼非常用1基)
共用廊下も上品な空間
エレベーターを降りた先から玄関までは、ホテルライクな内廊下の仕様となっています。

画像引用元:HOME’S
②. 共用部
カテリーナ三田はマンション内の共用施設も豊富に用意されています。
この章では、下記の共用施設の概要と利用料金などを詳しくご紹介いたします。
ゲストルーム
イーストアークとウエストアークには、ツインベッドが用意されたゲストルームがございます。
- イーストアークスイート・・・29階
- ウエストアークスイート・・・26階
| イーストアークスイート |
![]() |
| ウエストアークスイート |
![]() |
スカイビューラウンジ
ウエストアークの26階には、レインボーブリッジなどを一望できるスカイビューラウンジが用意されています。
![]() |
![]() |
![]() |
| ・利用時間 |
|
| ・利用料金 |
|
| ・その他 |
|
シティビューラウンジ
イーストアークの26階には、東京タワーなどを一望できるシティービューラウンジがございます。
![]() |
![]() |
| ・利用時間 |
|
| ・利用料金 |
|
| ・その他 |
|
| 画像引用元:カテリーナ三田公式 | |
スカイガーデン
ウエストアークの26階には、都心の風景を一望できるスカイガーデンが用意されています。
ミーティングルーム
マンションには、打ち合わせなどにご利用いただけるミーティングルームが2室用意されています。

なお、仕切りを外し、大型のミーティングルームとしてご利用いただくことも可能です。
| ・利用時間 |
|
| ・利用料金 |
|
| 画像引用元:HOME’S | |
ライブラリーラウンジ
マンション内には、絵本などが揃ったライブラリーラウンジがございます。

以下の写真のように、作業スペースも充実しています。

| ・利用時間 |
|
オーナーズスタジオ
マンション内には、間仕切りが施されたオーナーズスタジオ(作業スペース)が用意されています。

| ・利用時間 |
|
キッズルーム
マンション内には、雨の日でもお子さまを遊ばせることのできるキッズルームがございます。

ジョイスタジオ
マンション内には、大型のディスプレイやアップライトピアノが揃ったジョイスタジオがございます。
楽器の練習や、ビデオ鑑賞スペースとしてご利用いただけます。
画像引用元:カテリーナ三田公式
③. 室内イメージ
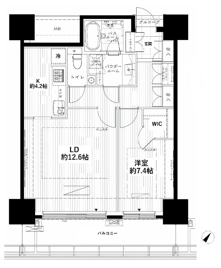
ウエストアークの室内は以下のイメージです。(過去に募集されていた部屋なので、実際の内容とは異なる可能性があります。)
![]() |
![]() |
![]() |
![]() |
![]() |
![]() |
![]() |
![]() |
![]() |
![]() |
![]() |
![]() |
![]() |
![]() |
![]() |
![]() |
![]() |
![]() |
イーストアークの室内は以下のイメージです。(過去に募集されていた部屋なので、実際の内容とは異なる可能性があります。)
![]() |
![]() |
![]() |
![]() |
![]() |
![]() |
![]() |
![]() |
![]() |
![]() |
キッチンや洗面台などの水回りは、以下のような造りとなっています。
| キッチン | |
![]() |
![]() |
![]() |
![]() |
| 洗面台 | |
![]() |
|
![]() |
![]() |
| 浴室 | |
![]() |
![]() |
| トイレ | |
![]() |
![]() |
| 画像引用元:HOME’S | |
室内の素材や雰囲気は、お部屋によって異なります。必ず内見でご確認ください。
まとめ
カテリーナ三田について、事故物件を徹底的にリサーチした結果、事故の情報が2件ありました。
| 事故内容 | 時期 | 部屋 |
| 転落死 | 平成20年 | ウエストアーク |
| 自殺 | 平成19年 | イーストアーク20階 |
弊社は、お客様がご心配であれば、過去の事故の有無や詳細について、契約前に貸主に確認させていただきますので、お気軽にお申し付けください。
改めて、現在募集されている部屋、過去に募集された部屋は以下の通りです。気になる部屋があれば、ご連絡をお待ちしています。
上段:ウエストアーク|下段:イーストアーク
物件アーカイブ 過去に募集された部屋一覧
| 参考賃料 | 33.0万円 〜 35.0万円 |
|---|---|
| ㎡数 | 60.56㎡ |
| 間取り | 1LDK |
| 所在階 | 26階 |
| 物件登録日 | 2026/02/08 |
| 参考賃料 | 37.0万円 〜 39.0万円 |
|---|---|
| ㎡数 | 70.32㎡ |
| 間取り | 2LDK |
| 所在階 | 17階 |
| 物件登録日 | 2026/01/26 |
| 参考賃料 | 41.0万円 〜 42.0万円 |
|---|---|
| ㎡数 | 73.96㎡ |
| 間取り | 2LDK |
| 所在階 | 28階 |
| 物件登録日 | 2025/12/03 |
| 参考賃料 | 25.0万円 〜 27.0万円 |
|---|---|
| ㎡数 | 54.17㎡ |
| 間取り | 1LDK |
| 所在階 | 2階 |
| 物件登録日 | 2025/10/05 |
| 参考賃料 | 2.5万円 〜 4.0万円 |
|---|---|
| ㎡数 | 51.1㎡ |
| 間取り | 1LDK |
| 所在階 | 3階 |
| 物件登録日 | 2025/08/07 |
| 参考賃料 | 18.8万円 〜 19.8万円 |
|---|---|
| ㎡数 | 34.58㎡ |
| 間取り | 1K |
| 所在階 | 11階 |
| 物件登録日 | 2025/07/03 |
| 参考賃料 | 35.8万円 〜 37.8万円 |
|---|---|
| ㎡数 | 73.96㎡ |
| 間取り | 2LDK |
| 所在階 | 18階 |
| 物件登録日 | 2025/06/24 |
| 参考賃料 | 15.5万円 〜 17.0万円 |
|---|---|
| ㎡数 | 34.58㎡ |
| 間取り | 1K |
| 所在階 | 5階 |
| 物件登録日 | 2025/05/08 |
| 参考賃料 | 29.5万円 〜 32.0万円 |
|---|---|
| ㎡数 | 60.56㎡ |
| 間取り | 1LDK |
| 所在階 | 7階 |
| 物件登録日 | 2025/04/28 |
| 参考賃料 | 41.0万円 〜 42.0万円 |
|---|---|
| ㎡数 | 68.59㎡ |
| 間取り | 2LDK |
| 所在階 | 8階 |
| 物件登録日 | 2025/03/31 |


引用:













































