「虎ノ門ヒルズ レジデンシャルタワーはどんなマンション?」「賃料相場や審査基準はどんな感じ?」など、虎ノ門ヒルズ レジデンシャルタワーの賃貸を検討していませんか?
私たちはこれまで数多くの賃貸物件をご紹介してきましたが、虎ノ門ヒルズ レジデンシャルタワーは、特に以下のようなお客様に自信を持っておすすめできる物件です。
- ステータスの高いマンションに住みたい
- 利便性の良さを重視している
- 地震に強いタワーマンションを探している
- セキュリティが厳重なタワーマンションがいい
- タワーマンションならではの豪華な施設を堪能したい
- ペットとの暮らしを大切にしたい
このページでは、この結論に至った背景や、知っておいていただきたい注意点を以下の流れで解説していきます。
- 虎ノ門ヒルズ レジデンシャルタワーの6つの特徴
- 虎ノ門ヒルズ レジデンシャルタワーのエントランスや室内イメージ
- 虎ノ門ヒルズ レジデンシャルタワーの交通情報・周辺環境
- その他の特徴や注意点(審査難易度・事故情報など)
この記事を読めば、虎ノ門ヒルズ レジデンシャルタワーがどのような物件で、他の賃貸マンションと何が違うのかを深く理解できます。その結果、検討している物件があなたにとって最適な住まいなのか、自信を持って判断できるようになるでしょう。
まずはじめに、虎ノ門ヒルズ レジデンシャルタワーで募集されていた部屋は以下のとおりです。新しい順に並んでいますが、詳しい募集時期は「物件登録日」をご覧ください。
弊社の仲介手数料は【無料】または【半額+tax】です。お客様の費用負担を少しでも軽くできるよう、全力でお部屋探しをお手伝いします。
物件アーカイブ 過去に募集された部屋一覧
| 参考賃料 | 73.0万円 〜 74.0万円 |
|---|---|
| ㎡数 | 62.8㎡ |
| 間取り | 1LDK |
| 所在階 | 12階 |
| 物件登録日 | 2026/05/29 |
| 参考賃料 | 113.0万円 〜 114.0万円 |
|---|---|
| ㎡数 | 94.64㎡ |
| 間取り | 2LDK |
| 所在階 | 19階 |
| 物件登録日 | 2026/05/08 |
| 参考賃料 | 62.0万円 〜 63.0万円 |
|---|---|
| ㎡数 | 56.56㎡ |
| 間取り | 1LDK |
| 所在階 | 13階 |
| 物件登録日 | 2026/05/08 |
| 参考賃料 | 244.0万円 〜 245.0万円 |
|---|---|
| ㎡数 | 180.09㎡ |
| 間取り | 3LDK |
| 所在階 | 22階 |
| 物件登録日 | 2026/05/08 |
| 参考賃料 | 250.0万円 〜 251.0万円 |
|---|---|
| ㎡数 | 170.97㎡ |
| 間取り | 2LDK |
| 所在階 | 29階 |
| 物件登録日 | 2026/02/16 |
| 参考賃料 | 183.0万円 〜 184.0万円 |
|---|---|
| ㎡数 | 126.48㎡ |
| 間取り | 2LDK |
| 所在階 | 44階 |
| 物件登録日 | 2026/02/05 |
| 参考賃料 | 319.0万円 〜 320.0万円 |
|---|---|
| ㎡数 | 226.88㎡ |
| 間取り | 4LDK |
| 所在階 | 15階 |
| 物件登録日 | 2026/01/14 |
| 参考賃料 | 74.0万円 〜 75.0万円 |
|---|---|
| ㎡数 | 62.60㎡ |
| 間取り | 1LDK |
| 所在階 | 16階 |
| 物件登録日 | 2026/01/14 |
| 参考賃料 | 77.0万円 〜 78.0万円 |
|---|---|
| ㎡数 | 60.23㎡ |
| 間取り | 1LDK |
| 所在階 | 25階 |
| 物件登録日 | 2025/12/16 |
| 参考賃料 | 77.0万円 〜 78.0万円 |
|---|---|
| ㎡数 | 60.23㎡ |
| 間取り | 1LDK |
| 所在階 | 23階 |
| 物件登録日 | 2025/10/27 |
| 参考賃料 | 73.0万円 〜 74.0万円 |
|---|---|
| ㎡数 | 62.8㎡ |
| 間取り | 1LDK |
| 所在階 | 15階 |
| 物件登録日 | 2025/07/08 |
| 参考賃料 | 68.0万円 〜 69.0万円 |
|---|---|
| ㎡数 | 60.23㎡ |
| 間取り | 1LDK |
| 所在階 | 17階 |
| 物件登録日 | 2025/06/16 |
| 参考賃料 | 68.0万円 〜 69.0万円 |
|---|---|
| ㎡数 | 60.23㎡ |
| 間取り | 1LDK |
| 所在階 | 16階 |
| 物件登録日 | 2025/06/06 |
| 参考賃料 | 74.0万円 〜 75.0万円 |
|---|---|
| ㎡数 | 60.23㎡ |
| 間取り | 1LDK |
| 所在階 | 18階 |
| 物件登録日 | 2025/05/01 |
| 参考賃料 | 216.0万円 〜 217.0万円 |
|---|---|
| ㎡数 | 170.97㎡ |
| 間取り | 2LDK |
| 所在階 | 40階 |
| 物件登録日 | 2025/05/01 |
| 参考賃料 | 150.0万円 〜 151.0万円 |
|---|---|
| ㎡数 | 123.89㎡ |
| 間取り | 2LDK |
| 所在階 | 42階 |
| 物件登録日 | 2025/02/28 |
| 参考賃料 | 650.0万円 〜 651.0万円 |
|---|---|
| ㎡数 | 314.91㎡ |
| 間取り | 4SLDK |
| 所在階 | 51階 |
| 物件登録日 | 2025/02/14 |
| 参考賃料 | 164.0万円 〜 165.0万円 |
|---|---|
| ㎡数 | 124.11㎡ |
| 間取り | 2LDK |
| 所在階 | 35階 |
| 物件登録日 | 2024/12/27 |
| 参考賃料 | 193.0万円 〜 199.0万円 |
|---|---|
| ㎡数 | 170.97㎡ |
| 間取り | 2LDK |
| 所在階 | 29階 |
| 物件登録日 | 2024/09/16 |
| 参考賃料 | 193.0万円 〜 199.0万円 |
|---|---|
| ㎡数 | 170.97㎡ |
| 間取り | 2LDK |
| 所在階 | 29階 |
| 物件登録日 | 2024/08/30 |
| 参考賃料 | 207.0万円 〜 208.0万円 |
|---|---|
| ㎡数 | 170.32㎡ |
| 間取り | 3LDK |
| 所在階 | 27階 |
| 物件登録日 | 2024/08/27 |
| 参考賃料 | 216.0万円 〜 217.0万円 |
|---|---|
| ㎡数 | 170.97㎡ |
| 間取り | 2LDK |
| 所在階 | 39階 |
| 物件登録日 | 2024/08/27 |
| 参考賃料 | 55.0万円 〜 56.0万円 |
|---|---|
| ㎡数 | 56.56㎡ |
| 間取り | 1LDK |
| 所在階 | 13階 |
| 物件登録日 | 2023/09/22 |
| 参考賃料 | 141.0万円 〜 142.0万円 |
|---|---|
| ㎡数 | 124.11㎡ |
| 間取り | 2LDK |
| 所在階 | 31階 |
| 物件登録日 | 2023/09/22 |
| 参考賃料 | 220.0万円 〜 221.0万円 |
|---|---|
| ㎡数 | 170.32㎡ |
| 間取り | 2LDK |
| 所在階 | 32階 |
| 物件登録日 | 2023/07/25 |
| 参考賃料 | 66.0万円 〜 67.0万円 |
|---|---|
| ㎡数 | 62.8㎡ |
| 間取り | 1LDK |
| 所在階 | 16階 |
| 物件登録日 | 2023/07/08 |
| 参考賃料 | 220.0万円 〜 221.0万円 |
|---|---|
| ㎡数 | 170.32㎡ |
| 間取り | 1LDK |
| 所在階 | 32階 |
| 物件登録日 | 2022/11/01 |
| 参考賃料 | 59.0万円 〜 60.0万円 |
|---|---|
| ㎡数 | 60.23㎡ |
| 間取り | 1LDK |
| 所在階 | 19階 |
| 物件登録日 | 2022/10/18 |
| 参考賃料 | 55.0万円 〜 56.0万円 |
|---|---|
| ㎡数 | 60.23㎡ |
| 間取り | 1LDK |
| 所在階 | 16階 |
| 物件登録日 | 2022/10/18 |
| 参考賃料 | 87.0万円 〜 87.0万円 |
|---|---|
| ㎡数 | 94.64㎡ |
| 間取り | 2LDK |
| 所在階 | 建21階 |
| 物件登録日 | 2022/05/10 |
| 参考賃料 | 53.0万円 〜 53.0万円 |
|---|---|
| ㎡数 | 56.56㎡ |
| 間取り | 1LDK |
| 所在階 | 建24階 |
| 物件登録日 | 2022/05/10 |
| 参考賃料 | 100.0万円 〜 100.0万円 |
|---|---|
| ㎡数 | 112.78㎡ |
| 間取り | 2LDK |
| 所在階 | 建15階 |
| 物件登録日 | 2022/04/19 |
| 参考賃料 | 54.0万円 〜 54.0万円 |
|---|---|
| ㎡数 | 56.56㎡ |
| 間取り | 1LDK |
| 所在階 | 建25階 |
| 物件登録日 | 2022/04/12 |
| 参考賃料 | 60.0万円 〜 60.0万円 |
|---|---|
| ㎡数 | 60.23㎡ |
| 間取り | 1LDK |
| 所在階 | 建19階 |
| 物件登録日 | 2022/04/05 |
| 参考賃料 | 263.0万円 〜 264.0万円 |
|---|---|
| ㎡数 | 226.88㎡ |
| 間取り | 4LDK |
| 所在階 | 建16階 |
| 物件登録日 | 2022/03/22 |
| 参考賃料 | 60.0万円 〜 60.0万円 |
|---|---|
| ㎡数 | 62.6㎡ |
| 間取り | 1LDK |
| 所在階 | 建17階 |
| 物件登録日 | 2022/03/22 |
| 参考賃料 | 60.0万円 〜 60.0万円 |
|---|---|
| ㎡数 | 62.8㎡ |
| 間取り | 1LDK |
| 所在階 | 建16階 |
| 物件登録日 | 2022/03/22 |
| 参考賃料 | 58.0万円 〜 58.0万円 |
|---|---|
| ㎡数 | 62.6㎡ |
| 間取り | 1LDK |
| 所在階 | 建12階 |
| 物件登録日 | 2022/03/22 |
| 参考賃料 | 55.0万円 〜 55.0万円 |
|---|---|
| ㎡数 | 60.23㎡ |
| 間取り | 1LDK |
| 所在階 | 建12階 |
| 物件登録日 | 2022/03/22 |
| 参考賃料 | 261.0万円 〜 261.0万円 |
|---|---|
| ㎡数 | 226.88㎡ |
| 間取り | 3LDK |
| 所在階 | 建15階 |
| 物件登録日 | 2022/03/01 |
| 参考賃料 | 190.0万円 〜 190.0万円 |
|---|---|
| ㎡数 | 180.09㎡ |
| 間取り | 3LDK |
| 所在階 | 建22階 |
| 物件登録日 | 2022/03/01 |
| 参考賃料 | 173.0万円 〜 173.0万円 |
|---|---|
| ㎡数 | 170.97㎡ |
| 間取り | 2LDK |
| 所在階 | 建37階 |
| 物件登録日 | 2022/03/01 |
| 参考賃料 | 172.0万円 〜 172.0万円 |
|---|---|
| ㎡数 | 170.3㎡ |
| 間取り | 3LDK |
| 所在階 | 建34階 |
| 物件登録日 | 2022/03/01 |
| 参考賃料 | 166.0万円 〜 166.0万円 |
|---|---|
| ㎡数 | 155.95㎡ |
| 間取り | 3LDK |
| 所在階 | 建38階 |
| 物件登録日 | 2022/03/01 |
| 参考賃料 | 134.0万円 〜 134.0万円 |
|---|---|
| ㎡数 | 126.48㎡ |
| 間取り | 2LDK |
| 所在階 | 建39階 |
| 物件登録日 | 2022/03/01 |
| 参考賃料 | 130.0万円 〜 130.0万円 |
|---|---|
| ㎡数 | 124.11㎡ |
| 間取り | 2LDK |
| 所在階 | 建36階 |
| 物件登録日 | 2022/03/01 |
| 参考賃料 | 128.0万円 〜 128.0万円 |
|---|---|
| ㎡数 | 124.11㎡ |
| 間取り | 2LDK |
| 所在階 | 建31階 |
| 物件登録日 | 2022/03/01 |
| 参考賃料 | 120.0万円 〜 120.0万円 |
|---|---|
| ㎡数 | 121.51㎡ |
| 間取り | 2LDK |
| 所在階 | 建18階 |
| 物件登録日 | 2022/03/01 |
| 参考賃料 | 104.0万円 〜 104.0万円 |
|---|---|
| ㎡数 | 112.78㎡ |
| 間取り | 2LDK |
| 所在階 | 建21階 |
| 物件登録日 | 2022/03/01 |
1. 虎ノ門ヒルズ レジデンシャルタワーの6つの特徴
虎ノ門ヒルズ レジデンシャルタワーには以下の特徴があります。
- 港区で最もグレードの高い賃貸マンションの1つ
- 8駅14路線を利用できる便利な立地
- 地震に強い「制震構造」で建てられている
- 24時間有人管理の厳重なセキュリティ
- 「HILLS SPA」の豪華な共用施設を利用できる
- 大切なペットと快適に暮らせる
その分、賃料は高めですが、これらに魅力を感じる方はぜひ前向きにご検討ください。
1-1. 港区で最もグレードの高い賃貸マンションの1つ
虎ノ門ヒルズ レジデンシャルタワーは、「六本木ヒルズ」や「虎ノ門ヒルズ」のレジデンスタワーと肩を並べる、ハイグレードな高級マンションの1つです。
賃料が高い東京都の港区エリアの中でも、賃料の水準は高く、最もハイステータスなマンションの1つと言えます。
同じ価格帯のマンションは、以下のような、超が付くほど高級な物件ばかりです。
過去のデータを元にした賃料目安
| マンション名 | 1LDK | 2LDK | 3LDK |
| 虎ノ門ヒルズ レジデンシャルタワー | 50~61万円 | 81~200万円 | 166~190万円 |
| 六本木ヒルズレジデンスB|C | 46~64万円 | 78~178万円 | 125~157万円 |
| 虎ノ門ヒルズレジデンス | 68~85万円 | 85~170万円 | 138~292万円 |
| 東京ミッドタウンレジデンス. | 70~80万円 | 125~140万円 | 180万円 |
1-2. 8駅14路線を利用できる便利な立地
虎ノ門ヒルズ レジデンシャルタワーの周辺にある8つの駅からは、下記の14路線を利用することができます。
| 駅名 | 分数 | 路線 |
| 虎ノ門ヒルズ駅 | 2分 |
|
| 虎ノ門駅 | 6分 |
|
| 神谷町駅 | 6分 |
|
| 御成門駅 | 9分 |
|
| 内幸町駅 | 12分 |
|
| 霞ヶ関駅 | 15分 |
|
| 六本木一丁目駅 | 16分 |
|
| 新橋駅 | 16分 |
|
合計14路線を使えるので、都心内の移動で不便に感じることはないでしょう。
特に、以下2つの駅は2階デッキでつながっている「虎ノ門ヒルズ 森タワー」の地下から直結しているため利便性が高いです。
- 虎ノ門ヒルズ駅(東京メトロ 日比谷線)
- 虎ノ門駅(東京メトロ 銀座線)
引用:虎ノ門ヒルズ公式ページ
ちなみに、虎ノ門ヒルズ森タワーから「虎ノ門駅」までは、以下のような地下通路でつながっています。

ただ、「日比谷線 北千住方面」のホームには直結しておらず、地上を歩く必要があるので注意しましょう。
空港へのリムジンバスも便利
マンションとデッキで直結している「虎ノ門ヒルズ森タワー」の1階から、羽田・成田空港行きのリムジンバスが発着しています。
そのため、出張や旅行で飛行機をよく使う人にとっても便利な立地と言えるでしょう。
タクシー移動にも便利な立地
都心の中心である六本木一丁目エリアですので、タクシーを使うときも便利です。
都心の主要エリアからマンションまで、タクシーをご利用いただいた場合の目安時間と料金は以下の通りです。
| 区間 | 通常料金(深夜料金) | 時間の目安 |
| 六本木駅 | 900円(1,060円) | 約10分 |
| 銀座駅 | 900円(1,060円) | 約10分 |
| 東京駅 | 1,300円(1,540円) | 約10~20分 |
| 品川駅 | 2,020円(2,420円) | 約20分 |
| 渋谷駅 | 2,260円(2,740円) | 約20分 |
| 新宿駅 | 2,500円(2,980円) | 約20~30分 |
タクシーで帰宅するときは、「虎ノ門ヒルズ」とだけ伝えれば、大半の運転手はわかってくれるので便利です。
1-3. 地震に強い「制震構造」で建てられている
虎ノ門ヒルズ レジデンシャルタワーは、国内大手5社の1つである「竹中工務店」が施工した、地震に強い「制震構造」のタワーマンションです。
制震構造は、建物に組み込まれた「制震装置」が地震のエネルギーを吸収することで、大きな揺れが来た際にも建物の被害を軽減できる仕組みです。
また、タワーマンションに採用される耐震構造は主に3つありますが、中でも制震構造は非常にバランスの取れた構造と言えます。
| 免震構造 | 制震構造 | 耐震構造 | |
| 地震の揺れ | ほぼ感じない | 軽減 | 揺れやすい |
| 建物の被害 | 大幅に軽減 | 軽減 | 受けやすい |
| 家具に被害 | 大幅に軽減 | 軽減 | 受けやすい |
| 強風による揺れ | ゆっくりと長く揺れる | ほぼ感じない | ほぼ感じない |
高層建築物でも広く採用されている
制震構造はタワーマンションだけでなく、高層建築物にも広く採用されている信頼度の高い構造です。
以下は、制震構造を採用している有名な高層建築物です。
| 東京都庁 |
![]() |
| 東京スカイツリー |
![]() |
これらの理由から、「タワーマンションに住みたいけれど、地震が心配」という方にも、積極的にご検討いただきたい物件です。
災害時の備えも充実
虎ノ門ヒルズ レジデンシャルタワーは、防災倉庫を設けるなど、災害時の備えも充実しています。
基本的な防災備蓄品だけでなく、下記の設備があることで万が一の災害にも対応できます。
- 非常用発電機
- 災害井戸
- 3日分の食糧
- 非常用トイレ
また、管制機能付きのエレベーターを採用しているため、災害時にエレベーター内に閉じ込められる心配もありません。
1-4. 24時間有人管理の厳重なセキュリティ
虎ノ門ヒルズ レジデンシャルタワーには、管理員が24時間常駐し、住まう方々の日々を見守ります。『いざという時』の迅速な対応はもちろん、防犯面でも頼れる存在がいる暮らしは、何物にも代えがたい安心感につながります。
また、エントランスに加え、エレベーターホールにもオートロックを完備。不審者の侵入を二重でブロックするため、女性の一人暮らしや小さなお子様がいるご家庭でも、安心して毎日をお過ごしいただけます。
さらに、エレベーターはお部屋の鍵がないと呼び出せない仕組みです。居住者以外はフロアに上がれないため、セキュリティ面でも安心感が違います。
コンシェルジュによるセキュリティも万全
フロントデスクには専用のコンシェルジュが24時間常駐しておりますので、人的なセキュリティも万全を期しています。
また、下記のサービスを全て英語で対応することもできるので、外国籍の方が住むときも不便なく快適に暮らすことができます。
- レセプションサービス
- インフォメーション
- タクシー手配サービス
- クリーニング取次サービス
- メッセージ預かり
- 共用施設の利用受付
- 宅配便の一時預かりサービス
1-5. 「HILLS SPA」の豪華な共用施設を利用できる
虎ノ門ヒルズ レジデンシャルタワーの入居者は、建物3Fにある「HILLS SPA」の豪華な共用施設を利用できます。
| プール&ジャグジー | |
![]() |
![]() |
| フィットネスジム | |
![]() |
![]() |
| ダイニング | |
![]() |
![]() |
| 画像引用元:HILLS SPA | |
ヒルズスパは会員制のフィットネスクラブで、虎ノ門ヒルズ レジデンシャルタワーの他に「アークヒルズ仙石山森タワー」のヒルズスパも利用できます。
なお、各スパごとに用意されている施設は異なりますが、虎ノ門ヒルズ レジデンシャルタワーには下記の施設が揃っています。
- プール(25m×3レーン)
- ジャグジー
- フィットネスジム
- ドライサウナ
- スタジオ
- エステティックサロン
- ダイニング
ヒルズスパの施設利用料
虎ノ門ヒルズ レジデンシャルタワーの入居者がヒルズスパを利用する場合、下記のどちらかを選択する形となります。
- マンスリー会員|月会費:16,500円(税込)
- フレクシー会員|1日:4,400円(税込)
充実した豪華な施設を上記の料金で利用できるのは、非常にコスパがいいです。
というのも、マンションの入居者でない人がヒルズスパの会員になるには、下記の費用を支払う必要があるのです。
- 入会金:110万円(税込)
- 預託金:50万円
- 年会費:33万円(税込)
このように、ヒルズスパは会員になるだけでもハードルが高いフィットネスクラブです。
そんな高級フィットネスクラブをお得に利用できるのは、入居者にとって大きな特典と言えるでしょう。
ただし、各部屋の貸主によっては、ヒルズスパと提携していないケースもあるので、事前に利用可能かどうかを確認しましょう。
1-6. 大切なペットと快適に暮らせる
虎ノ門ヒルズ レジデンシャルタワーの部屋によっては、ペットを2匹まで飼うことができます。
さらに、貸主から承諾をもらえれば大型犬を飼育することもできる、都内でも希少なタワーマンションです。
また、敷地内にはペット専用の足洗い場が設けられているので、散歩帰りも便利に利用できます。
動物病院やペットサロンも充実
マンションから歩いて8分の場所に「虎ノ門動物病院」がありますので、ペットの体調が優れないときでも安心です。
そして、歩いて15分の場所に、ホテルやトリミングのサービスを提供している「PET&BED麻布」というお店があるので、旅行や出張のとき便利に利用できます。
飼育できないペットについて
大型犬の飼育もできる希少なマンションですが、下記の種類のペットは飼育できません。
| 超大型犬 | 闘犬 | 爬虫類 |
|
|
|
上記の他にも、飼育できない種類があるので、内見前に飼育可能かどうかを確認するようにしましょう。
2. 虎ノ門ヒルズ レジデンシャルタワーのエントランスや室内イメージ
虎ノ門ヒルズ レジデンシャルタワーの魅力をより具体的にイメージしていただけるよう、室内の様子と共用スペースを以下の4つのカテゴリに分けて写真でご紹介します。
2-1. エントランス
まず、虎ノ門ヒルズ レジデンシャルタワーの居住フロアは以下のように分類されており、エントランスも異なります。
| 居住フロア分類 | |
![]() |
|
| 居住フロア | エントランス分類 |
|
|
| 画像引用元:マンション公式ページ | |
虎ノ門ヒルズ レジデンシャルタワーのエントランスは高級タワーマンションにふさわしい非常に上品な仕上がりとなっています。

また、車寄せも用意されているので、車をご利用の方は雨の日でも濡れずに外出することできます。
画像引用元:森リビング
エントランス内部にはオートロックが設置されているので、防犯面で安心してお過ごしいただけます。
オートロックを通過すると、どちらのエントランスにもコンシェルジュが駐在しているフロントデスクがございます。
| スイート・サービスアパートメント(12~42階・4~11階)専用のフロントデスク |
![]() |
![]() |
| スカイスイート(43~54階)専用のフロントデスク |
![]() |
| 画像引用元:三井不動産|森リビング|マンション公式ページ |
フロントデスクを通過すると、居住階へとつながるエレベーターが用意されています。
ちなみに、タワーマンションのエレベーターは「50戸に対して1基」が理想とされています。
虎ノ門ヒルズ虎ノ門ヒルズ レジデンシャルタワーは、階層によって以下の数が用意されています。
- スカイスイート(59戸)・・・3基
- スイート(328戸)・・・5基
- サービスアパートメント(160戸)・・・2基
スカイスイートのエレベーターは理想的な数が揃っています。
また、スイート・サービスアパートメントについては、時間帯によっては少しお待ちいただく場合もございます。
共用廊下も上品な仕上がり
エレベーターホールから玄関ドアまでは、ホテルライクな内廊下の仕様となっています。(以下は参考写真で別物件となります)

42階にはスカイスイート専用のフロントデスクが用意されている
マンションの42階には、スカイスイート専用のフロントデスクがございます。
1階のフロントデスクまで降りることなくフロントサービスが利用できるのは、スカイスートにお住まいの方ならではの特権と言えるでしょう。
画像引用元:at home
2-2. 共用部
虎ノ門ヒルズ レジデンシャルタワーにある以下の共用部は、居住用マンションとは思えないほど上品な雰囲気で作られています。
ザ・ギャラリー/ライブラリー
マンションの1階にはチェアが揃ったギャラリーがございます。

また、本や雑誌などが揃ったライブラリースペースもございますので、待ち合わせの時間などにご活用いただけるでしょう。
画像引用元:マンション公式ページ|森リビング
虎ノ門ヒルズキッチン
マンションの1階には、居住者の方と同伴者のみがご利用いただけるレストランが用意されています。


| ・利用時間 |
|
| ・利用料金 |
|
| ・その他 |
|
| 画像引用元:三井不動産 | |
ヒルズスパ
繰り返しになりますが、虎ノ門ヒルズ レジデンシャルタワーの入居者は、建物3Fにある「HILLS SPA」の豪華な共用施設を利用できます。
なお、虎ノ門ヒルズ レジデンシャルタワーには下記の施設が揃っています。
- プール(25m×3レーン)
- ジャグジー
- フィットネスジム
- ドライサウナ
- スタジオ
- エステティックサロン
- キッズスイミングスクール
ゲストハウス リビングダイニング
マンションの41階には、東京タワーなどを一望できるゲストハウス リビングダイニングがございます。
キッチンやダイニングテーブルなども揃っているので、ホームパーティーなどにもご利用いただけるでしょう。


| ・通常利用時 | ・利用時間 |
|
|
| ・利用料金 |
|
||
| ・貸切利用時 |
・リビング・ダイニング(定員50名) | ・利用時間 |
|
| ・利用料金 |
|
||
| ・ダイニングのみ(定員10名) | ・利用時間 |
|
|
| ・利用料金 |
|
||
|
・その他 |
|
||
ゲストハウス ゲストルーム
マンションの41階には、ホテルライクなゲストルームが2室用意されています。(ご利用は有料となります。)
画像引用元:三井不動産
スカイサロン(スカイスイート専用施設)
マンションの42階には、スカイスイートの居住者とご同伴の方専用のスカイサロンが用意されています。
コーヒーやスナックが用意されているほか、マンション1階の「虎ノ門ヒルズキッチン」からルームサービスすることも可能です。
また、スカイサロン内には貸切が可能なミーティングルームが用意されております。
画像引用元:マンション公式ページ
2-3. 室内イメージ
スカイスイートのモデルルームは以下のイメージです。(モデルルームですので、実際の内容とは異なる可能性があります。)



画像引用元:森リビング|マンション公式ページ
スイートのモデルルームは以下のイメージです。(モデルルームですので、実際の内容とは異なる可能性があります。)

スイートの家具のない室内は以下のイメージです。(過去に募集された部屋ですので、実際の内容とは異なる可能性があります。)
![]() |
![]() |
![]() |
![]() |
![]() |
![]() |
![]() |
![]() |
![]() |
![]() |
![]() |
![]() |
![]() |
![]() |
![]() |
![]() |
![]() |
![]() |
![]() |
![]() |
![]() |
![]() |
![]() |
![]() |
![]() |
![]() |
キッチンや浴室などのスペースも非常に洗練された造りとなっています。
| キッチン | |
![]() |
![]() |
![]() |
![]() |
| 浴室 | |
![]() |
![]() |
| 洗面台 | |
![]() |
![]() |
![]() |
![]() |
| トイレ | |
![]() |
|
| 画像引用元:森リビング|at home | |
室内の素材や雰囲気は、お部屋によって異なります。必ず内見でご確認ください。
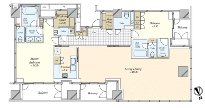
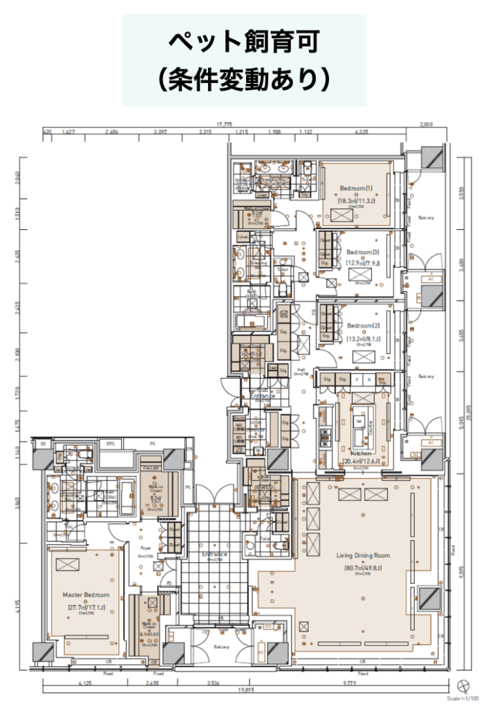
2-4. 間取り
現在募集中の部屋がない場合もございますが、虎ノ門ヒルズ レジデンシャルタワーの代表的な部屋の間取りをご紹介します。
1LDK
![]() |
![]() |
| 56.56㎡(17.10坪) | 60.23㎡(18.21坪) |
![]() |
![]() |
| 62.60㎡(18.93坪) | 62.80㎡(坪) |
2LDK
![]() |
![]() |
| 94.64㎡(28.62坪) | 112.78㎡(34.11坪) |
![]() |
![]() |
| 170.97㎡(51.71坪) | 170.97㎡(54.44坪) |
3LDK
![]() |
![]() |
| 180.09㎡(54.54坪) | 163.30㎡(49.39坪) |
![]() |
![]() |
| 170.30㎡(51.51坪) | 155.95㎡(47.17坪) |
4LDK
![]() |
|
| 226.88㎡(68.63坪) | |
| 間取り図引用元:森リビング |
3. 虎ノ門ヒルズ レジデンシャルタワーの交通情報・周辺環境
虎ノ門ヒルズ レジデンシャルタワーの周辺施設(駅やコンビニなど)をマップにまとめましたので、以下をご覧ください。
引用:Google Map
虎ノ門という都心の中心地ですので、日常的によく使うお店などがとても充実しています。
3-1. 交通アクセスについて
虎ノ門ヒルズ レジデンシャルタワーの周辺にある8つの駅からは、下記の14路線を利用することができます。
| 駅名 | 分数 | 路線 |
| 虎ノ門ヒルズ駅 | 2分 |
|
| 虎ノ門駅 | 6分 |
|
| 神谷町駅 | 6分 |
|
| 御成門駅 | 9分 |
|
| 内幸町駅 | 12分 |
|
| 霞ヶ関駅 | 15分 |
|
| 六本木一丁目駅 | 16分 |
|
| 新橋駅 | 16分 |
|
合計14路線を使えるので、都心内の移動で不便に感じることはないでしょう。
特に、以下2つの駅は2階デッキでつながっている「虎ノ門ヒルズ 森タワー」の地下から直結しているため利便性が高いです。
- 虎ノ門ヒルズ駅(東京メトロ 日比谷線)
- 虎ノ門駅(東京メトロ 銀座線)
路線バスの利用も便利
マンションの入り口周辺には以下のようにバス停があるので、目的地によっては電車よりバスの方が便利です。

主な行き先はそれぞれ以下の通りとなっています。
| 愛宕一丁目(バス停) | |
| ① | ② |
|
|
| 引用:Google Map | |
3-2. 周辺のコンビニやスーパー・薬局について
虎ノ門ヒルズ レジデンシャルタワー周辺にはコンビニなどが充実していて、日々の生活も便利です。
まず、コンビニは虎ノ門ヒルズ レジデンシャルタワーの2階に「セブンイレブン」がございます。
この他、マンションの隣の建物には「ミニストップ」もあります。
そして、スーパーは徒歩10分圏内(約800m)に以下の店舗が揃っています。
- 福島屋(約550m、徒歩7分)
- たまがわや(約550m、徒歩7分)
- マルエツプチ 城山ヒルズ店(約600m、徒歩8分)
- 肉のハナマサ(約650m、徒歩8分)
- 成城石井(約650m、徒歩8分)
- マルエツプチ 新橋五丁目(約700m、徒歩9分)
ちなみに、高級スーパーの成城石井は、輸入ワインやチーズなど通常のスーパーで買えない製品が購入できます。
一方の福島屋は、製法や産地にこだわった製品が幅広く揃っているので、食材にこだわりたい健康志向の方にもおすすめです。
薬局・ドラッグストアも近い
マンションから徒歩10分圏内(約800m)には、下記のように薬局やドラッグストアが豊富に揃っています。
- みなと虎ノ門薬局(約150m、徒歩2分)
- トモズ 虎ノ門ヒルズ店(約350m、徒歩4分)
- トモズ 神谷町(約450m、徒歩6分)
- アガペ薬局(約450m、徒歩6分)
- さくら薬局 虎ノ門店(約500m、徒歩7分)
- 日生薬局虎ノ門(約550m、徒歩7分)
- 日本調剤薬局(約550m、徒歩7分)
- ココカラファイン(約600m、徒歩8分)
- くすり箱薬局(約650m、徒歩8分)
- さくら薬局 西新橋店(約650m、徒歩8分)
- さくら薬局 西新橋2号店(約700m、徒歩8分)
- スギドラッグ(約650m、徒歩8分)
- 虎ノ門鈴薬局(約700m、徒歩9分)
- 内山薬局(約700m、徒歩9分)
- クオール薬局(約750m、徒歩9分)
- 日本調剤 西新橋薬局(約750m、徒歩9分)
- 日野薬局(約750m、徒歩10分)
3-3. 飲食店について
「虎ノ門ヒルズ」の敷地内には、高級レストランだけでなく、たくさんの飲食店が集う「虎ノ門横丁」がございます。
画像引用元:虎ノ門ヒルズ公式
下記は一例ですが、合計80以上の飲食店があるので、グルメな方でもご満足いただけるでしょう。
- 和食
- イタリアン
- フレンチ
- 洋食・グリル
- 中華料理
- エスニック・アジア料理
- 肉料理
- 創作料理
- カレー屋
- ラーメン屋
- バー
- 居酒屋
- カフェ
- スイーツ
- お弁当・軽食店
- ベーカリー
また、マンションから徒歩15分ほどの「新橋駅」周辺には、気軽に入れる居酒屋などが揃っています。
虎ノ門ヒルズ レジデンシャルタワー周辺の、その他の飲食店
その他、マンション周辺には、以下のようにチェーンの飲食店もあります。
|
・ファミレス |
|
|
・軽飲食 |
|
|
・カフェ |
|
3-4. 学区域や保育園について
虎ノ門ヒルズ レジデンシャルタワーの学区域は以下の通りです。(※学区域は変更になる場合があります。最新の情報は、各区教育委員会のウェブサイト等でご確認ください。)
| 小学校 | 中学校 |
| 御成門小学校 | 御成門中学校 |
| 徒歩10分 | 徒歩9分 |
学校選択制度について
港区の小・中学校では、地域によって入学すべき中学校が「指定校」として定められています。
ただし、「指定校」以外の港区内の小・中学校も希望できる「学校選択制度」をご利用いただくことも可能です。
「指定校」以外に選択できる学校の範囲は以下の通りです。
- 中学校:区内全域の中学校
- 小学校:隣接校(指定校の地域に隣接した学校)※以下参照

保育園について
保育園はマンションから歩いて5分の場所に「グローバルキッズ虎ノ門保育園」があるので、入園できれば共働きで忙しいご家庭の負担も減るでしょう。
この他にも、歩いて10分ほど場所には複数の保育園がございます。
引用:Google Map
3-5. 周辺の治安について
マンションあるエリアの治安は良いです。
以下のマップは、2022年の1年間を通して、犯罪(自転車盗難なども含む)が合計で何件発生したのかを示したものです。
引用:警視庁犯罪情報マップ
虎ノ門ヒルズ レジデンシャルタワーの周辺は犯罪が少ない”黄色”に分類されていて、23区内の中でも治安が良いエリアです。
虎ノ門ヒルズ レジデンシャルタワーの入り口付近
以下の写真の通り、マンション前には道幅の広い歩道が整備されているので、お子さま連れでも安心です。
引用:Google Map
3-6. 洪水などによる浸水リスクについて
浸水リスクを調べたところ、最大規模の氾濫が起きた場合、マンションが建つエリアは「0.5~1.0m未満」の浸水が予測されています。
万が一、周辺が氾濫した場合は、最大で建物1階部分まで浸水する可能性がありますので、浸水リスクも含めて検討するようにしましょう。
4. その他の特徴や注意点(審査難易度・事故情報など)
その他に、ここまでに挙げきれなかった、以下8個の虎ノ門ヒルズ レジデンシャルタワーの特徴や注意点を紹介します。
4-1. 駐車場が使える
虎ノ門ヒルズ レジデンシャルタワーの地下には駐車場が用意されています。
空き状況にもよりますが、自走式と機械式駐車場が利用でき、賃料の目安は以下の通りとなっています。
- 機械式:60,000~70,000円(税込)
- 自走式:90,000~170,000円(税込)
下記は、機械式のサイズなので、駐車場を借りるときは車検証でサイズを確認しましょう。
- 全長:5,300mm
- 車幅:2,050mm
- 車高:1,550~2,000mm
- 重量:2,700kg
駐輪場とバイク置き場について
虎ノ門ヒルズ レジデンシャルタワーには駐輪場とバイク置き場があり、賃料の目安は下記の通りです。
- プレミアム駐輪場:15,000円(税込)/月
- 平置き 駐輪場:2,000円(税込)/月
- 子ども用 平置き 駐輪場:500円(税込)/月
- 傾斜ラック式駐輪場:1,000円(税込)/月
- バイク置き場:15,000円(税込)/月
4-2. 楽器の演奏ができる
虎ノ門ヒルズ レジデンシャルタワーは、オーナー様が楽器演奏を許可しているお部屋に限り、楽器演奏が可能です。
ただし、楽器の種類や演奏時間には規定がございます。後のトラブルを避けるためにも、ご希望の条件での演奏が可能か、ご契約前に必ず確認しましょう。
4-3. 各階で24時間ゴミ出しができる
虎ノ門ヒルズ レジデンシャルタワーでは、各階にゴミ捨て場が設置されており、24時間365日いつでもゴミを捨てることができます。
粗大ゴミは所定の場所へ持ち出す必要がありますが、日々のゴミ捨てでエレベーターを使わずに済むのは魅力的です。
また、ディスポーザーが付いている部屋であれば、生ゴミの処理も非常に楽です。
4-4. 保証会社の利用が必須
虎ノ門ヒルズ レジデンシャルタワーの多くの部屋が、保証会社の利用を必須としています。
契約する保証会社は部屋によって異なるため、明確な費用は算出できませんが、初回保証料として総賃料の40~50%が相場となります。
借りる方にとっては追加費用が発生するものの、連帯保証人を用意する手間が省けるというメリットがあります。
4-5. 審査難易度は部屋次第
結論、虎ノ門ヒルズ レジデンシャルタワーは分譲マンションのため、オーナー様によって審査の難易度が異なります。
したがって、特定の部屋の審査に落ちた場合でも、別の部屋であれば審査に通る可能性は十分にあります。
また、部屋によっては「法人名義」でないと契約できない部屋もありますので、個人名義での契約を希望する人は、内見前に確認しましょう。
4-6. 敷金を4ヶ月分求められる部屋が多い
虎ノ門ヒルズ レジデンシャルタワーの部屋を借りるときは、敷金を4ヶ月分求められる部屋が多いです。
仮に100万円の部屋を借りる場合、敷金だけで400万円もの大金が必要となるので、事前に準備しておきましょう。
また、部屋によっては連帯保証人を求められるケースもありますので、連帯保証人を用意できない人は内見前に問題ないか確認しましょう。
4-7. 定期借家契約について
虎ノ門ヒルズ レジデンシャルタワーでは、「定期借家契約」となるお部屋が多く見られます。
期間限定と言っても、基本的には一般的な更新のように再契約を結ぶことで、継続して住み続けることができます。
ただ、契約期間中に賃料を滞納したりすると、再契約できず退去を求められる可能性もあるので注意しましょう。
また、再契約時には、近隣相場に合わせて賃料が変更になる可能性もあります。
4-8. 事故物件情報の調査結果
事故情報(過去の事件や事故)を「事故物件検索サイト(https://www.oshimaland.co.jp/)」やTwitterなどのSNS、Google検索で調べました。
その結果、虎ノ門ヒルズ レジデンシャルタワーが事故物件に該当する情報は見当たりませんでした。
ただし、不動産業者から提示される資料に「告知事項あり」と表記されている場合は、事故やその他のトラブルにつながる事柄がある可能性が高いです。そのため、必ず内容を確認するようにしましょう。
5. まとめ
ここまでをまとめると、虎ノ門ヒルズ レジデンシャルタワーは、「賃料は高いが、それに見合った高いスペックのマンション」です。
これらの特徴を踏まえると、以下に当てはまる方には特におすすめしたい物件です。
- ステータスの高いマンションに住みたい
- 利便性の良さを重視している
- 地震に強いタワーマンションを探している
- セキュリティが厳重なタワーマンションがいい
- タワーマンションならではの豪華な施設を堪能したい
- ペットとの暮らしを大切にしたい
改めて、これまでに募集されたお部屋の情報は以下の通りです。 気になるお部屋がありましたら、どうぞお気軽にご連絡ください。お待ちしております。
物件アーカイブ 過去に募集された部屋一覧
| 参考賃料 | 73.0万円 〜 74.0万円 |
|---|---|
| ㎡数 | 62.8㎡ |
| 間取り | 1LDK |
| 所在階 | 12階 |
| 物件登録日 | 2026/05/29 |
| 参考賃料 | 113.0万円 〜 114.0万円 |
|---|---|
| ㎡数 | 94.64㎡ |
| 間取り | 2LDK |
| 所在階 | 19階 |
| 物件登録日 | 2026/05/08 |
| 参考賃料 | 62.0万円 〜 63.0万円 |
|---|---|
| ㎡数 | 56.56㎡ |
| 間取り | 1LDK |
| 所在階 | 13階 |
| 物件登録日 | 2026/05/08 |
| 参考賃料 | 244.0万円 〜 245.0万円 |
|---|---|
| ㎡数 | 180.09㎡ |
| 間取り | 3LDK |
| 所在階 | 22階 |
| 物件登録日 | 2026/05/08 |
| 参考賃料 | 250.0万円 〜 251.0万円 |
|---|---|
| ㎡数 | 170.97㎡ |
| 間取り | 2LDK |
| 所在階 | 29階 |
| 物件登録日 | 2026/02/16 |
| 参考賃料 | 183.0万円 〜 184.0万円 |
|---|---|
| ㎡数 | 126.48㎡ |
| 間取り | 2LDK |
| 所在階 | 44階 |
| 物件登録日 | 2026/02/05 |
| 参考賃料 | 319.0万円 〜 320.0万円 |
|---|---|
| ㎡数 | 226.88㎡ |
| 間取り | 4LDK |
| 所在階 | 15階 |
| 物件登録日 | 2026/01/14 |
| 参考賃料 | 74.0万円 〜 75.0万円 |
|---|---|
| ㎡数 | 62.60㎡ |
| 間取り | 1LDK |
| 所在階 | 16階 |
| 物件登録日 | 2026/01/14 |
| 参考賃料 | 77.0万円 〜 78.0万円 |
|---|---|
| ㎡数 | 60.23㎡ |
| 間取り | 1LDK |
| 所在階 | 25階 |
| 物件登録日 | 2025/12/16 |
| 参考賃料 | 77.0万円 〜 78.0万円 |
|---|---|
| ㎡数 | 60.23㎡ |
| 間取り | 1LDK |
| 所在階 | 23階 |
| 物件登録日 | 2025/10/27 |
| 参考賃料 | 73.0万円 〜 74.0万円 |
|---|---|
| ㎡数 | 62.8㎡ |
| 間取り | 1LDK |
| 所在階 | 15階 |
| 物件登録日 | 2025/07/08 |
| 参考賃料 | 68.0万円 〜 69.0万円 |
|---|---|
| ㎡数 | 60.23㎡ |
| 間取り | 1LDK |
| 所在階 | 17階 |
| 物件登録日 | 2025/06/16 |
| 参考賃料 | 68.0万円 〜 69.0万円 |
|---|---|
| ㎡数 | 60.23㎡ |
| 間取り | 1LDK |
| 所在階 | 16階 |
| 物件登録日 | 2025/06/06 |
| 参考賃料 | 74.0万円 〜 75.0万円 |
|---|---|
| ㎡数 | 60.23㎡ |
| 間取り | 1LDK |
| 所在階 | 18階 |
| 物件登録日 | 2025/05/01 |
| 参考賃料 | 216.0万円 〜 217.0万円 |
|---|---|
| ㎡数 | 170.97㎡ |
| 間取り | 2LDK |
| 所在階 | 40階 |
| 物件登録日 | 2025/05/01 |
| 参考賃料 | 150.0万円 〜 151.0万円 |
|---|---|
| ㎡数 | 123.89㎡ |
| 間取り | 2LDK |
| 所在階 | 42階 |
| 物件登録日 | 2025/02/28 |
| 参考賃料 | 650.0万円 〜 651.0万円 |
|---|---|
| ㎡数 | 314.91㎡ |
| 間取り | 4SLDK |
| 所在階 | 51階 |
| 物件登録日 | 2025/02/14 |
| 参考賃料 | 164.0万円 〜 165.0万円 |
|---|---|
| ㎡数 | 124.11㎡ |
| 間取り | 2LDK |
| 所在階 | 35階 |
| 物件登録日 | 2024/12/27 |
| 参考賃料 | 193.0万円 〜 199.0万円 |
|---|---|
| ㎡数 | 170.97㎡ |
| 間取り | 2LDK |
| 所在階 | 29階 |
| 物件登録日 | 2024/09/16 |
| 参考賃料 | 193.0万円 〜 199.0万円 |
|---|---|
| ㎡数 | 170.97㎡ |
| 間取り | 2LDK |
| 所在階 | 29階 |
| 物件登録日 | 2024/08/30 |
| 参考賃料 | 207.0万円 〜 208.0万円 |
|---|---|
| ㎡数 | 170.32㎡ |
| 間取り | 3LDK |
| 所在階 | 27階 |
| 物件登録日 | 2024/08/27 |
| 参考賃料 | 216.0万円 〜 217.0万円 |
|---|---|
| ㎡数 | 170.97㎡ |
| 間取り | 2LDK |
| 所在階 | 39階 |
| 物件登録日 | 2024/08/27 |
| 参考賃料 | 55.0万円 〜 56.0万円 |
|---|---|
| ㎡数 | 56.56㎡ |
| 間取り | 1LDK |
| 所在階 | 13階 |
| 物件登録日 | 2023/09/22 |
| 参考賃料 | 141.0万円 〜 142.0万円 |
|---|---|
| ㎡数 | 124.11㎡ |
| 間取り | 2LDK |
| 所在階 | 31階 |
| 物件登録日 | 2023/09/22 |
| 参考賃料 | 220.0万円 〜 221.0万円 |
|---|---|
| ㎡数 | 170.32㎡ |
| 間取り | 2LDK |
| 所在階 | 32階 |
| 物件登録日 | 2023/07/25 |
| 参考賃料 | 66.0万円 〜 67.0万円 |
|---|---|
| ㎡数 | 62.8㎡ |
| 間取り | 1LDK |
| 所在階 | 16階 |
| 物件登録日 | 2023/07/08 |
| 参考賃料 | 220.0万円 〜 221.0万円 |
|---|---|
| ㎡数 | 170.32㎡ |
| 間取り | 1LDK |
| 所在階 | 32階 |
| 物件登録日 | 2022/11/01 |
| 参考賃料 | 59.0万円 〜 60.0万円 |
|---|---|
| ㎡数 | 60.23㎡ |
| 間取り | 1LDK |
| 所在階 | 19階 |
| 物件登録日 | 2022/10/18 |
| 参考賃料 | 55.0万円 〜 56.0万円 |
|---|---|
| ㎡数 | 60.23㎡ |
| 間取り | 1LDK |
| 所在階 | 16階 |
| 物件登録日 | 2022/10/18 |































































