1. ジェイタワー西大井イーストタワーの3つの特徴
ジェイタワー西大井イーストには、以下の特徴があります。
その分、賃料は高めですが、これらに魅力を感じるなら、ぜひ前向きにご検討ください。
1-1. 人気の分譲タワーマンション
ジェイタワー西大井イーストは、オーナー様が購入されたお部屋を賃貸として貸し出す、いわゆる分譲賃貸マンションです。
設備や構造など、グレードの高い部屋を借りることができるので、人気の部屋は季節を問わず常に早い者勝ちとなります。
ちなみに、過去に募集されたお部屋の賃料を間取りごとにまとめると、以下のようになります。
| 1K |
14~17万円 |
| 1LDK |
16~21万円 |
| 2LDK |
21~30万円 |
| 3LDK |
24~31万円 |
1-2. 3駅4路線を使える便利な立地
ジェイタワー西大井イーストの周辺にある3つの駅からは、下記の4路線を利用することができます。
| 駅名 |
分数 |
路線 |
| 西大井駅 |
1分 |
|
| 中延駅 |
15分 |
|
| 下明神駅 |
15分 |
|
西大井駅から使えるJR線は、都心の主要駅まで乗り換えなしでアクセスできる便利な路線です。
路線バスも便利
マンション前の道路には以下のようにバス停があるので、目的地によっては電車よりバスの方が便利です。

行き先は以下の通りとなっています。
1-3. 24時間遠隔警備の厳重なセキュリティ
ジェイタワー西大井イーストは、24時間体制で遠隔警備を導入しているため、夜間でも安心して暮らすことができます。
また、エントランスにはモニター付きのオートロックが設置されているので、部外者に侵入されるリスクも低いです。
さらに、敷地内の各所に防犯カメラを複数台設置しているので、一般的なマンションより厳重なセキュリティ体制が整っています。
2. ジェイタワー西大井イーストタワーのエントランスや室内イメージ
ジェイタワー西大井イーストの魅力をより具体的にイメージしていただけるよう、室内の様子と共用スペースを以下の4つのカテゴリに分けて写真でご紹介します。
2-1. エントランス
エントランスの外観は、シンプルな仕上がりとなっています。

エントランス内部は、以下の写真のようにオートロックを導入しているので、防犯面でも安心してお過ごしいただけます。

2-2. 共用部
オートロックを通過すると、落ち着いた色合いのエントランスホールがございます。

エントランスホールを奥に進むと、3基のエレベーターが用意されたエレベーターホールがございます。

ちなみに、タワーマンションのエレベーターは「50戸に対して1基」が理想とされています。
ジェイタワー西大井イーストのエレベーターは「335戸に対して3基」ということから、時間帯によっては混雑する場合があるでしょう。
プライバシーに配慮された内廊下仕様
エレベーターホールから各部屋までは、プライバシーに配慮された内廊下の仕様となっています。
画像引用元:HOME’S
2-3. 室内イメージ
リビングなどの室内の様子は以下の写真をご参照ください。(※これらの写真は過去に募集されていたお部屋のものですので、実際の内容とは異なる可能性があります。ご了承ください。)
水回り設備の雰囲気は以下のようになっております。
室内の素材や雰囲気は、お部屋によって異なります。必ず内見でご確認ください。
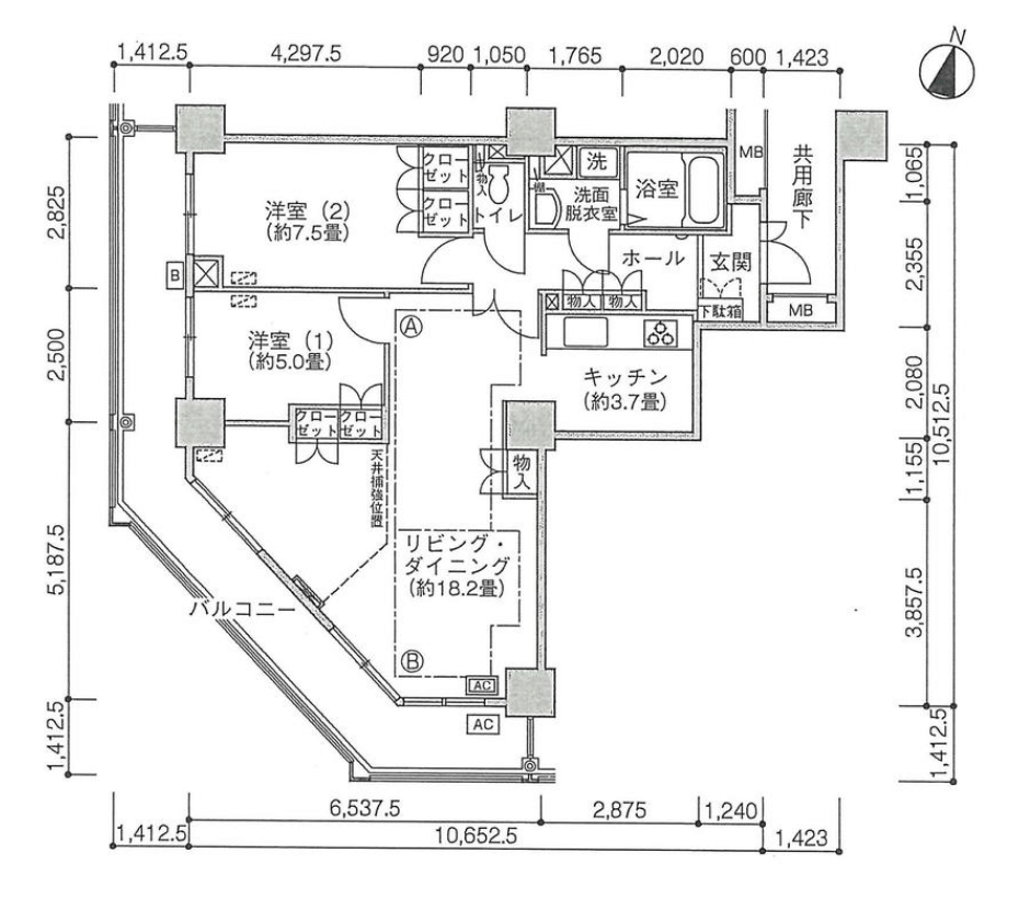
2-4. 間取り
現在募集中の部屋がない場合もございますが、ジェイタワー西大井イーストの代表的な部屋の間取りをご紹介します。
1K
 |
 |
| 48.31㎡(14.36坪) |
55.78㎡(16.87坪) |
1LDK
 |
| 48.31㎡(14.61坪) |
 |
 |
| 54.45㎡(16.47坪) |
55.78㎡(16.87坪) |
2LDK
 |
 |
| 71.43㎡(21.61坪) |
79.88㎡(24.16坪) |
 |
| 87.33㎡(26.42坪) |
3LDK
3. ジェイタワー西大井イーストタワーの交通情報・周辺環境
ジェイタワー西大井イーストの周辺施設(駅やコンビニなど)をマップにまとめましたので、以下をご覧ください。
引用:Google Map
ジェイタワー西大井イーストは駅前の立地ということもあり、コンビニやスーパーが揃っているので、日常的な買い物が便利です。
3-1. 交通アクセスについて
繰り返しになりますが、ジェイタワー西大井イーストは主に以下3つの駅が利用できます。
| 駅名 |
分数 |
路線 |
| 西大井駅 |
1分 |
|
| 中延駅 |
15分 |
|
| 下明神駅 |
15分 |
|
合計4路線を使えるので、都心内の移動で不便に感じることはないでしょう。
3-2. 周辺のコンビニやスーパー・薬局について
繰り返しになりますが、マンション周辺にはコンビニやスーパーが揃っているので日常的な買い物が便利です。
まず、コンビニはマンションの敷地内に「ファミリーマート」がございます。
この他にも、徒歩1分圏内(約80m)に以下の2店舗が揃っています。
- ファミリーマート 西大井一丁目店(約78m、徒歩1分)
- セブンイレブン 品川西大井駅前店(約11m、徒歩1分)
そして、スーパーは徒歩2分圏内(約160m)に以下の2店舗があるので、生鮮食品の買い物が非常に便利です。
- マルエツプチ(約130m、徒歩1分)
- 文化堂(約200m、徒歩2分)
薬局・ドラッグストアも近い
マンションから徒歩1分圏内(約80m)に以下の薬局・ドラッグストアが揃っているので薬の買い物が非常に便利です。
- さくら薬局(マンションの敷地内)
- マツモトキヨシ(約51m、徒歩1分)
- アイセイ薬局(約91m、徒歩1分)
3-3. 飲食店について
マンション周辺には以下の飲食店がございますが、飲食店の数が多いとは言えません。
- カフェ
- 焼肉屋
- 寿司屋
- 中華料理店
- カレー屋
- 焼き鳥屋
- 居酒屋
- ファストフード店
ただし、タクシーで5分ほどの場所にある「大井町駅」周辺にはたくさんの飲食店が揃っているので、休日の外食で困ることはないでしょう。
上記で挙げた以外にも、マンション周辺には以下のようなチェーン店もございます。
- マクドナルド(マンションの敷地内)
- 日高屋(約51m、徒歩1分)
- 松屋(約68m、徒歩1分)
3-4. 学区域や保育園について
ジェイタワー西大井イーストの学区域は以下の通りです。(※学区域は変更になる場合があります。最新の情報は、各区教育委員会のウェブサイト等でご確認ください。)
| 小学校 |
中学校 |
| 伊藤学園(前期課程) |
伊藤学園(後期課程) |
| 徒歩7分 |
徒歩7分 |
小学校について
品川区の小学校は、住んでる地域によって入学すべき小学校が「指定校(住所地の学校)」として決まっています。
ただし、以下のイメージ図のように「指定校(住所地の学校)」と隣り合った小学校も希望できる「学校選択制度」も利用可能です。
画像引用元:品川区
保育園について
保育園はマンションの隣の建物に「西大井保育園」があるので、入園できれば共働きで忙しいご家庭の負担も減るでしょう。
この他にも周辺には複数の保育園があるため、お子さまの預け先を比較的検討しやすいエリアと言えるでしょう。
引用:Google Map
3-5. 周辺の治安について
まず、マンション周辺の治安は良いです。
以下のマップは、2022年の1年間を通して、犯罪(自転車盗難なども含む)が合計で何件発生したのかを示したものです。
引用:警視庁犯罪情報マップ
ご覧の通りマンション周辺は犯罪が比較的少ない薄いオレンジ色に分類されていて、23区内の中でも治安は良いエリアと言えます。
ジェイタワー西大井イーストの入り口付近
以下の写真の通り、マンション前には道幅の広い歩道が整備されているので、お子さま連れでも安心です。
引用:Google Map
3-6. 洪水などによる浸水リスクについて
ハザードマップ上、最大規模の氾濫時でも浸水リスクはないとされており、安心してお住まいいただけます。(※ハザードマップは変更されるケースがあります。最新の情報は、各自治体のウェブサイト等でご確認ください。)
引用:ハザードマップポータルサイト
4. その他の特徴や注意点(審査難易度・事故情報など)
その他に、ここまでに挙げきれなかった、以下5個のジェイタワー西大井イーストの特徴や注意点を紹介します。
- 駐車場が使える
- 24時間ゴミ出しができる
- 保証会社の利用が必須
- 審査難易度は普通
- 事故物件情報は該当なし
4-1. 駐車場が使える
ジェイタワー西大井イーストには駐車場が用意されています。
空き状況にもよりますが、機械式パーキングが利用でき、「38,500円(税込)~/月」が賃料の目安です。
4-2. 24時間ゴミ出しができる
マンション内に専用のゴミ捨て場がありますので、24時間365日ゴミを捨てることができます。
4-3. 保証会社の利用が必須
ジェイタワー西大井イーストに入居するには、連帯保証人の有無に関係なく保証会社の利用が必須で、下記の費用がかかります。
| 契約形態 |
初回保証料 |
継続保証料 |
| 個人契約 |
総賃料の半月分 |
10,000円/年 |
| 法人契約 |
総賃料の半月分 |
総賃料の1.2%/月 |
なお、利用する保証会社は以下のとおりです。
- 個人契約:オリコフォレントインシュア
- 法人契約:Casa
4-4. 審査難易度は普通
結論、ジェイタワー西大井イーストの審査難易度は普通です。
上述した保証会社の審査が通れば大抵の場合、貸主の審査も通るケースが多いです。
ただし、誰でも簡単に通るわけではないので、最低でも下記の条件はクリアしておきましょう。
- 年収:家賃の36倍以上
- 勤続年数:1年以上
- 雇用形態:正社員(または安定した収入のある経営者や法人等)
4-5. 事故物件情報は該当なし
事故情報(過去の事件や事故)を「事故物件検索サイト(https://www.oshimaland.co.jp/)」やTwitterなどのSNS、Google検索で調べました。
その結果、ジェイタワー西大井イーストが事故物件に該当する情報は見当たりませんでした。
ただし、不動産業者から提示される資料に「告知事項あり」と表記されている場合は、事故やその他のトラブルにつながる事柄がある可能性が高いです。そのため、必ず内容を確認するようにしましょう。
5. まとめ
ここまでをまとめると、ジェイタワー西大井イーストは、「賃料は高いが、それに見合った高いスペックのマンション」です。
これらの特徴を踏まえると、以下に当てはまる方には特におすすめしたい物件です。
- 分譲タワーマンションで探している
- 利便性を重視している
- セキュリティが厳重なタワーマンションがいい
改めて、これまでに募集されたお部屋の情報は以下の通りです。 気になるお部屋がありましたら、どうぞお気軽にご連絡ください。お待ちしております。