コンフォリア新宿イーストサイドタワー(以下、コンフォリア新宿タワー)について下記8つの方法で事故物件(飛び降り、転落、自殺、火災、孤独死、不審死、事件)を徹底的にリサーチしたところ、事故の情報が1件ありました。
- 事故物件検索サイト(https://www.oshimaland.co.jp/)
- Youtube
- Google検索
- マンション掲示板(https://www.e-mansion.co.jp)
- 5ちゃんねる(https://5ch.net)
- その他データベース
事故の詳細は以下の通りとなっています。
| 事故内容 | 時期 | 部屋 |
| 転落死 | 2015年 | 不明 |
部屋番号が不明ですが、直近の事故に関しては入居者に伝える義務がありますから、気になる方は不動産会社の担当者に確認しましょう。
なお、過去に事故などがあったお部屋について、不動産会社や大家さんには次の入居者様へお伝えする義務(告知義務)があります。しかし、その後に一人でも入居者がいた場合は、告知義務の対象外となる点には注意が必要です。
お部屋のことで気になる点があれば、ご遠慮なくご質問ください。お客様が安心して選べるよう、私たちが責任を持ってお調べします。
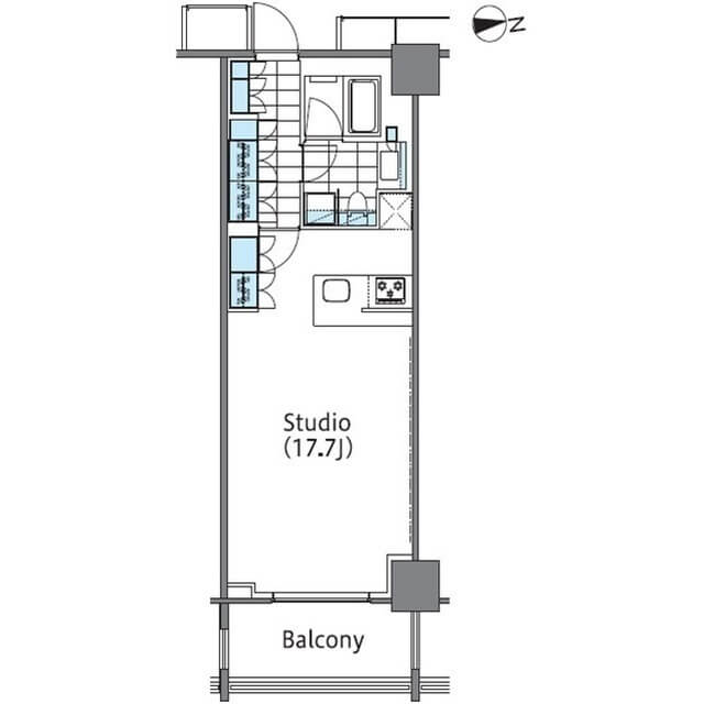
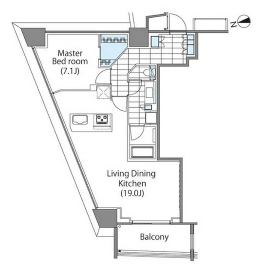
また、コンフォリア新宿タワーで募集されていた部屋は以下のとおりです。新しい順に並んでいますが、詳しい募集時期は「物件登録日」をご覧ください。
上段:タワー棟|下段:アネックス棟(SOHO区画)
物件アーカイブ 過去に募集された部屋一覧
| 参考賃料 | 48.7万円 〜 49.7万円 |
|---|---|
| ㎡数 | 74.54㎡ |
| 間取り | 2LDK |
| 所在階 | 14階 |
| 物件登録日 | 2026/02/18 |
| 参考賃料 | 55.7万円 〜 56.7万円 |
|---|---|
| ㎡数 | 85.64㎡ |
| 間取り | 2LDK |
| 所在階 | 15階 |
| 物件登録日 | 2026/02/13 |
| 参考賃料 | 27.7万円 〜 28.7万円 |
|---|---|
| ㎡数 | 42.51㎡ |
| 間取り | 1R |
| 所在階 | 11階 |
| 物件登録日 | 2026/02/09 |
| 参考賃料 | 27.4万円 〜 28.4万円 |
|---|---|
| ㎡数 | 41.99㎡ |
| 間取り | 1LDK |
| 所在階 | 5階 |
| 物件登録日 | 2026/02/09 |
| 参考賃料 | 27.5万円 〜 28.5万円 |
|---|---|
| ㎡数 | 41.23㎡ |
| 間取り | 1R |
| 所在階 | 14階 |
| 物件登録日 | 2026/02/09 |
| 参考賃料 | 27.9万円 〜 28.9万円 |
|---|---|
| ㎡数 | 42.84㎡ |
| 間取り | 1LDK |
| 所在階 | 3階 |
| 物件登録日 | 2026/02/09 |
| 参考賃料 | 26.4万円 〜 27.4万円 |
|---|---|
| ㎡数 | 41.23㎡ |
| 間取り | 1R |
| 所在階 | 14階 |
| 物件登録日 | 2026/02/09 |
| 参考賃料 | 38.2万円 〜 39.2万円 |
|---|---|
| ㎡数 | 62.86㎡ |
| 間取り | 1LDK |
| 所在階 | 2階 |
| 物件登録日 | 2026/02/09 |
| 参考賃料 | 53.1万円 〜 54.1万円 |
|---|---|
| ㎡数 | 85.64㎡ |
| 間取り | 2LDK |
| 所在階 | 16階 |
| 物件登録日 | 2026/02/09 |
| 参考賃料 | 52.7万円 〜 53.7万円 |
|---|---|
| ㎡数 | 85.64㎡ |
| 間取り | 2LDK |
| 所在階 | 8階 |
| 物件登録日 | 2026/02/09 |
| 参考賃料 | 65.8万円 〜 66.8万円 |
|---|---|
| ㎡数 | 100.35㎡ |
| 間取り | 2LDK |
| 所在階 | 20階 |
| 物件登録日 | 2026/02/09 |
| 参考賃料 | 48.0万円 〜 49.0万円 |
|---|---|
| ㎡数 | 73.72㎡ |
| 間取り | 2LDK |
| 所在階 | 6階 |
| 物件登録日 | 2026/02/07 |
| 参考賃料 | 39.4万円 〜 40.4万円 |
|---|---|
| ㎡数 | 62.86㎡ |
| 間取り | 1LDK |
| 所在階 | 3階 |
| 物件登録日 | 2026/02/06 |
| 参考賃料 | 48.1万円 〜 49.1万円 |
|---|---|
| ㎡数 | 73.72㎡ |
| 間取り | 1LDK |
| 所在階 | 21階 |
| 物件登録日 | 2026/01/28 |
| 参考賃料 | 27.1万円 〜 28.1万円 |
|---|---|
| ㎡数 | 41.23㎡ |
| 間取り | 1R |
| 所在階 | 13階 |
| 物件登録日 | 2026/01/28 |
| 参考賃料 | 56.0万円 〜 57.0万円 |
|---|---|
| ㎡数 | 86.03㎡ |
| 間取り | 1LDK |
| 所在階 | 28階 |
| 物件登録日 | 2026/01/28 |
| 参考賃料 | 39.8万円 〜 40.8万円 |
|---|---|
| ㎡数 | 62.86㎡ |
| 間取り | 1LDK |
| 所在階 | 14階 |
| 物件登録日 | 2026/01/28 |
| 参考賃料 | 48.8万円 〜 49.8万円 |
|---|---|
| ㎡数 | 74.54㎡ |
| 間取り | 1LDK |
| 所在階 | 25階 |
| 物件登録日 | 2026/01/28 |
| 参考賃料 | 27.9万円 〜 28.9万円 |
|---|---|
| ㎡数 | 42.84㎡ |
| 間取り | 1LDK |
| 所在階 | 6階 |
| 物件登録日 | 2026/01/28 |
| 参考賃料 | 27.7万円 〜 28.7万円 |
|---|---|
| ㎡数 | 42.51㎡ |
| 間取り | 1LDK |
| 所在階 | 3階 |
| 物件登録日 | 2026/01/21 |
| 参考賃料 | 28.2万円 〜 29.2万円 |
|---|---|
| ㎡数 | 44.8㎡ |
| 間取り | 1R |
| 所在階 | 4階 |
| 物件登録日 | 2026/01/20 |
| 参考賃料 | 68.0万円 〜 69.0万円 |
|---|---|
| ㎡数 | 103.33㎡ |
| 間取り | 2LDK |
| 所在階 | 26階 |
| 物件登録日 | 2026/01/15 |
| 参考賃料 | 48.5万円 〜 49.5万円 |
|---|---|
| ㎡数 | 74.54㎡ |
| 間取り | 2LDK |
| 所在階 | 11階 |
| 物件登録日 | 2026/01/05 |
| 参考賃料 | 36.3万円 〜 37.3万円 |
|---|---|
| ㎡数 | 55.47㎡ |
| 間取り | 1SLDK |
| 所在階 | 10階 |
| 物件登録日 | 2026/01/05 |
| 参考賃料 | 59.8万円 〜 60.8万円 |
|---|---|
| ㎡数 | 98.48㎡ |
| 間取り | 2LDK |
| 所在階 | 7階 |
| 物件登録日 | 2026/01/05 |
| 参考賃料 | 59.8万円 〜 60.8万円 |
|---|---|
| ㎡数 | 98.48㎡ |
| 間取り | 2LDK |
| 所在階 | 5階 |
| 物件登録日 | 2026/01/05 |
| 参考賃料 | 27.9万円 〜 28.9万円 |
|---|---|
| ㎡数 | 42.84㎡ |
| 間取り | 1LDK |
| 所在階 | 4階 |
| 物件登録日 | 2026/01/05 |
| 参考賃料 | 25.5万円 〜 26.5万円 |
|---|---|
| ㎡数 | 41.23㎡ |
| 間取り | 1R |
| 所在階 | 14階 |
| 物件登録日 | 2026/01/05 |
| 参考賃料 | 29.2万円 〜 30.2万円 |
|---|---|
| ㎡数 | 44.8㎡ |
| 間取り | 1R |
| 所在階 | 16階 |
| 物件登録日 | 2026/01/05 |
| 参考賃料 | 28.0万円 〜 29.0万円 |
|---|---|
| ㎡数 | 42.53㎡ |
| 間取り | 1K |
| 所在階 | 16階 |
| 物件登録日 | 2026/01/05 |
| 参考賃料 | 24.5万円 〜 25.5万円 |
|---|---|
| ㎡数 | 42.53㎡ |
| 間取り | 1K |
| 所在階 | 5階 |
| 物件登録日 | 2026/01/05 |
| 参考賃料 | 28.2万円 〜 29.2万円 |
|---|---|
| ㎡数 | 43.07㎡ |
| 間取り | 1R |
| 所在階 | 14階 |
| 物件登録日 | 2026/01/05 |
| 参考賃料 | 36.4万円 〜 37.4万円 |
|---|---|
| ㎡数 | 55.47㎡ |
| 間取り | 1SLDK |
| 所在階 | 16階 |
| 物件登録日 | 2026/01/05 |
| 参考賃料 | 48.1万円 〜 49.1万円 |
|---|---|
| ㎡数 | 73.72㎡ |
| 間取り | 1LDK |
| 所在階 | 21階 |
| 物件登録日 | 2026/01/05 |
| 参考賃料 | 53.1万円 〜 54.1万円 |
|---|---|
| ㎡数 | 85.64㎡ |
| 間取り | 2LDK |
| 所在階 | 16階 |
| 物件登録日 | 2025/12/23 |
| 参考賃料 | 30.6万円 〜 31.6万円 |
|---|---|
| ㎡数 | 47.06㎡ |
| 間取り | 1LDK |
| 所在階 | 15階 |
| 物件登録日 | 2025/12/16 |
| 参考賃料 | 27.3万円 〜 28.3万円 |
|---|---|
| ㎡数 | 41.23㎡ |
| 間取り | 1R |
| 所在階 | 14階 |
| 物件登録日 | 2025/12/16 |
| 参考賃料 | 40.5万円 〜 41.5万円 |
|---|---|
| ㎡数 | 62.86㎡ |
| 間取り | 1LDK |
| 所在階 | 12階 |
| 物件登録日 | 2025/12/16 |
| 参考賃料 | 25.4万円 〜 26.4万円 |
|---|---|
| ㎡数 | 41.23㎡ |
| 間取り | 1R |
| 所在階 | 3階 |
| 物件登録日 | 2025/12/16 |
| 参考賃料 | 28.6万円 〜 29.6万円 |
|---|---|
| ㎡数 | 45.25㎡ |
| 間取り | 1LDK |
| 所在階 | 19階 |
| 物件登録日 | 2025/12/16 |
| 参考賃料 | 27.6万円 〜 28.6万円 |
|---|---|
| ㎡数 | 42.53㎡ |
| 間取り | 1K |
| 所在階 | 17階 |
| 物件登録日 | 2025/12/16 |
| 参考賃料 | 35.3万円 〜 36.3万円 |
|---|---|
| ㎡数 | 55.53㎡ |
| 間取り | 1LDK |
| 所在階 | 15階 |
| 物件登録日 | 2025/12/15 |
| 参考賃料 | 39.4万円 〜 40.4万円 |
|---|---|
| ㎡数 | 62.86㎡ |
| 間取り | 1LDK |
| 所在階 | 2階 |
| 物件登録日 | 2025/12/09 |
| 参考賃料 | 37.5万円 〜 38.5万円 |
|---|---|
| ㎡数 | 62.86㎡ |
| 間取り | 1LDK |
| 所在階 | 5階 |
| 物件登録日 | 2025/12/09 |
| 参考賃料 | 55.7万円 〜 56.7万円 |
|---|---|
| ㎡数 | 85.64㎡ |
| 間取り | 2LDK |
| 所在階 | 8階 |
| 物件登録日 | 2025/12/07 |
| 参考賃料 | 36.3万円 〜 37.3万円 |
|---|---|
| ㎡数 | 55.47㎡ |
| 間取り | 1LDK |
| 所在階 | 10階 |
| 物件登録日 | 2025/12/04 |
| 参考賃料 | 27.7万円 〜 28.7万円 |
|---|---|
| ㎡数 | 42.51㎡ |
| 間取り | 1SK |
| 所在階 | 11階 |
| 物件登録日 | 2025/12/03 |
| 参考賃料 | 64.6万円 〜 65.6万円 |
|---|---|
| ㎡数 | 98.48㎡ |
| 間取り | 2LDK |
| 所在階 | 7階 |
| 物件登録日 | 2025/12/03 |
| 参考賃料 | 26.9万円 〜 27.9万円 |
|---|---|
| ㎡数 | 41.23㎡ |
| 間取り | 1LDK |
| 所在階 | 4階 |
| 物件登録日 | 2025/10/27 |
物件アーカイブ 過去に募集された部屋一覧
| 参考賃料 | 35.8万円 〜 36.8万円 |
|---|---|
| ㎡数 | 59.79㎡ |
| 間取り | 1LDK |
| 所在階 | 3階 |
| 物件登録日 | 2026/01/28 |
| 参考賃料 | 37.6万円 〜 38.6万円 |
|---|---|
| ㎡数 | 59.79㎡ |
| 間取り | 1LDK |
| 所在階 | 3階 |
| 物件登録日 | 2025/12/16 |
| 参考賃料 | 39.3万円 〜 40.3万円 |
|---|---|
| ㎡数 | 59.79㎡ |
| 間取り | 1LDK |
| 所在階 | 4階 |
| 物件登録日 | 2025/11/10 |
| 参考賃料 | 24.2万円 〜 25.2万円 |
|---|---|
| ㎡数 | 37.04㎡ |
| 間取り | 1R |
| 所在階 | 3階 |
| 物件登録日 | 2025/09/28 |
| 参考賃料 | 39.0万円 〜 40.0万円 |
|---|---|
| ㎡数 | 59.79㎡ |
| 間取り | 1LDK |
| 所在階 | 2階 |
| 物件登録日 | 2025/06/21 |
| 参考賃料 | 36.8万円 〜 37.8万円 |
|---|---|
| ㎡数 | 56.39㎡ |
| 間取り | 1LDK |
| 所在階 | 2階 |
| 物件登録日 | 2025/05/26 |
| 参考賃料 | 23.8万円 〜 24.8万円 |
|---|---|
| ㎡数 | 37.04㎡ |
| 間取り | 1R |
| 所在階 | 4階 |
| 物件登録日 | 2024/08/30 |
| 参考賃料 | 37.0万円 〜 38.0万円 |
|---|---|
| ㎡数 | 56.39㎡ |
| 間取り | 1LDK |
| 所在階 | 4階 |
| 物件登録日 | 2024/01/22 |
| 参考賃料 | 34.2万円 〜 35.2万円 |
|---|---|
| ㎡数 | 59.90㎡ |
| 間取り | 1LDK |
| 所在階 | 3階 |
| 物件登録日 | 2023/05/01 |
弊社の仲介手数料は【無料】または【半額+tax】です。お客様の費用負担を少しでも軽くできるよう、全力でお部屋探しをお手伝いします。
また、事故情報以外に「コンフォリア新宿タワー」についてよくあるご質問をまとめました。
コンフォリア新宿タワーについて、事故物件以外でよくある質問と回答
コンフォリア新宿タワーについて、よくあるご質問をまとめました。
マンションの設備について
- Q1. 駐車場は用意されていますか?
- Q2. 楽器の演奏はできますか?
- Q3. ペットを飼育することはできますか?
- Q4. セキュリティ面はどうですか?
- Q5. コンシェルジュはいますか?何をしてくれますか?
- Q6. 高級マンションならではのサービスはありますか?
- Q7. 家具家電付きの部屋はありますか?
- Q8. SOHO利用の場合に向いている棟はどちらですか?
周辺の環境に関して
- Q9. 周辺の治安は良いですか?
- Q10. 電車などの交通アクセスはどのようなものがありますか?
- Q11. 周辺にコンビニやスーパーはありますか?
- Q12. 周辺にどんな飲食店がありますか?
- Q13. 学区域の小・中学校はどちらですか?
- Q14. 周辺に保育園はありますか?
災害リスクについて
契約について
- Q16. 申し込みの際に内見は必須ですか?
- Q17. 保証会社の利用は必須ですか?
- Q18. 審査難易度はどのようになっていますか?
- Q19. 契約時にかかる諸費用はありますか?
- Q20. 短期解約のペナルティはありますか?
Q1. 駐車場は用意されていますか?
はい、コンフォリア新宿タワーには駐車場が用意されています。
空き状況にもよりますが、機械式パーキングが利用可能で「47,300~55,000円(税込)/月」が賃料の目安です。
駐車場のサイズは以下の通りです。お借りになる際は、車検証でサイズを必ずご確認ください。
- 全長:5,000~5,300mm
- 全幅:1,850~1,910mm
- 全高:1,550~2,050mm
- 重量:2,300~2,500kg
- 最低地上高:110mm
駐輪場とバイク置き場について
コンフォリア新宿タワーには駐輪場とバイク置き場があり、賃料の目安は下記の通りです。
- 駐輪場:220~440円(税込)/月
- バイク置き場:5,500円(税込)/月
Q2. 楽器の演奏はできますか?
はい、コンフォリア新宿タワーは、オーナー様が楽器演奏を許可しているお部屋に限り、楽器演奏が可能です。
ただし、楽器の種類や演奏時間には規定がございます。後のトラブルを避けるためにも、ご希望の条件での演奏が可能か、ご契約前に必ず確認しましょう。
Q3. ペットを飼育することはできますか?
はい、コンフォリア新宿タワーは、敷金を1ヶ月分多く預けることで、下記のペットを2匹まで飼うことができます。
- 小型犬
- 猫
なお、マンションの設備としてペット用の足洗い場が用意されているので、散歩帰りなど便利に利用できます。
画像引用元:東急
動物病院やペットサロンも充実
マンションから歩いて6分の場所に「新宿動物病院」がありますので、ペットの体調が優れないときでも安心です。
また、歩いて10分の場所にホテルやトリミングのサービスを提供している「LOVE WOOF」というお店があるので、旅行や出張のとき便利に利用できます。
Q4. セキュリティ面はどうですか?
コンフォリア新宿タワーには、管理員が24時間常駐し、住まう方々の日々を見守ります。『いざという時』の迅速な対応はもちろん、防犯面でも頼れる存在がいる暮らしは、何物にも代えがたい安心感につながります。
また、エントランスとエレベーターホールの2箇所にオートロックが設置されているので、部外者に侵入されるリスクが限りなく低いです。
さらに、建物1階には交番がありますので、緊急時もすぐに警察官が駆けつけることができます。
Q5. コンシェルジュはいますか?何をしてくれますか?
はい、コンフォリア新宿タワーにはコンシェルジュがいます。
また、コンシェルジュは来客対応などのサービスを提供しています。
ちなみに、コンシェルジュは「07:00~23:00」の間、常駐しています。
Q6. 高級マンションならではのサービスはありますか?
はい、コンフォリア新宿タワーでは、ホテルに宿泊してるような下記のサービスを受けることができます。
- フロントコンシェルジュサービス(7:00~23:00)
- バレーパーキングサービス(24時間)
- Wi-Fiネットワーク(共用施設内)
- サービス洗車(月1回まで無料)
- 朝食ビュッフェ(500円〜)
- レストランダイニング
- ルームサービス
- カフェ・バー
上記のバレーパーキングは、係の人が車の入出庫を代行してくれる便利なサービスです。
都心でもバレーパーキングを導入しているマンションはごく僅かなので、高級マンションに相応しいサービスと言えます。
外出先から帰宅したときも、コーチエントランスで係の人に車を任せて部屋に戻れるので、駐車の手間が一切かかりません。
Q7. 家具家電付きの部屋はありますか?
はい、コンフォリア新宿タワーは、以下のような家具家電付きの部屋も用意されています。
画像引用元:東急
このように、身ひとつですぐに生活をスタートできるため、転勤などで都心のマンションを探している方や、外国籍の方にもピッタリです。
Q8. SOHO利用の場合に向いている棟はどちらですか?
コンフォリア新宿タワーの横にある「アネックス棟」が、ビジネス向きのSOHOマンションです。
SOHOは「住居兼事務所」のことを指し、個人または少人数で事務所として利用する人たちが使用しています。
ですので、マンション名が「コンフォリア新宿イーストサイドタワーアネックス」となっていたら、タワー棟ではないので注意しましょう。
Q9. 周辺の治安は良いですか?
いいえ、新宿の歌舞伎町などに近いエリアなので、治安には要注意です。
以下のマップは、2022年の1年間を通して、犯罪(自転車盗難なども含む)が合計で何件発生したのかを示したものです。
引用:警視庁犯罪情報マップ
コンフォリア新宿タワーの周辺は犯罪が多い赤色で色分けされていて、23区内の中でも治安が悪いエリアと言えます。
周辺は栄えていて便利ではあるものの、治安の面は避けて通れないので、きちんと検討して決めるようにしましょう。
ただ、マンションの周辺には複数の交番や警察署があるので、いざという時には心強く、安心感を与えてくれます。
Q10. 電車などの交通アクセスはどのようなものがありますか?
周辺の主要な交通アクセスを以下の移動手段に分けて紹介します。
1.電車
コンフォリア新宿タワーの周辺にある5つの駅からは、下記の15路線を利用することができます。
| 駅名 | 分数 | 路線 |
| 東新宿駅 | 3分 |
|
| 新宿三丁目駅 | 5分 |
|
| 新宿駅 | 11分 |
|
| 西武新宿駅 | 11分 |
|
| 若松河田駅 | 13分 |
|
どれも都心の中心地を走る路線なので、都心内の移動で不便に感じることが少ない立地と言えるでしょう。
使う路線によっては駅中を歩くことになる
最寄り駅の「東新宿駅」から副都心線を使うときは、A3出口からホームまで「2~3分」駅中を歩くことになります。
以下のように、副都心線のホームまでは距離があることに加え、地下6Fまで降りることになるので注意しましょう。
画像引用元:東京都交通局
2.バス
電車以外にも、建物横の「明治通り」には路線バスが数多く通っています。
以下のように、一番近い①のバス停はマンションから徒歩1分なので、行き先によっては電車より便利に使えることもあるでしょう。

下記は、マンション周辺に4つあるバス停からの行き先を示したものです。
| ① | ② | ③ | ④ |
|
|
|
|
3.タクシー
マンションは新宿エリアということもあり、タクシーを使うときも便利です。
都心の主要エリアからマンションまで、タクシーをご利用いただいた場合の目安時間と料金は以下の通りです。
| エリア | 通常料金(深夜料金) | 時間 |
| 池袋駅 | 1,620円(1,940円) | 約20分 |
| 渋谷駅 | 1,940円(2,340円) | 約20分 |
| 六本木駅 | 2,260円(2,740円) | 約20分 |
| 東京駅 | 2,900円(3,460円) | 約20~30分 |
| 銀座駅 | 3,380円(4,020円) | 約30分 |
| 品川駅 | 4,020円(4,740円) | 約30~40分 |
Q11. 周辺にコンビニやスーパーはありますか?
はい、徒歩圏内にコンビニやスーパーが充実しており、日々の買い物が大変便利な立地です。(詳細は下図参照)
引用:Google Map
まず、コンフォリア新宿タワーの1階には、24時間営業のスーパー「マルエツ」があります。
画像引用元:東急
また、建物横の「新宿イーストサイドスクエア」というビルの中には、ドラッグストアの「ぱぱす」が入っています。
そして、400m(徒歩5分目安)以内には、以下のように複数のスーパーやコンビニが近くにあります。
|
・コンビニ |
|
|
・スーパー |
|
|
・ドラッグストア |
|
Q12. 周辺にどんな飲食店がありますか?
コンフォリア新宿タワー周辺は、飲食店も充実しています。
まず、コンフォリア新宿タワー内には、以下のような飲食店があり、建物の外に出なくても食事などを済ませられます。
- カフェ
- レストラン
- ダイニングバー
また、隣にある「新宿イーストサイドスクエア」にも、下記のような飲食店が豊富に揃っています。
- 天丼屋
- 定食屋
- 寿司屋
- カフェ
- イタリアン
- 中華料理
こちらには一人でも気軽に立ち寄れるお店が多く、日常利用もしやすいので、私も近くに行った際はよく利用しています。
マンション周辺のその他のグルメ情報
その他、以下のようにチェーンの飲食店も周辺にあります。
|
・ファミレス |
|
|
・軽飲食 |
|
|
・カフェ |
|
Q13. 学区域の小・中学校はどちらですか?
コンフォリア新宿タワーの学区域は以下の通りです。(※学区域は変更になる場合があります。最新の情報は、各区教育委員会のウェブサイト等でご確認ください。)
| 小学校 | 中学校 |
| 大久保小学校 | 新宿中学校 |
| 徒歩8分 | 徒歩4分 |
Q14. 周辺に保育園はありますか?
はい、マンションから歩いて3分の場所に「フロンティキッズ新宿」があるので、入園できれば共働きで忙しいご家庭の負担も減るでしょう。
この他にも周辺には複数の保育園があるため、お子さまの預け先を比較的検討しやすいエリアと言えるでしょう。
引用:Google Map
Q15. 洪水などによる浸水のリスクはありますか?
いいえ、ハザードマップ上、最大規模の氾濫時でも浸水リスクはないとされており、安心してお住まいいただけます。
Q16. 申し込みの際に内見は必須ですか?
はい、コンフォリア新宿タワーに申し込むときは、必ず内見しなければいけません。
現地に駐在しているスタッフに室内や共用施設を案内してもらい、申込書をもらった段階で、はじめて申し込むことができます。
また、共用施設を内見するときは1時間近くお時間かかるので、休日など、時間に余裕がある日に内見することをおすすめします。
Q17. 保証会社の利用は必須ですか?
はい、コンフォリア新宿タワーに入居するには、連帯保証人の有無に関係なく、保証会社の利用が必須です。(大手法人契約を除く)
料金は、契約時に総賃料の40%を支払い、2年目以降は1年毎に12,000円の更新料を支払う必要があります。
また、利用する会社は「SBIギャランティ」という審査に厳しい保証会社です。
Q18. 審査難易度はどのようになっていますか?
結論、コンフォリア新宿タワーの審査は厳しいです。
エリア柄、水商売の人や内容が不透明なお仕事の方からの申し込みも多いため、審査の精度を高めて基準を厳しくしています。
また、アリバイ会社などを使った嘘の申請では通らないので、そのような会社を使う人は別の物件を検討しましょう。
Q19. 契約時にかかる諸費用はありますか?
はい、契約する部屋によって金額は異なりますが、契約時には下記の費用がかかるケースが多いです。
| 火災保険料 | 鍵交換費用 |
| 8,200円※ | 22,000円(税込) |
| ※1. 入居人数や補償対象とする家財の金額によりプラン料金の変動があります。 | |
Q20. 短期解約のペナルティはありますか?
はい、コンフォリア新宿タワーの部屋を契約してから1年未満で解約すると、賃料1ヶ月分の違約金を支払うペナルティがあります。
ですので、短期間の入居を希望する場合は注意しましょう。
なお、1年以上契約していれば、いつ解約してもペナルティはありません。
よくある質問とその回答は以上です。
ここから、マンションをよりイメージした上で契約したい方のために、画像でマンション内の内装や設備を紹介します。
豊富な画像でわかる!コンフォリア新宿タワーのエントランス・室内イメージ
コンフォリア新宿タワーの室内や共用スペースはどうなっているのか、契約前により具体的にイメージいただくために、以下の3つに分けて画像で紹介します。
① エントランス
コンフォリア新宿タワーの1階には、広々とした高級感あるエントランスがあります。


また、地下1階にはバレーパーキングサービスで車を入出庫できる、コーチエントランスが用意されています。

②. 共用部
コンフォリア新宿タワーの共用部は高級感ある造りで、何度内見に行っても驚かされます。
以下の1階にあるフォレストラウンジは、カフェスペースとして気軽に利用することができます。
画像引用元:東急
なお、朝食ビュッフェが500円から用意されている点も人気があります。
そして、以下のフロントデスクにはコンシェルジュもおりますので、何かあれば対応してもらえます。

以下はエレベーターホールに続く共用廊下ですが、ラウンジとしても使えるおしゃれな造りの空間が広がります。



エントランスホールの奥には、2つ目のオートロックが設置されています。

2つ目のオートロックの奥には、エレベーターホールが用意されています。


ちなみに、マンションのエレベーターは「50戸に対して1基」が理想とされています。
コンフォリア新宿タワーの居住階へ停まるエレベーターは「761戸に対して6基」ということから、時間帯によっては混雑する場合があるでしょう。
ちなみに、共用施設が揃った32階へ直通のエレベーターも用意されています。
共用廊下も上品な仕上がり
エレベーターホールから玄関までは、ホテルライクな内廊下仕様となっています。


クラブイーストサイド
32階の「クラブイーストサイド」には、プールやバーラウンジなどの豪華な施設が揃っていて、有料で利用することができます。
以下は、クラブイーストサイドサイドに用意されている各種施設です。
| クラブラウンジ | プール |
![]() |
![]() |
| フィットネスジム | スパ&リラクゼーション |
![]() |
![]() |
| ゴルフレンジ | シミュレーションゴルフ&カラオケ |
![]() |
![]() |
| テラス | デッキ |
![]() |
![]() |
| 画像引用元:東急 | |
これだけの施設をマンション内で気軽に利用できるので、わざわざ外部の施設を利用する必要もありません。
また、クラブイーストサイドは未成年の利用が不可ですので、大人だけの優雅で快適な時間を過ごすことができます。
③. 室内イメージ
モデルルームは以下のイメージです。(モデルルームですので、実際の内容とは異なる可能性があります。)
![]() |
![]() |
![]() |
![]() |
![]() |
![]() |
![]() |
![]() |
| 画像引用元:東急 | |
キッチンや浴室などの水回り設備も、以下のような洗練された造りです。
| キッチン | 浴室 |
![]() |
![]() |
| 洗面所 | トイレ |
![]() |
![]() |
| 画像引用元:HOME’S | |
室内の素材や雰囲気は、お部屋によって異なります。必ず内見でご確認ください。
まとめ
コンフォリア新宿タワーについて、事故物件を徹底的にリサーチした結果、事故の情報が1件ありました。
| 事故内容 | 時期 | 部屋 |
| 転落死 | 2015年 | 不明 |
弊社は、お客様がご心配であれば、過去の事故の有無や詳細について、契約前に貸主に確認させていただきますので、お気軽にお申し付けください。
改めて、現在募集されている部屋、過去に募集された部屋は以下の通りです。気になる部屋があれば、ご連絡をお待ちしています。
上段:タワー棟|下段:アネックス棟(SOHO区画)
物件アーカイブ 過去に募集された部屋一覧
| 参考賃料 | 48.7万円 〜 49.7万円 |
|---|---|
| ㎡数 | 74.54㎡ |
| 間取り | 2LDK |
| 所在階 | 14階 |
| 物件登録日 | 2026/02/18 |
| 参考賃料 | 55.7万円 〜 56.7万円 |
|---|---|
| ㎡数 | 85.64㎡ |
| 間取り | 2LDK |
| 所在階 | 15階 |
| 物件登録日 | 2026/02/13 |
| 参考賃料 | 27.7万円 〜 28.7万円 |
|---|---|
| ㎡数 | 42.51㎡ |
| 間取り | 1R |
| 所在階 | 11階 |
| 物件登録日 | 2026/02/09 |
| 参考賃料 | 27.4万円 〜 28.4万円 |
|---|---|
| ㎡数 | 41.99㎡ |
| 間取り | 1LDK |
| 所在階 | 5階 |
| 物件登録日 | 2026/02/09 |
| 参考賃料 | 27.5万円 〜 28.5万円 |
|---|---|
| ㎡数 | 41.23㎡ |
| 間取り | 1R |
| 所在階 | 14階 |
| 物件登録日 | 2026/02/09 |
| 参考賃料 | 27.9万円 〜 28.9万円 |
|---|---|
| ㎡数 | 42.84㎡ |
| 間取り | 1LDK |
| 所在階 | 3階 |
| 物件登録日 | 2026/02/09 |
| 参考賃料 | 26.4万円 〜 27.4万円 |
|---|---|
| ㎡数 | 41.23㎡ |
| 間取り | 1R |
| 所在階 | 14階 |
| 物件登録日 | 2026/02/09 |
| 参考賃料 | 38.2万円 〜 39.2万円 |
|---|---|
| ㎡数 | 62.86㎡ |
| 間取り | 1LDK |
| 所在階 | 2階 |
| 物件登録日 | 2026/02/09 |
| 参考賃料 | 53.1万円 〜 54.1万円 |
|---|---|
| ㎡数 | 85.64㎡ |
| 間取り | 2LDK |
| 所在階 | 16階 |
| 物件登録日 | 2026/02/09 |
| 参考賃料 | 52.7万円 〜 53.7万円 |
|---|---|
| ㎡数 | 85.64㎡ |
| 間取り | 2LDK |
| 所在階 | 8階 |
| 物件登録日 | 2026/02/09 |
| 参考賃料 | 65.8万円 〜 66.8万円 |
|---|---|
| ㎡数 | 100.35㎡ |
| 間取り | 2LDK |
| 所在階 | 20階 |
| 物件登録日 | 2026/02/09 |
| 参考賃料 | 48.0万円 〜 49.0万円 |
|---|---|
| ㎡数 | 73.72㎡ |
| 間取り | 2LDK |
| 所在階 | 6階 |
| 物件登録日 | 2026/02/07 |
| 参考賃料 | 39.4万円 〜 40.4万円 |
|---|---|
| ㎡数 | 62.86㎡ |
| 間取り | 1LDK |
| 所在階 | 3階 |
| 物件登録日 | 2026/02/06 |
| 参考賃料 | 48.1万円 〜 49.1万円 |
|---|---|
| ㎡数 | 73.72㎡ |
| 間取り | 1LDK |
| 所在階 | 21階 |
| 物件登録日 | 2026/01/28 |
| 参考賃料 | 27.1万円 〜 28.1万円 |
|---|---|
| ㎡数 | 41.23㎡ |
| 間取り | 1R |
| 所在階 | 13階 |
| 物件登録日 | 2026/01/28 |
| 参考賃料 | 56.0万円 〜 57.0万円 |
|---|---|
| ㎡数 | 86.03㎡ |
| 間取り | 1LDK |
| 所在階 | 28階 |
| 物件登録日 | 2026/01/28 |
| 参考賃料 | 39.8万円 〜 40.8万円 |
|---|---|
| ㎡数 | 62.86㎡ |
| 間取り | 1LDK |
| 所在階 | 14階 |
| 物件登録日 | 2026/01/28 |
| 参考賃料 | 48.8万円 〜 49.8万円 |
|---|---|
| ㎡数 | 74.54㎡ |
| 間取り | 1LDK |
| 所在階 | 25階 |
| 物件登録日 | 2026/01/28 |
| 参考賃料 | 27.9万円 〜 28.9万円 |
|---|---|
| ㎡数 | 42.84㎡ |
| 間取り | 1LDK |
| 所在階 | 6階 |
| 物件登録日 | 2026/01/28 |





















