アクロス目黒タワーについて下記8つの方法で事故物件(飛び降り、転落、自殺、火災、孤独死、不審死、事件)を徹底的にリサーチしたところ、事故の情報が1件ありました。
- 事故物件検索サイト(https://www.oshimaland.co.jp/)
- Youtube
- Google検索
- マンション掲示板(https://www.e-mansion.co.jp)
- 5ちゃんねる(https://5ch.net)
- その他データベース
事故の詳細は以下の通りとなっています。
| 事故内容 | 時期 | 部屋 |
| 孤高死 | 令和4年 | 1604 |
直近の事故に関しては入居者に伝える義務がありますから、気になる方は不動産会社の担当者に確認しましょう。
なお、過去に事故などがあったお部屋について、不動産会社や大家さんには次の入居者様へお伝えする義務(告知義務)があります。しかし、その後に一人でも入居者がいた場合は、告知義務の対象外となる点には注意が必要です。
お部屋のことで気になる点があれば、ご遠慮なくご質問ください。お客様が安心して選べるよう、私たちが責任を持ってお調べします。
また、アクロス目黒タワーで募集されていた部屋は以下のとおりです。新しい順に並んでいますが、詳しい募集時期は「物件登録日」をご覧ください。
物件アーカイブ 過去に募集された部屋一覧
| 参考賃料 | 22.3万円 〜 23.3万円 |
|---|---|
| ㎡数 | 40.11㎡ |
| 間取り | 1DK |
| 所在階 | 7階 |
| 物件登録日 | 2026/02/09 |
| 参考賃料 | 43.0万円 〜 44.0万円 |
|---|---|
| ㎡数 | 73.62㎡ |
| 間取り | 3LDK |
| 所在階 | 7階 |
| 物件登録日 | 2026/01/08 |
| 参考賃料 | 39.0万円 〜 40.0万円 |
|---|---|
| ㎡数 | 63.41㎡ |
| 間取り | 2LDK |
| 所在階 | 15階 |
| 物件登録日 | 2026/01/06 |
| 参考賃料 | 28.8万円 〜 29.8万円 |
|---|---|
| ㎡数 | 47.09㎡ |
| 間取り | 1SLDK |
| 所在階 | 5階 |
| 物件登録日 | 2025/12/18 |
| 参考賃料 | 39.0万円 〜 40.0万円 |
|---|---|
| ㎡数 | 63.41㎡ |
| 間取り | 2LDK |
| 所在階 | 15階 |
| 物件登録日 | 2025/12/11 |
| 参考賃料 | 23.8万円 〜 24.8万円 |
|---|---|
| ㎡数 | 40.11㎡ |
| 間取り | 1DK |
| 所在階 | 7階 |
| 物件登録日 | 2025/11/28 |
| 参考賃料 | 29.0万円 〜 30.0万円 |
|---|---|
| ㎡数 | 54.04㎡ |
| 間取り | 1LDK |
| 所在階 | 8階 |
| 物件登録日 | 2025/11/28 |
| 参考賃料 | 36.0万円 〜 37.0万円 |
|---|---|
| ㎡数 | 63.41㎡ |
| 間取り | 2LDK |
| 所在階 | 10階 |
| 物件登録日 | 2025/11/18 |
| 参考賃料 | 43.0万円 〜 44.0万円 |
|---|---|
| ㎡数 | 73.62㎡ |
| 間取り | 3LDK |
| 所在階 | 7階 |
| 物件登録日 | 2025/10/29 |
| 参考賃料 | 28.0万円 〜 29.0万円 |
|---|---|
| ㎡数 | 54.04㎡ |
| 間取り | 1LDK |
| 所在階 | 9階 |
| 物件登録日 | 2025/10/22 |
| 参考賃料 | 28.0万円 〜 29.0万円 |
|---|---|
| ㎡数 | 54.04㎡ |
| 間取り | 1LDK |
| 所在階 | 8階 |
| 物件登録日 | 2025/10/22 |
| 参考賃料 | 36.0万円 〜 37.0万円 |
|---|---|
| ㎡数 | 63.41㎡ |
| 間取り | 2LDK |
| 所在階 | 10階 |
| 物件登録日 | 2025/10/16 |
| 参考賃料 | 43.0万円 〜 44.0万円 |
|---|---|
| ㎡数 | 73.62㎡ |
| 間取り | 3LDK |
| 所在階 | 7階 |
| 物件登録日 | 2025/10/16 |
| 参考賃料 | 43.0万円 〜 44.0万円 |
|---|---|
| ㎡数 | 73.62㎡ |
| 間取り | 3LDK |
| 所在階 | 7階 |
| 物件登録日 | 2025/10/15 |
| 参考賃料 | 36.0万円 〜 37.0万円 |
|---|---|
| ㎡数 | 63.41㎡ |
| 間取り | 2LDK |
| 所在階 | 10階 |
| 物件登録日 | 2025/10/15 |
| 参考賃料 | 37.0万円 〜 38.0万円 |
|---|---|
| ㎡数 | 67.21㎡ |
| 間取り | 2SLDK |
| 所在階 | 19階 |
| 物件登録日 | 2025/09/18 |
| 参考賃料 | 37.0万円 〜 38.0万円 |
|---|---|
| ㎡数 | 67.21㎡ |
| 間取り | 2SLDK |
| 所在階 | 19階 |
| 物件登録日 | 2025/09/16 |
| 参考賃料 | 15.8万円 〜 16.8万円 |
|---|---|
| ㎡数 | 30.67㎡ |
| 間取り | 1R |
| 所在階 | 10階 |
| 物件登録日 | 2025/09/11 |
| 参考賃料 | 37.0万円 〜 38.0万円 |
|---|---|
| ㎡数 | 67.21㎡ |
| 間取り | 2SLDK |
| 所在階 | 19階 |
| 物件登録日 | 2025/08/29 |
| 参考賃料 | 33.0万円 〜 34.0万円 |
|---|---|
| ㎡数 | 63.41㎡ |
| 間取り | 2LDK |
| 所在階 | 17階 |
| 物件登録日 | 2025/08/05 |
| 参考賃料 | 15.6万円 〜 16.6万円 |
|---|---|
| ㎡数 | 30.91㎡ |
| 間取り | 1R |
| 所在階 | 17階 |
| 物件登録日 | 2025/08/01 |
| 参考賃料 | 15.0万円 〜 16.0万円 |
|---|---|
| ㎡数 | 30.91㎡ |
| 間取り | 1R |
| 所在階 | 11階 |
| 物件登録日 | 2025/07/11 |
| 参考賃料 | 26.0万円 〜 27.0万円 |
|---|---|
| ㎡数 | 51.32㎡ |
| 間取り | 1LDK |
| 所在階 | 14階 |
| 物件登録日 | 2025/06/05 |
| 参考賃料 | 14.9万円 〜 15.9万円 |
|---|---|
| ㎡数 | 30.67㎡ |
| 間取り | 1R |
| 所在階 | 5階 |
| 物件登録日 | 2025/06/05 |
| 参考賃料 | 15.3万円 〜 16.3万円 |
|---|---|
| ㎡数 | 30.91㎡ |
| 間取り | 1R |
| 所在階 | 14階 |
| 物件登録日 | 2025/06/05 |
| 参考賃料 | 15.8万円 〜 16.8万円 |
|---|---|
| ㎡数 | 31.59㎡ |
| 間取り | 1R |
| 所在階 | 18階 |
| 物件登録日 | 2025/06/05 |
| 参考賃料 | 15.3万円 〜 16.3万円 |
|---|---|
| ㎡数 | 30.91㎡ |
| 間取り | 1R |
| 所在階 | 14階 |
| 物件登録日 | 2025/05/08 |
| 参考賃料 | 15.3万円 〜 16.3万円 |
|---|---|
| ㎡数 | 30.67㎡ |
| 間取り | 1R |
| 所在階 | 11階 |
| 物件登録日 | 2025/05/08 |
| 参考賃料 | 15.3万円 〜 16.3万円 |
|---|---|
| ㎡数 | 30.67㎡ |
| 間取り | 1R |
| 所在階 | 11階 |
| 物件登録日 | 2025/04/17 |
| 参考賃料 | 28.5万円 〜 29.5万円 |
|---|---|
| ㎡数 | 54.04㎡ |
| 間取り | 1LDK |
| 所在階 | 15階 |
| 物件登録日 | 2025/04/16 |
| 参考賃料 | 15.8万円 〜 16.8万円 |
|---|---|
| ㎡数 | 30.67㎡ |
| 間取り | 1R |
| 所在階 | 19階 |
| 物件登録日 | 2025/04/01 |
| 参考賃料 | 28.5万円 〜 29.5万円 |
|---|---|
| ㎡数 | 54.04㎡ |
| 間取り | 1LDK |
| 所在階 | 15階 |
| 物件登録日 | 2025/03/21 |
| 参考賃料 | 15.8万円 〜 16.8万円 |
|---|---|
| ㎡数 | 30.67㎡ |
| 間取り | 1R |
| 所在階 | 19階 |
| 物件登録日 | 2025/03/17 |
| 参考賃料 | 32.5万円 〜 33.5万円 |
|---|---|
| ㎡数 | 63.41㎡ |
| 間取り | 2LDK |
| 所在階 | 14階 |
| 物件登録日 | 2025/01/29 |
| 参考賃料 | 34.0万円 〜 35.0万円 |
|---|---|
| ㎡数 | 67.21㎡ |
| 間取り | 2SLDK |
| 所在階 | 19階 |
| 物件登録日 | 2025/01/29 |
| 参考賃料 | 28.5万円 〜 29.5万円 |
|---|---|
| ㎡数 | 54.04㎡ |
| 間取り | 1LDK |
| 所在階 | 16階 |
| 物件登録日 | 2024/12/12 |
| 参考賃料 | 28.0万円 〜 29.0万円 |
|---|---|
| ㎡数 | 54.04㎡ |
| 間取り | 1LDK |
| 所在階 | 10階 |
| 物件登録日 | 2024/12/12 |
| 参考賃料 | 16.3万円 〜 17.3万円 |
|---|---|
| ㎡数 | 30.67㎡ |
| 間取り | 1R |
| 所在階 | 15階 |
| 物件登録日 | 2024/11/19 |
| 参考賃料 | 34.0万円 〜 35.0万円 |
|---|---|
| ㎡数 | 65.76㎡ |
| 間取り | 2LDK |
| 所在階 | 20階 |
| 物件登録日 | 2024/08/23 |
| 参考賃料 | 36.0万円 〜 37.0万円 |
|---|---|
| ㎡数 | 73.62㎡ |
| 間取り | 3LDK |
| 所在階 | 12階 |
| 物件登録日 | 2024/08/23 |
| 参考賃料 | 14.7万円 〜 15.5万円 |
|---|---|
| ㎡数 | 30.91㎡ |
| 間取り | 1R |
| 所在階 | 5階 |
| 物件登録日 | 2024/07/17 |
| 参考賃料 | 32.5万円 〜 33.5万円 |
|---|---|
| ㎡数 | 63.41㎡ |
| 間取り | 2LDK |
| 所在階 | 16階 |
| 物件登録日 | 2024/04/16 |
| 参考賃料 | 32.3万円 〜 33.3万円 |
|---|---|
| ㎡数 | 63.41㎡ |
| 間取り | 2LDK |
| 所在階 | 18階 |
| 物件登録日 | 2024/04/16 |
| 参考賃料 | 19.0万円 〜 19.5万円 |
|---|---|
| ㎡数 | 39.63㎡ |
| 間取り | 1DK |
| 所在階 | 6階 |
| 物件登録日 | 2024/04/04 |
| 参考賃料 | 25.5万円 〜 26.5万円 |
|---|---|
| ㎡数 | 51.32㎡ |
| 間取り | 1LDK |
| 所在階 | 14階 |
| 物件登録日 | 2024/02/13 |
| 参考賃料 | 36.5万円 〜 37.5万円 |
|---|---|
| ㎡数 | 73.62㎡ |
| 間取り | 3LDK |
| 所在階 | 17階 |
| 物件登録日 | 2023/11/30 |
| 参考賃料 | 24.4万円 〜 25.4万円 |
|---|---|
| ㎡数 | 54.04㎡ |
| 間取り | 1LDK |
| 所在階 | 8階 |
| 物件登録日 | 2023/11/16 |
| 参考賃料 | 32.0万円 〜 33.0万円 |
|---|---|
| ㎡数 | 67.21㎡ |
| 間取り | 2LDK |
| 所在階 | 6階 |
| 物件登録日 | 2023/10/04 |
| 参考賃料 | 36.0万円 〜 37.0万円 |
|---|---|
| ㎡数 | 68.95㎡ |
| 間取り | 2 |
| 所在階 | 22階 |
| 物件登録日 | 2023/04/27 |
弊社の仲介手数料は【無料】または【半額+tax】です。お客様の費用負担を少しでも軽くできるよう、全力でお部屋探しをお手伝いします。
また、事故情報以外に「アクロス目黒タワー」についてよくあるご質問をまとめました。
アクロス目黒タワーについて、事故物件以外でよくある質問と回答
アクロス目黒タワーについて、よくあるご質問をまとめました。
マンションの設備について
周辺の環境に関して
- Q5. 周辺の治安は良いですか?
- Q6. 電車などの交通アクセスはどのようなものがありますか?
- Q7. 周辺にコンビニやスーパーはありますか?
- Q8. 周辺にどんな飲食店がありますか?
- Q9. 学区域の小・中学校はどちらですか?
- Q10. 周辺に保育園はありますか?
災害リスクについて
契約について
Q1. 駐車場は用意されていますか?
はい、アクロス目黒タワーには駐車場が用意されています。
空き状況にもよりますが、機械式パーキングが利用可能で、大きさに合わせて「49,500円(税込)/月」が賃料の目安です。
駐車場のサイズは以下の通りです。お借りになる際は、車検証でサイズを必ずご確認ください。
- 全長:~5,300mm
- 全幅:~2,050mm
- 全高:~1,550mm
- 重量:~2,300kg
以下は機械式駐車場の写真です。
画像引用元:SUUMO
駐車場について
アクロス目黒タワーには駐車場があり、賃料の目安は下記の通りです。
- 駐車場:500円/月
この他、バイク置き場もございます。
Q2. ペットの飼育はできますか?
はい、アクロス目黒タワーは、敷金を1ヶ月分多く預けることで、下記のペットを合計2匹まで飼うことができます。
- 小型犬
- 猫
なお、ペットの種類に関しては貸主の承諾が必要なので、事前に不動産会社の担当者に確認しましょう。
動物病院やペットサロンも充実
マンションから徒歩2分の場所に「朝倉動物病院」がありますので、ペットの体調が優れないときでも安心です。
そして、歩いて2分の場所にホテルやトリミングのサービスを提供している「ペットホテルTORIMASA」というお店があるので、旅行や出張のとき便利に利用できます。
Q3. セキュリティ面はどうですか?
アクロス目黒タワーには、管理員が24時間常駐し、住まう方々の日々を見守ります。『いざという時』の迅速な対応はもちろん、防犯面でも頼れる存在がいる暮らしは、何物にも代えがたい安心感につながります。
また、エントランスにもインター付きのオートロックが設置してあるので、部外者に侵入されるリスクも低いです。
さらに、マンション内の各所に防犯カメラが設置してあるので、機械的なセキュリティも整っています。
Q4. コンシェルジュはいますか?何をしてくれますか?
はい、アクロス目黒タワーには専用のコンシェルジュがいます。
なお、日中であれば来訪者の受付や宅急便の発送代行をはじめとした、下記のコンシェルジュサービスを提供しています。
- インフォメーションサービス
- ゲスト対応
- 宅配便発送サービス
- クリーニングの受付
- 共用施設の利用受付
- 粗大ゴミの収集手続き
- タクシー・ハイヤーの配車手配
- メッセージお預かり
- 各種レンタル品の貸し出し
Q5. 周辺の治安は良いですか?
いいえ、マンション周辺の治安はあまり良くありません。
以下のマップは、2021年の1年間を通して、犯罪(自転車盗難なども含む)が合計何件発生したかを示したものです。
引用:警視庁犯罪情報マップ
ご覧の通りマンション周辺は比較的犯罪が多めのオレンジ色に分類されていることから、23区内でも治安が良いエリアとは言えません。
ですから、女性の一人暮らしやお子さまがいるファミリー層は注意しましょう。
ただ、マンション周辺には警察署や複数の交番があるので、緊急時の対応は早いです。
Q6. 電車などの交通アクセスはどのようなものがありますか?
アクロス目黒タワー周辺の主要な交通アクセスを以下の移動手段に分けて紹介します。
1.電車
アクロス目黒タワーの周辺にある2つの駅からは、下記の4路線を利用することができます。
| 駅名 | 分数 | 路線 |
| 目黒駅 | 5分 |
|
| 白金台駅 | 8分 |
|
どれも都心の中心地を走る路線なので、都心内の移動で不便に感じることが少ない立地と言えるでしょう。
2.タクシー・車
アクロス目黒タワーはタクシーを使うときも便利です。
都心の主要エリアからマンションまで、タクシーをご利用いただいた場合の目安時間と料金は以下の通りです。
| エリア | 通常料金(深夜料金) | 時間 |
| 品川駅 | 1,500円(1,800円) | 約10~20分 |
| 渋谷駅 | 1,700円(2,000円) | 約10~20分 |
| 六本木駅 | 1,900円(2,200円) | 約20分 |
| 銀座駅 | 3,100円(3,700円) | 約20~30分 |
| 新宿駅 | 3,600円(4,300円) | 約30分 |
| 東京駅 | 3,700円(4,400円) | 約30分 |
また、近くに首都高の「目黒IC」があるので、車移動が多い方にも便利な立地です。
マンションの駐車場からわずか1分で首都高速道路に乗れるため、下道の渋滞に巻き込まれる心配もありません。
Q7. 周辺にコンビニやスーパーはありますか?
はい、マンション周辺にはコンビニやスーパーが揃っているので、日常的な買い物が便利です。
引用:Google Map
まず、コンビニは徒歩2分圏内(約160m)に以下の2店舗がございます。
- ファミリーマート 自然教育園前店(約98m、徒歩1分)
- ファミリーマート 上大崎三丁目店(約170m、徒歩2分)
そして、スーパーは徒歩2分の場所に「まいばすけっと」があるので、生鮮食品の買い物が便利です。
高級スーパーも徒歩圏内
マンションから歩いて6分圏内(約480m)に、以下3つの高級スーパーが揃っています。
- プレッセ(約400m、徒歩5分)
- 成城石井(約500m、徒歩6分)
- ザ ガーデン自由が丘(約500m、徒歩6分)
どのスーパーも、一般的なスーパーにはない、輸入ワインやチーズなどの製品が揃っています。
薬局・ドラッグストアも徒歩圏内
マンションから歩いて5分圏内(約400m)には、以下の調剤薬局やドラッグストアがあるため、薬の買い物も便利です。
- 日本調剤薬局(約120m、徒歩2分)
- ウエルシア 目黒上大崎店(約220m、徒歩3分)
- ウエルシア 目黒上大崎2号店(約230m、徒歩3分)
- さくら薬局(約190m、徒歩2分)
- 高木薬局(約300m、徒歩4分)
- ゆりの木薬局(約350m、徒歩5分)
- ナチュラルローソン クオール薬局(約350m、徒歩5分)
- 葵薬局(約450m、徒歩5分)
Q8. 周辺にどんな飲食店がありますか?
マンション周辺には、以下のような飲食店が揃っています。
- カフェ
- ベーカリー
- イタリアンレストラン
- フレンチレストラン
- スペインバル
- 中華料理店
- 韓国料理
- タイ料理
- 和食店
- そば・うどん店
- 寿司屋
- 天ぷら
- 焼き鳥屋
- 焼肉・鉄板焼き
- ダイニングバー
- ラーメン屋
- カレー屋
- ファストフード店
これだけ多くのお店を利用できるので、外食の予定で困ることはないと言えるでしょう。
マンション周辺にある、その他のグルメ情報
その他、マンション周辺には、以下のようにチェーンの飲食店も豊富にあります。
|
・ファミレス |
|
|
・牛丼・蕎麦など |
|
|
・カフェ |
|
Q9. 学区域の小・中学校はどちらですか?
アクロス目黒タワーの学区域は以下の通りです。(※学区域は変更になる場合があります。最新の情報は、各区教育委員会のウェブサイト等でご確認ください。)
| 小学校 | 中学校 |
| 第三日野小学校 | 日野学園 |
| 徒歩6分 | 徒歩23分 |
学区域の中学校まで距離があるため、お子さまの通学には不便を感じるかもしれません。
以上のことから、お子さまがいらっしゃる家庭は、通学面も含めて検討するようにしましょう。
小学校について
品川区の小学校は、住んでる地域によって入学すべき小学校が「指定校(住所地の学校)」として決まっています。
ただし、以下のイメージ図のように「指定校(住所地の学校)」と隣り合った小学校も希望できる「学校選択制度」も利用可能です。
画像引用元:品川区
Q10. 周辺に保育園はありますか?
はい、保育園は歩いて5分程の場所に「花房山目黒駅前保育園333」がありますので、入園できれば共働きで忙しい家庭の負担も減るでしょう。
この他、マンション周辺には以下のような保育園があるので、選択肢は比較的多いと言えるでしょう。
引用:Google Map
Q11. マンションは地震に強い構造ですか?
はい、アクロス目黒タワーは、地震に強い「制振構造」のタワーマンションです。
制震構造は、建物に組み込まれた「制震装置」が地震のエネルギーを吸収することで、大きな揺れが来た際にも建物の被害を軽減できる仕組みです。
また、タワーマンションに採用される耐震構造は主に3つありますが、中でも制震構造は非常にバランスの取れた構造と言えます。
| 免震構造 | 制震構造 | 耐震構造 | |
| 地震の揺れ | ほぼ感じない | 軽減 | 揺れやすい |
| 建物の被害 | 大幅に軽減 | 軽減 | 受けやすい |
| 家具に被害 | 大幅に軽減 | 軽減 | 受けやすい |
| 強風による揺れ | ゆっくりと長く揺れる | ほぼ感じない | ほぼ感じない |
高層建築物でも広く採用されている
制震構造はタワーマンションだけでなく、高層建築物にも広く採用されている信頼度の高い構造です。
以下は、制震構造を採用している有名な高層建築物です。
| 東京都庁 |
![]() |
| 東京スカイツリー |
![]() |
これらの理由から、「タワーマンションに住みたいけれど、地震が心配」という方にも、積極的にご検討いただきたい物件です。
Q12. 洪水などによる浸水のリスクはありますか?
いいえ、ハザードマップ上、最大規模の氾濫時でも浸水リスクはないとされており、安心してお住まいいただけます。
Q13. 保証会社の利用は必須ですか?
はい、アクロス目黒タワーに入居するには、連帯保証人の有無に関係なく保証会社の利用が必須で、下記の費用がかかります。
- 初回保証料:総賃料の50%/契約時
なお、利用する保証会社は「オリコフォレントインシュア」という会社になります。
Q14. 審査難易度はどのようになっていますか?
結論、アクロス目黒タワーの審査難易度は普通です。
上述した保証会社の審査が通れば大抵の場合、貸主の審査も通るケースが多いです。
ただし、誰でも簡単に通るわけではないので、最低でも下記の条件はクリアしておきましょう。
- 年収:家賃の36倍
- 勤続年数:1年以上
- 雇用形態:正社員
Q15. 契約時にかかる諸費用はありますか?
はい、契約する部屋によって金額は異なりますが、契約時には下記の費用がかかるケースが多いです。
| 火災保険料 | 鍵交換費用 |
| 約20,000円※ | 約19,800円 |
| ※入居人数や補償対象とする家財の金額によりプラン料金の変動があります。 | |
よくある質問とその回答は以上です。
ここから、マンションをよりイメージした上で契約したい方のために、画像でマンション内の内装や設備を紹介します。
豊富な画像でわかる! アクロス目黒タワーのエントランス・室内イメージ
アクロス目黒タワーの室内や共用スペースはどうなっているのか、契約前により具体的にイメージいただくために、以下の3つに分けて画像で紹介します。
①. エントランス
アクロス目黒タワーのエントランスは、重厚感のある佇まいとなっております。

エントランスには、以下のようにオートロックが導入されているので、セキュリティ面も安心です。
画像引用元:SUUMO
②. 共用部
オートロックを通過した先のエントランスホールには、コンシェルジュが駐在するフロントデスクがあります。

エントランスホールの奥には、ソファーセットが用意されているので待ち合わせ場所などにご活用いただけます。

また、読者や作業などにご活用いただけるスペースもございます。

エントランスホールの奥には、2基のエレベーターが用意されています。
画像引用元:SUUMO
ちなみに、タワーマンションのエレベーターは「50戸に対して1基」が理想とされています。
アクロス目黒タワーのエレベーターは「139戸に対して2基」ですので、時間帯によっては混雑する場合があるでしょう。
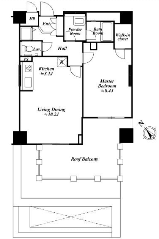
③. 室内イメージ
室内は以下のイメージです。(過去に募集された部屋なので、実際の内容とは異なる可能性があります。)
![]() |
![]() |
![]() |
![]() |
![]() |
![]() |
![]() |
![]() |
![]() |
![]() |
![]() |
![]() |
| 画像引用元:SUUMO|HOME’S | |
キッチンなどの水回り設備も、以下のように洗練されたデザインです。
| キッチン | |
![]() |
![]() |
| トイレ | |
![]() |
![]() |
| 洗面台 | |
![]() |
|
| 浴室 | |
![]() |
|
| 画像引用元:SUUMO | |
室内の素材や雰囲気は、お部屋によって異なります。必ず内見でご確認ください。
まとめ
アクロス目黒タワーについて、事故物件を徹底的にリサーチした結果、事故の情報が1件ありました。
| 事故内容 | 時期 | 部屋 |
| 孤高死 | 令和4年 | 1604 |
弊社は、お客様がご心配であれば、過去の事故の有無や詳細について、契約前に貸主に確認させていただきますので、お気軽にお申し付けください。
改めて、現在募集されている部屋、過去に募集された部屋は以下の通りです。気になる部屋があれば、ご連絡をお待ちしています。
物件アーカイブ 過去に募集された部屋一覧
| 参考賃料 | 22.3万円 〜 23.3万円 |
|---|---|
| ㎡数 | 40.11㎡ |
| 間取り | 1DK |
| 所在階 | 7階 |
| 物件登録日 | 2026/02/09 |
| 参考賃料 | 43.0万円 〜 44.0万円 |
|---|---|
| ㎡数 | 73.62㎡ |
| 間取り | 3LDK |
| 所在階 | 7階 |
| 物件登録日 | 2026/01/08 |
| 参考賃料 | 39.0万円 〜 40.0万円 |
|---|---|
| ㎡数 | 63.41㎡ |
| 間取り | 2LDK |
| 所在階 | 15階 |
| 物件登録日 | 2026/01/06 |
| 参考賃料 | 28.8万円 〜 29.8万円 |
|---|---|
| ㎡数 | 47.09㎡ |
| 間取り | 1SLDK |
| 所在階 | 5階 |
| 物件登録日 | 2025/12/18 |
| 参考賃料 | 39.0万円 〜 40.0万円 |
|---|---|
| ㎡数 | 63.41㎡ |
| 間取り | 2LDK |
| 所在階 | 15階 |
| 物件登録日 | 2025/12/11 |
| 参考賃料 | 23.8万円 〜 24.8万円 |
|---|---|
| ㎡数 | 40.11㎡ |
| 間取り | 1DK |
| 所在階 | 7階 |
| 物件登録日 | 2025/11/28 |
| 参考賃料 | 29.0万円 〜 30.0万円 |
|---|---|
| ㎡数 | 54.04㎡ |
| 間取り | 1LDK |
| 所在階 | 8階 |
| 物件登録日 | 2025/11/28 |
| 参考賃料 | 36.0万円 〜 37.0万円 |
|---|---|
| ㎡数 | 63.41㎡ |
| 間取り | 2LDK |
| 所在階 | 10階 |
| 物件登録日 | 2025/11/18 |
| 参考賃料 | 43.0万円 〜 44.0万円 |
|---|---|
| ㎡数 | 73.62㎡ |
| 間取り | 3LDK |
| 所在階 | 7階 |
| 物件登録日 | 2025/10/29 |
| 参考賃料 | 28.0万円 〜 29.0万円 |
|---|---|
| ㎡数 | 54.04㎡ |
| 間取り | 1LDK |
| 所在階 | 9階 |
| 物件登録日 | 2025/10/22 |
| 参考賃料 | 28.0万円 〜 29.0万円 |
|---|---|
| ㎡数 | 54.04㎡ |
| 間取り | 1LDK |
| 所在階 | 8階 |
| 物件登録日 | 2025/10/22 |
| 参考賃料 | 36.0万円 〜 37.0万円 |
|---|---|
| ㎡数 | 63.41㎡ |
| 間取り | 2LDK |
| 所在階 | 10階 |
| 物件登録日 | 2025/10/16 |
| 参考賃料 | 43.0万円 〜 44.0万円 |
|---|---|
| ㎡数 | 73.62㎡ |
| 間取り | 3LDK |
| 所在階 | 7階 |
| 物件登録日 | 2025/10/16 |
| 参考賃料 | 43.0万円 〜 44.0万円 |
|---|---|
| ㎡数 | 73.62㎡ |
| 間取り | 3LDK |
| 所在階 | 7階 |
| 物件登録日 | 2025/10/15 |
| 参考賃料 | 36.0万円 〜 37.0万円 |
|---|---|
| ㎡数 | 63.41㎡ |
| 間取り | 2LDK |
| 所在階 | 10階 |
| 物件登録日 | 2025/10/15 |
| 参考賃料 | 37.0万円 〜 38.0万円 |
|---|---|
| ㎡数 | 67.21㎡ |
| 間取り | 2SLDK |
| 所在階 | 19階 |
| 物件登録日 | 2025/09/18 |
| 参考賃料 | 37.0万円 〜 38.0万円 |
|---|---|
| ㎡数 | 67.21㎡ |
| 間取り | 2SLDK |
| 所在階 | 19階 |
| 物件登録日 | 2025/09/16 |
| 参考賃料 | 15.8万円 〜 16.8万円 |
|---|---|
| ㎡数 | 30.67㎡ |
| 間取り | 1R |
| 所在階 | 10階 |
| 物件登録日 | 2025/09/11 |
| 参考賃料 | 37.0万円 〜 38.0万円 |
|---|---|
| ㎡数 | 67.21㎡ |
| 間取り | 2SLDK |
| 所在階 | 19階 |
| 物件登録日 | 2025/08/29 |
| 参考賃料 | 33.0万円 〜 34.0万円 |
|---|---|
| ㎡数 | 63.41㎡ |
| 間取り | 2LDK |
| 所在階 | 17階 |
| 物件登録日 | 2025/08/05 |
| 参考賃料 | 15.6万円 〜 16.6万円 |
|---|---|
| ㎡数 | 30.91㎡ |
| 間取り | 1R |
| 所在階 | 17階 |
| 物件登録日 | 2025/08/01 |
| 参考賃料 | 15.0万円 〜 16.0万円 |
|---|---|
| ㎡数 | 30.91㎡ |
| 間取り | 1R |
| 所在階 | 11階 |
| 物件登録日 | 2025/07/11 |
| 参考賃料 | 26.0万円 〜 27.0万円 |
|---|---|
| ㎡数 | 51.32㎡ |
| 間取り | 1LDK |
| 所在階 | 14階 |
| 物件登録日 | 2025/06/05 |
| 参考賃料 | 14.9万円 〜 15.9万円 |
|---|---|
| ㎡数 | 30.67㎡ |
| 間取り | 1R |
| 所在階 | 5階 |
| 物件登録日 | 2025/06/05 |
| 参考賃料 | 15.3万円 〜 16.3万円 |
|---|---|
| ㎡数 | 30.91㎡ |
| 間取り | 1R |
| 所在階 | 14階 |
| 物件登録日 | 2025/06/05 |
| 参考賃料 | 15.8万円 〜 16.8万円 |
|---|---|
| ㎡数 | 31.59㎡ |
| 間取り | 1R |
| 所在階 | 18階 |
| 物件登録日 | 2025/06/05 |
| 参考賃料 | 15.3万円 〜 16.3万円 |
|---|---|
| ㎡数 | 30.91㎡ |
| 間取り | 1R |
| 所在階 | 14階 |
| 物件登録日 | 2025/05/08 |
| 参考賃料 | 15.3万円 〜 16.3万円 |
|---|---|
| ㎡数 | 30.67㎡ |
| 間取り | 1R |
| 所在階 | 11階 |
| 物件登録日 | 2025/05/08 |
| 参考賃料 | 15.3万円 〜 16.3万円 |
|---|---|
| ㎡数 | 30.67㎡ |
| 間取り | 1R |
| 所在階 | 11階 |
| 物件登録日 | 2025/04/17 |




















