「パークホームズ日本橋本町はどんなマンション?」「選ぶべき賃貸物件?」など、パークホームズ日本橋本町の賃貸を検討していませんか?
私たちはこれまで数多くの賃貸物件をご紹介してきましたが、パークホームズ日本橋本町は、特に以下のようなお客様に自信を持っておすすめできる物件です。
- 人気の高級ブランドマンションに住みたい
- 立地や利便性を重視している
- セキュリティが厳重なマンションがいい
- ペットと一緒に暮らしたい
このページでは、この結論に至った背景や、知っておいていただきたい注意点を以下の流れで解説していきます。
この記事を読めば、パークホームズ日本橋本町がどのような物件で、他の賃貸マンションと何が違うのかを深く理解できます。その結果、検討している物件があなたにとって最適な住まいなのか、自信を持って判断できるようになるでしょう。
まずはじめに、パークホームズ日本橋本町の過去に募集された部屋は以下の通りです。
物件アーカイブ 過去に募集された部屋一覧
| 参考賃料 | 31.0万円 〜 33.0万円 |
|---|---|
| ㎡数 | 63.63㎡ |
| 間取り | 2LDK |
| 所在階 | 9階 |
| 物件登録日 | 2022/11/28 |
| 参考賃料 | 38.5万円 〜 39.5万円 |
|---|---|
| ㎡数 | 65.9㎡ |
| 間取り | 2LDK |
| 所在階 | 5階 |
| 物件登録日 | 2022/10/28 |
| 参考賃料 | 40.0万円 〜 41.0万円 |
|---|---|
| ㎡数 | 80.77㎡ |
| 間取り | 3LDK |
| 所在階 | 2階 |
| 物件登録日 | 2022/10/26 |
| 参考賃料 | 30.0万円 〜 32.0万円 |
|---|---|
| ㎡数 | 56.93㎡ |
| 間取り | 2LDK |
| 所在階 | 10階 |
| 物件登録日 | 2022/09/12 |
1. パークホームズ日本橋本町の4つの特徴
パークホームズ日本橋本町には、以下の特徴があります。
その分、賃料は高めですが、これらに魅力を感じるなら、ぜひ前向きにご検討ください。
1-1. 高級マンションブランド「PARK HOMES」シリーズの1つ
パークホームズ日本橋本町は、高級ブランドマンションとして有名な「PARK HOMES」シリーズの1つです。
中でも都心にある「PARK HOMES」は、中古でも1部屋の価格が1億円以上で販売されるほど、高いグレードを誇ります。
また、PARK HOMESは外観のデザイン性も高く、一見するだけでグレードの高さが伝わってくる物件ばかりです。
以下の写真は、都心にあるパークホームズシリーズの外観デザインです。
| パークホームズ文京小石川 ザ レジデンス. |
![]() |
| パークホームズ南麻布 ザ レジデンス |
![]() |
| パークホームズ四谷 ザ レジデンス. |
![]() |
| パークホームズ目白 ザ フォレスト. |
![]() |
| 画像引用元:三井不動産 |
分譲賃貸として貸し出される
パークホームズ日本橋本町は、オーナー様が購入されたお部屋を賃貸として貸し出す、いわゆる分譲賃貸マンションです。
つまり、数億円もするグレードの高い部屋を借りることもできるので、人気の部屋は季節を問わず常に早い者勝ちとなります。
ちなみに、過去に募集されたお部屋の賃料を間取りごとにまとめると、以下のようになります。
| 2LDK | 30~37万円 |
| 3LDK | 40万円 |
1-2. 10駅10路線を利用できる便利な立地
パークホームズ日本橋本町の周辺にある10つの駅からは、下記の10路線を利用することができます。
| 駅名 | 分数 | 路線 |
| 小伝馬町駅 | 3分 |
|
| 新日本橋駅 | 5分 |
|
| 岩本町駅 | 7分 |
|
| 馬喰町駅 | 7分 |
|
| 三越前駅 | 9分 |
|
| 神田駅 | 10分 |
|
| 馬喰横山駅 | 10分 |
|
| 秋葉原駅 | 11分 |
|
| 東日本橋駅 | 12分 |
|
| 浅草橋駅 | 15分 |
|
これだけたくさんの路線が利用できるので、都心内の移動で不便に感じることはほぼないでしょう。
首都高の出入口も近い
近くに首都高の「本町IC」があるので、車移動が多い方にも便利な立地です。
マンションの駐車場からわずか2~3分ほどで首都高速道路に乗れるため、下道の渋滞に巻き込まれる心配もありません。
タクシー移動にも便利な立地
「小伝馬町駅」に近い立地なので、タクシーを使うときも便利です。
都心の主要エリアからマンションまで、タクシーをご利用いただいた場合の目安時間と料金は以下の通りです。
| エリア | 通常料金(深夜料金) | 時間 |
| 東京駅 | 740円(900円) | 約10分 |
| 銀座駅 | 1,140円(1,380円) | 約10分 |
| 六本木駅 | 2,660円(3,220円) | 約20~30分 |
| 品川駅 | 3,380円(4,020円) | 約30分 |
| 新宿駅 | 3,380円(4,020円) | 約30分 |
| 渋谷駅 | 4,020円(4,820円) | 約30~40分 |
1-3. 24時間有人管理の厳重なセキュリティ
パークホームズ日本橋本町には、管理員が24時間常駐し、住まう方々の日々を見守ります。『いざという時』の迅速な対応はもちろん、防犯面でも頼れる存在がいる暮らしは、何物にも代えがたい安心感につながります。
また、マンション内の2箇所にオートロックが設置されているので、部外者に侵入されるリスクも低いです。
さらに、敷地内の各所に防犯カメラを複数台設置しているので、機械的なセキュリティが整っています。
1-4. 大切なペットと快適に暮らせる
パークホームズ日本橋本町でオーナー様がペット飼育を許可しているお部屋では、以下のペットとのご入居が可能です。
- 小型犬
- 猫
なお、マンションの設備としてペット用の足洗い場が用意されているので、散歩帰りなど便利に利用できます。
そして、ペットの種類に関しては貸主や管理組合から承諾をもらう必要がありますので、事前に不動産会社に相談してください。
なお、ペットを飼育する際は、敷金が1ヶ月分積み増しになるケースもありますので、こちらも併せてご確認ください。
動物病院やペットサロンも充実
マンションから歩いて1分の場所に「まつき動物病院」がありますので、ペットの体調が優れないときでも安心です。
また、歩いて4分の場所に、ホテルやトリミングのサービスを提供している「クーペットプラス」というお店があるので、旅行や出張のとき便利に利用できます。
2. パークホームズ日本橋本町のエントランスや室内イメージ
パークホームズ日本橋本町の魅力をより具体的にイメージしていただけるよう、室内の様子と共用スペースを以下の4つのカテゴリに分けて写真でご紹介します。
2-1. エントランス
エントランス外観は、シンプルながらも上品な仕上がりとなっています。
エントランス内部はオートロックが導入されているので、防犯面でも安心して暮らせます。
画像引用元:SUUMO
2-2. 共用部
パークホームズ日本橋本町の共用部は、高級マンションに相応しい上品な内装となっています。
オートロックを通過すると、落ち着いた仕上がりのエントランスホールがございます。

そして、エントランスホールの奥には、2基のエレベーターが用意されています。

ちなみに、マンションのエレベーターは「50戸に対して1基」が理想とされています。
パークホームズ日本橋本町のエレベーターは「129戸に対して2基」ということから、時間帯によっては少し待つかもしれません。
共用廊下も上品な仕上がり
エレベーターホールから玄関ドアまでは、ホテルライクな内廊下の仕様となっています。

2-3. 室内イメージ
リビングなどの室内は以下のイメージです。(過去に募集されていた部屋なので、実際の内容とは異なる可能性があります。)




キッチンや浴室などの水回りは以下のようなイメージです。
| キッチン | 洗面台 |
![]() |
![]() |
| 浴室 | トイレ |
![]() |
![]() |
| 画像引用元:SUUMO | |
室内の素材・雰囲気は部屋によって異なりますので、必ず内見して確認しましょう。
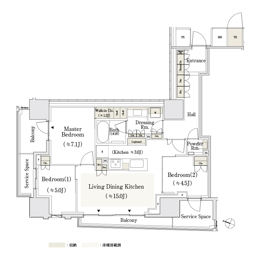
2-4. 間取り
現在、募集が出ていない部屋もありますが、パークホームズ日本橋本町の代表的な部屋の間取りを紹介します。
2LDK
![]() |
![]() |
![]() |
![]() |
![]() |
![]() |
![]() |
|
3LDK
![]() |
![]() |
![]() |
![]() |
![]() |
![]() |
| 間取り図引用元:HOME’S | |
3. パークホームズ日本橋本町の交通情報・周辺環境
パークホームズ日本橋本町の周辺の駅やコンビニなどをマップにまとめると、以下の通りになります。

引用:Google Map
マンション周辺には、コンビニやスーパーが揃っているので、日常的な買い物が便利です。
3-1. 交通アクセスについて
繰り返しになりますが、パークホームズ日本橋本町は主に以下10の駅が利用できます。
| 駅名 | 分数 | 路線 |
| 小伝馬町駅 | 3分 |
|
| 新日本橋駅 | 5分 |
|
| 岩本町駅 | 7分 |
|
| 馬喰町駅 | 7分 |
|
| 三越前駅 | 9分 |
|
| 神田駅 | 10分 |
|
| 馬喰横山駅 | 10分 |
|
| 秋葉原駅 | 11分 |
|
| 東日本橋駅 | 12分 |
|
| 浅草橋駅 | 15分 |
|
合計10路線を使えるので、都心内の移動で不便に感じることはないでしょう。
3-2. 周辺のコンビニやスーパー・薬局について
マンション周辺にはコンビニやスーパーが揃っているので、日常的な買い物は便利です。
まず、コンビニは徒歩3分圏内(約240m)に以下の2店舗が揃っています。
- セブンイレブン 千代田岩本町1丁目(約190m、徒歩3分)
- ファミリーマート 神田岩本町一丁目(約240m、徒歩3分)
そして、スーパーは徒歩3分圏内(約240m)に以下3つの店舗があるので、生鮮食品の買い物が便利です。
- まいばすけっと (約150m、徒歩2分)
- 成城石井(約240m、徒歩3分)
- マルエツプチ (約300m、徒歩4分)
高級スーパーの「成城石井」には、通常のスーパーに置いていない輸入ワインやチーズなどが揃っています。
薬局・ドラッグストアも近い
マンションから徒歩10分圏内(約800m)に以下の薬局とドラッグストアが揃っているので、薬の買い物が便利です。
- コスメティクスメディカル 小伝馬町ドラッグ(約290m、徒歩4分)
- ハッピー薬局(約350m、徒歩4分)
- テトラ薬局(約400m、徒歩6分)
- 神田いちご薬局(約450m、徒歩6分)
- ナチュラルローソンクオール(約500m、徒歩7分)
- クリエイトS・D(約500m、徒歩7分)
- 神田東松下町薬局(約550m、徒歩8分)
- スギ薬局 神田駅東口(約600m、徒歩8分)
- コーエイドラッグ(約600m、徒歩8分)
- スギドラッグ 日本橋横浜町(約700m、徒歩9分)
3-3. 飲食店について
マンションや最寄りの駅周辺には、以下のような飲食店が充実しています。
- カフェ
- 居酒屋
- 中華料理店
- 韓国料理店
- イタリアンレストラン
- 和食料理店
- 寿司屋
- 天ぷら屋
- そば・うどん屋
- ラーメン屋
- カレー屋
- 鉄板焼き・焼肉屋
- 焼き鳥屋
- バー
- ファストフード店
これだけのお店が揃っているので、外食の予定で困ることはないでしょう。
この他にも、マンション周辺には以下のようなチェーン店も豊富に揃っています。
|
・ファミレス |
|
|
・軽飲食 |
|
|
・カフェ |
|
3-4. 学区域や保育園について
パークホームズ日本橋本町の学区域は以下の通りです。(※学区域は変更になる場合があります。最新の情報は、各区教育委員会のウェブサイト等でご確認ください。)(※学区域は変更になる場合があります。最新の情報は、各区教育委員会のウェブサイト等でご確認ください。)
| 小学校 | 中学校 |
| 日本橋小学校 | 日本橋中学校 |
| 徒歩13分 | 徒歩17分 |
上記の通り、学区域の小・中学校まで遠いので、お子さまの通学面では不便な立地条件となります。
そのため、お子さまがいらっしゃるご家庭は、通学面も考慮に入れてご検討ください。
中学校について
中央区の中学校は、地域によって入学すべき中学校が「指定校」として決まっています。
ただし、「指定校」以外の中央区内の中学校も希望できる「学校選択制度」も利用可能です。
保育園について
保育園は歩いて1分の場所に「中央区立十思保育園」があるので、入園できれば共働きで忙しいご家庭の負担も減るでしょう。
この他にも周辺には複数の保育園があるため、お子さまの預け先を比較的検討しやすいエリアと言えるでしょう。
引用:Google Map
3-5. 周辺の治安について
マンション周辺の治安は良いです。
以下のマップは、2021年の1年間を通して、犯罪(自転車盗難なども含む)が合計何件発生したかを示したものです。
引用:警視庁犯罪情報マップ
パークホームズ日本橋本町の周辺は犯罪が少ない”黄色”に分類されていて、23区内の中でも治安は良いエリアと言えます。
パークホームズ日本橋本町の入り口付近
マンション前の歩道は、以下の写真の通り歩道が整備されているので、お子さま連れでも安心です。
引用:Google Map
3-6. 洪水などによる浸水リスクについて
浸水リスクを調べたところ、最大規模の氾濫が起きた場合、マンションが建つエリアは「0.5m~3.0m未満」の浸水が予測されています。
万が一、隅田川などで氾濫が起こった場合は、最大で建物2階部分まで浸水する可能性がありますので、浸水リスクも含めて検討するようにしましょう。
4. その他の特徴や注意点(審査難易度・事故情報など)
その他に、ここまでに挙げきれなかった、以下7個のパークホームズ日本橋本町の特徴や注意点を紹介します。
4-1. 駐車場が使える
パークホームズ日本橋本町には、駐車場が用意されています。
空き状況にもよりますが、平置きと機械式パーキングが利用可能で、大きさに合わせて「50,600~57,200円(税込)/月」が賃料の目安です。
駐輪場について
パークホームズ日本橋本町には駐輪場があり、賃料の目安は下記の通りです。
- 駐輪場:110~440円(税込)/月
4-2. 楽器の演奏ができる
パークホームズ日本橋本町では、オーナー様が楽器演奏を許可しているお部屋に限り、楽器演奏が可能です。
ただし、楽器の種類や演奏時間には規定がございます。後のトラブルを避けるためにも、ご希望の条件での演奏が可能か、ご契約前に必ず確認しましょう。
4-3. 24時間ゴミ出しができる
パークホームズ日本橋本町には専用のゴミ捨て場がありますので、24時間365日ゴミを捨てることができます。
また、ディスポーザーが付いている部屋であれば、生ゴミの処理も非常に楽です。
4-4. 保証会社の利用が必須
パークホームズ日本橋本町の多くの部屋が、保証会社の利用を必須としています。
契約する保証会社は部屋によって異なるため、明確な費用は算出できませんが、初回保証料として総賃料の40~50%が相場となります。
借りる方にとっては追加費用が発生するものの、連帯保証人を用意する手間が省けるというメリットがあります。
4-5. 審査難易度は部屋次第
結論、パークホームズ日本橋本町は分譲マンションのため、オーナー様によって審査の難易度が異なります。
したがって、特定の部屋の審査に落ちた場合でも、別の部屋であれば審査に通る可能性は十分にあります。
もし他にも気になるお部屋がある場合は、改めて申し込みが可能かどうか、不動産会社にご確認ください。
4-6. 定期借家契約について
パークホームズ日本橋本町では、「定期借家契約」となるお部屋が多く見られます。
定期借家契約は期間限定の契約ですが、基本的には一般的な賃貸契約の更新と同様に再契約を結ぶことで、引き続き住み続けられるケースがほとんどです。
ただし、オーナー様が一時的に留守にする期間だけ貸し出しているお部屋など、再契約ができない場合もありますのでご注意ください。
また、再契約時には、近隣相場に合わせて賃料が変更になる可能性もあります。
4-7. 事故物件情報は該当なし
事故情報(過去の事件や事故)を「事故物件検索サイト(https://www.oshimaland.co.jp/)」やTwitterなどのSNS、Google検索で調べました。
その結果、パークホームズ日本橋本町が事故物件に該当する情報は見当たりませんでした。
ただし、不動産業者から提示される資料に「告知事項あり」と表記されている場合は、事故やその他のトラブルにつながる事柄がある可能性が高いです。そのため、必ず内容を確認するようにしましょう。
5. まとめ
ここまでをまとめると、パークホームズ日本橋本町は、「賃料は高いが、それに見合った高いスペックのマンション」です。
これらの特徴を踏まえると、以下に当てはまる方には特におすすめしたい物件です。
- 人気の高級ブランドマンションに住みたい
- 立地や利便性を重視している
- 地震に強いタワーマンションがいい
- ペットと一緒に暮らしたい
改めて、これまでに募集されたお部屋の情報は以下の通りです。 気になるお部屋がありましたら、どうぞお気軽にご連絡ください。お待ちしております。
物件アーカイブ 過去に募集された部屋一覧
| 参考賃料 | 31.0万円 〜 33.0万円 |
|---|---|
| ㎡数 | 63.63㎡ |
| 間取り | 2LDK |
| 所在階 | 9階 |
| 物件登録日 | 2022/11/28 |
| 参考賃料 | 38.5万円 〜 39.5万円 |
|---|---|
| ㎡数 | 65.9㎡ |
| 間取り | 2LDK |
| 所在階 | 5階 |
| 物件登録日 | 2022/10/28 |
| 参考賃料 | 40.0万円 〜 41.0万円 |
|---|---|
| ㎡数 | 80.77㎡ |
| 間取り | 3LDK |
| 所在階 | 2階 |
| 物件登録日 | 2022/10/26 |
| 参考賃料 | 30.0万円 〜 32.0万円 |
|---|---|
| ㎡数 | 56.93㎡ |
| 間取り | 2LDK |
| 所在階 | 10階 |
| 物件登録日 | 2022/09/12 |
物件概要
| 物件名 | パークホームズ日本橋本町 | ||
|---|---|---|---|
| 住所 | 東京都中央区日本橋本町4丁目13-5 | ||
| 最寄駅 | 東京メトロ日比谷線 小伝馬町駅 徒歩3分 JR総武本線 新日本橋駅 徒歩5分 |
||
| 賃料 | 300,000 ~ 400,000 円/月 |
築年月 | 2022/09(築4年) |
| 間取り | 2LDK-3LDK | 専有面積 | 56.93-80.77㎡ |
| 物件特徴 | 構造 | RC(鉄筋コンクリート) | |
| 総階数 | 地上14階 | 総戸数 | 129戸 |
| 物件種別 | マンション | 登録日 更新日 |
2025/04/03 2025/06/27 |
| 設備 |
|
||
厳選した高級物件をあなたに
高級賃貸東京は、一般的な不動産屋さんのように、「店舗で一緒に物件を探す」ことを基本的には行いません。
なぜかと言うと、店舗での物件探しでは対面になる分、お客様がご自身で検討できる時間が限られてしまうからです。
弊社では、メールなどで希望に沿った物件情報を複数お送りいたしますので、お客様のペースでじっくり比較・検討いただいた上で内覧・お申し込みをしていただくことができます。
このスタイルで営業しているため、店舗での物件紹介は原則しておりません。
高級賃貸東京が選ばれる理由取引先企業様























