リバーシティ21イーストタワーズ10棟(以下、イーストタワーズ10)について下記8つの方法で事故物件(飛び降り、転落、自殺、火災、孤独死、不審死、事件)を徹底的にリサーチしたところ、事故の情報が1件ありました。
- 事故物件検索サイト(https://www.oshimaland.co.jp/)
- Youtube
- Google検索
- マンション掲示板(https://www.e-mansion.co.jp)
- 5ちゃんねる(https://5ch.net)
- その他データベース
事故の詳細は以下の通りとなっています。
| 事故内容 | 時期 | 部屋 |
| 転落 | 令和3年 | 37階 |
部屋の号数は不明ですが、直近の事故に関しては入居者に伝える義務がありますから、気になる方は不動産会社の担当者に確認しましょう。
なお、過去に事故などがあったお部屋について、不動産会社や大家さんには次の入居者様へお伝えする義務(告知義務)があります。しかし、その後に一人でも入居者がいた場合は、告知義務の対象外となる点には注意が必要です。
お部屋のことで気になる点があれば、ご遠慮なくご質問ください。お客様が安心して選べるよう、私たちが責任を持ってお調べします。
また、イーストタワーズ10で募集されていた部屋は以下のとおりです。新しい順に並んでいますが、詳しい募集時期は「物件登録日」をご覧ください。
物件アーカイブ 過去に募集された部屋一覧
| 参考賃料 | 38.9万円 〜 39.9万円 |
|---|---|
| ㎡数 | 85.49㎡ |
| 間取り | 2SLDK |
| 所在階 | 37階 |
| 物件登録日 | 2025/10/29 |
| 参考賃料 | 18.4万円 〜 19.4万円 |
|---|---|
| ㎡数 | 44.97㎡ |
| 間取り | 1R |
| 所在階 | 23階 |
| 物件登録日 | 2025/10/23 |
| 参考賃料 | 32.1万円 〜 33.1万円 |
|---|---|
| ㎡数 | 72.07㎡ |
| 間取り | 2LDK |
| 所在階 | 25階 |
| 物件登録日 | 2025/10/15 |
| 参考賃料 | 37.3万円 〜 38.3万円 |
|---|---|
| ㎡数 | 82.73㎡ |
| 間取り | 3LDK |
| 所在階 | 21階 |
| 物件登録日 | 2025/10/15 |
| 参考賃料 | 18.3万円 〜 19.3万円 |
|---|---|
| ㎡数 | 37.08㎡ |
| 間取り | 1LDK |
| 所在階 | 13階 |
| 物件登録日 | 2025/10/01 |
| 参考賃料 | 21.6万円 〜 22.6万円 |
|---|---|
| ㎡数 | 47.23㎡ |
| 間取り | 1LDK |
| 所在階 | 26階 |
| 物件登録日 | 2025/09/29 |
| 参考賃料 | 24.7万円 〜 25.7万円 |
|---|---|
| ㎡数 | 63.88㎡ |
| 間取り | 1LDK |
| 所在階 | 15階 |
| 物件登録日 | 2025/09/16 |
| 参考賃料 | 18.9万円 〜 19.9万円 |
|---|---|
| ㎡数 | 37.08㎡ |
| 間取り | 1LDK |
| 所在階 | 23階 |
| 物件登録日 | 2025/09/16 |
| 参考賃料 | 27.9万円 〜 28.9万円 |
|---|---|
| ㎡数 | 63.88㎡ |
| 間取り | 2LDK |
| 所在階 | 16階 |
| 物件登録日 | 2025/09/16 |
| 参考賃料 | 31.6万円 〜 32.6万円 |
|---|---|
| ㎡数 | 73.65㎡ |
| 間取り | 3LDK |
| 所在階 | 28階 |
| 物件登録日 | 2025/09/16 |
| 参考賃料 | 35.9万円 〜 36.9万円 |
|---|---|
| ㎡数 | 82.73㎡ |
| 間取り | 3LDK |
| 所在階 | 9階 |
| 物件登録日 | 2025/08/19 |
| 参考賃料 | 20.9万円 〜 21.9万円 |
|---|---|
| ㎡数 | 44.97㎡ |
| 間取り | 1LDK |
| 所在階 | 34階 |
| 物件登録日 | 2025/08/18 |
| 参考賃料 | 19.4万円 〜 20.4万円 |
|---|---|
| ㎡数 | 37.08㎡ |
| 間取り | 1LDK |
| 所在階 | 23階 |
| 物件登録日 | 2025/08/18 |
| 参考賃料 | 20.9万円 〜 21.9万円 |
|---|---|
| ㎡数 | 45.68㎡ |
| 間取り | 1LDK |
| 所在階 | 2階 |
| 物件登録日 | 2025/08/18 |
| 参考賃料 | 25.1万円 〜 26.1万円 |
|---|---|
| ㎡数 | 63.88㎡ |
| 間取り | 1LDK |
| 所在階 | 15階 |
| 物件登録日 | 2025/08/18 |
| 参考賃料 | 41.8万円 〜 42.8万円 |
|---|---|
| ㎡数 | 90.28㎡ |
| 間取り | 3LDK |
| 所在階 | 29階 |
| 物件登録日 | 2025/08/05 |
| 参考賃料 | 30.9万円 〜 31.9万円 |
|---|---|
| ㎡数 | 72.07㎡ |
| 間取り | 2LDK |
| 所在階 | 27階 |
| 物件登録日 | 2025/07/29 |
| 参考賃料 | 35.4万円 〜 36.4万円 |
|---|---|
| ㎡数 | 82.73㎡ |
| 間取り | 3LDK |
| 所在階 | 20階 |
| 物件登録日 | 2025/07/28 |
| 参考賃料 | 25.1万円 〜 26.1万円 |
|---|---|
| ㎡数 | 63.88㎡ |
| 間取り | 1LDK |
| 所在階 | 15階 |
| 物件登録日 | 2025/07/23 |
| 参考賃料 | 19.4万円 〜 20.4万円 |
|---|---|
| ㎡数 | 37.08㎡ |
| 間取り | 1LDK |
| 所在階 | 23階 |
| 物件登録日 | 2025/07/23 |
| 参考賃料 | 29.9万円 〜 30.9万円 |
|---|---|
| ㎡数 | 63.88㎡ |
| 間取り | 2LDK |
| 所在階 | 34階 |
| 物件登録日 | 2025/07/18 |
| 参考賃料 | 35.9万円 〜 36.9万円 |
|---|---|
| ㎡数 | 82.73㎡ |
| 間取り | 3LDK |
| 所在階 | 9階 |
| 物件登録日 | 2025/07/18 |
| 参考賃料 | 30.9万円 〜 31.9万円 |
|---|---|
| ㎡数 | 72.07㎡ |
| 間取り | 2LDK |
| 所在階 | 27階 |
| 物件登録日 | 2025/07/11 |
| 参考賃料 | 27.9万円 〜 28.9万円 |
|---|---|
| ㎡数 | 63.88㎡ |
| 間取り | 2LDK |
| 所在階 | 20階 |
| 物件登録日 | 2025/07/08 |
| 参考賃料 | 19.4万円 〜 20.4万円 |
|---|---|
| ㎡数 | 37.08㎡ |
| 間取り | 1LDK |
| 所在階 | 23階 |
| 物件登録日 | 2025/07/03 |
| 参考賃料 | 34.9万円 〜 35.9万円 |
|---|---|
| ㎡数 | 80.22㎡ |
| 間取り | 3LDK |
| 所在階 | 5階 |
| 物件登録日 | 2025/06/30 |
| 参考賃料 | 27.9万円 〜 28.9万円 |
|---|---|
| ㎡数 | 63.88㎡ |
| 間取り | 2LDK |
| 所在階 | 20階 |
| 物件登録日 | 2025/06/25 |
| 参考賃料 | 37.4万円 〜 38.4万円 |
|---|---|
| ㎡数 | 82.73㎡ |
| 間取り | 3LDK |
| 所在階 | 14階 |
| 物件登録日 | 2025/06/20 |
| 参考賃料 | 29.8万円 〜 30.8万円 |
|---|---|
| ㎡数 | 63.88㎡ |
| 間取り | 2LDK |
| 所在階 | 31階 |
| 物件登録日 | 2025/06/17 |
| 参考賃料 | 25.9万円 〜 26.9万円 |
|---|---|
| ㎡数 | 63.88㎡ |
| 間取り | 1LDK |
| 所在階 | 15階 |
| 物件登録日 | 2025/06/17 |
| 参考賃料 | 20.2万円 〜 21.2万円 |
|---|---|
| ㎡数 | 44.97㎡ |
| 間取り | 1LDK |
| 所在階 | 21階 |
| 物件登録日 | 2025/06/17 |
| 参考賃料 | 30.9万円 〜 31.9万円 |
|---|---|
| ㎡数 | 72.07㎡ |
| 間取り | 2LDK |
| 所在階 | 30階 |
| 物件登録日 | 2025/06/16 |
| 参考賃料 | 41.9万円 〜 42.9万円 |
|---|---|
| ㎡数 | 90.28㎡ |
| 間取り | 3LDK |
| 所在階 | 23階 |
| 物件登録日 | 2025/05/30 |
| 参考賃料 | 20.2万円 〜 21.2万円 |
|---|---|
| ㎡数 | 44.97㎡ |
| 間取り | 1LDK |
| 所在階 | 21階 |
| 物件登録日 | 2025/05/22 |
| 参考賃料 | 25.9万円 〜 26.9万円 |
|---|---|
| ㎡数 | 63.88㎡ |
| 間取り | 1LDK |
| 所在階 | 15階 |
| 物件登録日 | 2025/05/22 |
| 参考賃料 | 25.5万円 〜 26.5万円 |
|---|---|
| ㎡数 | 63.88㎡ |
| 間取り | 1LDK |
| 所在階 | 8階 |
| 物件登録日 | 2025/05/13 |
| 参考賃料 | 20.4万円 〜 21.4万円 |
|---|---|
| ㎡数 | 44.97㎡ |
| 間取り | 1LDK |
| 所在階 | 33階 |
| 物件登録日 | 2025/05/13 |
| 参考賃料 | 38.6万円 〜 39.6万円 |
|---|---|
| ㎡数 | 79.09㎡ |
| 間取り | 2LDK |
| 所在階 | 37階 |
| 物件登録日 | 2025/05/13 |
| 参考賃料 | 22.7万円 〜 23.7万円 |
|---|---|
| ㎡数 | 56.84㎡ |
| 間取り | 1LDK |
| 所在階 | 3階 |
| 物件登録日 | 2025/04/17 |
| 参考賃料 | 21.9万円 〜 22.9万円 |
|---|---|
| ㎡数 | 48.78㎡ |
| 間取り | 1LDK |
| 所在階 | 31階 |
| 物件登録日 | 2025/04/17 |
| 参考賃料 | 19.4万円 〜 20.4万円 |
|---|---|
| ㎡数 | 44.97㎡ |
| 間取り | 1R |
| 所在階 | 16階 |
| 物件登録日 | 2025/04/17 |
| 参考賃料 | 21.8万円 〜 22.8万円 |
|---|---|
| ㎡数 | 47.23㎡ |
| 間取り | 1LDK |
| 所在階 | 34階 |
| 物件登録日 | 2025/04/16 |
| 参考賃料 | 20.4万円 〜 21.4万円 |
|---|---|
| ㎡数 | 44.97㎡ |
| 間取り | 1LDK |
| 所在階 | 33階 |
| 物件登録日 | 2025/04/15 |
| 参考賃料 | 34.4万円 〜 35.4万円 |
|---|---|
| ㎡数 | 80.22㎡ |
| 間取り | 3SLDK |
| 所在階 | 6階 |
| 物件登録日 | 2025/04/15 |
| 参考賃料 | 27.9万円 〜 28.9万円 |
|---|---|
| ㎡数 | 63.88㎡ |
| 間取り | 2LDK |
| 所在階 | 9階 |
| 物件登録日 | 2025/04/03 |
| 参考賃料 | 19.4万円 〜 20.4万円 |
|---|---|
| ㎡数 | 44.94㎡ |
| 間取り | 1LDK |
| 所在階 | 9階 |
| 物件登録日 | 2025/04/03 |
| 参考賃料 | 26.4万円 〜 27.4万円 |
|---|---|
| ㎡数 | 63.88㎡ |
| 間取り | 1LDK |
| 所在階 | 25階 |
| 物件登録日 | 2025/04/02 |
| 参考賃料 | 21.4万円 〜 22.4万円 |
|---|---|
| ㎡数 | 47.23㎡ |
| 間取り | 1LDK |
| 所在階 | 13階 |
| 物件登録日 | 2025/04/02 |
| 参考賃料 | 21.4万円 〜 22.4万円 |
|---|---|
| ㎡数 | 47.23㎡ |
| 間取り | 1LDK |
| 所在階 | 13階 |
| 物件登録日 | 2025/03/21 |
弊社の仲介手数料は【無料】または【半額+tax】です。お客様の費用負担を少しでも軽くできるよう、全力でお部屋探しをお手伝いします。
また、事故情報以外に「イーストタワーズ10」についてよくあるご質問をまとめました。
イーストタワーズ10について、事故物件以外でよくある質問と回答
イーストタワーズ10について、よくあるご質問をまとめました。
マンションの設備について
周辺の環境に関して
- Q4. 周辺の治安は良いですか?
- Q5. 電車などの交通アクセスはどのようなものがありますか?
- Q6. 周辺にコンビニやスーパーはありますか?
- Q7. 周辺にどんな飲食店がありますか?
- Q8. 学区域の小・中学校はどちらですか?
- Q9. 周辺に保育園はありますか?
- Q10. 周辺に子育てに便利な施設はありますか?
災害リスクについて
契約について
Q1. 駐車場は用意されていますか?
はい、イーストタワーズ10には駐車場が用意されています。
空き状況にもよりますが、平置きと機械式パーキングが利用可能で「33,000~44,000円(税込)/月」が賃料の目安です。
駐車場のサイズは以下の通りです。お借りになる際は、車検証でサイズを必ずご確認ください。。
- 全長:4,850~5,700mm
- 全幅:1,850~1,950mm
- 全高:1,550~2,100mm
- 重量:2,000~2,300kg
この他、駐輪場とバイク置き場も用意されています。
Q2. セキュリティ面はどうですか?
イーストタワーズ10には、管理員が24時間常駐し、住まう方々の日々を見守ります。『いざという時』の迅速な対応はもちろん、防犯面でも頼れる存在がいる暮らしは、何物にも代えがたい安心感につながります。
また、エントランスにはオートロックが設置されているので、不審者が立ち入るリスクも低いです。
さらに、敷地内の各所に防犯カメラを複数台設置しているので、機械的なセキュリティも整っています。
Q3. コンシェルジュはいますか?
いいえ、イーストタワーズ10にはコンシェルジュはいません。
Q4. 周辺の治安は良いですか?
いいえ、マンション周辺の治安は良くないです。
以下のマップは、2022年の1年間を通して、犯罪(自転車盗難なども含む)が合計何件発生したかを示したものです。
引用:警視庁犯罪情報マップ
イーストタワーズ10の周辺は犯罪が比較的多いオレンジ色に分類されているので、23区内でも治安が良くないエリアと言えます。
ただ、マンションの周辺には複数の交番や警察署があるので、いざという時には心強く、安心感を与えてくれます。
Q5. 電車などの交通アクセスはどのようなものがありますか?
イーストタワーズ10周辺の主要な交通アクセスを以下の移動手段に分けて紹介します。
1.電車
イーストタワーズ10の周辺にある2つの駅からは、下記の3路線を利用することができます。
| 駅名 | 分数 | 路線 |
| 月島駅 | 5分 |
|
| 越中島駅 | 13分 |
|
上記の通り、都心の中心地を走る地下鉄を利用できるので、都心内の移動で不便に感じることは少ない立地と言えるでしょう。
なお、月島駅から使える「大江戸線」と「有楽町線」は、新宿や永田町など、都心のオフィス街にアクセスしやすい路線です。
下記の表は、都心のオフィス街までの所要時間と乗り換え回数です。
| 駅名 | 所要時間 | 乗り換え |
| 有楽町駅 | 5分 | 0回 |
| 永田町駅 | 9分 | 0回 |
| 六本木駅 | 16分 | 0回 |
| 東京駅 | 17分 | 1回 |
| 渋谷駅 | 22分 | 1回 |
| 新宿駅 | 26分 | 0回 |
2.タクシー
大通りの「清澄通り」に近い立地なので、タクシーを使うときも便利です。
都心の主要エリアからマンションまで、タクシーをご利用いただいた場合の目安時間と料金は以下の通りです。
| エリア | 通常料金(深夜料金) | 時間 |
| 銀座駅 | 1,060円(1,300円) | 約10分 |
| 大手町駅 | 1,460円(1,700円) | 約10~20分 |
| 東京駅 | 1,540円(1,780円) | 約10~20分 |
| 六本木駅 | 2,580円(3,140円) | 約20~30分 |
| 品川駅 | 3,300円(3,940円) | 約30分 |
| 渋谷駅 | 4,020円(4,740円) | 約30~40分 |
| 新宿駅 | 4,180円(4,980円) | 約30~40分 |
| 池袋駅 | 4,820円(5,700円) | 約40~50分 |
Q6. 周辺にコンビニやスーパーはありますか?
はい、徒歩圏内にコンビニやスーパーが充実しており、日々の買い物が大変便利な立地です。(詳細は下図参照)
引用:Google Map
まず、コンビニは「ナチュラルローソン」と「ローソン」が敷地内にあります。
スーパーも以下の2つの店舗があるので、日常的な買い物が便利です。
- リンコス
- マルエツ
敷地内に薬局・ドラッグストアもある
「リバーシティ21」の中には、大手ドラッグストアの「マツモトキヨシ」があるので、薬の買い物で困ることはないでしょう。
Q7. 周辺にどんな飲食店がありますか?
マンション周辺には飲食店は少ないですが、歩いて5分ほどの月島駅周辺には以下のような飲食店が揃っています。
- もんじゃ屋
- 焼肉屋
- 寿司屋
- 海鮮丼
- 和食料理店
- 中華料理店
- タイ料理店
- イタリアンレストラン
- スペイン料理屋
- バー
- ファストフード
また、タクシーで10分ほどの距離には、老舗の有名料理店などが集う「銀座」などがあるので、休日の外食も楽しめるでしょう。
月島もんじゃストリートも近い
マンションから歩いて約10分の場所には、80店舗以上が軒を連ねる「月島もんじゃストリート」があります。
東京の観光名所にもなっているので、遠方から来客があった際に連れて行くと喜ばれるでしょう。
イーストタワーズ10周辺のその他のグルメ情報
その他、以下のようにチェーンの飲食店も周辺にあります。
- タリーズコーヒー (約700m、徒歩9分)
- ジョナサン(約850m、徒歩12分)
- サイゼリヤ(約850m、徒歩12分)
Q8. 学区域の小・中学校はどちらですか?
イーストタワーズ10の学区域は以下の通りです。(※学区域は変更になる場合があります。最新の情報は、各区教育委員会のウェブサイト等でご確認ください。)
| 小学校 | 中学校 |
| 佃島小学校 | 佃中学校 |
| 徒歩6分 | 徒歩7分 |
保育園に関しても、リバーシティ21内に「つくだ保育園」があるため、入園できれば共働きで忙しいご家庭の負担も減るでしょう。
この他にも周辺には複数の保育園があるため、お子さまの預け先を比較的検討しやすいエリアと言えるでしょう。
Q9. 周辺に保育園はありますか?
はい、マンションのあるリバーシティ21内に「つくだ保育園」があるため、入園できれば共働きで忙しいご家庭の負担も減るでしょう。
この他にも周辺には複数の保育園があるため、お子さまの預け先を比較的検討しやすいエリアと言えるでしょう。
引用:Google Map
Q10. 周辺に子育てに便利な施設はありますか?
はい、イーストタワーズ10の周辺には子育てに便利な施設がございます。
というのも、マンションが建つ「リバーシティ21」という広大な敷地内には、下記の子育てにも便利なお店や施設が揃っています。
| 店舗名|営業時間 | |
| スーパー リンコス | 10:00~22:00 |
| スーパー マルエツ | 10:00~23:00 |
| ローソン | 24時間営業 |
| ナチュラルローソン | 24時間営業 |
| マツモトキヨシ | 10:00~22:00 |
| ミミフィットネス | 10:00~22:00 |
| NASリバーシティ21 | 10:00~23:00 |
| クリニック | |
| 橘耳鼻咽喉科クリニック | リバーシティこどもクリニック |
| Kodomo Child Clinic | 石川島記念病院 |
| 育児施設|教育施設 | |
| ほっぺるランド佃 | ステラキッズ佃教室(託児所) |
| 佃児童館 | つくだ保育園 |
| オレンジインターナショナル | みちてる保育園 |
| 区立佃島小学校 | 中央区立佃中学校 |
そして、マンションを取り囲む敷地には、池や豊富な遊具が揃う公園もありますので、いつでも気軽に利用できます。
![]() |
![]() |
| 画像引用:Google Map | |
自転車や車があればさらに便利
自転車で10分程度の場所には、ファミリー層から絶大な人気を誇る大型商業施設「ららぽーと豊洲」があります。
こちらには映画館やアミューズメントスペースなど、親子で楽しめる施設が豊富に揃っています。
また、手ぶらでBBQを楽しめる「WILD MAGIC」も豊洲にあるので、休日は豊洲だけでも遊び尽くせるでしょう。
| ららぽーと豊洲 | WILD MAGIC |
![]() |
![]() |
| 引用:三井ショッピングパーク|Google Map | |
さらに、車で15分ほどのお台場には、充実したレジャー施設の他、開放的なビーチや公園も揃っています。
お台場は1年を通して様々なイベントが開催されているので、季節ごとのイベントを家族で楽しめる魅力的な街です。

仮に自転車や車を持っていない場合でも、マンションのすぐ近くにレンタサイクルがあったり、周辺にカーシェアが用意されているので安心です。
Q11. マンションは地震に強い構造ですか?
いいえ、イーストタワーズ10は「地震に強い」とは言えません。
ですので、「地震が心配」と言う人は、周辺にある以下のマンションも併せて検討してみましょう。
| 免震構造 | |
| ドゥ・トゥール | ザ・パークハウス晴海タワーズ |
![]() |
![]() |
| 制震構造 | |
| キャピタルゲートプレイス ザ・タワー | THE TOKYO TOWERS |
![]() |
![]() |
| 画像引用元:Google Map | |
Q12. 洪水などによる浸水のリスクはありますか?
いいえ、浸水リスクを調べたところ、最大規模の氾濫が起きた場合でも、マンションが建つエリアの浸水リスクはなかったので安心です。
Q13. 液状化のリスクはありますか?
はい、月島エリアは埋立地なので、液状化のリスクがあります。
マンションが建っている地形は、「液状化の可能性があるエリア」とハザードマップ上に明記されています。
そのため、絶対に液状化で悩みたくない人は、月島を含むベイエリアのマンションは避けたほうがいいでしょう。
Q14. 保証会社の利用は必須ですか?
はい、イーストタワーズ10に入居するには、連帯保証人の有無に関係なく、保証会社の利用が必須です。(大手法人契約を除く)
料金は、契約時に総賃料の50%を支払い、2年目以降は1年毎に「10,000円」の更新料を支払う必要があります。
Q15. 審査難易度はどのようになっていますか?
結論、イーストタワーズ10の審査難易度は普通です。
上述した保証会社の審査が通れば大抵の場合、貸主の審査も通るケースが多いです。
ただし、誰でも簡単に通るわけではないので、最低でも下記の条件はクリアしておきましょう。
- 年収:家賃の36倍
- 勤続年数:1年以上
- 雇用形態:正社員
よくある質問とその回答は以上です。
ここから、マンションをよりイメージした上で契約したい方のために、画像でマンション内の内装や設備を紹介します。
豊富な画像でわかる!イーストタワーズ10のエントランス・室内イメージ
イーストタワーズ10の室内や共用スペースはどうなっているのか、契約前により具体的にイメージいただくために、以下の3つに分けて画像で紹介します。
①. エントランス
エントランス外観はシンプルな仕上がりとなっています。

エントランス内部にはオートロックが導入されているので、防犯面でも安心して暮らすことができます。

また、エントランスホールには以下のようなソファーセットが用意されているので、待ち合わせ場所としてご活用いただけます。

画像引用元:SUUMO

エントランスを奥に進むと、4基のエレベーターが用意されています。

ちなみに、タワーマンションのエレベーターは「50戸に対して1基」が理想とされています。
イーストタワーズ10は「461戸に対して4基」ということから、時間帯によってはお待ちいただく場合がございます。
②. 共用部
イーストタワーズ10は、タワーマンションにふさわしい以下5つの設備が揃っています。
2022年に改修が完了したばかりの、とてもきれいな設備ばかりです。
リバービューラウンジ
マンション内には隅田川やスカイツリーなどを一望できるリバービューラウンジが用意されています。
画像引用元:SUUMO
和室
マンション内には、和室が用意されているのでご友人を招待してお茶などを楽しむこともできるでしょう。

ファミリールーム
マンション内には、絵本などが用意されたファミリールームがございますので、お子さまと一緒に読書などを楽しむこともできるでしょう。

マルチスタジオ
マンション内には、多目的にご利用いただけるマルチスタジオもございます。

コアワーキングプレイス
マンション内には、作業スペースとしてご利用いただける住民専用のコアワーキングスペースが用意されています。
ちなみに、ミーティングルームも用意されております。
画像引用元:REINS
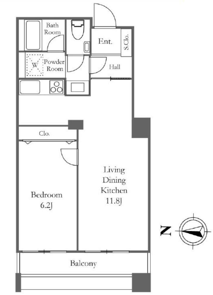
③. 室内イメージ
室内は以下のイメージです。(過去に募集されたリノベーション区画なので、実際の内容とは異なる可能性があります。)
![]() |
![]() |
![]() |
![]() |
![]() |
![]() |
![]() |
![]() |
![]() |
![]() |
![]() |
![]() |
![]() |
![]() |
![]() |
![]() |
水回りの雰囲気も部屋ごとに異なりますが、以下のようなイメージです。
| キッチン | |
![]() |
![]() |
![]() |
![]() |
| 浴室 | |
![]() |
![]() |
![]() |
![]() |
| 洗面台 | |
![]() |
![]() |
![]() |
![]() |
| トイレ | |
![]() |
![]() |
| 画像引用元:SUUMO | |
室内の素材や雰囲気は、お部屋によって異なります。必ず内見でご確認ください。
まとめ
イーストタワーズ10について、事故物件を徹底的にリサーチした結果、事故の情報が1件ありました。
| 事故内容 | 時期 | 部屋 |
| 転落 | 令和3年 | 37階 |
弊社は、お客様がご心配であれば、過去の事故の有無や詳細について、契約前に貸主に確認させていただきますので、お気軽にお申し付けください。
改めて、現在募集されている部屋、過去に募集された部屋は以下の通りです。気になる部屋があれば、ご連絡をお待ちしています。
物件アーカイブ 過去に募集された部屋一覧
| 参考賃料 | 38.9万円 〜 39.9万円 |
|---|---|
| ㎡数 | 85.49㎡ |
| 間取り | 2SLDK |
| 所在階 | 37階 |
| 物件登録日 | 2025/10/29 |
| 参考賃料 | 18.4万円 〜 19.4万円 |
|---|---|
| ㎡数 | 44.97㎡ |
| 間取り | 1R |
| 所在階 | 23階 |
| 物件登録日 | 2025/10/23 |
| 参考賃料 | 32.1万円 〜 33.1万円 |
|---|---|
| ㎡数 | 72.07㎡ |
| 間取り | 2LDK |
| 所在階 | 25階 |
| 物件登録日 | 2025/10/15 |
| 参考賃料 | 37.3万円 〜 38.3万円 |
|---|---|
| ㎡数 | 82.73㎡ |
| 間取り | 3LDK |
| 所在階 | 21階 |
| 物件登録日 | 2025/10/15 |
| 参考賃料 | 18.3万円 〜 19.3万円 |
|---|---|
| ㎡数 | 37.08㎡ |
| 間取り | 1LDK |
| 所在階 | 13階 |
| 物件登録日 | 2025/10/01 |
| 参考賃料 | 21.6万円 〜 22.6万円 |
|---|---|
| ㎡数 | 47.23㎡ |
| 間取り | 1LDK |
| 所在階 | 26階 |
| 物件登録日 | 2025/09/29 |
| 参考賃料 | 24.7万円 〜 25.7万円 |
|---|---|
| ㎡数 | 63.88㎡ |
| 間取り | 1LDK |
| 所在階 | 15階 |
| 物件登録日 | 2025/09/16 |
| 参考賃料 | 18.9万円 〜 19.9万円 |
|---|---|
| ㎡数 | 37.08㎡ |
| 間取り | 1LDK |
| 所在階 | 23階 |
| 物件登録日 | 2025/09/16 |
| 参考賃料 | 27.9万円 〜 28.9万円 |
|---|---|
| ㎡数 | 63.88㎡ |
| 間取り | 2LDK |
| 所在階 | 16階 |
| 物件登録日 | 2025/09/16 |
| 参考賃料 | 31.6万円 〜 32.6万円 |
|---|---|
| ㎡数 | 73.65㎡ |
| 間取り | 3LDK |
| 所在階 | 28階 |
| 物件登録日 | 2025/09/16 |
| 参考賃料 | 35.9万円 〜 36.9万円 |
|---|---|
| ㎡数 | 82.73㎡ |
| 間取り | 3LDK |
| 所在階 | 9階 |
| 物件登録日 | 2025/08/19 |
| 参考賃料 | 20.9万円 〜 21.9万円 |
|---|---|
| ㎡数 | 44.97㎡ |
| 間取り | 1LDK |
| 所在階 | 34階 |
| 物件登録日 | 2025/08/18 |
| 参考賃料 | 19.4万円 〜 20.4万円 |
|---|---|
| ㎡数 | 37.08㎡ |
| 間取り | 1LDK |
| 所在階 | 23階 |
| 物件登録日 | 2025/08/18 |
| 参考賃料 | 20.9万円 〜 21.9万円 |
|---|---|
| ㎡数 | 45.68㎡ |
| 間取り | 1LDK |
| 所在階 | 2階 |
| 物件登録日 | 2025/08/18 |
| 参考賃料 | 25.1万円 〜 26.1万円 |
|---|---|
| ㎡数 | 63.88㎡ |
| 間取り | 1LDK |
| 所在階 | 15階 |
| 物件登録日 | 2025/08/18 |
| 参考賃料 | 41.8万円 〜 42.8万円 |
|---|---|
| ㎡数 | 90.28㎡ |
| 間取り | 3LDK |
| 所在階 | 29階 |
| 物件登録日 | 2025/08/05 |
| 参考賃料 | 30.9万円 〜 31.9万円 |
|---|---|
| ㎡数 | 72.07㎡ |
| 間取り | 2LDK |
| 所在階 | 27階 |
| 物件登録日 | 2025/07/29 |
| 参考賃料 | 35.4万円 〜 36.4万円 |
|---|---|
| ㎡数 | 82.73㎡ |
| 間取り | 3LDK |
| 所在階 | 20階 |
| 物件登録日 | 2025/07/28 |
| 参考賃料 | 25.1万円 〜 26.1万円 |
|---|---|
| ㎡数 | 63.88㎡ |
| 間取り | 1LDK |
| 所在階 | 15階 |
| 物件登録日 | 2025/07/23 |
| 参考賃料 | 19.4万円 〜 20.4万円 |
|---|---|
| ㎡数 | 37.08㎡ |
| 間取り | 1LDK |
| 所在階 | 23階 |
| 物件登録日 | 2025/07/23 |
| 参考賃料 | 29.9万円 〜 30.9万円 |
|---|---|
| ㎡数 | 63.88㎡ |
| 間取り | 2LDK |
| 所在階 | 34階 |
| 物件登録日 | 2025/07/18 |
| 参考賃料 | 35.9万円 〜 36.9万円 |
|---|---|
| ㎡数 | 82.73㎡ |
| 間取り | 3LDK |
| 所在階 | 9階 |
| 物件登録日 | 2025/07/18 |
| 参考賃料 | 30.9万円 〜 31.9万円 |
|---|---|
| ㎡数 | 72.07㎡ |
| 間取り | 2LDK |
| 所在階 | 27階 |
| 物件登録日 | 2025/07/11 |
| 参考賃料 | 27.9万円 〜 28.9万円 |
|---|---|
| ㎡数 | 63.88㎡ |
| 間取り | 2LDK |
| 所在階 | 20階 |
| 物件登録日 | 2025/07/08 |
| 参考賃料 | 19.4万円 〜 20.4万円 |
|---|---|
| ㎡数 | 37.08㎡ |
| 間取り | 1LDK |
| 所在階 | 23階 |
| 物件登録日 | 2025/07/03 |
| 参考賃料 | 34.9万円 〜 35.9万円 |
|---|---|
| ㎡数 | 80.22㎡ |
| 間取り | 3LDK |
| 所在階 | 5階 |
| 物件登録日 | 2025/06/30 |
| 参考賃料 | 27.9万円 〜 28.9万円 |
|---|---|
| ㎡数 | 63.88㎡ |
| 間取り | 2LDK |
| 所在階 | 20階 |
| 物件登録日 | 2025/06/25 |
| 参考賃料 | 37.4万円 〜 38.4万円 |
|---|---|
| ㎡数 | 82.73㎡ |
| 間取り | 3LDK |
| 所在階 | 14階 |
| 物件登録日 | 2025/06/20 |
| 参考賃料 | 29.8万円 〜 30.8万円 |
|---|---|
| ㎡数 | 63.88㎡ |
| 間取り | 2LDK |
| 所在階 | 31階 |
| 物件登録日 | 2025/06/17 |








引用:




























