徹底調査!ザ 東京タワーズの事故物件情報一覧

THE TOKYO TOWERS(以下、東京タワーズ)について下記8つの方法で事故物件(飛び降り、転落、自殺、火災、孤独死、不審死、事件)を徹底的にリサーチしたところ、事故の情報が1件ありました。

  • 事故物件検索サイトhttps://www.oshimaland.co.jp/
  • Twitter
  • Instagram
  • Youtube
  • Google検索
  • マンション掲示板(https://www.e-mansion.co.jp)
  • 5ちゃんねる(https://5ch.net)
  • その他データベース

事故の詳細は以下の通りとなっています。

事故内容 時期 部屋
転落死 不明 不明

部屋の号数や時期は不明ですが、直近の事故に関しては入居者に伝える義務がありますから、気になる方は不動産会社の担当者に確認しましょう。

なお、過去に事故などがあったお部屋について、不動産会社や大家さんには次の入居者様へお伝えする義務(告知義務)があります。しかし、その後に一人でも入居者がいた場合は、告知義務の対象外となる点には注意が必要です。

お部屋のことで気になる点があれば、ご遠慮なくご質問ください。お客様が安心して選べるよう、私たちが責任を持ってお調べします。

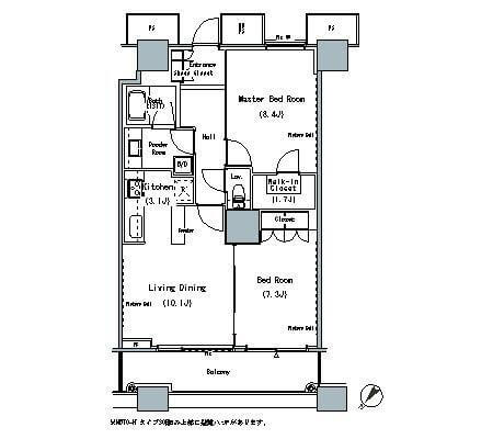
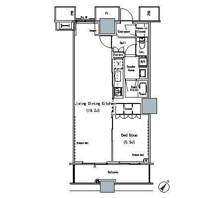
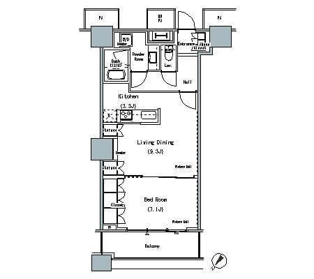
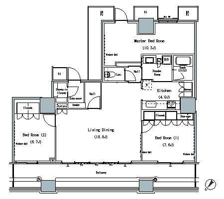
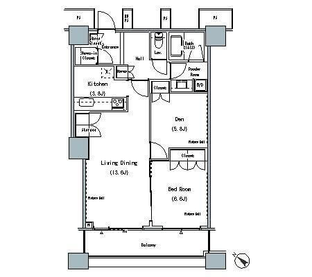
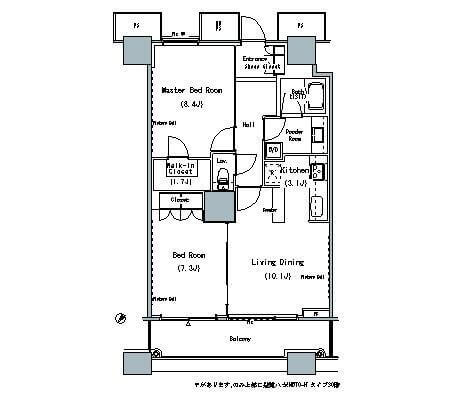
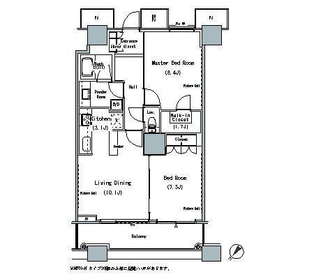
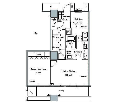
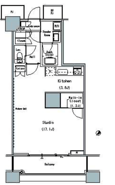
また、東京タワーズで募集されていた部屋は以下のとおりです。新しい順に並んでいますが、詳しい募集時期は「物件登録日」をご覧ください。

上段:SEA TOWER|下段:MID TOWER

物件アーカイブ 過去に募集された部屋一覧

参考賃料 29.9万円 〜 31.9万円
㎡数 63.07㎡
間取り 1SLDK
所在階 10階
物件登録日 2026/03/06
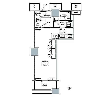
参考賃料 38.9万円 〜 41.4万円
㎡数 80.23㎡
間取り 2LDK
所在階 44階
物件登録日 2026/01/17
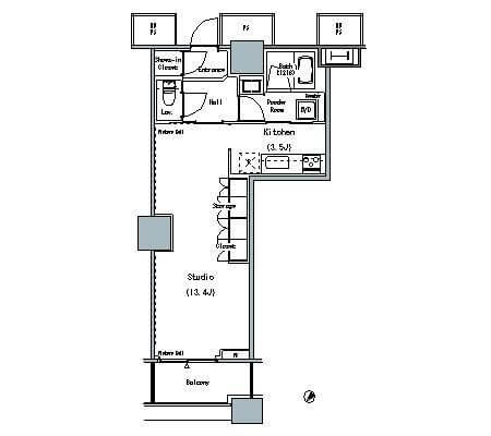
参考賃料 34.0万円 〜 36.0万円
㎡数 70.12㎡
間取り 2SLDK
所在階 9階
物件登録日 2026/01/13
参考賃料 34.0万円 〜 36.0万円
㎡数 70.12㎡
間取り 2SLDK
所在階 9階
物件登録日 2025/12/16
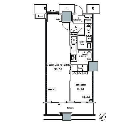
参考賃料 22.0万円 〜 23.5万円
㎡数 54.12㎡
間取り 1LDK
所在階 17階
物件登録日 2025/10/28
参考賃料 30.0万円 〜 32.0万円
㎡数 63.33㎡
間取り 2LDK
所在階 31階
物件登録日 2025/09/29
参考賃料 31.0万円 〜 33.0万円
㎡数 67.44㎡
間取り 2SLDK
所在階 16階
物件登録日 2025/09/01
参考賃料 40.0万円 〜 42.0万円
㎡数 80.23㎡
間取り 2LDK
所在階 44階
物件登録日 2025/08/23
参考賃料 50.0万円 〜 52.0万円
㎡数 84.06㎡
間取り 3LDK
所在階 22階
物件登録日 2025/04/01
参考賃料 27.5万円 〜 29.5万円
㎡数 63.07㎡
間取り 2LDK
所在階 17階
物件登録日 2025/03/26
参考賃料 39.5万円 〜 42.0万円
㎡数 93.88㎡
間取り 3LDK
所在階 38階
物件登録日 2025/03/18
参考賃料 30.0万円 〜 31.0万円
㎡数 67.44㎡
間取り 2LDK
所在階 25階
物件登録日 2025/01/27
参考賃料 44.0万円 〜 46.0万円
㎡数 91.58㎡
間取り 3LDK
所在階 46階
物件登録日 2024/11/25
参考賃料 39.0万円 〜 42.0万円
㎡数 102.91㎡
間取り 3LDK
所在階 6階
物件登録日 2024/09/24
参考賃料 32.0万円 〜 34.0万円
㎡数 78.96㎡
間取り 3LDK
所在階 27階
物件登録日 2024/09/17
参考賃料 32.0万円 〜 34.0万円
㎡数 78.96㎡
間取り 3LDK
所在階 27階
物件登録日 2024/09/12
参考賃料 56.0万円 〜 57.0万円
㎡数 113.72㎡
間取り 3LDK
所在階 57階
物件登録日 2024/07/18
参考賃料 27.0万円 〜 29.0万円
㎡数 70.78㎡
間取り 2LDK
所在階 32階
物件登録日 2024/05/27
参考賃料 30.3万円 〜 31.3万円
㎡数 70.78㎡
間取り 2LDK
所在階 32階
物件登録日 2024/04/04
参考賃料 19.2万円 〜 21.0万円
㎡数 54.12㎡
間取り 1LDK
所在階 24階
物件登録日 2024/04/01
参考賃料 19.2万円 〜 21.0万円
㎡数 54.12㎡
間取り 1LDK
所在階 24階
物件登録日 2024/03/18
参考賃料 30.3万円 〜 31.3万円
㎡数 70.78㎡
間取り 2LDK
所在階 32階
物件登録日 2024/02/15
参考賃料 47.0万円 〜 48.0万円
㎡数 101.5㎡
間取り 3LDK
所在階 15階
物件登録日 2024/02/14
参考賃料 24.3万円 〜 26.3万円
㎡数 66.43㎡
間取り 1SLDK
所在階 7階
物件登録日 2024/01/30
参考賃料 29.0万円 〜 32.0万円
㎡数 67.44㎡
間取り 2LDK
所在階 22階
物件登録日 2024/01/30
参考賃料 29.0万円 〜 32.0万円
㎡数 67.44㎡
間取り 2LDK
所在階 22階
物件登録日 2024/01/17
参考賃料 95.0万円 〜 96.0万円
㎡数 146.57㎡
間取り 2LDK
所在階 58階
物件登録日 2024/01/12
参考賃料 24.3万円 〜 26.3万円
㎡数 66.43㎡
間取り 1SLDK
所在階 7階
物件登録日 2024/01/05
参考賃料 24.3万円 〜 26.3万円
㎡数 66.43㎡
間取り 1SLDK
所在階 7階
物件登録日 2023/12/22
参考賃料 53.0万円 〜 55.0万円
㎡数 120.17㎡
間取り 2LDK
所在階 40階
物件登録日 2023/12/19
参考賃料 95.0万円 〜 96.0万円
㎡数 146.57㎡
間取り 2LDK
所在階 58階
物件登録日 2023/12/19
参考賃料 38.3万円 〜 40.0万円
㎡数 84.06㎡
間取り 2LDK
所在階 15階
物件登録日 2023/10/30
参考賃料 100.0万円 〜 101.0万円
㎡数 120.05㎡
間取り 2LDK
所在階 58階
物件登録日 2023/10/12
参考賃料 19.8万円 〜 21.3万円
㎡数 54.12㎡
間取り 1LDK
所在階 17階
物件登録日 2023/07/04
参考賃料 60.0万円 〜 61.0万円
㎡数 135.7㎡
間取り 3LDK
所在階 33階
物件登録日 2022/12/27
参考賃料 43.0万円 〜 45.0万円
㎡数 99.64㎡
間取り 3LDK
所在階 55階
物件登録日 2022/11/10
参考賃料 28.0万円 〜 30.0万円
㎡数 77.08㎡
間取り 2LDK
所在階 6階
物件登録日 2022/10/21
参考賃料 23.0万円 〜 25.0万円
㎡数 63.33㎡
間取り 1LDK
所在階 31階
物件登録日 2022/10/17
参考賃料 57.0万円 〜 60.0万円
㎡数 120.17㎡
間取り 3LDK
所在階 32階
物件登録日 2022/10/07
参考賃料 28.0万円 〜 30.0万円
㎡数 70.78㎡
間取り 2LDK
所在階 32階
物件登録日 2022/08/20
参考賃料 60.0万円 〜 63.0万円
㎡数 120.17㎡
間取り 3LDK
所在階 32階
物件登録日 2022/08/06
参考賃料 24.0万円 〜 25.0万円
㎡数 63.07㎡
間取り 1LDK
所在階 16階
物件登録日 2022/08/06
参考賃料 38.3万円 〜 40.0万円
㎡数 84.06㎡
間取り 2LDK
所在階 15階
物件登録日 2022/08/06
参考賃料 24.5万円 〜 26.5万円
㎡数 63.07㎡
間取り 2LDK
所在階 12階
物件登録日 2022/07/27
参考賃料 39.0万円 〜 41.0万円
㎡数 102.91㎡
間取り 3LDK
所在階 6階
物件登録日 2022/07/19
参考賃料 29.5万円 〜 31.0万円
㎡数 76.35㎡
間取り 3LDK
所在階 11階
物件登録日 2022/06/14
参考賃料 27.9万円 〜 29.9万円
㎡数 77.20㎡
間取り 3LDK
所在階 22階
物件登録日 2022/04/13
参考賃料 42.0万円 〜 43.0万円
㎡数 90.41㎡
間取り 3LDK
所在階 32階
物件登録日 2022/03/04
参考賃料 53.0万円 〜 55.0万円
㎡数 120.17㎡
間取り 2LDK
所在階 40階
物件登録日 2022/03/04
参考賃料 38.5万円 〜 39.5万円
㎡数 89.14㎡
間取り 2LDK
所在階 45階
物件登録日 2022/03/04

物件アーカイブ 過去に募集された部屋一覧

参考賃料 50.0万円 〜 52.0万円
㎡数 91.51㎡
間取り 4LDK
所在階 52階
物件登録日 2026/01/15
参考賃料 32.7万円 〜 34.7万円
㎡数 74.29㎡
間取り 1LDK
所在階 9階
物件登録日 2025/12/18
参考賃料 24.0万円 〜 25.5万円
㎡数 52.45㎡
間取り 1LDK
所在階 22階
物件登録日 2025/12/09
参考賃料 24.7万円 〜 26.2万円
㎡数 53.74㎡
間取り 1LDK
所在階 22階
物件登録日 2025/12/09
参考賃料 25.4万円 〜 26.9万円
㎡数 54.21㎡
間取り 1LDK
所在階 20階
物件登録日 2025/12/09
参考賃料 29.8万円 〜 31.3万円
㎡数 65.59㎡
間取り 1LDK
所在階 18階
物件登録日 2025/12/09
参考賃料 21.9万円 〜 23.4万円
㎡数 50.59㎡
間取り 1K
所在階 18階
物件登録日 2025/12/09
参考賃料 23.1万円 〜 24.6万円
㎡数 50.59㎡
間取り 1K
所在階 12階
物件登録日 2025/12/09
参考賃料 25.8万円 〜 27.3万円
㎡数 56.55㎡
間取り 1LDK
所在階 9階
物件登録日 2025/12/09
参考賃料 21.1万円 〜 22.1万円
㎡数 47.57㎡
間取り 1DK
所在階 16階
物件登録日 2025/12/09
参考賃料 24.0万円 〜 25.5万円
㎡数 52.98㎡
間取り 1LDK
所在階 8階
物件登録日 2025/12/09
参考賃料 26.1万円 〜 27.6万円
㎡数 53.81㎡
間取り 1LDK
所在階 14階
物件登録日 2025/12/09
参考賃料 23.6万円 〜 25.1万円
㎡数 51.78㎡
間取り 1LDK
所在階 13階
物件登録日 2025/12/09
参考賃料 24.1万円 〜 25.6万円
㎡数 52.32㎡
間取り 1LDK
所在階 11階
物件登録日 2025/12/09
参考賃料 27.3万円 〜 28.8万円
㎡数 59.98㎡
間取り 1LDK
所在階 4階
物件登録日 2025/12/09
参考賃料 26.6万円 〜 28.1万円
㎡数 55.52㎡
間取り 1LDK
所在階 29階
物件登録日 2025/12/09
参考賃料 21.0万円 〜 22.0万円
㎡数 44.5㎡
間取り 1K
所在階 5階
物件登録日 2025/12/09
参考賃料 22.8万円 〜 24.3万円
㎡数 51.78㎡
間取り 1LDK
所在階 17階
物件登録日 2025/12/09
参考賃料 25.0万円 〜 26.5万円
㎡数 53.81㎡
間取り 1LDK
所在階 19階
物件登録日 2025/12/09
参考賃料 25.0万円 〜 26.5万円
㎡数 56.84㎡
間取り 1LDK
所在階 6階
物件登録日 2025/12/09
参考賃料 32.7万円 〜 34.7万円
㎡数 74.29㎡
間取り 1LDK
所在階 9階
物件登録日 2025/12/09
参考賃料 33.4万円 〜 34.9万円
㎡数 69.04㎡
間取り 2LDK
所在階 27階
物件登録日 2025/12/09
参考賃料 39.7万円 〜 41.7万円
㎡数 81.93㎡
間取り 1LDK
所在階 11階
物件登録日 2025/12/09
参考賃料 31.9万円 〜 33.9万円
㎡数 70.38㎡
間取り 2LDK
所在階 28階
物件登録日 2025/12/09
参考賃料 30.2万円 〜 31.7万円
㎡数 67.72㎡
間取り 1LDK
所在階 7階
物件登録日 2025/12/09
参考賃料 48.0万円 〜 50.0万円
㎡数 105.18㎡
間取り 3LDK
所在階 3階
物件登録日 2025/12/09
参考賃料 34.4万円 〜 36.4万円
㎡数 71.29㎡
間取り 1SLDK
所在階 30階
物件登録日 2025/12/09
参考賃料 47.5万円 〜 49.5万円
㎡数 97.8㎡
間取り 3LDK
所在階 5階
物件登録日 2025/12/09
参考賃料 33.4万円 〜 34.9万円
㎡数 69.04㎡
間取り 2LDK
所在階 27階
物件登録日 2025/12/09
参考賃料 33.1万円 〜 34.6万円
㎡数 60.04㎡
間取り 2LDK
所在階 26階
物件登録日 2025/12/09
参考賃料 24.1万円 〜 25.6万円
㎡数 52.32㎡
間取り 1LDK
所在階 11階
物件登録日 2025/10/21
参考賃料 26.6万円 〜 28.1万円
㎡数 55.52㎡
間取り 1LDK
所在階 29階
物件登録日 2025/10/21
参考賃料 24.8万円 〜 26.3万円
㎡数 53.81㎡
間取り 1LDK
所在階 11階
物件登録日 2025/10/21
参考賃料 24.0万円 〜 25.5万円
㎡数 52.98㎡
間取り 1LDK
所在階 8階
物件登録日 2025/10/21
参考賃料 21.0万円 〜 22.0万円
㎡数 44.5㎡
間取り 1K
所在階 5階
物件登録日 2025/10/21
参考賃料 25.8万円 〜 27.3万円
㎡数 56.55㎡
間取り 1LDK
所在階 9階
物件登録日 2025/10/21
参考賃料 23.1万円 〜 24.1万円
㎡数 48.10㎡
間取り 1LDK
所在階 22階
物件登録日 2025/10/21
参考賃料 25.9万円 〜 27.4万円
㎡数 53.74㎡
間取り 1LDK
所在階 30階
物件登録日 2025/10/21
参考賃料 39.7万円 〜 41.7万円
㎡数 81.93㎡
間取り 1LDK
所在階 11階
物件登録日 2025/10/20
参考賃料 34.0万円 〜 36.0万円
㎡数 70.38㎡
間取り 1SLDK
所在階 23階
物件登録日 2025/10/02
参考賃料 31.9万円 〜 33.9万円
㎡数 70.38㎡
間取り 2LDK
所在階 28階
物件登録日 2025/10/02
参考賃料 46.3万円 〜 48.3万円
㎡数 96.34㎡
間取り 2LDK
所在階 29階
物件登録日 2025/10/02
参考賃料 34.4万円 〜 36.4万円
㎡数 71.29㎡
間取り 1SLDK
所在階 30階
物件登録日 2025/10/02
参考賃料 26.1万円 〜 27.6万円
㎡数 53.81㎡
間取り 1LDK
所在階 14階
物件登録日 2025/09/26
参考賃料 34.0万円 〜 36.0万円
㎡数 70.38㎡
間取り 1SLDK
所在階 23階
物件登録日 2025/09/17
参考賃料 31.7万円 〜 33.2万円
㎡数 69.12㎡
間取り 2LDK
所在階 15階
物件登録日 2025/09/16
参考賃料 36.0万円 〜 37.0万円
㎡数 73.94㎡
間取り 2LDK
所在階 44階
物件登録日 2025/08/28
参考賃料 25.4万円 〜 26.9万円
㎡数 52.32㎡
間取り 1LDK
所在階 17階
物件登録日 2025/08/26
参考賃料 34.0万円 〜 36.0万円
㎡数 70.38㎡
間取り 1SLDK
所在階 23階
物件登録日 2025/08/26
参考賃料 34.0万円 〜 36.0万円
㎡数 70.38㎡
間取り 1SLDK
所在階 30階
物件登録日 2025/08/20

弊社の仲介手数料は【無料】または【半額+tax】です。お客様の費用負担を少しでも軽くできるよう、全力でお部屋探しをお手伝いします。

また、事故情報以外に「東京タワーズ」についてよくあるご質問をまとめました。

東京タワーズについて、事故物件以外でよくある質問と回答

東京タワーズについて、よくあるご質問をまとめました。

マンションの設備について

周辺の環境に関して

災害リスクについて

契約について

Q1. 駐車場は用意されていますか?

はい、東京タワーズには、駐車場が用意されています。

空き状況にもよりますが、平置きと機械式パーキングが利用可能で、大きさに合わせて「月27,500~46,200円(税込)」が賃料の目安です。

駐車場のサイズは以下の通りです。お借りになる際は、車検証でサイズを必ずご確認ください。

  • 全長:5,050~5,300mm
  • 全幅:1,850~1,950mm
  • 全高:1,550~2,100mm
  • 重量:2,000~2,300kg

洗車スペースも完備

駐車場には洗車できるスペースも完備しています。

都心の高級マンションでも洗車場がある物件は少ないので、車好きの人にとっては魅力的な共用設備と言えるでしょう。

Q2. 楽器の演奏はできますか?

はい、東京タワーズでは、オーナー様が楽器演奏を許可しているお部屋に限り、楽器演奏が可能です。

ただし、演奏できる楽器や時間には制限がありますので、問題なく演奏できそうか不動産会社に確認しましょう。

Q3. ペットを飼育することはできますか?

はい、東京タワーズの部屋によっては、下記のペットを合計2匹まで飼うことができます。

  • 小型犬

マンション内には足洗い場の他、シャンプーやカットができる「トリミングルーム」も用意されているので、日々のケアも不便ありません。

なお、ペットの大きさや種類によっては、オーナー様や管理組合の承諾が必要となります。そのため、必ず事前に不動産会社にご相談ください。

なお、ペットを飼育する際は、敷金が1ヶ月分積み増しになるケースもありますので、こちらも併せてご確認ください。

動物病院やペットサロンも充実

マンションから5分ほど歩いた先に「クロス動物医療センター」があるので、ペットの体調が優れないときでも安心です。

また、ペットホテルのサービスを提供している「ブルーム」というお店も併設しているので、旅行や出張のとき便利に利用できます。

その他にも下記のお店が周辺にあるので、利用するお店の比較や検討がしやすいです。

ショップ トリミング ホテル
ブルーム
salon de Ladney  
WANLABO  
HIPSTER DOG

Q4. セキュリティ面はどうですか?

東京タワーズには管理員が24時間常駐し、住まう方々の日々を見守ります。『いざという時』の迅速な対応はもちろん、防犯面でも頼れる存在がいる暮らしは、何物にも代えがたい安心感につながります。

また、エントランスに加え、エレベーターホールにもオートロックを完備。不審者の侵入を二重でブロックするため、女性の一人暮らしや小さなお子様がいるご家庭でも、安心して毎日をお過ごしいただけます。

さらに、エレベーターはお部屋の鍵がないと呼び出せない仕組みです。居住者以外はフロアに上がれないため、セキュリティ面でも安心感が違います。

Q5. コンシェルジュはいますか?何をしてくれますか?

はい、東京タワーズのフロントデスクにコンシェルジュがいます。

なお、日中であれば下記のようなコンシェルジュサービスを提供しています。

  • インフォメーション
  • タクシー・ハイヤー手配サービス
  • クリーニング取次サービス
  • メッセージ預かり
  • 共用施設の利用受付
  • 宅配便の一時預かりサービス

Q6. 周辺の治安は良いですか?

はい、勝どきの治安は良いです。

以下のマップは、2022年の1年間を通して、犯罪(自転車盗難なども含む)が合計で何件発生したのかを示したものです。

東京タワーズ周辺の治安引用:警視庁犯罪情報マップ

ご覧の通りマンション周辺は犯罪発生数が少ない薄いオレンジ色に分類されていることから、23区内でも犯罪が少なく治安が良いエリアです。

Q7. 電車などの交通アクセスはどのようなものがありますか?

周辺の主要な交通アクセスを以下の移動手段に分けて紹介します。

  1. 電車
  2. バス
  3. タクシー・車

1.電車

東京タワーズの周辺にある2つの駅からは、下記の2路線を利用することができます。

駅名 分数 路線
勝どき駅 6分
  • 都営大江戸線
月島駅 15分
  • 東京メトロ有楽町線
  • 都営大江戸線

最寄りである「勝どき駅」から利用できる「大江戸線」は、「六本木」や「新宿」方面にアクセスしやすい路線です。

一方、月島駅から利用できる「有楽町線」は、「銀座」や「永田町」方面にアクセスできます。

2.バス

バスで新橋や虎ノ門方面に行ける「東京BRT」の「勝どきBRTターミナル」が物件の近くにあり、乗り場までの時間は下記の通りです。

  • MID TOWER:1分
  • SEA TOWER:4分

2020年に運行を開始した「東京BRT」は、新橋まで約8分、虎ノ門ヒルズまで約20分で到着するので、電車を利用するより早くて便利です。

3.タクシー・車

勝どき駅に近い立地なので、タクシーを使うときも便利です。

都心の主要エリアからマンションまで、タクシーをご利用いただいた場合の目安時間と料金は以下の通りです。

エリア 通常料金(深夜料金) 時間
新橋駅 1,060円(1,220円) 約10分
銀座駅 1,140円(1,300円) 約10分
東京駅 1,780円(2,100円) 約20分
大手町駅 1,860円(2,180円) 約20分
六本木駅 2,100円(2,500円) 約20分
品川駅 2,820円(3,380円) 約20~30分
渋谷駅 3,460円(4,100円) 約30分
新宿駅 4,100円(4,900円) 約30~40分

また、近くに首都高の「晴海IC」があるので、車移動が多い方にも便利な立地です。

マンションの駐車場からわずか5~6分で首都高速道路に乗れるため、下道の渋滞に巻き込まれる心配もありません。

Q8. 周辺にコンビニやスーパーはありますか?

はい、徒歩圏内にコンビニやスーパーが充実しており、日々の買い物が大変便利な立地です。(詳細は下図参照)

東京タワーズ周辺の治安引用:Google Map

まず、東京タワーズは、マンション内に24時間営業のスーパー「マルエツ」があるので、日常的な買い物が便利です。

コンビニは、徒歩3分圏内(約240m)に以下の2つがあるので便利です。

  • セブンイレブン
  • ファミリーマート

薬局・ドラッグストアも近い

マンションから徒歩5分圏内(約400m)には、5つの薬局・ドラッグストアがあるので便利です。

  • のぞみ薬局(約200m、徒歩2~3分)
  • どらっぐぱぱす(約200m、徒歩2~3分)
  • さくら薬局(約350m、徒歩4分)
  • 日本調剤(約350m、徒歩5分)
  • パンダ薬局(約400m、徒歩5分)

Q9. 周辺にどんな飲食店がありますか?

東京タワーズ周辺は飲食店が少ないです。

ただし、勝どき駅や歩いて10分ほどの距離にある「晴海トリトン」の中には以下のような飲食店があります。

  • カフェ
  • ラーメン店
  • 蕎麦・うどん屋
  • 牛カツ専門店
  • とんかつ屋
  • 回転寿司屋
  • 中華料理店
  • タイ料理店
  • インド料理店
  • 台湾料理店
  • ステーキ店
  • 焼肉店
  • イタリアンレストラン
  • 居酒屋
  • ベーカリー
  • ファストフード店
  • フードコート

これだけ多くのお店を利用できるので、勝どき駅や晴海トリトンまで行けば外食で困ることはないと言えるでしょう。

また、近隣には高級飲食店が集う「銀座」があるため、グルメな方でも満足いただけるでしょう。

東京タワーズ周辺のその他のグルメ情報

その他、以下のようにチェーンの飲食店も周辺にあります。

・ファミレス

  • サイゼリヤ(約600m、徒歩8分)
  • デニーズ(約850m、徒歩12分)

・牛丼

  • すき家(約300m、徒歩4分)
  • なか卯(約650m、徒歩9分)
  • 松屋(約650m、徒歩8分)
  • 松のや(約260m、徒歩4分)

・カフェ

  • ドトール(約600m、徒歩9分)

Q10. 学区域の小・中学校はどちらですか?

東京タワーズの学区域は以下の通りです。(※学区域は変更になる場合があります。最新の情報は、各区教育委員会のウェブサイト等でご確認ください。)

小学校 中学校
豊海小学校 晴海中学校
徒歩5分 徒歩18分

上記の通り、学区域の小学校は近いですが、中学校まで遠いので、お子さまの通学面では不便な立地条件となります。

そのため、お子さまがいらっしゃるご家庭は、通学面も考慮に入れてご検討ください。

ただし、晴海中学校までの通学路は以下の通り、歩道が整備されている場所が多く安心です。

東京タワーズの学区

中学校までの通学路1 中学校までの通学路2
東京タワーズの学区 ザ・レジデンス六本木の共用部
中学校までの通学路3 中学校までの通学路4
東京タワーズの学区 東京タワーズの学区

Q11. 周辺に保育園はありますか?

はい、保育園に関しても、マンションの敷地内に「さわやか保育園」があるので、入園できれば共働きで忙しいご家庭の負担も減るでしょう。

その他にも、マンション周辺には保育園が複数あるので、選択肢は比較的多いです。

東京タワーズ保育園引用:Google Map

Q12. 周辺に子育てに便利な施設はありますか?

はい、歩いて2分圏内に下記のお店や施設が揃っているので、子育て世帯には魅力的です。

  • マルエツ(スーパー)
  • どらっぐぱぱす
  • のぞみ薬局
  • ザ東京タワーズクリニック(小児科)
  • さわやか保育園
  • 勝どきえほん保育園
  • セブンイレブン
  • ファミリーマート

上記の中でも「マルエツ」は、MID TOWER1階にある24時間営業の大型スーパーです。

子育てや仕事に忙しい親御さんにとって、時間や天候を気にせずに買い物できるという点は大きなメリットになるでしょう。

車があればお台場も気軽に行ける

車で15分ほどの場所には、自然豊かなビーチやレジャー施設などが充実しているお台場があるので、車があるとさらに便利です。

また、お台場では1年を通してさまざまなイベントが開催されているので、季節ごとのイベントを家族で楽しめる魅力的な街です。

お台場のイメージ

仮に車を持っていない場合でも、マンションから5分圏内にカーシェアのステーションが10箇所以上あるので安心です。

Q13. マンションは地震に強い構造ですか?

はい、東京タワーズは、下記の2社が共同施工した、地震に強い「制振構造」のタワーマンションです。

  • 大成建設|国内大手5社(スーパーゼネコン)
  • 前田建設工業|準大手(ゼネコン)

制震構造は、建物に組み込まれた「制震装置」が地震のエネルギーを吸収することで、大きな揺れが来た際にも建物の被害を軽減できる仕組みです。

また、タワーマンションに採用される耐震構造は主に3つありますが、中でも制震構造は非常にバランスの取れた構造と言えます。

  免震構造 制震構造 耐震構造
地震の揺れ ほぼ感じない 軽減 揺れやすい
建物の被害 大幅に軽減 軽減 受けやすい
家具に被害 大幅に軽減 軽減 受けやすい
強風による揺れ ゆっくりと長く揺れる ほぼ感じない ほぼ感じない

高層建築物でも広く採用されている

制震構造はタワーマンションだけでなく、高層建築物にも広く採用されている信頼度の高い構造です。

以下は、制震構造を採用している有名な高層建築物です。

東京都庁
東京都庁の外観写真
東京スカイツリー
東京スカイツリーの写真

これらの理由から、「タワーマンションに住みたいけれど、地震が心配」という方にも、積極的にご検討いただきたい物件です。

Q14. 洪水などによる浸水のリスクはありますか?

はい、浸水リスクを調べたところ、最大規模の氾濫が起きた場合、マンションが建つエリアは「0.5m未満」の浸水が予測されています。

東京タワーズ周辺のハザードマップ引用:ハザードマップポータルサイト

万が一、マンション周辺で氾濫が起こった場合は、最大で建物1階部分まで浸水する可能性がありますので、浸水リスクも含めて検討するようにしましょう。

Q15. 液状化のリスクはありますか?

はい、勝どきエリアは埋立地なので、液状化のリスクがあります。

中でも東京タワーズの地形は「液状化のリスクが大きい」とハザードマップに記されています。

ですので、絶対に液状化で悩みたくない人は、勝どきを含む埋立地のマンションは避けたほうがいいでしょう。

Q16. 保証会社の利用は必須ですか?

はい、東京タワーズの多くの部屋が、保証会社の利用を必須としています。

契約する保証会社は部屋によって異なるため、明確な費用は算出できませんが、初回保証料として総賃料の40~50%が相場となります。

借りる方にとっては追加費用が発生するものの、連帯保証人を用意する手間が省けるというメリットがあります。

Q17. 審査難易度はどのようになっていますか?

結論、東京タワーズは分譲マンションのため、オーナー様によって審査の難易度が異なります。

したがって、特定の部屋の審査に落ちた場合でも、別の部屋であれば審査に通る可能性は十分にあります。

もし他にも気になるお部屋がある場合は、改めて申し込みが可能かどうか、不動産会社にご確認ください。

よくある質問とその回答は以上です。

ここから、マンションをよりイメージした上で契約したい方のために、画像でマンション内の内装や設備を紹介します。

豊富な画像でわかる!東京タワーズのエントランス・室内イメージ

東京タワーズの室内や共用スペースはどうなっているのか、契約前により具体的にイメージいただくために、以下の3つに分けて画像で紹介します。

① エントランス

まず、エントランスは1階と3階部分にそれぞれ用意されています。

1階エントランスは、以下のようにガラス張りで開放的な雰囲気です。

東京タワーズのエントランス画像引用元:SUUMO

1階エントランス脇には、3階のエントランスへと続くエスカレーターとエレベーターがあります。

東京タワーズのエントランス画像引用元:公式パンフレット

3階エントランスへと向かうアプローチは、以下のように開放的な雰囲気です。

東京タワーズのエントランス

東京タワーズのエントランス

アプローチの雨避けに沿って奥に進むと、以下のようにシンプルな佇まいの3階エントランスが用意されています。

エントランス
MID TOWER(3階) SEA TOWER(3階)
東京タワーズのエントランス 東京タワーズのエントランス

エントランス内部は、オートロックを採用しているので防犯面でも安心してご利用いただけます。

エントランス内部
MID TOWER(3階) SEA TOWER(3階)
東京タワーズのエントランス 東京タワーズのエントランス

オートロックを通過すると、2層吹き抜けで開放的な雰囲気のエントランスホールが用意されています。

エントランスホール
MID TOWER(1階)
東京タワーズのエントランス
SEA TOWER(3階) SEA TOWER(3階)
東京タワーズのエントランス 東京タワーズの共用部
画像引用元:MID TOWER1階:三井不動産SEA TOWER3階:SUUMO

エントランスホールを奥に進むと、エレベーターホールとなります。

エレベーターホールの扉には、2つ目のオートロックが導入されているので、こちらのセキュリティも万全の体制となっています。

東京タワーズのエレベーターホール
MID TOWER SEA TOWER
東京タワーズのエントランス 東京タワーズのエントランス

どちらの塔も、居住階によって利用するエレベーターが異なるので、混雑する時間帯でも満員で乗れないということはないでしょう。

東京タワーズのエントランス画像引用元:SUUMO

②. 共用部

東京タワーズは勝どきエリアの中でも共用施設が特に多い物件ですので、タワーマンションならではの生活を求める方には理想の物件と言えます。

この章では、下記の代表的な共用施設の概要や利用料金などを詳しく解説していきます。

共用施設一覧
MID TOWER SEA TOWER SEASIDE ANNEX
(入居者用スポーツ施設)
  • カンファレンスルーム
  • ミッドロビー
  • ミーティングルーム
  • プライベートラウンジ
  • シアターコーナー
  • コミュニティギャラリー
  • ゲストルーム
  • キッズルーム
  • ライブラリー
  • パーティールーム
  • スカイラウンジ
  • スカイゲストルーム
  • トリミングルーム
  • シーロビー
  • カフェラウンジ
  • プライベートラウンジ
  • スタディーコーナー
  • キッズルーム
  • プレイコーナー
  • ゲストルーム
  • シアターコーナー
  • マルチシアターコーナー
  • カルチャーホール
  • ミーティングルーム
  • リラクゼーションルーム
  • スカイラウンジ
  • スカイゲストルーム
  • フィットネススタジオ
  • リラクゼーション施設
  • ゴルフレンジ
  • パーティースタジオ
  • ビューデッキ

カンファレンスルーム|MID TOWER

MID TOWER2階には、打ち合わせなどに使えるカンファレンスルームが用意されています。

・利用可能な方
  • MID 3~30階の居住者
・利用時間
  • 09:00~22:00
・利用料金
  • 1,000円/1回
・その他
  • 定員 和室12名 洋室20名
  • 最大利用時間 3時間

ミーティングルーム|MID TOWER

MID TOWER3階には、打ち合わせなどにご利用いただけるミーティングルームが全2室用意されています。

東京タワーズの共用部

・利用可能な方
  • MID 3~30階の居住者
・利用時間
  • 09:00~22:00
・利用料金
  • 1,000円/1回
・その他
  • 定員 ミーティングルーム①12名まで ミーティングルーム②8名まで
  • 最大利用時間 3時間
  • インターネット利用可

シアターコーナー|MID TOWER

MID TOWER4階には、映画鑑賞を楽しんでいただけるシアターコーナーが用意されています。

東京タワーズの共用部

・利用可能な方
  • MID & SEA 全ての居住者
・利用時間
  • 09:00~22:00
・利用料金
  • 100円/1回(MID 3~30階の居住者)
  • 1,000円/1回(MID 31~58階 & SEA の居住者)
・その他
  • 定員 6名
  • 最大利用時間 3時間

ゲストルーム|MID TOWER

MID TOWERの4階には、ゲストルームが用意されています。

・利用可能な方
  • MID 31~58階 & SEA の居住者
・利用時間
  • チェックイン 15:00
  • チェックアウト 10:00
・利用料金
  • 3,000円/1泊
・その他
  • 定員 2名
  • 連泊は2日まで

キッズルーム|MID TOWER

MID TOWER3階にはキッズルームが用意されています。

お子さまの遊び場としてだけでなく、パパ友やママ友の交流の場としてもご利用いただけるでしょう。

・利用可能な方
  • MID & SEA 全ての居住者
・利用時間
  • 09:00~18:00
・利用料金
  • 無料
・その他
  • 定員 10名
画像引用元:三井不動産

ライブラリールーム|MID TOWER

MID TOWERの16階には、読書や作業にご活用いただけるライブラリールームが用意されています。

東京タワーズの共用部

・利用可能な方
  • MID 3~30階の居住者
・利用時間
  • 09:00~18:00
・利用料金
  • 無料
・その他
  • 定員 16名
  • インターネット利用可
画像引用元:HOME’S

パーティールーム|MID TOWER

マンションの21階には、パーティールームが用意されているので、友人とのホームパーティーなどにご活用いただけます。

東京タワーズの共用部

・利用可能な方
  • MID 3~30階の居住者
・利用時間
  • 09:00~21:00
・利用料金
  • 月~木 1,000円
  • 金~日 2,000円
・その他
  • 定員 約10名
  • 最大利用時間 3時間
  • インターネット利用可

ゲストルーム|MID TOWER

マンションの26階にはゲストルームが用意されているので、遠方からの来客があった場合も時間を気にせずお過ごしいただけます。

東京タワーズの共用部

・利用可能な方
  • MID 3~30階の居住者
・利用時間
  • チェックイン 15:00
  • チェックアウト 10:00
・利用料金
  • 5,000円/1泊
・その他
  • 定員 2名
  • 最大利用回数 1回/1ヶ月
  • 連泊不可
  • インターネット利用可
画像引用元:三井不動産

スカイラウンジ|MID TOWER

MID TOWERの54・55階には、湾岸の風景を一望できるスカイラウンジが用意されています。

東京タワーズの共用部

東京タワーズの共用部

・利用可能な方
  • MID 31~58階 & SEA の居住者
・利用時間
  • 10:00~22:00
・利用料金
  • 一般利用時 無料
  • 貸切利用時 1,500円/1時間
画像引用元:SUUMO

スカイゲストルーム|MID TOWER

MID TOWERの54・55階には、豪華なバスルーム付きのゲストルームが用意されています。

東京タワーズの共用部

・利用可能な方
  • MID 31~58階 & SEA の居住者
・利用時間
  • チェックイン 15:00
  • チェックアウト 10:00
・利用料金
  • 5,000円/1泊
・その他
  • 連泊不可
画像引用元:公式パンフレット

シアターコーナー|SEA TOWER

SEA TOWERには4階には、シアターコーナーが用意されています。

東京タワーズの共用部

・利用可能な方
  • MID 31~58階 & SEA の居住者
・利用時間
  • 09:00~22:00
・利用料金
  • 100円/1時間
・その他
  • 定員 6名
  • 最大利用時間 3時間

マルチシアターコーナー|SEA TOWER

SEA TOWER3階には、通常のシアターコーナーよりもスペースの広いマルチシアターコーナーが用意されています。

・利用可能な方
  • MID 31~58階 & SEA の居住者
・利用時間
  • 10:00~22:00
・利用料金
  • 100円/1時間
・その他
  • 最大利用時間 3時間

キッズコーナー|SEA TOWER

SEA TOWER3階には、お子さまの遊び場として活用できるキッズコーナーが用意されています。

東京タワーズの共用部

・利用可能な方
  • MID 31~58階 & SEA の居住者
・利用時間
  • 10:00~22:00
・利用料金
  • 無料
画像引用元:SUUMO

カルチャーホール|SEA TOWER

SEA TOWER内には、シアターコーナーの待機スペースや読書スペースとしてご活用いただけるカルチャーホールが用意されています。

・利用可能な方
  • MID 31~58階 & SEA の居住者
・利用時間
  • 09:00~22:00
・利用料金
  • 無料

ミーティングルーム|SEA TOWER

SEA TOWER4階には、打ち合わせなどにご活用いただけるミーティングルームが用意されています

・利用可能な方
  • MID 31~58階 & SEA の居住者
・利用時間
  • 09:00~22:00
・利用料金
  • 200円/1時間
・その他
  • 最大利用時間 3時間まで

プレイコーナー|SEA TOWER

SEA TOWERには、カードゲームなどをお楽しみいただけるプレイコーナーが用意されています。

・利用可能な方
  • MID 31~58階 & SEA の居住者
・利用時間
  • 10:00~22:00
・利用料金
  • 200円/1時間
・その他
  • 最大利用時間 4時間まで

スタディーコーナー|SEA TOWER

SEA TOWERには、勉強スペースとしてご活用いただける、スタディーコーナーが用意されています。

以下の通り間仕切りもあるので、集中して作業ができます。

東京タワーズの共用部

・利用可能な方
  • MID 31~58階 & SEA の居住者
・利用時間
  • 09:00~22:00
・利用料金
  • 無料
・その他
  • 最大利用時間 3時間まで

ゲストルーム|SEA TOWER

SEA TOWER3階には、宿泊が可能なゲストルームが用意されています。

・利用可能な方
  • MID 31~58階 & SEA の居住者
・利用時間
  • チェックイン 15:00
  • チェックアウト 10:00
・利用料金
  • 3,000円/1泊
・その他
  • 2連泊まで可

スカイゲストルーム|SEA TOWER

SEA TOWERの49・50階には、湾岸の景色が一望できるスカイゲストルームが用意されています。

スカイゲストルーム内には、豪華なジャグジーもついています。

スカイゲストルームのベッドルーム
東京タワーズの共用部
スカイゲストルームのジャグジー
東京タワーズの共用部
・利用可能な方
  • MID 31~58階 & SEA の居住者
・利用時間
  • チェックイン 15:00
  • チェックアウト 10:00
・利用料金
  • 5,000円/1泊
・その他
  • 連泊不可
画像引用元:公式パンフレット

スカイラウンジ|SEA TOWER

SEA TOWERの49・50階には湾岸の景色を楽しめる、2層吹き抜けで開放感のあるスカイラウンジが用意されています。

49階部分 50階部分
東京タワーズの共用部 東京タワーズの共用部
・利用可能な方
  • MID 31~58階 & SEA の居住者
・利用時間
  • 10:00~22:00
・利用料金
  • 一般利用時 無料
  • 貸切利用時 1,500円/1時間

カフェラウンジ|SEA TOWER

SEA TOWERの1階には、パンやコーヒーを楽しめるカフェラウンジが用意されています。

東京タワーズの共用部

・利用可能な方
  • MID 31~58階 & SEA の居住者
・利用時間
  • 平日 08:00~16:00
  • 土日祝 10:00~18:00
・利用料金
  • メニューに準ずる
・その他
  • 休業日 木曜日
画像引用元:SUUMO

SEASIDE ANNEX

マンションの敷地内には、フィットネスジムなどの体を動かせる施設や、サウナなどのリラクゼーション施設が揃ったSEASIDE ANNEXが用意されています。

下記は、SEASIDE ANNEXにある全ての施設です。

  • フィットネスジム
  • プール
  • ジャグジー
  • サウナ
  • ゴルフレンジ

なお、フィットネスジムは、大手スポーツジムの「セントラル」と提携しているため、インストラクターによる指導を受けることができます。

SEASIDE ANNEX外観 フィットネスジム
東京タワーズの共用部 東京タワーズの共用部
ブール ジャグジー
東京タワーズの共用部 東京タワーズの共用部
・利用できる方
  • 全ての居住者
  • MID 31~58階 & SEA に住んでいる方の同伴者
・利用時間
  • 平日 07:00~22:00
  • 土日祝 10:00~22:00
・利用料金

  • 1,000円/1回(MID 3~30階の居住者)
  • 300円/1回(MID 31~58階 & SEA の居住者)
  • 500円/1回(MID 31~58階 & SEA に住んでいる方の同伴者)
・その他
  • 休館日 月曜日 ※月曜が祝日の場合は翌日が休館
  • ゴルフレンジの利用は1回30分まで
画像引用元:外観・フィットネスルーム:SUUMOプール・ジャグジー:公式パンフレット

パーティースタジオ|SEASIDE ANNEX

SEASIDE ANNEXには、ホームパーティなどを楽しめるパーティースタジオも用意されています。

東京タワーズの共用部

・利用できる方
  • 全ての居住者
  • MID 31~58階 & SEA に住んでいる方の同伴者
・利用時間
  • 平日 07:00~22:00
  • 土日祝 10:00~22:00
・利用料金
  • 3時間 3,000円/1回
・その他
  • 休館日 月曜日 ※月曜が祝日の場合は翌日が休館
画像引用元:公式パンフレット

ビューデッキ|SEASIDE ANNEX

SEASIDE ANNEXの屋上には、お台場方面の夜景を一望できるビューデッキが用意されています。

東京タワーズの共用部

・利用できる方
  • 全ての居住者
  • MID 31~58階 & SEA に住んでいる方の同伴者
・利用時間
  • 10:00~22:00
・利用料金
  • 無料
画像引用元:公式パンフレット

③. 室内イメージ

モデルルームは以下のイメージです。(モデルルームなので、実際の内容とは異なる可能性があります。)

モデルルーム
東京タワーズのモデルルーム 東京タワーズのモデルルーム
東京タワーズのモデルルーム 東京タワーズのモデルルーム
東京タワーズのモデルルーム 東京タワーズのモデルルーム
東京タワーズのモデルルーム 東京タワーズのモデルルーム
画像引用元:三井不動産

リビングなどは以下のイメージです。(過去に募集されていた部屋なので、実際の内容とは異なる可能性があります。)

東京タワーズの室内 東京タワーズのモデルルーム
東京タワーズの室内 東京タワーズの室内
東京タワーズの室内 東京タワーズの室内
東京タワーズの室内 東京タワーズの室内
東京タワーズの室内 東京タワーズの室内

以下はメゾネットタイプの室内イメージです。(家具などの調度品は、撮影用となっています。)

東京タワーズのモデルルーム 東京タワーズのモデルルーム
東京タワーズのモデルルーム 東京タワーズのモデルルーム
東京タワーズのモデルルーム 東京タワーズのモデルルーム

水回りの雰囲気は以下のようになっており、どれも洗練された作りです。

キッチン 浴室
東京タワーズの室内 東京タワーズの室内
洗面台 トイレ
東京タワーズの室内 東京タワーズの室内
画像引用元:SUUMO

室内の素材や雰囲気は、お部屋によって異なります。必ず内見でご確認ください。

まとめ

東京タワーズについて、事故物件を徹底的にリサーチした結果、事故の情報が1件ありました。

事故内容 時期 部屋
転落死 不明 不明

弊社は、お客様がご心配であれば、過去の事故の有無や詳細について、契約前に貸主に確認させていただきますので、お気軽にお申し付けください。

改めて、現在募集されている部屋、過去に募集された部屋は以下の通りです。気になる部屋があれば、ご連絡をお待ちしています。

上段:SEA TOWER|下段:MID TOWER

物件アーカイブ 過去に募集された部屋一覧

参考賃料 29.9万円 〜 31.9万円
㎡数 63.07㎡
間取り 1SLDK
所在階 10階
物件登録日 2026/03/06
参考賃料 38.9万円 〜 41.4万円
㎡数 80.23㎡
間取り 2LDK
所在階 44階
物件登録日 2026/01/17
参考賃料 34.0万円 〜 36.0万円
㎡数 70.12㎡
間取り 2SLDK
所在階 9階
物件登録日 2026/01/13
参考賃料 34.0万円 〜 36.0万円
㎡数 70.12㎡
間取り 2SLDK
所在階 9階
物件登録日 2025/12/16
参考賃料 22.0万円 〜 23.5万円
㎡数 54.12㎡
間取り 1LDK
所在階 17階
物件登録日 2025/10/28
参考賃料 30.0万円 〜 32.0万円
㎡数 63.33㎡
間取り 2LDK
所在階 31階
物件登録日 2025/09/29
参考賃料 31.0万円 〜 33.0万円
㎡数 67.44㎡
間取り 2SLDK
所在階 16階
物件登録日 2025/09/01
参考賃料 40.0万円 〜 42.0万円
㎡数 80.23㎡
間取り 2LDK
所在階 44階
物件登録日 2025/08/23
参考賃料 50.0万円 〜 52.0万円
㎡数 84.06㎡
間取り 3LDK
所在階 22階
物件登録日 2025/04/01
参考賃料 27.5万円 〜 29.5万円
㎡数 63.07㎡
間取り 2LDK
所在階 17階
物件登録日 2025/03/26
参考賃料 39.5万円 〜 42.0万円
㎡数 93.88㎡
間取り 3LDK
所在階 38階
物件登録日 2025/03/18
参考賃料 30.0万円 〜 31.0万円
㎡数 67.44㎡
間取り 2LDK
所在階 25階
物件登録日 2025/01/27
参考賃料 44.0万円 〜 46.0万円
㎡数 91.58㎡
間取り 3LDK
所在階 46階
物件登録日 2024/11/25
参考賃料 39.0万円 〜 42.0万円
㎡数 102.91㎡
間取り 3LDK
所在階 6階
物件登録日 2024/09/24
参考賃料 32.0万円 〜 34.0万円
㎡数 78.96㎡
間取り 3LDK
所在階 27階
物件登録日 2024/09/17
参考賃料 32.0万円 〜 34.0万円
㎡数 78.96㎡
間取り 3LDK
所在階 27階
物件登録日 2024/09/12
参考賃料 56.0万円 〜 57.0万円
㎡数 113.72㎡
間取り 3LDK
所在階 57階
物件登録日 2024/07/18
参考賃料 27.0万円 〜 29.0万円
㎡数 70.78㎡
間取り 2LDK
所在階 32階
物件登録日 2024/05/27
参考賃料 30.3万円 〜 31.3万円
㎡数 70.78㎡
間取り 2LDK
所在階 32階
物件登録日 2024/04/04
参考賃料 19.2万円 〜 21.0万円
㎡数 54.12㎡
間取り 1LDK
所在階 24階
物件登録日 2024/04/01
参考賃料 19.2万円 〜 21.0万円
㎡数 54.12㎡
間取り 1LDK
所在階 24階
物件登録日 2024/03/18
参考賃料 30.3万円 〜 31.3万円
㎡数 70.78㎡
間取り 2LDK
所在階 32階
物件登録日 2024/02/15
参考賃料 47.0万円 〜 48.0万円
㎡数 101.5㎡
間取り 3LDK
所在階 15階
物件登録日 2024/02/14
参考賃料 24.3万円 〜 26.3万円
㎡数 66.43㎡
間取り 1SLDK
所在階 7階
物件登録日 2024/01/30
参考賃料 29.0万円 〜 32.0万円
㎡数 67.44㎡
間取り 2LDK
所在階 22階
物件登録日 2024/01/30
参考賃料 29.0万円 〜 32.0万円
㎡数 67.44㎡
間取り 2LDK
所在階 22階
物件登録日 2024/01/17
参考賃料 95.0万円 〜 96.0万円
㎡数 146.57㎡
間取り 2LDK
所在階 58階
物件登録日 2024/01/12
参考賃料 24.3万円 〜 26.3万円
㎡数 66.43㎡
間取り 1SLDK
所在階 7階
物件登録日 2024/01/05
参考賃料 24.3万円 〜 26.3万円
㎡数 66.43㎡
間取り 1SLDK
所在階 7階
物件登録日 2023/12/22
参考賃料 53.0万円 〜 55.0万円
㎡数 120.17㎡
間取り 2LDK
所在階 40階
物件登録日 2023/12/19
参考賃料 95.0万円 〜 96.0万円
㎡数 146.57㎡
間取り 2LDK
所在階 58階
物件登録日 2023/12/19
参考賃料 38.3万円 〜 40.0万円
㎡数 84.06㎡
間取り 2LDK
所在階 15階
物件登録日 2023/10/30
参考賃料 100.0万円 〜 101.0万円
㎡数 120.05㎡
間取り 2LDK
所在階 58階
物件登録日 2023/10/12
参考賃料 19.8万円 〜 21.3万円
㎡数 54.12㎡
間取り 1LDK
所在階 17階
物件登録日 2023/07/04
参考賃料 60.0万円 〜 61.0万円
㎡数 135.7㎡
間取り 3LDK
所在階 33階
物件登録日 2022/12/27
参考賃料 43.0万円 〜 45.0万円
㎡数 99.64㎡
間取り 3LDK
所在階 55階
物件登録日 2022/11/10
参考賃料 28.0万円 〜 30.0万円
㎡数 77.08㎡
間取り 2LDK
所在階 6階
物件登録日 2022/10/21
参考賃料 23.0万円 〜 25.0万円
㎡数 63.33㎡
間取り 1LDK
所在階 31階
物件登録日 2022/10/17
参考賃料 57.0万円 〜 60.0万円
㎡数 120.17㎡
間取り 3LDK
所在階 32階
物件登録日 2022/10/07
参考賃料 28.0万円 〜 30.0万円
㎡数 70.78㎡
間取り 2LDK
所在階 32階
物件登録日 2022/08/20
参考賃料 60.0万円 〜 63.0万円
㎡数 120.17㎡
間取り 3LDK
所在階 32階
物件登録日 2022/08/06
参考賃料 24.0万円 〜 25.0万円
㎡数 63.07㎡
間取り 1LDK
所在階 16階
物件登録日 2022/08/06
参考賃料 38.3万円 〜 40.0万円
㎡数 84.06㎡
間取り 2LDK
所在階 15階
物件登録日 2022/08/06
参考賃料 24.5万円 〜 26.5万円
㎡数 63.07㎡
間取り 2LDK
所在階 12階
物件登録日 2022/07/27
参考賃料 39.0万円 〜 41.0万円
㎡数 102.91㎡
間取り 3LDK
所在階 6階
物件登録日 2022/07/19
参考賃料 29.5万円 〜 31.0万円
㎡数 76.35㎡
間取り 3LDK
所在階 11階
物件登録日 2022/06/14
参考賃料 27.9万円 〜 29.9万円
㎡数 77.20㎡
間取り 3LDK
所在階 22階
物件登録日 2022/04/13
参考賃料 42.0万円 〜 43.0万円
㎡数 90.41㎡
間取り 3LDK
所在階 32階
物件登録日 2022/03/04
参考賃料 53.0万円 〜 55.0万円
㎡数 120.17㎡
間取り 2LDK
所在階 40階
物件登録日 2022/03/04
参考賃料 38.5万円 〜 39.5万円
㎡数 89.14㎡
間取り 2LDK
所在階 45階
物件登録日 2022/03/04

物件アーカイブ 過去に募集された部屋一覧

参考賃料 50.0万円 〜 52.0万円
㎡数 91.51㎡
間取り 4LDK
所在階 52階
物件登録日 2026/01/15
参考賃料 32.7万円 〜 34.7万円
㎡数 74.29㎡
間取り 1LDK
所在階 9階
物件登録日 2025/12/18
参考賃料 24.0万円 〜 25.5万円
㎡数 52.45㎡
間取り 1LDK
所在階 22階
物件登録日 2025/12/09
参考賃料 24.7万円 〜 26.2万円
㎡数 53.74㎡
間取り 1LDK
所在階 22階
物件登録日 2025/12/09
参考賃料 25.4万円 〜 26.9万円
㎡数 54.21㎡
間取り 1LDK
所在階 20階
物件登録日 2025/12/09
参考賃料 29.8万円 〜 31.3万円
㎡数 65.59㎡
間取り 1LDK
所在階 18階
物件登録日 2025/12/09
参考賃料 21.9万円 〜 23.4万円
㎡数 50.59㎡
間取り 1K
所在階 18階
物件登録日 2025/12/09
参考賃料 23.1万円 〜 24.6万円
㎡数 50.59㎡
間取り 1K
所在階 12階
物件登録日 2025/12/09
参考賃料 25.8万円 〜 27.3万円
㎡数 56.55㎡
間取り 1LDK
所在階 9階
物件登録日 2025/12/09
参考賃料 21.1万円 〜 22.1万円
㎡数 47.57㎡
間取り 1DK
所在階 16階
物件登録日 2025/12/09
参考賃料 24.0万円 〜 25.5万円
㎡数 52.98㎡
間取り 1LDK
所在階 8階
物件登録日 2025/12/09
参考賃料 26.1万円 〜 27.6万円
㎡数 53.81㎡
間取り 1LDK
所在階 14階
物件登録日 2025/12/09
参考賃料 23.6万円 〜 25.1万円
㎡数 51.78㎡
間取り 1LDK
所在階 13階
物件登録日 2025/12/09
参考賃料 24.1万円 〜 25.6万円
㎡数 52.32㎡
間取り 1LDK
所在階 11階
物件登録日 2025/12/09
参考賃料 27.3万円 〜 28.8万円
㎡数 59.98㎡
間取り 1LDK
所在階 4階
物件登録日 2025/12/09
参考賃料 26.6万円 〜 28.1万円
㎡数 55.52㎡
間取り 1LDK
所在階 29階
物件登録日 2025/12/09
参考賃料 21.0万円 〜 22.0万円
㎡数 44.5㎡
間取り 1K
所在階 5階
物件登録日 2025/12/09
参考賃料 22.8万円 〜 24.3万円
㎡数 51.78㎡
間取り 1LDK
所在階 17階
物件登録日 2025/12/09
参考賃料 25.0万円 〜 26.5万円
㎡数 53.81㎡
間取り 1LDK
所在階 19階
物件登録日 2025/12/09
参考賃料 25.0万円 〜 26.5万円
㎡数 56.84㎡
間取り 1LDK
所在階 6階
物件登録日 2025/12/09
参考賃料 32.7万円 〜 34.7万円
㎡数 74.29㎡
間取り 1LDK
所在階 9階
物件登録日 2025/12/09
参考賃料 33.4万円 〜 34.9万円
㎡数 69.04㎡
間取り 2LDK
所在階 27階
物件登録日 2025/12/09
参考賃料 39.7万円 〜 41.7万円
㎡数 81.93㎡
間取り 1LDK
所在階 11階
物件登録日 2025/12/09
参考賃料 31.9万円 〜 33.9万円
㎡数 70.38㎡
間取り 2LDK
所在階 28階
物件登録日 2025/12/09
参考賃料 30.2万円 〜 31.7万円
㎡数 67.72㎡
間取り 1LDK
所在階 7階
物件登録日 2025/12/09
参考賃料 48.0万円 〜 50.0万円
㎡数 105.18㎡
間取り 3LDK
所在階 3階
物件登録日 2025/12/09
参考賃料 34.4万円 〜 36.4万円
㎡数 71.29㎡
間取り 1SLDK
所在階 30階
物件登録日 2025/12/09
参考賃料 47.5万円 〜 49.5万円
㎡数 97.8㎡
間取り 3LDK
所在階 5階
物件登録日 2025/12/09
参考賃料 33.4万円 〜 34.9万円
㎡数 69.04㎡
間取り 2LDK
所在階 27階
物件登録日 2025/12/09
参考賃料 33.1万円 〜 34.6万円
㎡数 60.04㎡
間取り 2LDK
所在階 26階
物件登録日 2025/12/09
参考賃料 24.1万円 〜 25.6万円
㎡数 52.32㎡
間取り 1LDK
所在階 11階
物件登録日 2025/10/21
参考賃料 26.6万円 〜 28.1万円
㎡数 55.52㎡
間取り 1LDK
所在階 29階
物件登録日 2025/10/21
参考賃料 24.8万円 〜 26.3万円
㎡数 53.81㎡
間取り 1LDK
所在階 11階
物件登録日 2025/10/21
参考賃料 24.0万円 〜 25.5万円
㎡数 52.98㎡
間取り 1LDK
所在階 8階
物件登録日 2025/10/21
参考賃料 21.0万円 〜 22.0万円
㎡数 44.5㎡
間取り 1K
所在階 5階
物件登録日 2025/10/21
参考賃料 25.8万円 〜 27.3万円
㎡数 56.55㎡
間取り 1LDK
所在階 9階
物件登録日 2025/10/21
参考賃料 23.1万円 〜 24.1万円
㎡数 48.10㎡
間取り 1LDK
所在階 22階
物件登録日 2025/10/21
参考賃料 25.9万円 〜 27.4万円
㎡数 53.74㎡
間取り 1LDK
所在階 30階
物件登録日 2025/10/21
参考賃料 39.7万円 〜 41.7万円
㎡数 81.93㎡
間取り 1LDK
所在階 11階
物件登録日 2025/10/20
参考賃料 34.0万円 〜 36.0万円
㎡数 70.38㎡
間取り 1SLDK
所在階 23階
物件登録日 2025/10/02
参考賃料 31.9万円 〜 33.9万円
㎡数 70.38㎡
間取り 2LDK
所在階 28階
物件登録日 2025/10/02
参考賃料 46.3万円 〜 48.3万円
㎡数 96.34㎡
間取り 2LDK
所在階 29階
物件登録日 2025/10/02
参考賃料 34.4万円 〜 36.4万円
㎡数 71.29㎡
間取り 1SLDK
所在階 30階
物件登録日 2025/10/02
参考賃料 26.1万円 〜 27.6万円
㎡数 53.81㎡
間取り 1LDK
所在階 14階
物件登録日 2025/09/26
参考賃料 34.0万円 〜 36.0万円
㎡数 70.38㎡
間取り 1SLDK
所在階 23階
物件登録日 2025/09/17
参考賃料 31.7万円 〜 33.2万円
㎡数 69.12㎡
間取り 2LDK
所在階 15階
物件登録日 2025/09/16
参考賃料 36.0万円 〜 37.0万円
㎡数 73.94㎡
間取り 2LDK
所在階 44階
物件登録日 2025/08/28
参考賃料 25.4万円 〜 26.9万円
㎡数 52.32㎡
間取り 1LDK
所在階 17階
物件登録日 2025/08/26
参考賃料 34.0万円 〜 36.0万円
㎡数 70.38㎡
間取り 1SLDK
所在階 23階
物件登録日 2025/08/26
参考賃料 34.0万円 〜 36.0万円
㎡数 70.38㎡
間取り 1SLDK
所在階 30階
物件登録日 2025/08/20

物件概要

物件名 THE TOKYO TOWERS SEATOWER
住所 東京都中央区勝どき6丁目3-1
最寄駅 都営大江戸線 勝どき駅 徒歩5分
東京メトロ有楽町線 月島駅 徒歩13分
賃料
198,000 ~ 1,000,000 円/月
築年月 2008/01(築19年)
間取り 1LDK-2SLDK 専有面積 54.12-80.23㎡
物件特徴 構造 RC(鉄筋コンクリート)
総階数 地上58階
地下2階
総戸数
物件種別 マンション 登録日
更新日
2023/01/15
2023/05/11
設備
  • オートロック
  • TVドアホン
  • セキュリティシステム
  • 防犯カメラ
  • 24時間管理
  • エレベータ
  • エレベーター2機以上
  • ごみ出し24時間OK
  • 各階ゴミ置き場有
  • 宅配ボックス
  • 駐車場有
  • 大型駐車場
  • 駐輪場
  • バイク置き場
  • タワーマンション
  • 分譲賃貸
  • 内廊下
  • 制震構造
  • フロントサービス
  • コンシェルジュ
  • ラウンジ
  • フィットネスジム
  • パーティルーム
  • ゲストルーム
  • プレイルーム
  • キッズルーム
  • バリアフリー
  • ペット可住戸あり
  • 楽器可住戸あり
  • 二重オートロック
  • カフェあり
  • スパあり
  • プールあり
  • サウナあり
  • 地震に強い(免震・制震)
  • 都市ガス

関連記事

  1. 徹底調査!オランダヒルズ森タワーRoPの事故物件情報一覧

  2. 徹底調査!ブリリアイストタワー勝どきの事故物件情報一覧

  3. 徹底調査!シティハウス東麻布の事故物件情報一覧

  4. 徹底調査!ニチレイ東銀座レジデンスの事故物件情報一覧

  5. 徹底調査!宮益坂ビルディング The SHIBUYA Residenceの事故物件情報一覧

  6. 徹底調査!MFPR目黒タワーの事故物件情報一覧

コメント

  • コメント (0)

  • トラックバックは利用できません。

  1. この記事へのコメントはありません。

厳選した高級物件をあなたに

高級賃貸東京は、一般的な不動産屋さんのように、「店舗で一緒に物件を探す」ことを基本的には行いません。

なぜかと言うと、店舗での物件探しでは対面になる分、お客様がご自身で検討できる時間が限られてしまうからです。

弊社では、メールなどで希望に沿った物件情報を複数お送りいたしますので、お客様のペースでじっくり比較・検討いただいた上で内覧・お申し込みをしていただくことができます。

このスタイルで営業しているため、店舗での物件紹介は原則しておりません。

高級賃貸東京が選ばれる理由

取引先企業様